ALTE DOCUMENTE
|
||||||||||
UNIVERSITETI POLITEKNIK
FAKULTETI INXHINIERISE MEKANIKE
KURSI V (ENERGJITIKE)

VARIANTI II/1
Te dhenat:
|
V |
Q1 |
Q2 |
H1 |
H2 |
l1 |
l2 |
l3 |
l4 |
l5 |
l6 |
l7 |
l8 |
l9 |
QSP |
|
|
|
|
|
|
|
|
|
|
|
|
|
|
|
|
|
1 |
600 |
900 |
350 |
100 |
4 |
5 |
2.5 |
4 |
3 |
4 |
10 |
3 |
2 |
50 |
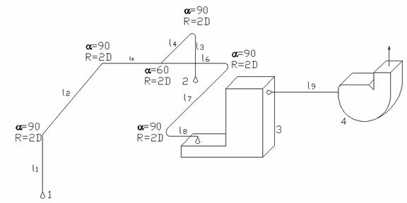
Njohje e impiantit:
1, 2 - Makina 3 - Filter 4 - Ventilator
Kerkohet:
Ø Diametrat e tubacioneve ne te gjithe sektoret e rrjetit, nisur nga kushtet ekonomike dhe sigurise se shfrytezim te instalimit.
Ø Humbjet e presionit ne çdo sektor te rrjetit ventilues.
Ø Rezistenca e rrjetit te barabarte me humbjet e pergjithshme te presionit sipas magjistralit kryesor.
Skema e impiantit:

Ndajme rrjetin ne sektore duke i shenuar me germat e alfabetit, percaktojme magjistralin kryesor dhe sektoret anesor (si magjistral kryesor zgjidheet ai qe eshte me larg)
SEKTORI 1 - A
Ne fillim zgjedhim shpejtesine ne sektor e cila duhet te jete me e madhe se 12 m/s, pranojme v =17m/s. Nga nomograma per v =17m/s
dhe diametrin D
=110mm.
Kontrollojme shpejtesine e zgjedhur:
![]()
Ne te njejten nomograme percaktojme:
.
Gjatesia llogaritese e sektorit 1 - A perbehet nga:
Ø Gjatesie e pjeseve te drejta
Ø Gjatesi e konfuzorit
Ø Gjatesi e brrylave (2 cope)
Gjatesia e konfuzorit gjendet nga formula:

ku:

Ne rastin tone, meqenese gryka e hyrjes se konfuzorit eshte shume e madhe do pranojme a = 90o , nga ku kemi qe:

Gjatesia e brrylave llogaritet:


Gjatesia llogaritese e sektorit 1-A
![]()
Humbjet e presionit ne sektorin 1 - A jane:
![]()
Humbjet e vendit llogariten duke u mbeshtetur ne shumen e rezistencave te vendit te sektorit 1 - A qe jane :
Ø Ne konfuzor
Ø Ne brryl
Ø Ne bashkimin T
Koeficienti i rezistences se konfuzorit gjendet nga tabela 10 duke u nisur nga a = 90 dhe
gjejme: ![]()
Koeficienti i rezistences se brrylave do te gjendet nga tabela 33 per a = 90 dhe R = 2D, gjejme: ![]()
Koeficienti i humbjeve ne bashkimin ne forme "T" e gjejme nga kushti i barazimeve te humbjeve te presionit ne sektorin e kalimit 1 - A me humbjet e presionit ne sektorin anesor 2 - A.

SEKTORI 2 - A
Perbehet nga;
Ø Nje brryl 90º
Ø Nje brryl 60º
Ø Tuba gjatesor
Ø Konfuzor
Ne baze te prurjes
, zgjedhim shpejtesine v = 24 m/s dhe ne nomograme diametrin
D = 110 mm, R = 69.8 Pa/m dhe
.
Paraqitje e konfuzorit:
Ne permasimin e konfuzorit (si ne figure), zgjedhim a = 1800 mm, b = 750
mm,
, ku
, nga ku kemi:

Gjatesia e brrylit per
:


Gjatesia e brrylit per
:


Gjatesia totale e sektorit 2 - A:
![]()
Humbjet ne sektor:
Koeficenti i rezistences te konfuzorit ne fuksion te ![]()
Koeficenti i rezistences te brrylit 90 ne fuksion te ![]()
Koeficenti i rezistences te brrylit 60 ne fuksion te ![]()

Pra mund te themi se sektori kryesor eshte ai 1 - A.
Duke pranuar si magjistral sektorin 1-A dhe si anesor ate 2-A, pas treshes
do te kemi nje prurje
Bejme diferencen midis sektorit kryesor 1 - A dhe sektorit 2 - A, per te llogaritur bashkimin ne forme 'T'.
te humbjeve ne
magjistral, i cili eshte nje kufi i pranueshem.
SEKTORI A - B:
Perbehet nga;
Ø Tre brryla 90º
Ø Nje brryl 60º
Ø Tuba te gjate
Ne baze te prurjes
, dhe duke patur parasysh qe shpejtesia ne kete sektor duhet
te jete me e madhe ose e barabarte me ate te sektorit 1 - A, zgjedhim
shpejtesine v = 24 m/s dhe nga nomograme kemi:
![]()
Llogarisim gjatesite ekuivalente te ketij sektori:
Gjatesia e brrylave per ![]()

Gjatesia e difuzorit:

Gjatesia totale e sektorit A - B:
![]()
Koeficenti i rezistences ne bashkimin ne forme T nga tabela 36 eshte si me poshte:
![]()
Paraqitja grafike
Koeficenti i rezistences se difuzorit gjate hyrjes ne filter me permasa (1000 x 400)
dhe shkalle zgjerimi
dhe ne baze te formules se meposhtme:

Humbjet ne sektorin A - B do te jene:

Kontrollojme diferencen e presionit deri ne filter per te bere fryrje efektive ne baze te formulave te meposhtme:

SEKTORI B - C:
Humbjet ne filtrin merren: ![]()
Harxhimi i ajrit ne fund te sektorit llogaritet duke i shtuar 5% per shkak te infiltrimit nga ambjenti i jashtem deri ne kete pike:
![]()
SEKTORI C - D:
Ne kete sektor kemi daljen nga filtri si dhe lidhjen e tij me nje konfuzor, nje difuzor si dhe nje tub me gjatesi prej 2m me ventilatorin thithes. Per shkak te infiltrimit ne dalje te filtrit kemi nje shtese prej 15% shtese te prurjes se ajrit:
![]()
Rekomandohen shpejtesi jo me te medha se 10m/s pas filtrit, pra duke zgjedhur v =10m/s ne nomograme gjejme te gjithe parametrat e tjere si me poshte:
![]()
Llogarisim gjatesine ekuivalente te sektorit
Konfuzori(Difuzori)
Duke qene se te dy kane te njejten konstruksion llogaritjet jane te te njejta.Me nje kend prej 45º si dhe b=1400mm kemi:

Gjatesia ekuivalente:
![]()
Humbjet e presionit ne sektor
Koeficentet e rezistences ![]()

Zgjedhja e ventilatorit dhe llogaritja e fuqise se elektromotorit:
Zgjedhja e ventilatorit behet ne fuksion te presionit dhe te harxhimit te ajrit me ane te diagramave. Presioni sipas te cilit behet zgjedhja e ventilatorit llogaritet si me poshte:
, ku koeficenti simbolizon rezistencat suplementare te pallogaritura me lart:
![]()
Meqenese sasia e ajrit merret si e paster pa grimca te materialit zgjidhet
ventilator i tipit te pergjithshem ne diagrame ne fuksion te
nga e cila marrim
rendimentin
dhe me numer
rrotullimesh ![]()
Fuqia e elektromotorit do jete si me poshte:
![]()
|