ALTE DOCUMENTE
|
||||||||||
3 příklady :
1) zatězovací obrazce na zalomené hrázi - nakreslit obrazce a vypocítat velikost a směr výsledné síly
2) při zadané průtoku, sířce koryta a n určit sklon koryta,
aby v něm bylo kritické prodění
3) určit délku potrubí mezi dvěma nádrzemi, aby byl splněn
zadaný průtok, kromě toh dány
průřezy částí potrubí, ztrátové součinitele, delta a
teplota
6 otázek :
1) archimédův zákon - definice, fyzikální
vysvětl 17317g612r ení, vyuzití v praxi
2) Bernouliho rovnice pro reálnou kapalinu a vyuzití
pro zkousku Pitotovou trubicí
3) násoska - princip, podmínky fungování, vyuzití
4) rozdíl mezi reálnou a ideální kapalinou, měrná hmotnost
5) uzití zákonu zachování hybnosti při počítání silového účinku
proudu
6) říční, bystřinné a kritické proudění - definice, podmínky
existence, výskyt, na čem závisí
příklad 1. vypočítat přetlak Pp, kdyz znáte Pb a hustotu
rtuti, zbytek je vyplněn vodou
příklad 2. vypočítat Pp jaký bude kdyz
obě hladiny musí být ve stejné výsce. Znáte L, z1, z2, D a Q + ztrátu
kolene
příklad 3. zjistit průtok Q korytem, kdyz znáte drsnosti stěn+
hloubky a velikosti dna
Potom je hodina na teorii: celkem 6 otázek
1.popiste pascalův zákon
2.Chézyho rovnice, popis slozek, kde se vyuzívá
3.Rozdíl mezi kvadratickou a přechodnou oblastí v turbulentním chování a
vysvětlit ztráty třením
4.Postup řesení odpoustění nádrze
5.Postup řesení při výpočtu vzdutí před mostem o jednom
propustku
6. vysvětlit čáru energie a tlakovou čáru, nakreslit a popsat na
potrubí které přechází z mensího průměru D1 do potrubí o
větsím průměru D2
Nazdárek tak v jenom oddělení bylo:výpočet na způsob lisu(nic záludnýho),pak chtěly na kolik procent má být otevřená klapka aby jí protekl určitej průtok(BR...rovnice o jedné neznámé) a nakonec výtok otvorem.V teorii,tak něják od kazdýho něco,to si nevyberes.
No hele ja sem tam
byl a v prikladech sem mel klasiku: Koryto spocitat prutok (jedoduchy staci znat vzorce) Pak na BR tam byl jeden priklad
spocitat jakym tlakem musis pusobit abys neklesala
hladina... neco jako 2. domaci
ukol a spojene nadoby ... taky jednoduchy ...
opravdu nic tezkeho.
Teorie: 1) Darcyho filtrac.
zakon,
2)popsat jak budes resit priklad
kdyz mas levou hladinu vys nez pravou a mezi nimi je naklonena
prepazka (proste zatezovak)
3) laminarnia turbulentni proudeni popis, vyskyt, obrazek kriterium
4) nejaky propustek u vytouk
zatopeny (sem nevedel)
5) pak jak urcis v jake maximalni
vysce muze byt cerpadlo aby vytahlo vodu z nadoby (nevim co tam melo byt ale
neco jsem tam mlzil jako ze
zname ucinnost a tak neni problem spocitat
pomoci BR to a to)
hoj,takze ti v priloze posilam to co jsem nasbirala za vsechny mozny zkousky
a ja tam mela
zatezovak,lehkej pomerne a spocitat vyslednici F,a pak nadrz ze ktery
vedla trubka a ze ktery to vytekalo
- bernoulli - to bylo ok a pak neco
ze voda tekla nakym potrubim
a tam se to pak rozvetvilo na dve
potrubi a
taky chteli silu F ktera nejak pousobi,to sem nak nepobrala ten posledni
priklad
a v ut bylo
1. zatezovaci obrazce a k nim urcit,kde
bode oa otaceni poklopu,aby
byl
v rovnovaze!
2.BR,lehky,jakej musi byt podtlak v nadobe,aby
byla hladina v 2.nadobe v
urcite vysce
3.vsechny oddeleni mely nejakej most,ale ne ucovani
hloubky jako v
ukolu,ale napr.prutoku
tak a dalsi to co bylo ted
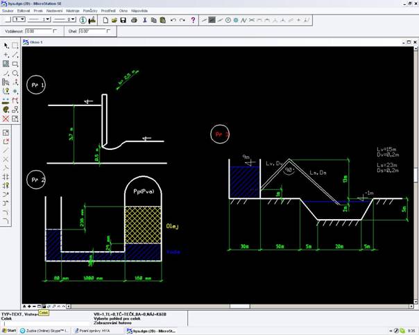
v utery 31.1.2006 - patri k tomu ten obrazek
Pr(íklady var. A zasílám v pr(íloze:

1) Zjistit hydrodynamickou sílu která pu*sobí na stvaidlo. K tomu máte
zadané takové to divné u=0,608 potom alfa=1 a beta=1
(r(esení najdete v pr(ednáskách silové paprsky)
2)Na obrázku jsou dve( kapaliny voda, olej, zjistit pr(etlak/podtlak Pp
(Pva), navíc je zadán V oleje, uz netusím pr(esne( kolik.
3) Zjistit pru*tok Q a ove(r(it
zda systém na obrázku bude funkc(ní (tedy
posoudit ho). Dále máte zadáno drsnost potrubí= 0,0005, místní ztrátu
vtoku=0,7 a ztrátu obloukem=0,6
Dávejte bacha v pr(íkladech je spousta matoucích ve(cí
na které se snazí
nachytat, viz. spousta zbytec(ných
informací na obrázku. A ve(cí které
lehce pr(ehlédnete, jako
jsou jednotky udávané v mm je potr(eba pr(evést
na
m apod. Druhý z pr(íkladu*
je konkrétním pr(ípadem,
jednotky máte v mm,
zadané pru*me(ry potrubí a
délky jsou k nic(emu a po zavedení rovn(ové
plochy, výsku na povrch hladiny vodu je nutno vypoc(ítat z objemu oleje
který je zadaný. V celku jednoduchý pr(íklad tak dávat na tohle bacha.
Otázky komentovat nebudu, na to si ude(lejte názor sami :c)
Tak si to uzijte:)
|