MagiCAD Learning Guide
MagiCAD Heating & Piping and Ventilation
Version 2003.3
Program version: 2003.3 Manual's date: 14-February-2003
MagiCAD® Copyright © 1998-2003 Progman Oy. All rights reserved.
MagiCAD is a registered trademark of Progman Oy. AutoCAD is a registered trademark of Autodesk Inc. Windows is a registered trademark of Microsoft Corporation. All other product names are trademarks of their respective holders.
Contents
Введение
Коротко о MagiCADe
Проект-demo
Начало и оптимизация
Запуск MagiCAD
Оптимизация
Установка пути шаблона
Курсорный крест
Настройка правой кнопки мышки
Начало работы с MagiCAD
Опции AutoCAD
Создание нового проекта
Прикрепление архитектурного чертежа
Блокирование архитектурного чертежа
Создание нового слоя
Блокировка внешней ссылки
Каталоги проекта
Создание
проекта
Редактирование списка этажей
Создание и редактирование систем (сетей)
Создание систем
Редактирование систем
Выбор оборудования в базу данных проекта
Пример
Базы данных изоляций, трубо-/воздухо проводов
База
данных типов изоляций
Воздуховоды
Трубопроводы
Трубо-/воздухопроводы
Серии воздуховодов
Серии трубопроводов
Черчение воздуховодов
Установка
дифузоров и вентилей
Установка устройств
Выбор диффузора/вентиля
Положение диффузора/вентиля в пространстве
Установка диффузора на открытый конец воздуховода
Черчение
воздуховодов
Окно-диалог черчения воздуховодов
Начало черчения
Высота воздуховода
Копирование
участка сети
Прокладка хода черчения
Изменение высоты
Другие приёмы черчения
Виртуальные
притоки
О виртуальных притоках
Разновидности виртуальных притоков
Установка компонентов воздуховода
Динамические
тексты
Создание динамических текстов
Форматы динамических текстов и их черчение
Копирование этажей и соединение виртуальных притоков
Копирование этажей
Соединение
виртуальных притоков
Соединение воздуховодов
Переход воздуховодов в венткамеру
Упражнение "Виртуальные притоки 2"
Спецификации
Расчёты
сетей
Создание
и редактирование критериев расчётов
Создание критериев расчётов
Расчёты
размеров
Суммирование
расходов
Балансировка
Проверка свойств воздуховодов
Проверка
и распечатка расчётов потерь давления
Проверка
и распечатка расчётов шумов
Вывод
уровней шума на диффузорах в чертеже
MagiCAD MagiCADe D системы трубопроводов и воздуховодов. И что важно, результат достигается "обычными" средствами черчения. Расчёты программы точны, потому что они производятся на "настоящей" модели системы.

MagiCAD MagiCADa
demo
demo MagiCADe Help Tutorial project
floor dwg MagiCAD
Содержание чертежа-примера
В верхнем окне: то же в "заполненом" виде 3D
Упражнения
MagiCADo
Bill of Materials
Ø Select all
Ø Текущий чертеж (Current drawing)
Все системы (All Systems)
Ø Перечень материалов (Bill of Materials)

system balancing
пиктограмма:
).
Выберите:
Ø Воздуховоды (Ductworks)
Ø System all drawing
Ø Система - Приток 1 (System - Supply 1)
Ø Показать критический путь (Show the most significant flow route)
Критический путь показан зеленой осевой линией (диффузор уже обведен областью "изменения проекта").
(Sound Calculation of All
Flow Routes; пиктограмма
).
диффузора по сети (Sound
Calculation of Flow Route; пиктограмма
.
D orbit AutoCADa
D
MagiCAD
AutoCADa
MagiCAD MagiCAD HPV
MagiCADa Startup AutoCAD

MagiCAD Startup
Startup Today-''сегодняшний" или отменить вообще появление этого окна. Это делается в меню: Toots/Options/System/Startup.
Рассмотрим несколько оптимизаций, облегчающих работу с программой. Оптимизации, которые подлежат редактированию, следующие: расположение пиктограмм на рабочем столе, размер лучей "курсорного креста", путь к шаблону и работа правой кнопки мышки.
Startup Cancel MagiCADa AutoCADe
AutoCADa

MagiCADa и "курсорный крест"
MagiCADa toolbar MagiCADa
Пиктограммы черчения 2-х и 3-х трубных систем содержат свойства "flyout" падающих меню. Они открываются при нажатии и удерживании левой кнопкой мышки соответствующей пиктограммы. Наборы пикторамм можно редактировать так же как и пиктограммы AutoCADa
MagiCADa; установим размер "курсорного креста"; оптимизируем работу правой кнопки мышки.
template
Tools AutoCAD Options Откроется следующее окно: Options -диалог (окно 3).

Options
Opshions

Drawing Template File Location ( : D:\ACAD2000\Template).
Browse Template MagiCADa
Окно 4.

Окно 5. Шаблон MagiCADa
Нажмите ОК. MagiCADa
Display Options

Options Display
Crosshair size (окно 6) можете установить длину лучей "курсорного креста". Замечено, что самым удобным является длина на экран монитора, при числе 100.
Colors
Выберите в Options- диалоге User Preferences -страницу (Окно 7).

Окно 7. Options-диалог; User Preferences-страница
Right click Customization При нажатии Right click Customization -кнопки откроется окно (окно 8).

Default Mode Repeat Last Command Edit Mode Command Mode Apply & Close
Options
AutoCAD File New MagiCADa "template", которые вы
Iso A dwt
AutoCADa
MagiCADe AutoCADa
AutoCAD ORTHO F ORTHO ORTHO F
AutoCADa
AutoCADa
Если в этом учебнике рекомендуется что-то написать в "командную строку AutoCADa", это значит, что надо писать сюда.
SNAP F
X и У. Например, при установке радиаторов вдоль стены или санитарных приборов, при черчении трубопроводов легко соблюдать заданное, кратное шагу, расстояние между осями труб и т.д. То есть черчение символов происходит "через шаг". Величина шага редактируется свободно по желанию пользователя.
ORTHO F
X
POLAR F
POLAR POLAR Settings Tools -> Drafting Settings
Polar
Polar Angle Settings Polar Tracking UCS UserCoordinateSystem
MagiCAD
Первым действием внесем в наш новый, пустой чертеж архитектурный план. Архитектурный план будем вносить "внешней ссылкой" (хотя можно и блоком). Из меню AutoCADa Insert External Reference (Здесь: чертеж А1 из каталога D:\Projects\MagiCAD Learning Guide\A-pics). Откроется диалог, показанный в окне 13. Нажмите ОК.
Xref
World AutoCADa
layer ERASE MOVE
xrefl
Layers AutoCAD
Layers
New xrefl). Заблокируйте слой кликнув курсором мышки на "замок" (окно 15, кружок 2). Нажмите O
После создания заблокированного слоя, выберите архитектурный чертеж кликнув перекрестьем курсора на каком-нибудь его элементе => типы линий чертежа поменяются на прерывистую. После этого кликните на пиктограмму AutoCADa Properties Ctrl
Properties (Окно 16), в верхнем ряду должно быть написано "External Reference". Выберите мышкой ряд Layer (кружок 1), и затем в появившемся "падающем" списке только что созданный слой. Закройте диалог. Архитектурный чертеж вернет свои первоначальные типы линий после нажатия клавиши ESC
Окно 16. Блокировка внешней ссылки
File Save As
Файлы проекта (3 файла, отвечающих за "умную" деятельность программы) следует располагать в том же каталоге, что и файлы-чертежи .dwg или в более низких каталогах вплоть до корневого, но в любом случае, на прямом пути от верхнего каталога до корневого. Например, "умные" файлы можно разместить в каталоге C Proekts Proekt Proekt_1 могут находиться еще"'.подкаталоги, например, "voda", "teplo", "vozduh", в которых соответственно могут находиться файлы .dwg соответствующих разделов проектирования. Но благодаря тому что "умные" файлы находятся в общем, более низком каталоге, все разделы проектирования можно выполнять под этими общими "умными" файлами проекта. Тогда для всех разделов проектирования общим будет, например, список этажей (об этом позже).
Vent1.dwg C:\Projects\MagiCAD Learning Guide\Vent.
Project
New project
Здесь программа создаст три "умных" файла проекта. При нажатии New project
GUIDE Location определяется, в какой каталог "умные" файлы разместятся. Каталог можно поменять нажав на кнопку (кружок b D Projects MagiCAD Learning Guide
proje t templale MagiCAD TEMPLATE Common Common b epj
компонентов, например, серии воздуховодов. Можно создать несколько шаблонов для использования в однородных проектах. В качестве шаблона можно использовать проектный фаблон ранее сделанного проекта, если он ближе всего подходит к текущему проекту.
Select project
Здесь выбирается уже существующий проект. То есть, если вы добавляете файл-этаж к уже существующим, то он "прикрепляется" к проекту именно здесь. В окне откроется путь к "умным" файлам проекта. Выбирайте каталог, где находятся эти файлы и нажмите ОК.
Edit floor list
MagiCADe dwg
d k
d z origo origo) рекомендуется располагать в "проверенные точки", которые на всех этажах точно находились бы друг над другом. Например, пересечение крайних строительных модулей (самого нижнего с самым левым) или наружный левый нижний угол здания. Z Z
e b h h
f Edit
g Insert
h Delete -здесь удаляются "лишние" этажи. Кликните сначала мышкой на удаляемый этаж, его ряд затемнится, и после этого кнопку Delete
i Paste
j Paste ID
k Graph
Select floor
Здесь этажи из списка "закрепляются" за своими .dwg demo floor
Install floor origin
origo origo
zoom window origo AutoCADa AutoCADa "ORTHO-включено" (F
Close
origo
floor floor

Окно 21. Отредактированный список этажей
MagiCADe Supply
MagiCADa Systems
Systems

Ductwork Edit
Supply
Supply I
General
ID код, который MagiCAD
User Code код системы, который задаёт пользователь; его можно использовать в динамическом тексте (напр. П1)
Name название системы, используемое в дальнейшем программой и пользователем (напр, можно написать "Приток 1")
System type тип системы; Supply air Exhaust air
Color Цвет, которым система чертится, можно менять через кнопку Select
Linetype Тип линии, которой система чертится, если пользователь не хочет использовать функцию изменения типа линии в зависимости от высоты воздуховода к отметке пола, задаваемую (функцию) в меню Layers, Colors, Linetypes -(By system).
Layer variables
SV SV SV X SV X
Calculations
Sizing
Ø Flow sum (суммирование расходов)
Ø Sizing (подбор размеров)
Ø Balancing (балансировка)
Ø BOM (Bill of Materials = спецификации).
Sizing
DP/Balancing
Minimum dp for flow damper [Pa]:
Minimum dp for devices [Pa]:
Warning limit of high dp [Pa]:
Balancing to minimum pressure
Balancing to fan pressure
Fan pressure Pa
Initial Sound
System Group
Lowest service pressure
Temperatures
Ø RHKP G INO Flakt Ventilation
Ø Диффузор притока CRL+MB A-0 (Lindab)
Ø Диффузор притока EKE+RAS-1 (Bevent_Rasch)
Ø Душевой смеситель Linea 1649 (Oras)
Ø Умывальник Linea 1600 (Oras)
Select products for the project

Products in project
2) Market area and product directory
Выберите область маркетинга.
Product File
Bevent Rasch b qpd MagiCADa PRODUCT
EKE RAS
Insulation Series
Manager Source project Project File Manager
Edit
Тип изоляции для круглых воздуховодов
Æ Dmax S mm Æ Æ mm
Тип изоляции для прямоугольных воздуховодов
m m S mm толщина изоляции.
Dmax S mm
MagiCAD
Duct and Pipe series
Edit Ins

Duct sizes Ins x
Sizes Ins
Flexible pipe Bend R D
Sewers
-
воздуховоды
-
диффузоры приточного воздуха
- вентили/решётки
вытяжного воздуха
-
регулирующие клапаны
-
шумоглушители
-
другие компоненты
-
распределительный бокс
-
ревизия
-
обозначение направления потока воздуха
Установка диффузоров притока
Supply Air Device
Exhaust Air Device
Откроется окно-диалог (окно 31).
qv
Size
Properties
Collar Length
После сделанного выбора нажмите ОК. Теперь диффузор "висит" на курсоре мышки, и вы можете установить его на чертеж левой кнопкой мышки. Можно присоединить его к открытому концу воздуховода включив опцию Connect
Part Properties
При установке диффузора/вентиля в чертеж (когда он "висит" на курсоре мышки") нажатием правой кнопки мышки открывается "падающее" меню, с помощью которого диффузор можно сориентировать в пространстве.
"Падающее" меню выглядит так (окно 32):
Direction AutoCADa ORTHO F ORTHO
Swap Swap EKE RAS
Branch Copy Part Properties
Connect -опция позволяет присоединять "висящий" на курсоре диффузор к открытому концу начерченного воздуховода. Опция активируется через "падающее" меню правой кнопки мышки. Опция деактивируется также выбором строчки noConnect
Duct
Options
Series
Circular ducts
Size
В принципе, рекомендуется выбрать примерно правильный размер, чтобы при изменении программой размера на расчетный, фасонные части "влезли" бы между прямыми участками.
Locked
Swapped
x x
Bends
Branches
circ circ Change Properties
Insulation
Change Properties Use Insulation Series
Routing
Smart MagiCAD
Direct Воздуховоды чертятся с любыми нестандартными отводами, по направлению, заданному вами мышкой.
(См. "Прокладка хода черчения".)
Connect
noConnect
RHKP ORTHO должна быть включена, чтобы воздуховод чертился строго горизонтально или вертикально. Если хотите укоротить начерченный участок, прочертите его "назад" (то же при черчении трубопроводов). Если выберите в меню правой кнопки команду Back MagiCAD
Z
Top of Center of Bottom f
Top of воздуховод пройдёт вплотную сверху указанного объекта
Center of
Bottom of воздуховод пройдёт вплотную снизу указанного объекта
Angle to horizontal
Esc Enter flownode или "виртуального притока", с помощью которого осуществляется переход воздуховода с текущего этажа на верхний).
RHKP Connect То же проделайте с диффузорами EKE+RAS и RHKP-12.
Branch Copy
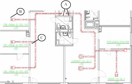
Кликните на пиктофамму и затем на начало
копируемого участка. Присоедините копируемый участок через Connect noConnect MagiCAD
CRL MBA Branch Copy. Кликните пиктофамму команды, затем в тройник (кружок С, окно 33). Копируемый участок "повиснет" на курсоре мышки. С помощью опции Connect
Routing Routing Smart Direct
Æ z Break Duct or Pipe
Break Duct or Pipe
Routing Smart OK Опция ORTHO отключена F8).

Smart MagiCAD
Routing Direct
Z

Окно 37. План сверху

D
Direct Direct
Smart MagiCAD
Height Difference Routing
Height Difference deg MagiCAD

AutoCADa ORTHO F X MagiCADa Angle
noConnect X Angle Angle He AutoCADa Enter X
Plug
D noConnect Angle
Object D F F F G Relative Angle G AutoCADa ORTHO F Relative
MagiCADe Two points). Данная опция облегчает черчение в случае, например, когда стены здания "кривые". Начертите воздуховод 3 (окно 39) используя данную опцию. Начните черчение воздуховода и выберите опцию Two points ORTHO F ORTHO
Совет: Если воздуховод чертится строго вдоль "кривой" стены, рекомендуется использовать привязку объекта AutoCADa Nearest Ctrl
Окно 41. Установка виртуальных притоков
Flownode d
Flownode Connection
Flownode Disconnection
MagiCADa None This napa
Open end unspec Flownode
None - это виртуальный приток, который применяется для создания "классического" притока к сети (например, к вашей сети присоединяется существующий участок, не входящий в проект, но переключаемый к вашей новой сети). При выборе этого виртуального притока необходимо задать расход и потерю давления в окошках Flow data
This - эта разновидность применяется внутри одного файла, когда надо сделать "разрыв" на чертеже трубо-/воздухопровода (например, на сильно загруженном участке чертежа). Оба виртуальных притока пары должны иметь одинаковый ID This. Тогда расход и потери давления будут динамически переноситься с одного конца "разрыва" на другой.
MagiCAD умеет предложить по умолчанию правильную - разновидность виртуального приток. В данном упражнении направление "вверх - upward" и ID MagiCAD ID
BSD IRIS Cleaning Cover

Flow Damper
Properties
MagiCAD
Dimension texts
Format

Group
Available Formats
Edit New
Set active
New (новый формат)

Description
Variables
Available Selected
Add constant
Reference Line
None без указательной линии
First part указательная линия к первому выбранному компоненту
All parts указательная линия ко всем выбранным компонентам
Baseline
None без базовой линии
First row базовая линия только под первым рядом ДТ
All rows базовые линии под всеми рядами ДТ
Rectangle окаймляющий прямоугольник
Circle описанная окружность
Alignment
Left по левому краю
Center по центру
Right
Supply and exhaust devices
Productcode New line Airflow with sign
No of devices Airflow sum with sign Airflow sum with sign
Ducts
Æ Connection size with phi
Æ New line Add constant) "H ". Теперь выберите переменную высоты оси воздуховода от пола этажа (Center of parts), и внесите снова постоянную "мм". Линии и выравнивание текста сделайте как в предыдущих форматах.
Productcode Damperpos
Productcode
Add constant
Например, в сетях теплоснабжения можно объединить в один ДТ тексты нескольких компонентов, как то размеры подающего и обратного трубопровода. Выберите черчение ДТ и кликните "кольцом поиска" на один из пары трубопроводов, затем из меню правой кнопки мышки выберите add part
Vent Vent Vent Vent Vent
Save Vent Save As Vent
Project Select Floor нажатии кнопки Select Floor, программа спросит "Do you really want to change the active floor?" Floor Close
AvtoCADa Windows Vent Open Vent Windows Windows
Flow node Connection
Vent Vent Vent AutoCADa
Connected flownodes = соединенных виртуальных притоков О
Created flownodes 2 = вновь созданных вирт. притоков 2.
В этом положении вида их не видно, так как они закрыты сверху стояками. При переходе виртуальных притоков с 3-го этажа в венткамеру виртуальные притоки будут видны лучше и в виде "сверху" (п. 7.6.5). Но для лучшего отслеживания перехода виртуальных притоков на этаж вы можете использовать "изометрический" 3d View

Окно 47. Виртуальные притоки, вид "сверху"
и кликнете "кольцом поиска" в правый
стояк в точке А (окно 47). В этом месте находится несколько компонентов, к
которым можно присоединить воздуховод, поэтому программа спросит, в какой именно
компонент вы хотите присоединится.

Flownode h Connect и кликнете "кольцом поиска" в ту же точку правого стояка в точке А. Теперь выберите отвод (bend

D
Part Properties
все ли вы сделали правильно. Выберите Part Properties -команду и кликните
"кольцом поиска" на правый стояк, после чего откроется список
компонентов, попавших внутрь "кольца поиска" (окно 50):
Part Properties
OK ID flownode Part Property Line
Save As Vent Vent Save Vent Project
Flownode Disconnection
(при текущем файле-этаже Vent Vent Flownode Connection
Vent Vent AutoCADa
Connected flownodes = соединенных виртуальных притоков 2
Created flownodes 0 = вновь созданных вирт. притоков 0
File new template Iso Al dwt Vent Project
Select project Select floor floor origin X ORTHO F
Vent Vent
Окно 51. Виртуальные притоки
D
MagiCAD
z Floor Floor Floor Floor
Окно 53.Список этажей
Graph
AutoCADa RECTANGLE Draw Rectangle RECTANGLE Specify first corner point Specify other corner point
AutoCADa Properties Ctrl Thickness
Используйте при этом команду MagiCADa Branch Copy.
MagiCADa Branch Copy AutoCADa COPY ID
Distribution Box MagiCAD Magivent Center height level
Если хотите объединить все чертежи в один, откройте новый пустой файл и присоедините к нему все четыре чертежа проекта с помощью "внешних ссылок" (Insert External Reference External Reference Insertion point
Bill of Materials
System Group
Systems
All systems Selected system
Area
Select area Можно выбрать мышкой часть чертежа.
Current drawing Для всего текущего чертежа.
Selected drawings Для выбранных из списка чертежей.
Criteria
UserVar UserVar
Output header
Bill of materials Классический перечень компонентов, выводимый в таблицу.
MagiCAD Export Более углублённый вариант спецификации.
Sizing criteria
Sizing criteria
Edit Insert ID
"Max velocity m s " при редактировании откроется следующее окно-диалог (окно 58):
dp max
Æ Dekv max n max Æ Æ
Æ Æ Description
Окно 59. Созданный вариант критериев расчёта
Sizing
Появится окно-диалог (окно 60).
Range
Branch System current drawing Branch
External flownodes
Use last value Calculate flow
AutoCAD AutoCADa Window
Show Messages
MagiCAD
Flow Summation
Sizing
Flow Summation and Balancing
System all drawings Show the most significant route
Part Properties
можете просмотреть полученные свойства
компонентов сети.
Excel
Flow Route Examination
Нажмите на пиктограмму команды и затем на расчетный диффузор.
Совет: Тексты уровней шумов можно перемешать на чертеже способом "ручек", при выключенной опции ORTHO F
|