Lant de actionare
1.Descriere si mod de functionare
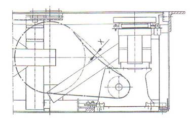
Lantul de actionare 626f57g este un lant duplex care transmite cuplul de actionare 626f57g axului principal (4)
Lantul de actionare 626f57g (1) este tensionat prin miscarea longitudinala a intregii unitati de actionare (3) cu ajutorul unui excentric (5) .
1.Lant actionare
2.Inbinare lant
3.Unitate actionare
4.Ax principal
5.Excentric
6.Suruburi
7.Piulita de strangere
8.Sina de ghidaj
9.Bolturi de ghidare
2.Intretinere .Tensionare lant .
Tensionarea optima a lantului este atinsa atunci cand din greutatea proprie are o sageata (x) de la 10 la 15 mm . Se retensioneaza lantul cand sageata este de 30 mm sau depaseste 30 mm .
.
3.Retensionarea lantului
Se distribuie sageata (x) in ambele impletituri ale lantului prin invartirea centrifugei . Slabiti cele patru suruburi (6) ale unitatii de actionare . Cheie tubulara de 30 mm si prelungitor de 1 m . Se slabeste piulita de strangere (7) a excentricului . Mutati unitatea de actionare (3) cu ajutorul excentricului (5) pana cand sageata (x) ajunge la 10 - 15 mm . Se strang piulita de strangere (7) a excentricului si cele patru suruburi (6) . Suruburile slabite (6) pot determina o usoara inclinare a unitatii de actionare atunci cand se intinde lantul . Verificati din nou tensionarea lantului dupa strangerea suruburilor . Unitatea de actionare nu trebuie sa fie mutata la mai mult de 15 mm fata de pozitia initiala din timpul ansamblarii din fabrica .
Ungerea
In functie de metoda de ungere ( manuala sau automata ) precum si de locul de instalare a escalatorului se folosesc diferiti lubrefianti , printre care si ulei VG 220 .
|