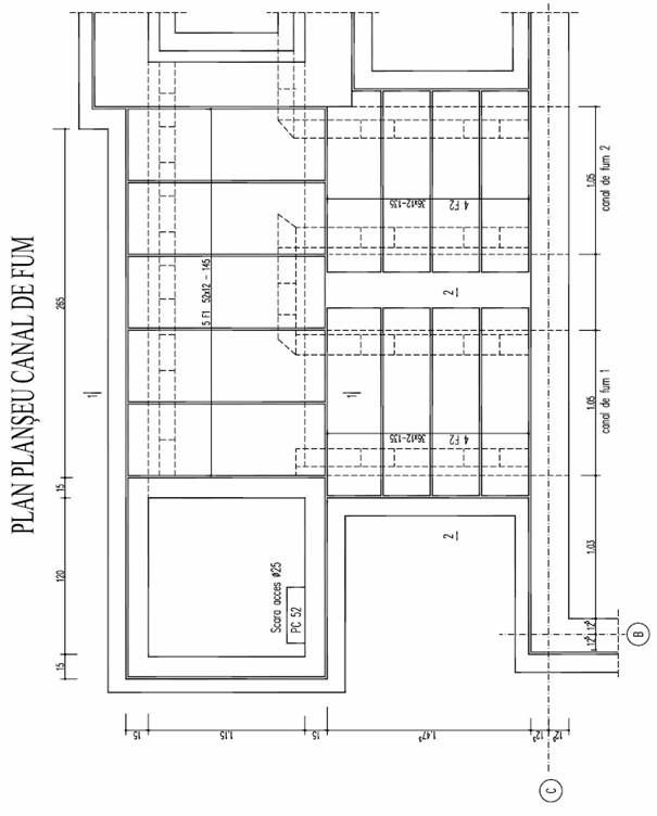
CAMIN DE VIZITARE SI CANAL DE FUM
Plan planseu la camin de fum.
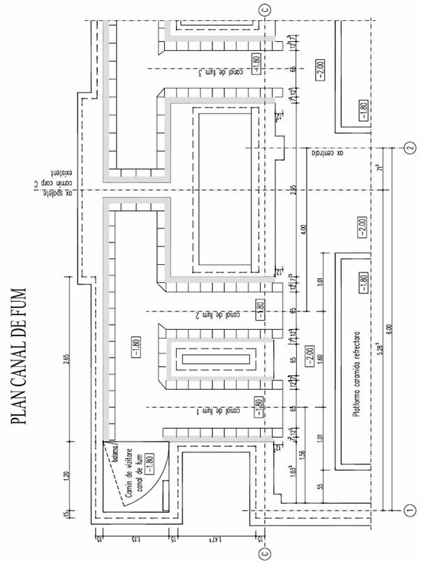
Plan de alcatuire in sectiune orizontala.
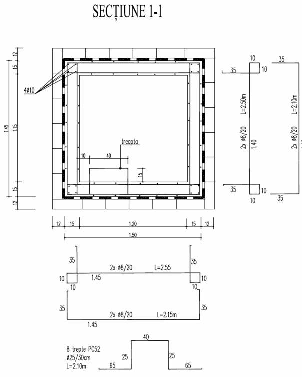
Sectiuni verticale si armari verticale
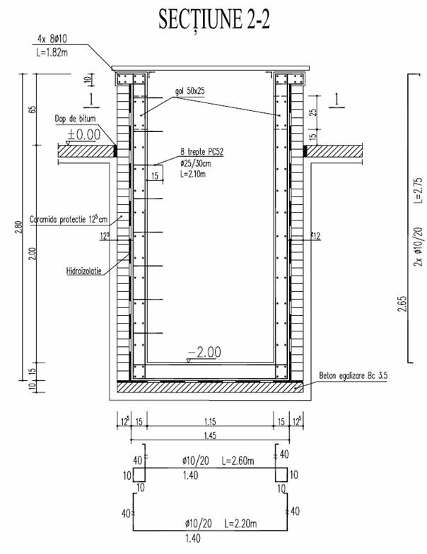
Armare in sectiune o 444d33e rizontala.
2.13.1. Plan planseu la camin de fum.
Caminul de vizitare si canalul de fum corespunzator cosului de fum expus in capitolul 11 au necesitat un planseu prefabricat realizat din elemente prefabricate din beton armat de tip fasii pline.
TEMA DE PROIECTARE se refera la datele de gabarit si functionale stabilite de specialitatea de Instalatii. La alcatuirea acestui obiectiv trebuie sa se tina seama de straturile succesive de izolatii termice ale betonului. Aceste izolatii, in cazul de fata, sunt realizate dintr-un strat de dialit de 75 cm si un strat de caramida refractara de 125 cm.
Plan de alcatuire in sectiune orizontala.
Alcatuirea in plan orizontal se poate urmari in "Planul canalului de fum". Se remarca aici necesitatea de a prevedea straturile de termoizolatii din dialit de 75 cm si caramida refractara de 125 cm. Caminul de vizitare este prevazut cu usa de siguranta cu dimensiuni si alcatuire standardizate conform Normativ.
2.13.3. Sectiuni verticale si armari verticale.
Sectiunea verticala a canalului de fum se caracterizeaza prin teserea zidariei de caramida refractara sub forma de bolta in plin cintru. Aceasta placare se realizeaza cu zidarie de 125 cm.
2.13.4. Armare in sectiune orizontala.
Armarea este specifica cuvelor ingropate, atat pentru radier, cat si pentru pereti.






|