COS DE FUM DIN ZIDARIE CU UN CANAL
Alcatuire in sectiuni vertical 424f55e e.
Sectiuni orizontale.
Detalii caracteristice.
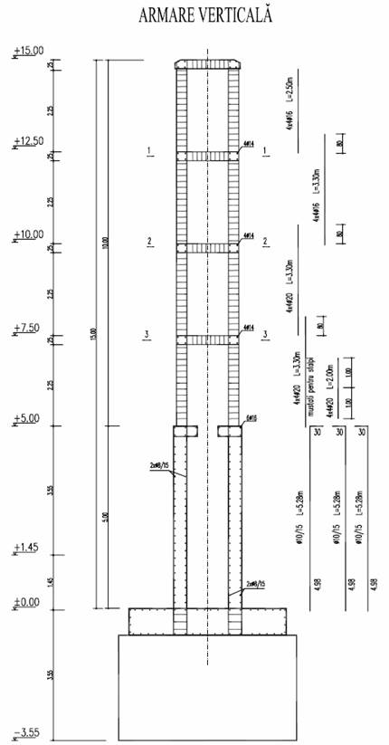
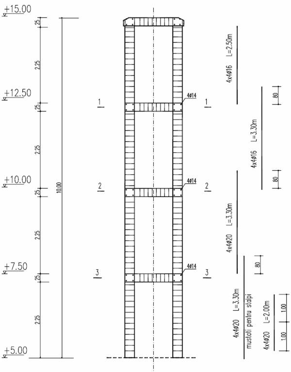
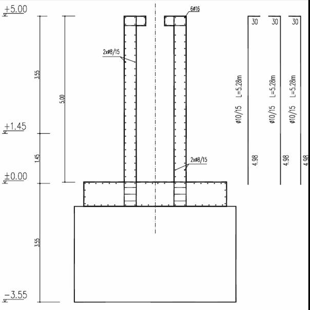
Armari in sectiuni vertical 424f55e e si orizontale
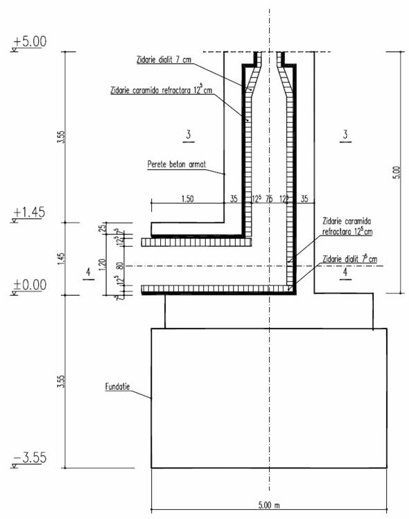
2.10.1. Alcatuire in sectiuni verticale.
TEMA DE PROIECTARE va preciza urmatoarele date:
sectiunea minima curenta pe inaltime a cosului;
inaltimea minima necesara din punct de vedere al realizarii tirajului;
temperatura la intrarea in cos si la iesirea din cos;
materialul din care se prefera executia lui.
Ultimul punct, 4, este optional, deoarece solutia finala a cosului de fum se stabileste din conditii de rezistenta si stabilitate pe teren si altele.
2.10.2. Sectiuni orizontale.
Alcatuirea in sectiune orizontala se face asigurandu-se toate elementele tehnologic necesare, protectia termica a structurii de rezistenta etc.
2.10.3. Detalii caracteristice.
Detaliile caracteristice sunt prezentate in detaliile A, B, C, si D. Aceste detalii expliciteaza modul specific de alcatuire al centurii de capat, al centurii intermediare, al protectiei centurilor intermediare cu dialit si caramida refractara, precum si rezolvarea centurii peretelui de beton armat si protectia sa.
2.10.4. Armari in sectiuni verticale si orizontale.
Aceste armari depind de tipul de solutie ales pentru structura de rezistenta. In acest caz, solutia este pe 1/3 din inaltime, la baza se realizeaza un tub din beton armat, iar in continuare stalpi si grinzi de beton armat de 25×25 cm.
Reprezentarea armarii se face in plan vertical si in sectiuni orizontale.











![]()




![]()

![]()



|