CUVA INGROPATA IN PAMANT CU DOUA COMPARTIMENTE
2.4.1. &nb 545b13f sp; Plan acoperis.
2.4.2. &nb 545b13f sp; Plan planseu.
2.4.3. &nb 545b13f sp; Plan depozit (pardoseala)
2.4.4. &nb 545b13f sp; Sectiuni
2.4.5. &nb 545b13f sp; Accesorii: postamenti, capace s.a.
2.4.6. &nb 545b13f sp; Armari
Preambul
Acest depozit ingropat este un obiectiv mai complex decat precedentul. Din punct de vedere functional este prevazut cu doua compartimente separate intre ele printr-un perete median. In mod similar, sala de pompe este separata de aceste doua incaperi de dimensiuni mari.
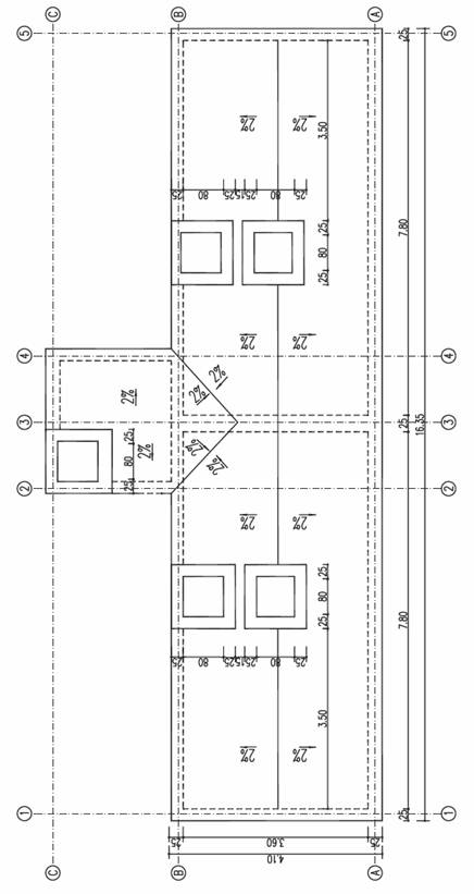
2.4.1. Plan acoperis.
Planul de planseu consta in precizarea golurilor de acces si de alimentare in ambele incinte separat, precum si in sala de pompe. Totodata, sunt precizate pantele necesare eliminarii apelor. Acestea sunt date ale TEMEI DE PROIECTARE care se stabilesc in corelare cu necesitatile instalatiilor interioare.
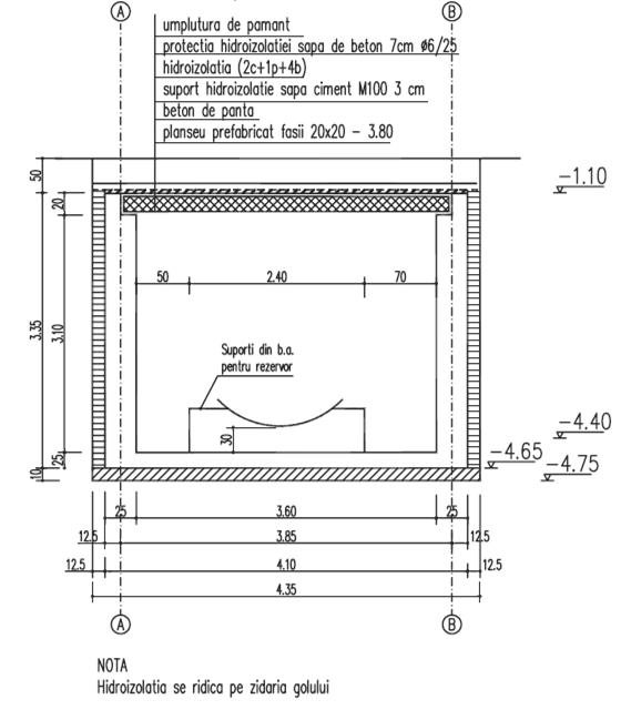
2.4.2. Plan planseu.
Planul de planseu prezinta dispunerea elementelor prefabricate de tip fasii si panouri de mici dimensiuni. Solutia s-a impus deoarece spatiul interior trebuie vizitat cu diverse prilejuri: revizii tehnice generale ale rezervoarelor, schimbarea acestora sau a unor subansamble in caz de avariere. Pentru rezemarea panourilor au fost necesare grinzi prefabricate 25×40.
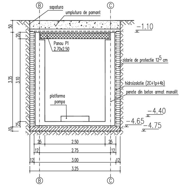
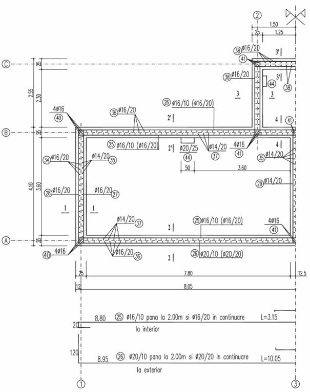
2.4.3. Plan depozit (pardoseala).
Planul depozitului de combustibil arata:
pozitiile postamentilor care sunt reazemele locale ale rezervoarelor;
pantele de colectare a pierderilor de combustibil;
golurile de diferite tipuri in peretii cuvei;
racordul pe la exterior cu canalul de combustibil;
pozitia platformei pompelor;
pozitiile scarilor metalice;
hidroizolatiile verticale si protectia acestora cu un strat de caramida plina presata in grosime de 125 cm.
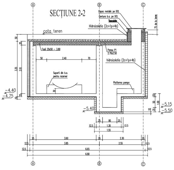
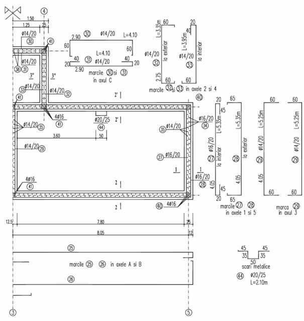
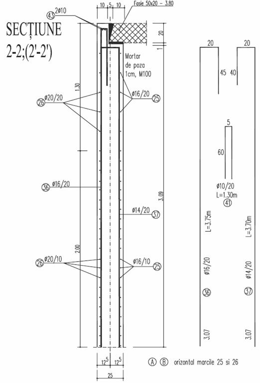
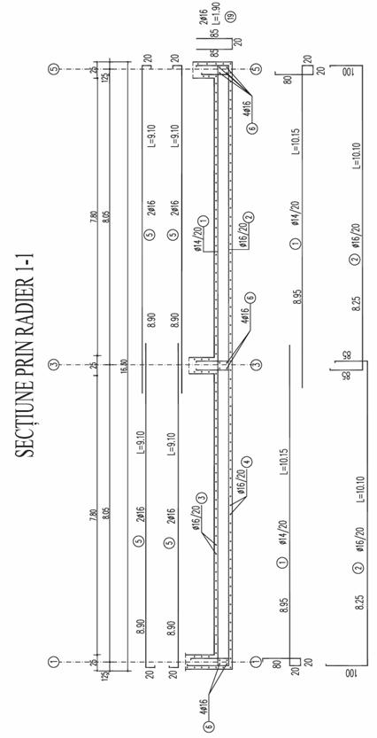
2.4.4. Sectiuni.
Sectiunea verticala prin cuva notata A-A inregistreaza configuratia elementelor principale care alcatuiesc depozitul: radierul, peretii interiori si exteriori, hidroizolatia orizontala si verticala, protectia exterioara a hidroizolatiei, postamentii rezervoarelor, structura prefabricata a planseului prefabricat, golurile de acces etc. Celelalte sectiuni B-B, C-C, 1-1, 2-2 detaliaza aspectele precizate mai sus.
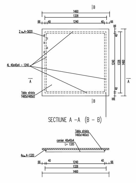
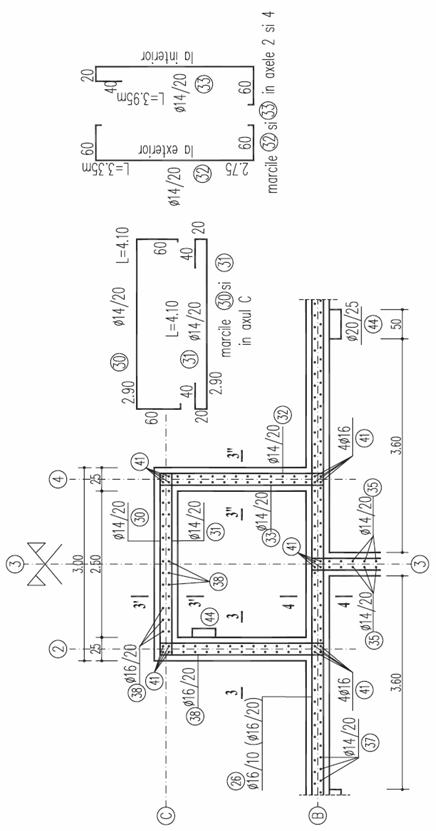
2.4.5. Accesorii: postamenti, capace s.a.
Elementele accesorii sunt prezentate in continuare. Este data:
geometria si armarea unui postament pentru rezervorul de combustibil;
postamentul pompei interioare;
solutia adoptata pentru capacul metalic
impreuna cu toate detaliile necesare executiei.
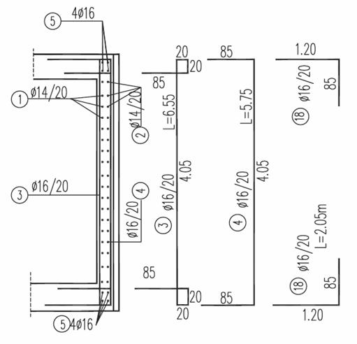
2.4.6. Armari.
Armarile rezultate din calculul de rezistenta si prezentate sunt:
armarea radierului;
armarile locale in zona basei de colectare pierderi de combustibil;
armarea orizontala a peretilor;
armarile verticale in pereti.
S-au prevazut, de asemenea, si in acest caz, mustatile de legatura intre radier si peretii cuvei.

![]()

![]()

![]()




![]()

![]()









![]()

![]()

![]()

![]()

|