Fundatii
|
|
N = |
51,4 to. |
|
Din pls. |
3,9 x 3,9 x 0,91 = |
8,2 to. |
|
Grinzi |
2 x 3,9 x 0,25 x 0,40 x 2,5 = |
2,0 to. |
|
Stalpi |
2,6 x 0,45 x 0,45 x 2,5 = |
1,3 to. |
|
Total |
|
(2 x 2 x 1,3 – 3,1) x 1,8 x 1,2 =
4,54 to.
----- ----- ----
12.03 to.
Sub cuzinet
|
|
N = |
30,3 to. |
|
Din pls. |
|
6,9 to. |
|
Grinzi |
1,5 x 3,9 x 0,25 x 0,4 x 2,5 x 1,1 |
1,6 to. |
|
Stalpi |
2,6 x |
1,4 to. |
|
Elev. |
3,9 x 0,25 x 2,6 x 2,5 x 1,1 |
7,0 to. |
|
Total |
|
----- ----- ----
8,16 to.
Sub cuzinet
|
|
N = |
20,2 to. |
|
Din pls. |
1,95 x 2,10 x 0,91 |
2,9 to. |
|
Stalpi |
1,4 to. |
|
|
Elev. |
(1,95 + 2,1) x 1,786 |
7,2 to. |
|
Total |
|
----- ----- ----
4,81 to.
Sub cuzinet
|
|
N = |
51,10 to. |
|
Din pls. |
(3,9 x 1,95 + 1,95 x 2,1= x 0,91 |
10,65 to. |
|
Grinzi |
3,9 x 0,275 |
1,07 to |
|
Stalpi |
1,4 to. |
|
|
Elev. |
(1,95 + 2,1) x 1,786 |
7,2 to. |
|
Total |
|
----- ----- ----
Sub cuzinet

|
|
|
61,10 to. |
|
Din pls. |
|
8,52 to. |
|
Greutate Stalp |
1,4 to. |
|
|
Elev. |
(1,95 + 2,85 + 2,1= x 0,25 x 2,6 x 2,5 x 1,1 |
12,30 to. |
|
Total |
|
----- ----- ----
Sub cuzinet
|
|
N = |
48,9 to. |
|
Din pls. |
8,5 to. |
|
|
Stalpi |
1,4 to. |
|
|
Elev. |
14.7 to. |
|
|
Total |
|
F: 2,20×2,20
si
|
|
N = |
49,4 to. |
|
Din pls. |
6,9 to. |
|
|
Stalpi |
1,4 to. |
|
|
Elev. |
14,2 to. |
|
|
Total |
|
F: 2,20×2,20
|
|
|
|
|
|
Fundatii
si
|
|
|
|
|
N |
42,7 to. |
47,4 to. |
|
Din pls.: (2,85+1,05)×1,95×1,95= | ||
|
Greutate stilpi= | ||
|
Elev.: (2,85+1,05+1,95+2,1)×2,6×0,25×2,5×1,1= | ||
|
|
73,1 to. |
67,0 to. |
![]()
![]()
![]()
![]()
![]()
![]()
![]()
2,1
|
| |
|
| |
|
| |
|
|
37,64 to. |
Sub cuzinet
|
|
N = |
48,5 to. |
|
Din pls. |
|
5,9 to. |
|
Stalpi |
1,4 to. |
|
|
Elev. |
8,6 to 8,6 to. |
|
|
Total |
|
Folosesc 2,20×2,20;
=73,0+15,8=88,8 to.
Sub cuzinet
Revenire la
|
| |
|
| |
|
| |
|
|
32,2 to. |
|
N |
172,3 to. |
|
140,1 to. |
![]()
![]()
![]()
35,0
t/m
![]()
![]()
1,0 2,1 0,90
; (4Ø25) OB sau 13,44 PC52(5Ø20)
No 30,0 to. F
1,70
|
|
|
|
|
|
|
|
|
|
|
|
N |
49,0 to. |
|
|
Elev.: (2,1+1,95+2,85+1,10)×0,25×1,50×2,5×1,1= | ||
|
Greutate stilpi= | ||
|
|
58,7 to. |
R=107,6 to. E=1,05-0,95=0,10 m
![]()
![]()
R 58,7
![]()
![]()
![]()
1,15 x =0,95
2,1
|
| |
|
| |
|
| |
|
|
39,82 to. |
Sub cuzinet
32,7 t/m
![]()
![]()

![]()
![]()
55 2,1 65
![]()
![]()
![]()
![]()
![]()
![]()
![]()
100
![]()
![]()
![]()
![]()
![]()
![]()
![]()


5Ø12
![]()
![]()
![]()
![]()
![]()
![]()
![]()
![]()
![]()
50 2EtrØ10/20PC 52
5Ø12
170×170
|
N |
7,8 to. |
|
Stilpi | |
|
Elev.: (1,95+1,05)×1,5×0,25×2,5×1,1 | |
|
Total |
12,3 to. |
|
|
|
|
39,0 to. |
35,1 to. |
|
N |
39,0 to. |
|
Elev.: (1,95+2,85+2,1)×1,5×0,25×2,5×1,1= | |
|
|
46,1 to. |
F 1,70×1,70
|
N |
16,5 to. |
|
Elev.: 2,1×1,5×0,25×2,5×1,1 | |
|
|
18,7 to. |
![]()
![]()
115
![]()
![]()
35 45 35
![]()
|
|
|
|
|
|
|
|
|
N |
25,7 to. |
|
Elev.: (2,85+1,95)×1,50×0,25×2,5×1,1= | |
|
|
30,7 to. |
F 150×150
|
N |
42,5 to. |
|
Elev.: (2,1+1,95+2,85)×1,5×0,25×2,5×1,1= | |
|
49,6 to. |
|
N |
40,8 to. |
|
Elev.: (2,1+1,95+2,85)×1,5×0,25×2,5×1,1= | |
|
47,9 to. |
F 1,70×1,70
|
N |
28,5 to. |
|
Elev.: 1,95+2,85= | |
|
33,5 to. |
F 150×150
Diafragma a x E (1-1)
|
Zidarie: 0,15x3x1,2x1,2= | |
|
Elev.: 0,4x2,6x2,5x1,1= | |
|
Pls. +0,00: 1,95x1,95= | |
|
Total |
|
6Ø12 PC52
![]()
![]()
![]()
![]()
![]()
![]()
![]()
![]()
![]()
![]()
![]()
![]()
![]()
![]()
25
![]()
![]()
![]()
![]()
![]()
![]()
![]()
![]()
![]()
![]()
25
Diafragma a x 3 (D-E) si a x 4 si 5
|
Zidarie: 0,25x3x1,2x1,2 | |
|
Elev.: 0,4x2,6x2,5x1,1= | |
|
Pls.:
| |
|
Total |
|
6Ø12 PC52
![]()
![]()
![]()
![]()
![]()
![]()
![]()
![]()
![]()
![]()
![]()
![]()
![]()
![]()
25
![]()
![]()
![]()
![]()
![]()
![]()
![]()
![]()
![]()
![]()
25
Diafragma a x C
|
Zidarie: 0,25x3x1,2x1,2 | |
|
Elev.: 0,25x2,6x2,5x1,1 | |
|
Pls.: 1,95x0,91 | |
|
Total |
|
4Ø12 PC52
![]()
![]()
![]()
![]()
![]()
![]()
![]()
![]()
![]()
![]()
![]()
![]()
![]()
![]()
25
![]()
![]()
![]()
![]()
![]()
![]()
![]()
![]()
![]()
![]()
25
Diafragma a x 3 si 4 si 4 intre (C-D) (2-2)
|
Zidarie= | |
|
Elev.= | |
|
Pls.= | |
|
Total |
6,4 t/m |
4Ø12 PC52
![]()
![]()
![]()
![]()
![]()
![]()
![]()
![]()
![]()
![]()
![]()
![]()
![]()
![]()
25
![]()
![]()
![]()
![]()
![]()
![]()
![]()
![]()
![]()
![]()
25
Diafragma pe centru coaxial (3-3)
|
Zidarie= 0,3x3,0x1,2x1,2= | |
|
Elev.=0,4x2,6x2,5x1,1 | |
|
Pls.= | |
|
Total |
6,2 t/m |
6Ø12 PC52(4Ø12)
4Ø12
la deschideri sub 5,70 m. 6Ø12
la deschidri de 5,70 m.
![]()
![]()
![]()
![]()
![]()
![]()
![]()
![]()
![]()
![]()
![]()
![]()
![]()
25
![]()
![]()
![]()
![]()
![]()
![]()
![]()
![]()
![]()
![]()
25
VE
Verificare la impingerea pamantului:
![]()
![]()

![]()
![]()
![]()
2,6
m
![]()
![]()
![]()
![]()
![]()
![]()
4,2
![]()
![]()
![]()
![]()
![]()
![]()
![]()
![]()
![]()
![]()
![]()
![]()
![]()
2,6
1,9 t/ B200 PC52
![]()
![]()
![]()
![]()
![]()
![]()
![]()
La deschiderea de 5,7 m.
– nu se armeaza
±0,00
![]()
![]()
![]()
![]()
![]()
![]()
![]()
![]()
![]()
![]()
![]()
![]()
![]()
25
![]()
5Ø10/m – Elev. de 25
260 210 Rep. Ø6/25
![]()
![]()
![]()
![]()
![]()
![]()
![]()
![]()
![]()
![]()
![]()
![]()
4Ø8/m
– Elev. de 40
![]()
![]()
![]()
![]()
![]()
2,60
Impingere la elev. fara subsol
![]()

![]()
150
Scara exterioara de acces in subsol
![]()
![]()
±0.00

![]()
![]()
![]()
![]()
![]()
![]()
60 40
![]()
![]()
![]()
![]()
![]()
±0,00


B150 OB37 3,5Ø10/m 3,5Ø8/m 7Ø10/m 7Ø10/m
![]()
![]()
![]()
![]()
![]()
![]()
![]()
![]()
![]()
![]()
Rep. Ø6/25
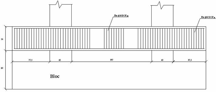
A. Cu subsol obisnuit (exterior)
|
Zidarie: 0,25x3,0x1,2x1,2= | |
|
Din pls: | |
|
Elev: 0,25x2,6x2,5x1,1= | |
|
Zid pr.: 0,15x0,4x2,4x1,1= | |
|
Bloc: 0,50x0,4x2,4x1,1= | |
|
Total |
5,38 to/m |
b=40 cm
B. Cu subsol ACA (exterior)
|
Zidarie: 0,25x3,0x1,2x1,2= | |
|
Din pls: | |
|
Elev: 0,40x2,6x2,5x1,1= | |
|
Zid pr.: 0,15x0,4x2,4x1,1= | |
|
Bloc: 0,60x0,4x2,4x1,1 | |
|
Total |
8,10 to/m |
b=60 cm
A1. Interior
|
Zidarie: | |
|
Din pls: | |
|
Elev: | |
|
Bloc: 0,40x0,40x2,4x1,1= | |
|
Total |
5,19 t/m |
b= 40 cm
Subsol ALA interior (ax D)
|
Diafragme: 0,5 x 10 x 2,5 x 1,1 | |
|
Din pls.: | |
|
Din pls.: | |
|
Elev: 0,4 x 2,6 x 2,5 x 1,1 | |
|
Bloc: 1,0 x 0,4 x 2,4 x 1,1 | |
|
Total |
19,46 t/m |
b= 1,00 m
Subsol ax 3 si 5 intre C-D
|
Diafragme: 0,5 x 10 x 2,5 x 1,1 | |
|
Din pls.: | |
|
Elev: 0,25 x 2,6 x 2,5 x 1,1 | |
|
Bloc: 0,8 x 0,4 x 2,4 x 1,1 | |
|
Total |
13,86 t/m |
b= 0,80 m
28,66 to.
Fundatie diafragma scara interioara
----- ----- ----
F = 3,6 x 1,4
Sub cuzinet
Grinzi de fundatie
Greutate zid : 0,25 x 3,0 x 1,2 x 1,2 = 1,08 t/m
Greutate grinzi : 0,30 x 0,60 x 2,5 x 1,1 = 0,50 t/m
----- ----- ---------
1,58 t/m
2 2
![]()
![]()
![]()
2 2
![]()
![]()
![]()
![]()
B 200 PC 52
Etr.
|