PLANSEU TEHNOLOGIC SI GOLURI TEHNOLOGICE
Descriere generala.
Structura de rezistenta.
Sistemul de goluri.
Armarea golurilor.
2.14.1. Descriere generala
Planseul tehnol 222f51c ogic prezentat in continuare este specific unei parti principale din constructiile care deservesc tehnologia de fabricatie a fainii de grau.
Planseul este situat, conform cerintei TEMEI DE PROIECTARE, ca cota +3.95.
2.14.2. Structura de rezistenta
a. in plan orizontal
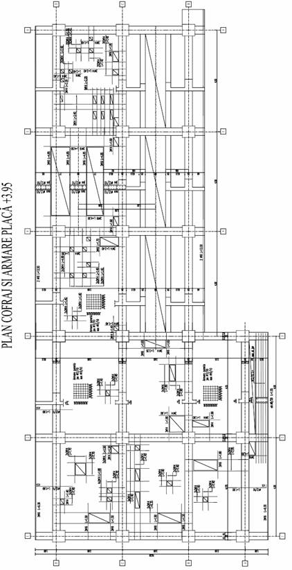
Platforma tehnologica este un planseu din beton armat de tip placa cu grinzi dispuse pe ambele directii: transversal si longitudinal.
S-au impus prin TEMA DE PROIECTARE doua deschideri de 3.00 m pe 5 travei si o deschidere laterala de 2.50 m doar pe doua travei. Dimensiunea traveei este de 4.50 m.
b. in plan vertical
Intreaga platforma este asezata pe stalpi din beton armat dispusi la intersectiile grinzilor. In acest mod, stalpii, impreuna cu grinzile, formeaza cadre pe ambele directii: transversal si longitudinal.
c. Infrastructura
Sistemul de fundare ales a fost de tip grinzi de fundare pe ambele directii.
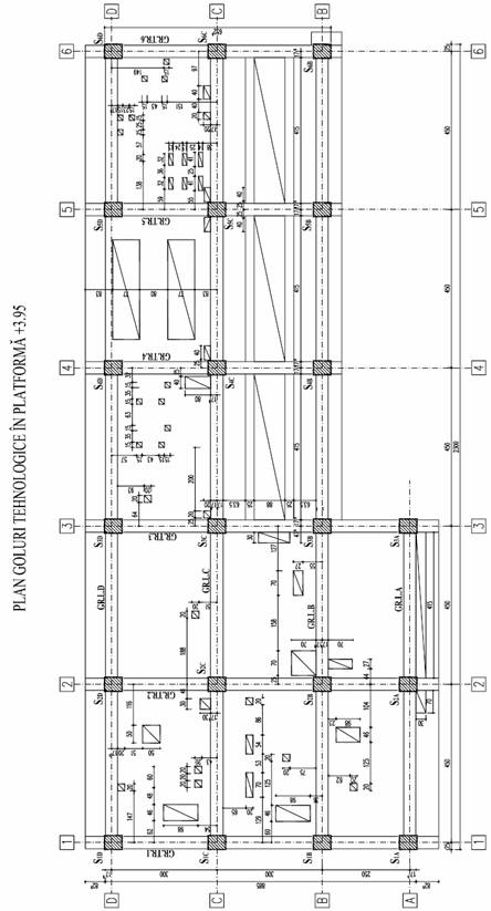
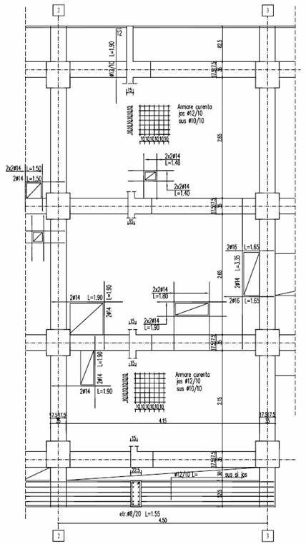
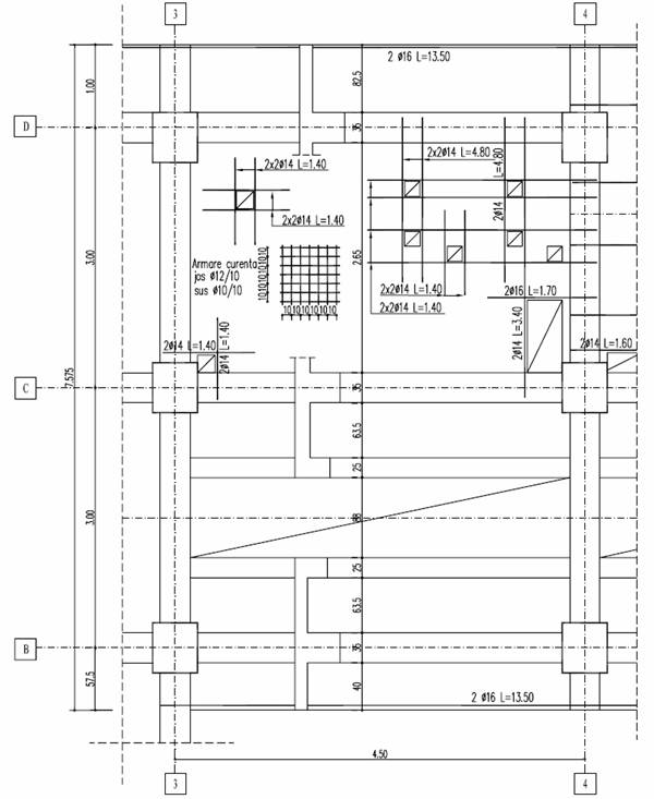
2.14.3. Sistemul de goluri
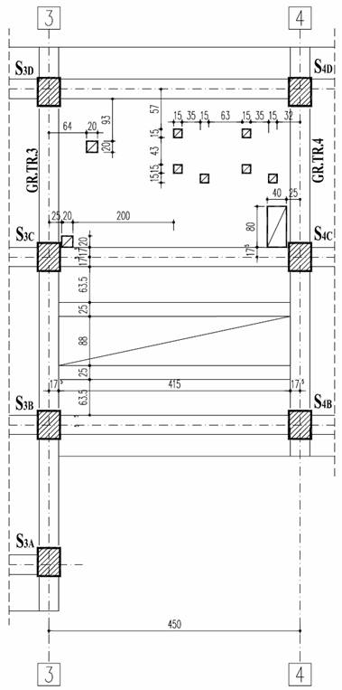
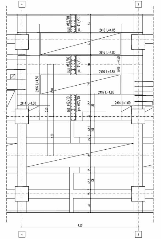
In deschiderea B-C si traveele 3-4, 4-5 si 5-6 sunt amplasate, conform TEMEI DE PROIECTARE, utilajele de macinare. Golurile tehnologice necesare sunt marginite longitudinal de grinzi. planseul, in aceasta zona, este de tip planseu cu placi, grinzi principale si grinzi secundare.
O situatie similara se afla in deschiderea C-D, traveea 4-5. Aici sunt dispuse sitele mecanice. Golurile tehnologice de dimensiuni mari si echipamentele aflate la intradosul platformei au condus la solutia ingrosarii placii.
Toate golurile tehnologice au fost amplasate conform TEMEI DE PROIECTARE.
2.14.4. Armarea golurilor
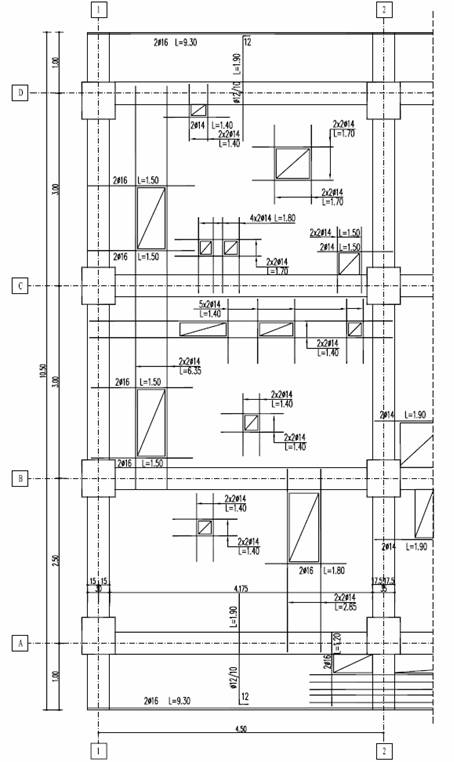
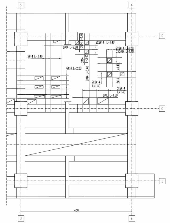
S-a respectat principiul de armare conform caruia golurile se bordeaza cu o cantitate de armatura cel putin egala cu cantitatea de armatura intrerupta de gol.
Armarea curenta rezultata din calcul a fost de tip plase din bare independente, dispuse jos si sus: jos Æ12/10 cm PC 52, sus Æ10/10 cm PC 52.
Armarea locala a golurilor tehnologice s-a facut pe patru laturi pentru golurile aflate in camp curent, pe trei laturi pentru golurile care au o latura comuna cu o grinda si pe doua laturi pentru golurile dispuse la colturi.
Pentru pozitionarea golurilor tehnologice s-a urmarit cu strictete ca dispunerea lor sa fie corespunzatoare necesitatilor tehnologice.
Dupa executie, pozitiile golurilor tehnologice nu au fost modificate.

![]()

![]()

![]()

![]()

![]()


![]()

![]()

![]()

![]()

![]()

|