SCARI
Scarile sunt subamsambluri structurale care asigura legatura pe verticala intre diferitele niveluri (etaje) ale cladirilor, precum si intre exterior si interior, prin planuri orizontale denumite trepte, asezate denivelat unele in report cu altele, de regula echidistante.
La proiectarea si realizarea scarilor treb 222c21c uie sa se asigure:
Circulatia comoda si sigura;
Fluienta evacuarii in caz de pericol, cu evitarea blocajelor;
Protectia in caz de incendiu contra propagarii focului si fumului;
Rezistenta la solicitari mecanice;
Aspect placut.
Aceste deziderete sunt cuprinse in "Teoria arhitecturii", STAS - 2965/87 si norme PSI
Scarile pot fi clasificate in functie de numeroase criterii. printre cele mai criterii sunt:
1.Dupa importanta functionala si destinatie:
Scari monumentala;
Scari principale;
Scari secundare;
Scari de incendiu;
Scari industriale.
2.Dupa pozitia fata de constructie:
Scari interioare;
Scari exterioare.
3.Dupa modul de comportare la foc:
Rezistente le foc;
Semirezistente la foc;
Semicombustibile;
Combustibile;
Inflamabile.
4.Dupa materialul din care au fost realizate:
piatra;
zidarie de caramida;
lemn;
beton simplu sau armat monolit;
beton simplu sau armat prefabricat;
metal.
5.Dupa forma in plan:
scara cu una sau mai multe rampe, continue sau cu podest de odihna;
scara balansata la capatul rampelor;
scara cu rampe curbe sau spiralate, continue sau cu podest.
6.Dupa inaltimea contratreptelor:
scara cu trepte joase h < 16.5cm.;
scara cu trepte cu inaltime medie 16.5 < h < 17.5cm;
scara cu trepte cu inalte 17.6 < h < 22.5cm.
scara abrupte 22.6 < h < 30cm
7.Dupa schema statica:
scara din elemente liniare;
scara din elemente de suprafata;
scara spatiala.
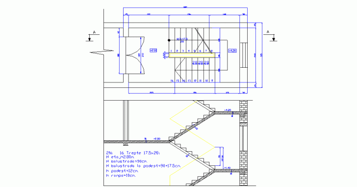
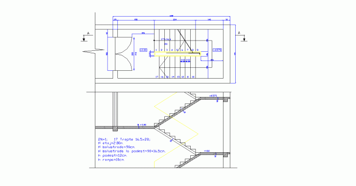
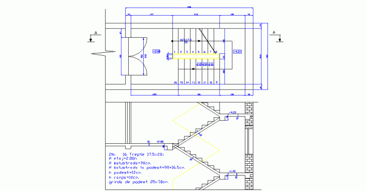
1.ELEMENTE GEOMETRICE }I DE PROIECTARE A SCARILOR
Treapta este elementul alcatuit dintr-o suprafata orizontala pe care se calca.
Contratreapta este elementul alcatuit dintr-o suprafata ce leaga doua trepte consecutive. Contatreptele pot fi verticale inclinate, cu nas (ciubuc) sau pot lipsi.
Dimensiunile acestor elemente sunt l - latimea treptei si h - inaltimea contratreptei. Relatia intre cele doua dimensiuni materializata in formula lui PLANDEL, este foartye importanta pentru realizarea unei scari corecte.
2h+l=62-64cm.
Pentru scari folosite la gradinite si crese se foloseste formula 2h+l=58-60cm.
Pentru scari cu trepte mai mici de 16cm. sau mai mari de 18cm. se foloseste formula 3h+l=80-85cm.
Numarul de trepte este rezultatul impartirii inaltimii nivelului la inaltimea treptei.
n = Hnivel/htrapta
Latimea scarii L se alege in functie de destinatia cladirii, de importanta scarii si de numarul de persoane evecuate in timpul normal de evecuare (vezi STAS 2956-58 - timp estimat 2.5-8min).
Numarul fluxurilor scarii F se determina in functie de destinatia cladirii, de importanta scarii si de numarul de persoane evecuate in timpul normal de evecuare .
F = N / C N - numarul de persoane evecuate
N - capacitatea de evecuare a unui flux
1 flux latimea 90-100cm.
2 flux latimea 110-120cm.
3 flux latimea 160-170cm.
5 flux latimea 270cm.
Linia de calcare (linia pasului) - proiectia in plan orizontal a liniei de folosire normala a treptelor ii se afla la 50-60cm. de vangul interor (ochiul scarii).
Rampa - succesiunea neintrerupta a minim 3 trepte si cel mult 16trepte. Daca numarul de trepte este mai mare de 16 trepte rampa trebuie intrerupta prin portiuni orizontale podest, palier sau odihna.
Podest sau odihna - portiuni orizontale ale rampelor cu latimea minim egala cu latimea celei mai late rampe intersectate.
Vanguri - elemente de rezistenta de tip grinda pe care reazema treptele. in functie de pozitie vangurille pot fi interioare, exterioare si centrale.
Balustrade - elemente de protectie, prevazuta la partea libera a rampei sau a podestului. inaltimea balustradei trebuie sa fie 80-90cm.
Mana curenta - elemente de constructie, prevazuta la partea superioara a balustradei, ajutand la sprijinire si ghidare in timpul circulatiei.
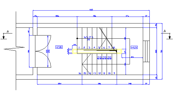
SCARA IN DOUA RAMPE CU INTOARCERE LA 1800











|