1. SCOPUL
Determinarea densitatii specifice pentru praful de ipsos.
2. DOMENIUL DE APLICARE
Toate fabricile Diviziei Gips Lafarge.
3. MOTIVUL ACTUALIZĂRII
Versiunea C a devenit versiunea D:
Modificarile:
- Titlul "Determinarea densitatii specifice" a fost pus locul titlului "Densitatea specifica a prafului de ipsos"
- S-a adaugat paragraful 5: "Observatie importanta"
4. PRINCIPIUL
Determinarea masei de pulbere necesara pentru a umple un volum cunoscut.
Trebuie avut în vedere f 16416x2311q aptul ca exista trei feluri de greutati volumetrice pentru pulberi (sau mase per unitate de volum):
Densitatea "materialului" produsului (greutatea absoluta) care este caracteristica produsului
Densitatea granulelor, tinând cont de porozitatea lor
Densitatea specifica a pulberii, tinând cont de spatiile de vid existente între granule (densitatea specifica a pulberii de ipsos)
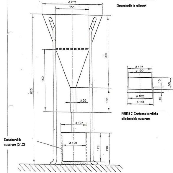
5. DISPOZITIVUL
Dispozitivul pentru turnarea pulberii în alama sau în otel inoxidabil, care cuprinde un container conic, sustinut de trei picioare si prevazut, la mijlocul înaltimii lui cu o sita fina patrata de 2 mm (2/25,4 inci) (vezi figura 1)
Dozarea containerului, cu capacitatea de 1 litru, prevazut cu o sectiune în relief (vezi figura 2)
Spatula de otel + lingura
Cântar (balanta) cu o acuratete de pâna la 1 gram
Nota importanta:
Masa folosita pentru efectuarea testelor trebuie sa fie foarte stabila si sa nu aiba nici un fel de denivelari sau vibratii. Acest lucru va asigura acuratetea rezultatelor.
6. PROCEDURA
Folosind acelasi echipament, se vor face doua masuratori în conformitate cu procedura descrisa mai jos.
Se cântareste containerul de masurat fara sectiunea în relief. Se considera m0 masa acestui container.
Se plaseaza cu sectiunea în relief sub vasul conic, se toarna pudra în sita în cantitati de câte 100 grame
Se amesteca cu o spatula în sita pentru ca pulberea sa cada prin sita în container (partea de jos a vasului conic este deschisa).
|
|
Document de calitate |
A5-0001-LG - Versiunea D |
|
Directia Industriala Directia de Transfer Tehnic |
DETERMINAREA DENSITĂŢII SPECIFICE |
Pagina 2/3 Data: 18 Octombrie 2004 |
Când containerul de masurat, prevazut cu sectiunea în relief, s-a umplut, se închide partea de jos a vasului conic, se scoate vasul conic cu grija, se detaseaza sectiunea în relief si se razuieste orice exces de pulbere, folosindu-se spatula aplicata în partea de sus a containerului; se începe dinspre centrul containerului si se acorda atentie ca pulberea întarita sa nu patrunda în containerul plin.
Nota:
Nu miscati containerul pâna nu ati îndeplinit aceasta ultima operatiune.
Se cântareste containerul si pulberea pâna la ultimul gram. Se considera m1 masa acestuia.
Nota:
Pentru obtinerea unui rezultat rapid, este posibil sa se foloseasca urmatoarea procedura:
Vânturati pulberea pentru ca ea sa se omogenizeze.
În cutie sau în containerul cu volumul V în cm3 si masa goala m0 în grame, ambele cunoscute, se toarna cu grija pulberea pe toata suprafata containerului.
În partea de sus a containerului terminati prin a forma un fel de con.
Scoateti sectiunea în relief si orice exces de pulbere, folosindu-se spatula aplicata în partea de sus a containerului; se începe dinspre centrul containerului si se acorda atentie ca pudra întarita sa nu patrunda în containerul plin.
Se cântareste containerul + pulberea, se considera m1 masa acestuia în grame.
7. REDAREA REZULTATELOR
Densitatea specifica a pulberii, în grame pe litru, este egala cu:
Metoda principala:
![]()
Metoda rapida:
în care:
m0 este masa, în grame, a containerului gol
m1 este masa, în grame, a containerului cu pulbere
Este necesar sa se indice alaturi de rezultate ce metoda a fost aplicata.
Daca rezultatele celor doua masuratori difera cu mai putin de 5%, se va lua în calcul valoarea densitatii pulberii neîntarite.
Daca rezultatele nu concorda, se vor repeta masuratorilor pâna ce ambele valori obtinute vor avea o diferenta mai mica de 5% în medie.
În cazul metodei rapide, o singura masuratoare este de ajuns.
Nota:
Metoda rapida nu poate fi folosita când controlul este efectuat pentru a evidentia o reclamatie legata de calitate, ci doar pentru a indica greutatea volumetrica.
Sursa: ISO 3049-1974 "Tencuieli din gips - Determinarea proprietatilor fizice ale pulberii"
|
|
Document de calitate |
A5-0001-LG - Versiunea D |
|
Directia Industriala Directia de Transfer Tehnic |
DETERMINAREA DENSITĂŢII SPECIFICE |
Pagina 3/3 Data: 18 Octombrie 2004 |

FIGURA 1 - Dispozitivul pentru determinarea greutatii pulberii neconsolidate.
|