In relativ multe situatii, rezemarea sau suspendarea realizata la instalarea unui suport dispare cand instalatia este in functiune, ca urmare a dilatatiilor sau contractiilor termice ale conductei si / sau utilajelor la care este conectata conducta sau pe care este instalat suportul (a).
De asemenea, din aceleasi motive, incarcarea reala a unui suport poate sa creasca atingand valori inacceptabile daca rezemarea sau suspendarea este rigida si impiedica deplasarea care rezulta din dilatatiile sau contractiile termice (b).
In astfel de situatii sunt necesari suporturi elastici care sa continue preluarea integrala sau macar partiala a incarcarii(in general a incarcarii din greutate) pe care o transmite conducta, in oricare din pozitiile care rezulta din deplasarile impusede dilatatiile sau contractiile termice ale conductei si / sau utilajelor.
In general, un suport elastic se bazeaza pe un arc elicoidal supus la compresiune de o forta axiala reprezentand incarcarea ("sarcina") preluata de suport. Forta axiala fiind proportionala cu sageata ("cursa") arcului, rezulta ca incarcarea preluata de suport este variabila:

Denumirea acceptata pentru
astfel de suporturi este cea de "suporturi elastici de sarcina variabila" sau,
mai simplu, "suporturi de sarcina variabila".

In functie de geometria arcului (diametrul "d" al sarmei sau barei din care se executa arcul si diametrul "D" de infasurare) rezulta " caracteristica elastica" exprimata in N/mm (sau daN/mm, etc.) reprezentand forta necesara pentru comprimarea arcului cu 1mm.
Teoretic, caracteristica elastica poate fi aleasa astfel incat "variatia sarcinii"(variatia incarcarii pe care o poate prelua suportul) sa ramana in limitele dorite in oricare punct intre pozitiile extreme ale cursei de lucru. Totusi, practic, o astfel de solutie nu este posibila pentru ca dimensionarea arcului trebuie efectu 131i84b ata tinand seama de rezistentele admisibile si de asigurarea impotriva pierderii stabilitatii.
Cand este necesara o limitare a variatiei sarcinii care nu poate fi
realizata cu un suport de sarcina variabila trebuie sa se utilizeze un suport
din categoria suportilor de sarcina
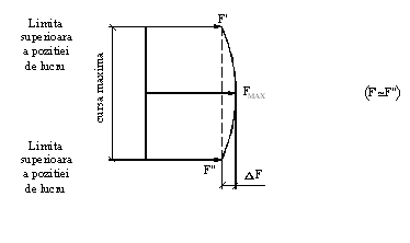
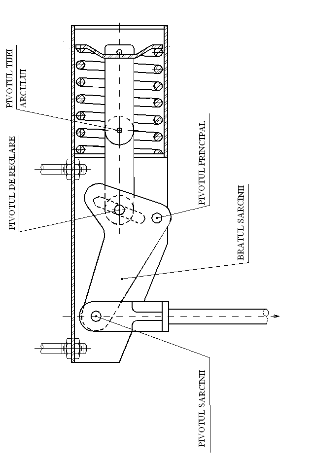
In principiu, un asa numit suport de sarcina constanta se bazeaza, de asemenea, pe un arc elicoidal supus la compresiune dar preluarea sarcinii se realizeaza prin intermediul unui sistem de parghii astfel incat, in oricare punct intre pozitiile extreme ale cursei de lucru, cuplul rezultat din sarcina sa ramana egal (sau aproximativ egal) cu cel rezultat din forta axiala din arc (vezi schemele de principiu anexate).
La orice arc elicoidal supus la compresiune (dar aproximativ la fel si la alte tipuri de arcuri), proportionalitatea intre forta axiala si deformarea elastica este reala numai in anumite limite. In domeniul apropiat de pozitia in stare libera a arcului, deformarea este posibila cu forte mai mici decat cele corespunzatoare caracteristicii elastice. De asemenea, in domeniul apropiat de pozitia "complet comprimat"a arcului (arcul blocat spira/spira), rigiditatea este din ce in ce mai mare (forte mai mari decat cele corespunzatoare caracteristicii elastice).
Llimitele uzuale intre care se asigura proportionalitatea intre forte si deformatii sunt evidentiate in schema urmatoare (F1, F2, F3=forte, f1 f2 f3=sageti):

![]()
![]()
Caracteristica
Elastica
Uzual: f1=(0,25.0,3)
f3; F1= (0,25.0,3) F3
f2=(0,8.0,9) f3 ; F2=(0,8.0,9)F3![]()
Un suport elastic poate fi utilizat numai
in limitele de proportionalitate ale arcului (f1.f2 si
respectiv F1.F2). Aceasta conditie se refera atit la
suportii elastici de sarcina variabila cat si la cei de sarcina
In afara de aceasta, trebuie sa se aiba in vedere necesitatea unor eventuale reglari la instalare care trebuie sa fie permise in ambele sensuri (adica pentru incarcari mai mici sau mai mari decat cele anticipate). Din acest motiv se ajunge in situatia ca domeniul real de utilizare al unui suport elastic trebuie sa fie mai mic decat cel corespunzator limitelor de proportionalitate ale arcului.
Variatia sarcinii corespunzatoare unui caz oarecare este definita de relatia:
n
In care,
Q'=sarcina (incarcarea preluata de suport) in pozitia initiala (pozitia de instalare)
Q"=sarcina (incarcarea preluata de suport) in pozitia finala (pozitia de lucru) corespunzand unei deplasari Dh fata de pozitia initiala.
Aceasta relatie se refera atat la suportii
de sarcina variabila cat si la cei de sarcina
In cazul suportilor de
sarcina variabila, relatia privind variatia sarciniipoate fi explicata in functie de
caracteristica elastica (K) si de deplasarea (cursa) pe verticala (Dh) efectuata de suport intre pozitiile
corespunzatoare celor doua incarcari (Q'si Q"):
Cand deplasarea Dh este descendenta Cand deplasarea Dh este ascendenta


![]()
Q'-Q"=K Dh Q'-Q"=K Dh
![]()
![]()
![]()
In ambele situatii rezulta:
n
=![]()
Daca se impune o anumita limita a variatiei sarcinii se poate determina in acest fel ce caracteristica elastica trebuie sa aiba arcul suportului;
k![]()
![]()
![]()
Din relatiile de mai
sus rezulta concluzia ca variatia sarcinii este cu atit mai mica (deci o
situatie mai favorabila)cu cat caracteristica elastica a arcului suportului
este mai coborata("arc mai moale").Acest fapt trebuie avut totdeauna in
vedere la alegerea suportilor de sarcina variabila pe baza tabelelor din
cataloagele fabricantilor.Totusi trebuie notata in acelasi timp si problema
economicitatii:
Pentru o anumita incarcare (Q=Q")si 0
deplasare (
) impusa, pretul suportului este cu atat mai ridicat cu
cat caracteristica elastica este mai coborata(deci nimic nu este
gratis).
Inca o concluzie care rezulta din relatia de mai sus este ca variatia sarcinii este proportionala cu marimea cursei (fapt de altfel evident chiar din schema F-f a arcului). Din acest motiv, unul din criteriile de baza caruia se decide daca se accepta sau nu utilizarea suportilor de sarcina variabila pentru un anumit serviciu, este chiar marimea cursei.
In cazul suportilor de sarcina
ν
(
In plus, trebuie remarcat faptul ca la
astfel de suporti, in functie de varianta constructiva, variatia sarcinii
poate sa nu fie proportionala cu cursa. Un exemplu citat in acest sens in
unele documente este cel cand abaterea maxima fata de sarcina

Cerintele privind utilizarea obligatorie a unui suport
de sarcina
Criteriul de baza este limitarea variatiei sarcinii. Limita acceptata este insa determinata de diverse considerente: mentinerea tensiunilor in conducta respectiva in limite admisibile, diminuarea reactiunilor pe racordurile utilajelor (in special in cazul utilajelor dinamice) etc.
Limita maxima admisa in codul ASME B31.1 pentru variatia sarcinii este de 25%. Aceeasi limita este mentionata in MSS SP-58. In alte documente limita admisa este de 20%. Totusi, independent de restrictiile de acest fel, limita trebuie sa fie analizata in functie de efectele pe are care le variatia sarcinii asupra conductei sau racordurilor utilajelor. Unele specificatii limiteaza, spre exemplu, variatia sarcinii la numai 10% in cazul unor asa numite sisteme critice:
-Conducte care lucreaza la temperaturi ridicate in domeniul fluajului la care sunt anticipate fenomene de autopretensionare,
-Conducte la si de la utilaje dinamice sau alte utilaje la care se impun incarcari mici, pe racorduri, etc.
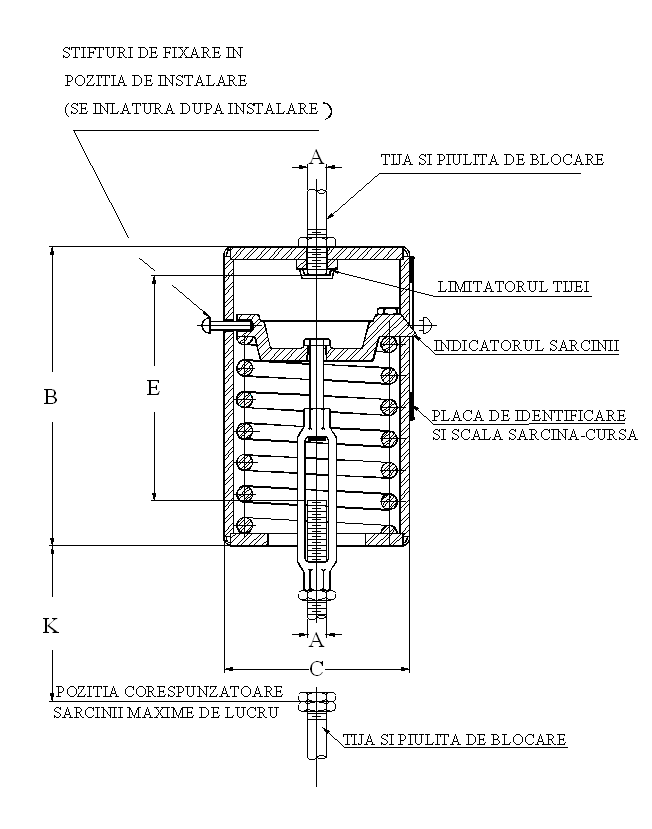
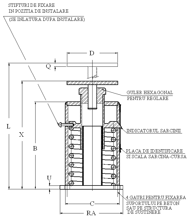
Tipurile de suporti elastici de la diversi fabricanti( sau chiar de la acelasi fabricant) includ un numar mare de variante constructive.
Din
punct de vedere al modului de instalare, atat suportii de sarcina variabila
cat si cei de sarcina
Pentru suportii de sarcina variabila, majoritatea fabricantilor au adoptat solutia incadrarii in trei serii alese astfel incat fiecare serie sa poata fi utilizata pentru o deplasare (cursa) maxima dubla fata de cea precedenta:
-La prima serie, cate un arc cu N spire pentru curse maxime pana la 37,5mm(sau 40mm sau 50mm).
-La a doua serie, cate un arc cu 2N spire pentru curse maxime pana la 70mm(sau80mm sau100mm).
-La a treia serie, cate doua arcuri cu 2N spire pentru curse maxime pana la 140mm(sau160mm sau200mm).
In acest
fel, pentru un anumit serviciu, adica pentru o anumita sarcina Q si o anumita
deplasare (cursa)
, la alegerea suportului apar mai multe solutii dar dintre
ele trebuie adoptata cea care satisface conditia impusa privind variatia
sarcinii.
(In acest sens vezi anexa cu tipul de tabel pentru alegerea suportilor elastici de sarcina variabila.)
Pentru suporti de sarcina constanta, detaliile constructive si uneori chiar sistemul pe care se bazeaza suportii respectivi, difera de la un fabricant la altul. Unele detalii sunt prezentate in anexe.
Alegerea suportului din catalogul unui fabricant se bazeaza exclusiv pe sarcina Q care trebuie preluata si pe incadrarea cursei dorite in limitele precizate in catalog.
OBSERVATII DIVERSE
Atat in cazul suportilor de sarcina variabila cat si in cazul
celor de sarcina
Chiar si in prezent, desi mijloacele pentru calculul sarcinilor si deplasarilor sunt mai perfectionate decat in trecut, poate sa se constate ulterior, dupa procurarea suportului, ca incarcarea, calculata (sarcina pentru care a fost cerut suportul) difera de cea necesara sau ca trebuie majorata deplasarea (fata de cea ceruta). Din acest motiv se recomanda ca, pentru siguranta, incarcarile si deplasarile specificate sa includa rezerve.
Unele
specificatii impun, spre exemplu,ca in cazul suportilor de sarcina
20% fata de valoarea ceruta si de asemenea o depasire
a deplasarii cerute cu 20% dar min.25mm.
In cazul conductelor pentru gaze sau vapori,daca incercarea la presiune se face cu apa
incarcarea in timpul incercarii la presiune depaseste cu mult incarcarea pe care trebuie sa o preia suportul in conditii de lucru. In astfel de cazuri, de obicei, suportul este cerut pentru conditiile de lucru iar in timpul incercarii la presiune trebuie sa ramana blocat, asa cum a fost livrat. Totusi este important ca furnizorul sa cunoasca de la inceput ce incarcare urmeaza sa preia suportul in stare blocata,in timpul incercarii la presiune.
Aceasta
conditie se refera atat la suportii de sarcina variabila cat si la cei de
sarcina
In afara de suportii elastici de sarcina variabila sau de
sarcina
Principiul de lucru rezulta din detaliile respective.
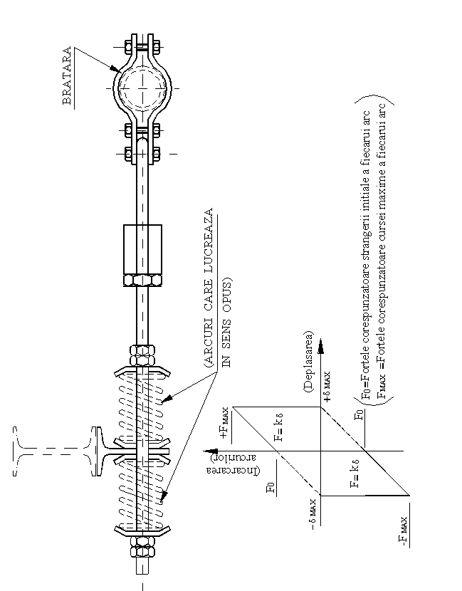
Varianta normala este cea cu un singur arc, pretensionat. Daca dispozitivul este supus unei incarcari axiale mai mare decat forta corespunzatoare pretensionarii initiale a arcului, arcul este comprimat in continuare indiferent de sensul incarcarii axiale Dispozitivul lucreaza deci ca o bara rigida pana la o anumita incarcare axiala si dupa aceea ca un suport elastic de sarcina variabila, comprimand in continuare arcul indiferent de sensul incarcarii axiale.
ANEXE:
ANEXA 1 - Suporturi elastici de sarcina variabila (3 pagini).
ANEXA 2 - Alegerea suporturilor elastici de sarcina variabila (2pagini) .
ANEXA 3 - Suporturi de sarcina
ANEXA 4 - Dispozitiv pentru diminuarea vibratiilor(2 pagini).
ANEXA 5 - Controlul vibratiilor-SWAY BRACE (2 pagini).
ANEXA 6 - Lista potentiali furnizori suporturi speciale pentru conducte.
ANEXA 7 - SLIDING PLATES "FIREGLASS"(Placute alunecatoare cu coeficient de frecare redus) (7 pagini)
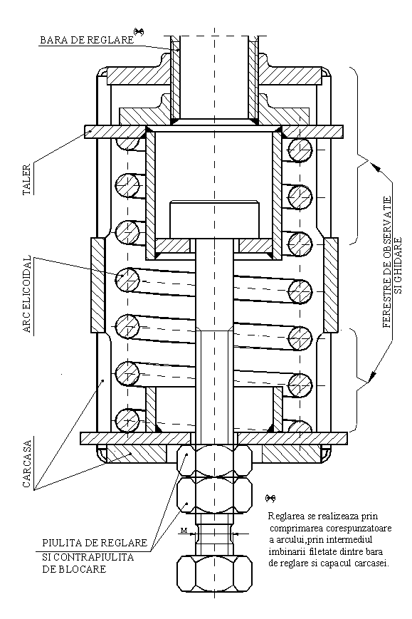
ANEXA 1
Suporturi elastici de sarcina variabila


Variante de instalare

ANEXA 2
Tip de tabel pentru
Alegerea suporturilor elastici de sarcina variabila
|
( DOMENIUL DEPLASARILOR) |
MARIMEA SUPORTULUI |
|||||||||||||||||||
|
(un arc cu n spire) |
(un arc cu 2 n spire) |
(doua arcuri cu 2 n spire) | ||||||||||||||||||
|
| ||||||||||||||||||||
|
| ||||||||||||||||||||
|
|
( |
|||||||||||||||||||
" SERIA"
SUPORTULUI
Alegerea suporturilor elastici de sarcina variabila pe baza tabelelor din cataloage
Relatii de calcul
Pentru deplasari Pentru deplasari
descendente
ascendente


![]()
![]()
Q'-Q"=k
Q'-Q"=k ![]()
(Q'-Q"
;
) (Q'-Q">0;
>0)
![]()
![]()
![]()
V,%=
=
max,%
k![]()
![]()
(k=caracteristica elastica a arcului
VMAX=val. maxima admisa pentru variatia sarcinii)
|
Initiale Q=Q
Vmax |
k |
Incadrarea incarcarii De lucru Q=Q" In tabelul din catalog PT kcat= |
Calculul Incarcarii de Instalare Q" |
Verificarea ca Q' se afla in aceeasi Coloana Din tabel |
Exemplu:
Q=Q"=10500N;
=-13.5mm;V![]()
k
kCAT=133,3; Q"CAT=10,00.10,66Kn
Q'-Q"=k
Q'=k
+Q"
=-133,3x(-13,5)+10500=8700N
(Q'CAT=8,66.9,33Kn)
![]()
![]()
![]()
V,%=
=![]()
ANEXA 3
Suporturi de sarcina constanta

(Suportul de sarcina constanta se bazeaza pe un principiu mecanic simplu:
Pentru a realiza o forta constanta de sustinere,momentul sarcinii fata de pivotul central trebuie egal cu momentul dat de forta elastica a arcului,pe intregul domeniu al deplasarii)

(Cu privire la aceasta schema: se iau trei pozitii ale cursei sarcinii-superioara, mijlocie si coborata- si se scriu momentele pentru aceste pozitii fata de pivotul central)
F1c1=Wb1
F2a2=Wb2
F3a3=Wb3
![]()
![]()

ANEXA 4
Dispozitiv pentru diminuarea vibratiilor


ANEXA 5
- Controlul vibratiilor-SWAY BRACE
ANEXA 6
LISTA POTENTIALI FURNIZORI
SUPORTURI SPECIALE PENTRU CONDUCTE
GRINELL Corporation
1341 Elmwood Avenue
Cranston, RI 02910-3800
Fax 401-781-7150
COMET-Pipe supports Lts.
Savanage Road, Droitwich, Worceshire,
WR9 9BH, England reprezentanta Romania -DAWCUL LTD.
MECA SUD
Z.I. 64300 Ortez-France
Fax 59699422
Reprezentanta Romania TRANSNAL
Str. Elena Doamna no. 1,Bl.32A, Et.2Ap.8, Ploiesti
CARPENTER &PATTERSON
Hentaes Lane, Welshpool,
Powys SY217BQ
Tel.Welshpool 2061
Telex 35186
LISEGA Gmbh
Industriegebiet Hochkamp
Postfach 1340
D-2730 ZEVEN
Fax 04281-713214
HYDRA
D-7530 Pforzheim-Ostliche
Karl Friedrich Strabe
Potfach 1280
DAWCUL LIMITED
40-42 West Street, Marlow, Bucks SL7 2NB
tel(0/628)472737
(0/628) 890055
ANEXA 7
SLIDING PLATES "FIREGLASS"
(Placute alunecatoare cu coeficient de frecare redus)
|