ARZATOARE GAZ PROGRESIVE
C 30 GX 507 / 8
Arzatoarele pe combustibil gazos C 30 GX 507 / 8 sunt aparate monobloc cu aer insuflat, cu 2 trepte de functionare, cu emisii poluante (NOx) reduse, cu functionare progresiva sau modulanta prin asociere cu un regulator electronic PI sau PID (optional).
Pot fi folosite pe orice tip de cazan si sunt disponibile in doua variante constructive in functie de lungimea capului de combustie.
Arzatorul poate utiliza toate tipurile de gaz din tabelul de mai jos, sub rezerva unui reglaj apropiat de valorile indicate in functie de presiunile disponibile, tinand seama de variatia de putere calorifica (Hi) a acestor tipuri de gaz.
|
Tip gaz |
Grupa |
Pn [mbar] |
Pmin [mbar] |
Pmax [mbar] |
Hi la 00C si 1013 mbar [kWh/m3] |
Tip gaz |
|
|
min |
max |
||||||
|
Gaz natural |
2H |
|
|
|
|
|
G20 |
|
Gaz natural |
2L |
|
|
|
|
|
G25 |
|
Propan comercial |
3P |
|
|
|
|
|
G31 |
Curbele de putere
|
Putere |
C 30 GX 507/8 |
|
|
min |
max |
|
|
Arzator [kW] |
|
|
|
Putere minima pe prima treapta de functionare [kW] |
|
|
|
Generator [kW] |
|
|
|
Debit gaz natural la 150C si 1013 mbar Gaz natural grup H [m3/h] Hi=9,45 kWh/ m3 Gaz natural grup L [m3/h] Hi=8,13 kWh/ m3 Propan P [m3/h] Hi=24,44 kWh/ m3 Masa volumica kg/m3=1,98 |
|
|

|
Tip arzator |
Tip gaz |
Presiune gaz [mbar] |
Model vana gaz cu filtru incorporat |
Filtru exterior Rp |
Presostat de gaz |
C 30 GX 507 |
G 20 |
|
MB VEF 412 B01 S10 |
|
GW 150 A5 |
|
|
MB VEF 407 B01 S30 |
|
GW 500 A5 |
||
|
G 25 |
|
MB VEF 412 B01 S10 |
|
GW 150 A5 |
|
|
|
MB VEF 407 B01 S30 |
|
GW 500 A5 |
||
C 30 GX 508 |
G31 |
|
MB VEF 407 B01 S30 |
|
GW 500 A5 |
|
|

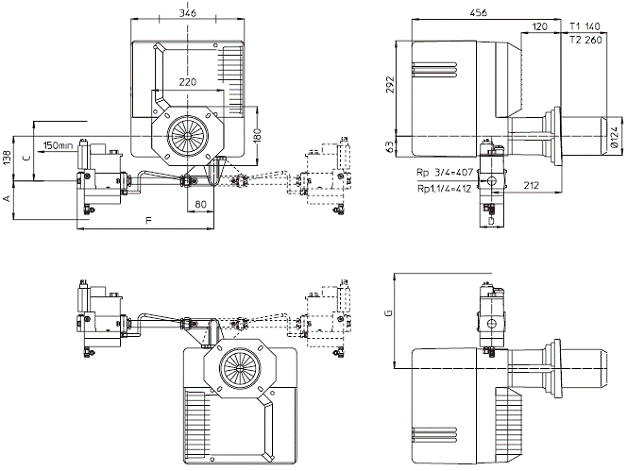
Comanda amestecului de aer:
Y10 - Servomotor,
- Camera aer,
M1 - Motor ventilator,
- Carcasa (spiralata in partea superioara),
- Placuta dispozitiv de ridicare,
- Placuta identificare arzator,
- Cap de combustie,
F6 - Presostat aer,
- Clema pentru cablurile electrice, tuburile de presiune
de la rampa de gaz si racordul electric la cazan,
- Cupla cu 7 poli,
- Cupla cu 4 poli pentru conectare termostat treapta 2,
B1 - Punte ionizare,
A1 - Automat de comanda si securitate,
- pF - Priza de presiune focar,
- pL - Priza de presiune aer,
- pG - Priza de presiune gaz,
- Flansa racordare rampa de gaz,
T1 - Transformator de aprindere,
- Carcasa de protectie,
- Buton de rearmare sau de oprire arzator
(cu indicator luminos in caz de defect).
Dimensiuni de gabarit, spatiu necesar

|
Vana |
Functionare |
A |
C |
D |
F |
G |
|
|
AGP |
|
|
|
|
|
|
|
AGP |
|
|
|
|
|
Spatiu necesar
Distanta care trebuie sa fie lasata de fiecare parte a arzatorului este de 0 m pentru a permite o eventuala interventie.
Ventilarea cazanului
Volumul de aer proaspat necesar este de 1,2 m3/kWh.
|