ALTE DOCUMENTE
|
|||||||||
9. INTERFERENŢA LUMINII
a) Intensitatea luminii produsa de o unda electromagnetica într-un punct.
si, pentru ca în M sa se obtina franja luminoasa de ordinul k trebuie sa îndeplineasca conditia (9.38), adica:
![]()
astfel încât:
(9.41)
Pentru a calcula diferenta d2-d1 se scrie teorema lui Pitagora în triunghiurile dreptunghice P1S1M si P2S2M, scazându-se apoi relatiile obtinute. Rezulta:
d12=D2+(x-a)2
d22=D2+(x+a)2
si apoi:
(d2-d1)(d2+d1)=4xa. (9.42)
Se noteaza x=xk pentru a ilustra ca în punctul M se obtine maximul luminos de ordinul k si se aproximeaza:
d2+d1=2D (9.43)
atâta timp cât 2a<<D. Se obtine:
![]()
si având în vedere conditia (9.41) rezulta relatia:
(9.44)
ce stabileste pozitia maximului luminos de ordinul k pe ecran.
Pentru a obtine în punctul M cea de=a k-a franja întunecata se pune conditia (9.39):
si se obtine:
Interfranja, definita ca distanta pe ecran dintre doua maxime sau doua minime luminoase succesive, este data, de exemplu, cu ajutorul relatiei (9.44) prin expresia:
(9.45)
depinzând numai de lungimea de unda a radiatiei incidente si de parametrii geometrici (D,2a) ai dispozitivului, franjele fiind echidistante.
Undele (1),(2),(3),.. Dau prima suprapunere,franje de interferenta prin refexie localizate la infinit,iar undele (1'),(2'),(3'),...dau prin suprapunere,franje de interferenta prin transmisie localizate la infinit.Cu ajutorul unor lentile convergente dispuse pe traiectoria razelor se obtin figuri de interferenta localizate în planul focal al lentilelor.
Conform formulelor lui Fresnel,daca se considera amplitudinea undei incidente egala cu unitatea , atunci amplitudinile undelor refractate sunt:
(1)0,20; (2) 0,09 si (3) 0,008, iar ale undelor refractate sunt:
(1')0,96; (2') 0,038 si (3') 0,001
În consecinta , în aparitia fenomenului de interferenta contribuie semnificativ numai primele doua raze,contributia celorlalte raze urmând a fi neglijate pentru moment.
Analizând pentru început , obtinerea franjelor de interferenta prin reflexie se considera o sursa monocromatica punctiforma S care emite un fascicul de lumina sub un unghi de grosime d,având indicele de refractie n.Fie n0 indicele de refractie al mediului în care se afla lama plan-paralela.
Datorita simetriei dispozitivului,franjele sunt simetrice fata de normala la suprafata lamei ce trece prin punctul în care se afla sursa S,au forma unor inele concentrice alternativ luminoase si întunecate si se numesc inelele lui Haidinger. Franjele se pot vizualiza pe un ecran E dispus în planul focal al lentilei convergente L,fig 9.9.
Fig 9.9 Interferenta prin reflexie obtinuta cu lama plan-paralela
Fasciculele (1) si (2) care se suprapun în punctul P reprezinta fasciculul direct reflectat în A si respectiv fasciculul refractat în A, refractat apoi în B si initial refractat în C.Diferenta de drum optic între aceste doua fascicule este, conform fig 9.9:
(9.46) unde termenul
apare datorita
reflexiei dintr-un mediu mai putin refringent pe un mediu mai refringent
(n>n0) în punctul A.Într-adevar , experientele lui
Fresnel si ale lui Wiener referitoare la efectele chimice ,ale lui Drude
si Nernst asupra efectelor fluorescente si ale lui Ives si Fry
asupra efectului fotoelectric arata un salt de faza de
radiani,caruia îi
corespunde o diferenta de drum
la reflexia dintr-un
mediu cu indicele de refractie mai mic pe un mediu cu indice de
refractie mai mare.
Deoarece:
expresia diferentei de drum optic (9.46) capata forma:
(9.50) sau:
(9.51)
Întrucât franjele de interferenta care se obtin în planul focal al lentilei convergente depinde ca pozitie de diferenta de drum optic care este functie numai de unghiul de incidenta (9.51) , acesta se numesc franje de egala înclinare.
În punctul P va exista o
franja luminoasa daca este îndeplinita conditia
adica:
Z (9.52) si o franja
întunecata atunci când
adica:
Z (9.53)
În cazul interferentei obtinuta prin transmisie cu lama plan-paralela, fasciculele care se suprapun sunt (1') si (2') si dau în planul focal al lentilei L1 franje cu aceleasi proprietati ca ale celor obtinute prin refelexie,fig 9.10.
Fig 9.10 Interferenta prin transmisie obtinuta cu lama plan-paralela
Diferenta de drum optic
între fasciculele (1') si (2') care
parcurg drumurile
si respectiv
este:
care se aseamana relatiei (9.46),dar
lipseste termenul
deoarece acum în
punctul C are loc reflexia luminii dintr+un mediu mai refringent pe un mediu
mai putin refringent (n>n0).
Se observa ca:
astfel ca dupa înlocuiri în (9.54)
si având în vedere legea Snellius+Descartes pentru refractia luminii
(9.49), se obtine diferenta de drum optic:
sau:
(9.55)
Franjele luminoase se obtin în conditia:
Z (9.56) iar franjele întunecate în conditia:
, k Z (9.57)
Din compararea conditiilor
(9.54),(9.53) cu conditiile (9.56), (9.57) se constata ca între
franjele de interferenta prin reflexie si prin transmisie, de
acelasi ordin, exista o diferenta de faza de
radiani si , în
consecinta , fenomenele de interferenta produse prin
reflexie sunt complementare celor produse prin transmisie.
20Pana optica reprezinta un mediu optic semitransparent cu fete plane si de grosime variabila, cu ajutorul caruia se obtin franje de interferenta în reflexie sau în transmisie.Pentru variatii mici ale grosimii penei si pentru incidente ale radiatiei apropiate incidentei normale, franjele sunt localizate pe fatt penei si se numesc franje de egala grosime sau franjele lui Fizeau,fig 9.11.
Franjele de interferenta în reflexie se obtin pe suprafata care în fig 9.11 este ipotenuza OM a penei optice si se datoreaza suprapunerii fasciculelor (1) si (2) între care exista o diferenta de drum optic:
(9.58) termenul
datorându-se reflexiei
aer-sticla.
În ipoteza incidentei cvasinormale se poate aproxima :
, unde d este grosimea penei în punctul C de pe
ipotenuza OM si atunci diferenta de drum optic este:
(9.59) ce justifica denumirea de
franje de egala grosime (diferenta de drum optic depinde numai de
grosimea penei în punctul de incidenta).
Franjele luminoase se obtin pe
suprafata ipotenuzei în punctele în care
adica:
iar franjele întunecate în punctele în
care
adica:
![]()
Din relatia (9.59) rezulta
ca în vârful O al penei optice se obtine o franja
întunecata deoarece pentru d=0 rezulta
.
În cazul interferentei în transmisie fasciculele (1') si (2') formeaza figura de interferenta tot pe suprafata ipotenuzei penei optice , franjele obtinute în acest caz fiind complementare celor obtinute prin reflexie, deoarece diferenta de drum optic este:
(9.60) pentru grosimi lent variabile
ale penei si incidenta cvasinormala a radiatiei.
Un dispozitiv experimental utilizat pentru obtinerea interferentei în reflexie cu pene optice îl reprezinta dispozitivul numit " inelele lui Newton " în care pana optica o reprezinta regiunea de grosime variabila a aerului cuprins între fata unei lentile plan -convexe L si o oglinda plana OG, fig 9.12.
(9.61) unde termenul
apare datorita
reflexiei aer-sticla. Aproximând:
unde:
d=d0+x, diferenta de drum optic se scrie:
(9.62) întrucât n0=1.
Aplicând teorema înaltimii pentru AD=rk se obtine:
(9.63) unde R este raza
convexitatii lentilei.
Din relatiile (9.62) si (9.63) rezulta:
si punând conditia de minim
luminos:
se obtine:
de unde rezulta raza inelului
întunecat de ordinul k:
(9.64)
În cazul întâlnit cel mai des experimental , cazul în care lentila se sprijina pe oglinda, d0=0 si atunci:
l fiind lungimea de unda a radiatiei incidente.
9.4 Unde optice stationare
Prin reflexia luminii pe oglinzi se pot obtine în regiuni limitate din spatiu unde optice stationare.
a)Experientele lui Wiener
Experientele lui Wiener 1890 pune
în evidenta existenta undelor optice stationare si
arata ca vectorul important din punct de vedere optic (al impresiei
vizuale) din unda elecromagnetica este vectorul intensitate câmp electric
ce reprezinta
perturbatia luminoasa (optica).
O sursa plana trimite un fascicul paralel de raze monocromatice în incidenta normala pe o oglinda plana OG cu un coeficient de reflexie R 1 fig 9.13.
l
OG
j din expresia undei reflectate (9.68) si din expresia intensitatii luminii (9.70) apare datorita reflexiei aer-sticla, adica dintr-un mediu mai putin refringent pe un mediu mai refringent si este p radiani.
Valorile maxime ale intensitatii luminii Imax=4I0 se obtin pentru înaltimile z care îndeplinesc conditia:
de unde rezulta:
(9.71)
Se constata ca, în acord cu rezultatele experimentale, primul maxim luminos se obtine la înaltimea:
(m=1), iar urmatoarele la
înaltimile: ![]()
s.a.m.d,
adica sunt distantate succesiv cu înaltimea
.
Minimele luminoase Imin=0 se obtin pentru înaltimile z pentru care:
adica:
(9.72)
Aceste rezultate confirma
odata cu existenta undelor optice stationare si faptul
ca intensitatea câmpului electric
este vectorul perturbatiei luminoase care
corespunde actiunii fotochimice a
radiatiei optice înregistrate si care reprezinta functia de
unda a radiatiei optice.
În final, se precizeaza ca presupunând componentele câmpului magnetic din unda incidenta si refractata:
si respectiv :
si repetând calculele pentru
intensitatea luminii în P, se obtine:
(9.73)
Acesta înseamna ca franjele luminoase se obtin la înaltimile:
iar franjele întunecate la
înaltimile:
contrar datelor experimentale.
Se mentioneaza , de asemenea
ca pentru un aranjament experimental ca în fig 9.14, unde oglinda OG este
usor curbata (raza de curbura foarte mare), filmul F este
impresionat sub forma unor inele concentrice cu centrul în C; în punctul C
formându-se o franje centrala (disc) întunecata.Acest fapt, confirma
si el aparitia unui salt de faza de p
radiani ,adica o diferenta de drum
,la reflexia luminii dintr-un mediu cu indice de refractie mai mic pe un mediu (dielectric) cu indice de refractie mai
mare.
F
BG
Fig.9.14.Experienta lui Wiener cu oglinda convexa
b)Fotografierea culorilor
Principiul fotografierii interferentiale a culorilor a fost propus de Lippmann în anul 1891 care a primit, de altfel, si premiul Nobel (1908) pentru acesta descoperire.
Metoda lui Lippmann are la baza formarea undelor electromagnetice stationare pentru fotografierea culorilor.În principii,dispozitivul este alcatuit dintr-un strat de emulsie fotografica (de exemplu,bromura de argint) EF separata de exterior printr-un strat solid transparent ST, fig 9.15.
l ,în
emulsie apar straturi reflectatoare semitransparente, de
argint,echidistantate de
, numite plane Lippmann.
Daca pe stratul de emulsie cade lumina provenind de la un obiect , vor exista plane ventrale pentru fiecare lungime de unda lI ce compune lumina incidenta. Dupa developare, placa fotografica este iluminata în lumina alba si se reflecta numai undele cu lungimile de unda lI ,continute în lumina provenind de la obiect.Rezulta ca imaginea obiectului fotografiat apare printr-o reflexie selectiva, deoarece numai pentru undele cu lungimile de unda lI sunt satisfacute conditiile de maxime de interferenta.Dificultatea mentinerii unor emulsii fotografice de grosimi considerabile a facut ca metoda lui Lippmann sa fie putin folosita.
9.5Interferenta fasciculelor optice multiple
Prin suprapunerea unui numar mai mare (dar finit) de unde electromagnetice provenind de la o sursa coerenta se obtine un fenomen de interferenta multipla caracterizat de un tablou de franje mai fine, mai înguste si cu intervale întunecoase mai mari între ele decât în cazul interferentei a doua fascicule.
Fie un fascicul de lumina format din N raze de lumina paralele,echidistante care es concentreaza în planul focal al lentilei convergente L unde interfera ,fig 9.16
Undele care se suprapun în punctul P îndeplinesc conditiile de coerenta,iar diferenta de drum optic dintre doua unde consecutive este (v.fig 9.16):
(9.74)
Daca mediul în care se propaga undele este aerul iar, a este distanta dintre doua raze paralele consecutive.Diferenta de drum d îi corespunde o diferenta de faza:
, (9.75) unde l
este lungimea de unda a luminii fasciculului de raze.
Între undele emise de sursa
coerenta si focalizate în planul focal al lentilei exista o
corelatie a fazelor , în sensul ca fiecare unda are un defazaj
fata de unda
antecedenta.
Intensitatile câmpurilor electrice ale câmpurilor undelor optice care ajung în punctul P sunt:
(de la
sursa S1)
(de la sursa S2)
(de la sursa Sm)
(de la sursa SN) daca se considera ca undele se
propaga în lungul axei Oz, sunt de aceeasi frecventa
si sunt plan polarizate.
Intensitatea câmpului electric rezultant în punctul P este:
(9.76)
Suma progresiei geometrice de ratie eiDj din relatia (9. ) este:
,
astfel ca intensitatea câmpului electric rezultant în P se scrie:
(9.77)
Intensitatea luminii în punctul P este:
,
adica:
(9.78)
Rezulta ca intensitatea luminii în punctul P are expresia:
(9.79) unde functia:
(9.80) se numeste functie generatoare.
Intesitatea luminii în P are valori minime Imin=0 atunci când:
![]()
adica:
(9.81)
unde
cu exceptia multiplelor lui N;
deoarece pentru aceste
valori apare o nedeterminare în expresia functiei generatoare. Pentru a
ridica nedeterminarea, se calculeaza cu ajutorul regulei lui l'Hospital
limita:
(9.82)
Rezulta ca pentru o diferenta de faza:
(9.83)
se obtin maximele:
(9.84)
Din relatiile (9.81) si (9.83) se constata ca între doua maxime apar (N-1) minime, astfel încât exiata (N-2) maxime secundare a coror pozitie este data prin rezolvarea ecuatiei trenscendente:
(9.85)
În fig. 9.17 se
reprezinta dependenta
pentru N=6, si remarca valorile semnificative ale
intensitatilor maximelor principale.

Fig. 9.17 Dependenta I(Δφ) pentru interferenta
a sase unde
Obtinerea fasciculelor optice multiple înseamna, din punct de vedere experimental divizarea unui fascicul într-un numar mare de fascicule care sa îndeplineasca conditiile de coerenta. Un astfel de dispozitiv experimental este lama cu fete plan-paralele cu care se obtin fenomene de interferenta cu fascicule reflectate sau transmisie (fig.9.8).
Pentru a evita scaderea amplitudinii razelor reflectate si transmise în raport cu amplitudinea razei incidente, fetele lamei sunt semiargintate.
Fenomenele implicate în reflexia si transmisia luminii la suprafata de separatie a doua medii modifica amplitudinea (si intensitatea ) undelor.
Prin definitie, raportul:
(9.86)
se numeste factor de reflexie sau putere reflectatoare a unei suprafete, unde:
(9.87)
este coeficientul de reflexie complex, ρ fiind fractiunea de
amplitudine reflactata, iar ψr variatia fazei la
reflexie. În cazul reflexiei pe dielectrici r este real, iar
sau π, în timp ce
pentru reflexia pe metale r este complx.
Analog raportul:
(9.88)
este factorul (sau puterea) de transmisie a suprafetei, coeficientul de transmisie fiind:
(9.89)
unde τ este fractiunea din amplitudine transmisa, iar ψt este variatia de faza la traversarea suprafetei sau a paturii semireflectatoare. t este real în cazul mediilor dielectrice transparente si complex în cazul straturilor matalice.
Se va studia interferenta multipla obtinuta de fasciculele transmise de o lama plan-paralela de aer de grosime d formata cu ajutorul a doua lame de sticla cu fetele paralele L1, L2 având fetele care formeaza lama plan-paralela semiargintate fig. 9.18. Se considera ca radiatia emisa de sursa S este minicromatica si plan polarizata pentru a trata problema scalar.

Fig. 9.18
F
În punctul P intensitatea are valoarea maxima Imax=I0 daca:
(9.97)
Minimele corespund conditiei
(9.98)
si au valoarea nenula:
(9.99)
Vizibilitatea franjelor de interferenta:
![]()
arata ca parametrul A este o masura a finetii franjelor.
Un calcul analog poate stabili si expresia intensitatii luminii în punctul P' obtinuta prin suprapunerea undelor reflectate (fig.9.18).
9.6 Influenta nemonocromaticitatii radiatiei incidente asupra fenomenului de interferenta
Distributia franjelor de interferenta depinde de lungimea de unda a radiatiei incidente. În majoritatea dispozitivelor interferentiale, pozitia maximelor luminoase, xk, si interfranja, i, sunt direct proportionale cu lungimea de unda, λ, a radiatiei incidente. Astfel, de exemplu, în cazul dispozitivului experimental Young:
![]()
Daca se utilizeaza într-un dispozitiv interferential o sursa care emite concomitenet doua radiatii cu lungimile de unda λ1 si λ2, atunci pentru fiecare radiatie se obtine un tablou al franjelor de interferenta, suprapuse, cu interfranjele:
si ![]()
diferite (fig. 9.20).

Fig. 9.20 Tabloul franjelor de interferenta
Pentru λ1 si λ2>λ1
Indiferent de lungimea de unda a radiatilor incidente, franja centrala are aceeasi pozitie data de conditia d2-d1=0 pentru orice radiatie.
Când se utilizeaza o sursa de lumina alba trebuie avut în vedere existenta unui spectru continuu al acestuia cuprins între lungimile de unda λr=760nm (rosu) si λv=400nm (violet). Analizând tabloul de interferenta obtinut în acest caz se observa existenta franjei luminoase centrale albe marginita în doua franje întunecate, pentru ca apoi sa apara franje colorate (spectre) dispuse de o parte si de alta a maximului luminos central începând cu violet si terminând cu rosu.
Întrucât conditiile de interferenta sunt diferite pentru lungimi de unda diferite si deoarece franjele colorate se largesc pe masura cresterii ordinului de interferenta (departarii de fraja luminoasa centrala) se ajunge la suprapunerea acestor franje (în general, pentru un ordin de interferenta k>4). Suprapunerea acestor franje duce la aparitia unei coloratii albe pentru ochi, numita "alb de ordin superior". Examinarea spectroscopic acestei corelatii se constata existenta unui spectru alb cu radiatii de la rosu la violet, brazdat de linii negre care corespund minimelor de interferenta din acel loc pentru acele radiatii care lipsesc din spectru. Acest spectru se numeste spectru canelat.
Se considera o sursa care emite radiatii în intervalul spectral (λ,λ+Δλ). Utilizând aceasta sursa într-un dispozitiv interferential si urmarind tabloul franjelor de interferenta se constata coincidenta franjelor centrale si existenta unei distante fata de fraja centrala unde franja de interferenta de ordinul k pentru radiatia cu lungime de unda λ+Δλ se suprapune cu franja de ordinul k+1 pentru radiatia cu lungime de unda λ. Presupunând, de exemplu, un dispozitiv Young rezulta:
![]()
adica:
(9.100)
Urmeaza deci
ca ordinul maxim k pentru care franjele mai pot fi observate separat este
dat de relatia
si invers, cu o
radiatie ce emite într-un interval spectral (λ,λ+Δλ)
se poate obtine un numar de maxim k franje de interferenta
distincte.
Referitor la forma franjelor de interferenta în spatiu trebuia avut in vedere ca locul geometric al franjelor este dat de conditia:
(9.101)
d1 si d2 fiind distantele de la sursele coerente ale coror unde se suprapun din punctul de observare.
Ecuatia (9.101) reprezinta ecuatia unor hiperboloizi de revolutie cu doua pânze, care au focarele în locul în care se afla sursele, fig. 9.21.

Fig. 9.21 Distributia spatiala a intensitatii
luminii în cazul interferentei
Punând un ecran plan perpendicular pe drapta S1S2 figura de interferenta consta în cercuri concentrice având centrul în punctul in care dreapta S1S2 intersecteaza planul ecranului; aceste cercuri concentrice alternativ luminoase si întunecate se numesc inelele lui Haidinberg. Daca se pune ecranul plan paralel dreptei S1S2 figura de interferenta consta dintr-un ansamblu de franje cvasiparalele, care pentru zone limitate din spatiu se pot considera paralele.
Trebuie mentionat, în final, ca fenomenul de interferenta respecta principiul conservarii energiei. Ecranul, în ansamblu primeste o energie totala egala cu suma energiilor trimise de cele doua surse; fenomenele de interferenta nu schimba decât repartitia acestei energi.
9.7 Interferometre
Interferometrele sunt dispozitive interferentiale cu ajutorul carora se pot masura cu mare sensibiliatete si precizie distante foarte mari sau foarte mici, unghiuri, indici de refractie etc. Se disting doua tipuri de dispozitice interferometrice: interferometre cu doua fascicule si interferometre cu fascicule multiple.
Ideea dispozitivelor interferometrice consta în obtinerea unui fenomen de interferenta, vizualizat de tabloul franjelor, prin suprapunerea a doua sau mai multe fascicule coerente, separate initial printr-un fascicul primar. Prin modificarea drumului optic al unui fascicul (rezulta prin variatia distantei geometrice sau/si variatia indicelui de refractie) se produce o deplasare globala a tabloului de franje care poate fi masurata, astfel încat se pot obtine informatii exacte privitoare la valorile indicilor de refractie si distantelor împlicate în experiment.
a). Interferometre cu doua fascicule
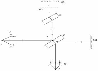
1 Interferometrul Michelson construit de Michelson în anul 1881 si perfectionat împreuna cu Morley în anul 1887, sta la baza a mai multor metode interferometrice fiind deosebit de util, în principal, în determinarea distantelor mici. Principiul de functionare este urmatorul: razele provenind de la o sursa punctiforma S sunt concentrate de lentila C1 pe o lama cu prima fata semitransparenta L1, înclinata la 45°, fig. 9.22.

Fig. 9.22 Interferometrul Michelson
Fasciculul incident este divizat de lama semitransparenta L1 în doua fascicule: primul se îndreapta spre oglinda OG1 pe care se reflecta trece prin lama semitransparenta L1 fiind apoi transmis prin obiectivul C2 spre punctul de observare; al doilea fascicul traverseaza lama L1 se reflecta pe oglinda OG2 revine prin lama L1 în punctul A unde se reflecta, suprapunandu-se primului fascicul cu care interfera la infinit; lentila obiectivului C2 formând imaginea de interferenta în punctul de observare P. Deoarece primul fascicul traverseaza lama L1 o singura data în timp ce al doilea fascicul o traverseaza de 3 ori, pentru a echivala drumurile optice ale celor doua fascicule, se interpune lama L2, numita lama compensatoare pe traiectoria primului fascicul. Întrucât o egalitate riguroasa a grosimilor celor doua lame nu este practic posibil de realizat, diferentele foarte mici de drumuri optice se compenseaza prin înclinarea lamei L2.
Imaginea oglinzii OG2 prin reflexia pe fata semitransparenta a lamei L1 este OG2 astfel ca fenomenul de interferenta care are luc în punctul P poate fi considerat ca este produs de o lama de aer delimitata de oglinda OG1 si imaginea OG2*. Daca oglinda OG1 si imaginea OG2* nu sunt perfect paralele formeaza o pana de aer si se vor observa franje de egala grosime localizate pe lama, paralele si echidistante. Daca imaginea oglinzii OG2* este riguros paralela cu oglinda OG1 se formeaza o lama plan paralela si se observa franjele de egala înclinare (inelele Haiginberg).
Interferometrul Michelson a fost folosit în experienta Michelson care a pus în evidenta faptul ca viteza luminii este invarianta în raport cu sistemele de referinta inertiale. În anul 1907, Michelson primeste premiul Nobel pentru "constructia interferometrului si cercetarile efectuate cu el asupra vitezei luminii".
Interferometrul Michelson a fost utilizat pentru etalonarea metrului cu ajutorul radiatiei portocali a izotopului Kripton 86 si, în prezent, este folosit pentru determinarea unor deplasari de ordinul nm-lor (studiul structurii fine a liniilor spectrale).
2° Interferometrul Troyman-Green deriva din interferometrul Michelson, fata de care este modificat prrin înlocuirea oglinzii OG2 cu un ansamblu format din sistemul de verificat (de exemplu un obiectiv foto) si o suprafata de referinta reflectanta, convenabil aleasa. Se utilizeaza pentru depistarea aberatiilor optice.
3° Interferometrul Jamin se compune din doua lame plan-paralele groase (~ 4cm) L1 si L2 confectionate din sticla optica omogena având fetele posterioare F1 si F2 argintate si pozitionate paralele între ele, fig.9.23.

Fig. 9.23 Interferometrul Jamin
O raza de lumina de la sursa S incidenta în punctul A1 pe lama L1 se reflecta si se refracta pe aceasta, dând nastere la doua raze (1) si (2) paralele care sunt cu atat mai departate între ele cu cât grosimea lamei L1 este mai mare. Fasciculul (1) incident în punctul A2 pe lama L2 este mai mare se reflecta si se refracta pe aceasta lama, suprapunându-se cu fasciculul (2) care se reflecta decît în C2. În realitate în lama L2 au loc reflexii si refractiimultiple, dar se iau în considerare numai cele doua raze precizate.
Daca lamele L1 si L2 sunt riguros paralele si identice ca grosimi si indici de refractie, diferenta de drum optic, ele vor interfera si privite printr-o luneta vor da un maximum, o tenta uniforma peste tot câmpul de interferenta. Printr-o usoara înclinatie a lamelor L1 si L2 una fata de cealalta vor apare franJe de interferenta.
Interferometrul Jamin este utilizat, în principal, pentru determinarea indicilor de refractie ai fluidelor. Pentru aceasta fluidele sunt puse în cuve în drumul razelor (1) si (2).
4° Interferometrul Mach-Zehnder prezinta, fata de interferometrul Jamin avantajul ca fasciculele (1) si (2) sunt mult mai departate unul de altul înlesnind modul de lucru în efectuarea experimentelor. Interferometrul este format din doua lame semitransparente L1 si L2 si doua oglinzi OG1 si OG2, fig. 9.24. Lama L1 divide fasciculul primar în doua fascicule care parcurg drumuri optice diferite fiind reflectate de oglinzile OG1 si respectiv OG2, pentru ca, în final, sa fie suprapuse pe lama L2 producându-se o interferenta localizata la infinit.

Fig. 9.24 Interferometrul Mach-Zehnder
Reglarea interferometrului Mach-Zehnder impune realizarea unui paralelism riguros al lamelor L1 si L2 si oglinzilor OG1 si OG2, dupa punerea la punct fiind posibila efectuarea experientelor privind masurarea indicilor de refractie.
Alaturi de aceste interferometr mai sunt utilizate interferometrele Rayleigh (pentru masurari ale diferentei de drum optic), interferometrul stelar Michelson (pentru masurarea dimensiunilor unghiulare ale surselor), interferometrul Fizeau (pentru masurarea standardelor de lungime) s.a.
b). Interferometre cu fascicule multiple
1° Interferometrul Fabry-Pérot se compune din doua lame groase din sticla sau cuart plan paralele cu fetele interioare F1 si F2 semiargintate. Fetele exterioare fac un unghi mic între ele pentru a nu da fascicule care sa interfere cu câmpul de suprapunere al fasciculelor generate de fetele interioare, fig. 9.25.

Fig. 9.25 Interferometrul Fabry-Pérot
Se observa cu ajutorul unei lunete LT franje de egala înclinare produse de lama plan paralela de aer cuprinsa între fetele F1 si F2. În cazul în care fetele F1 si F2 nu sunt riguros paralele, atunci între ele se formeaza o pana de aer si se observa franjele de egala grasime.
2° Interferometrul (lama) Lummer-Gehrke este constituit dintr-o lama plan-paralela lunga L confectionata din sticla sau cuart. Un fascicul paralel provenind de la o sursa S intra sub o incidenta apropiata reflexiei totale în lama prin intermediul unei prisme P, fig. 9.26. Fasciculele paralele de radiatii luminoase, care ies aproape razant prin fetele superioara sau inferioara, au intesnitati aproximativ egale si continue fascicule multiple ce interfera în planul focal al lentilei O.

Fig. 9.26 Interferometrul Lummer-Gehrcke
|