Manual de intretinere
Sistem ATC IMBARCAT
Metroul Bucuresti, BM21 si BM2
Rezumat
Acest manual descrie procedurile de intretinere a sistemului ATC Imbarcat, dezvoltat pentru Metroul Bucuresti.
Solicitare
Acest document va fi utilizat de catre personalul autorizat de mentenata si intretinere. Personalul va fi instruit special asupra sistemului ATC Imbarcat si trebuie sa aiba cunostinte tehnice in domeniul electronicii, precum si al legaturii dintre mecanica si electronica. Acest document se va citi impreuna cu referintele din capitolul 11.
Cuprins
Terminologie si abrevieri.......... ..... ...... .......... ..... ...... .......... ..... ...... ...................
Introducere.......... ..... ...... .......... ..... ...... .......... ..... ...... .......... ..... ...... ........
Scop.......... ..... ...... .......... ..... ...... .......... ..... ...... .......... ..... ...... ...............
Cunostintele personalului
Reguli legate de protectia ESD.......... ..... ...... .......... ..... ...... .......... ..... ...... ...
Simboluri.......... ..... ...... .......... ..... ...... .......... ..... ...... .......... ..... ...... .........
Avertismente.......... ..... ...... .......... ..... ...... .......... ..... ...... ..............................
Simboluri.......... ..... ...... .......... ..... ...... .......... ..... ...... .......... ..... ...... ....
Descrierea generala a sistemului ATC.......... ..... ...... .......... ..... ...... ..........................
Configuratia trenului.......... ..... ...... .......... ..... ...... .......... ..... ...... ........................
Configuratia ATC.......... ..... ...... .......... ..... ...... .......... ..... ...... ...........................
Configuratia ATC HW pentru seriile BM2 si BM21
Instructiuni de siguranta.......... ..... ...... .......... ..... ...... .......... ..... ...... ..................
Siguranta personalului.......... ..... ...... .......... ..... ...... .......... ..... ...... .....................
Alte instructiuni de siguranta.......... ..... ...... .......... ..... ...... .......... ..... ...... ............
Siguranta operationala.......... ..... ...... .......... ..... ...... .......... ..... ...... .....................
Intretinere preventiva.......... ..... ...... .......... ..... ...... .......... ..... ...... ......................
Inspectarea vizuala.......... ..... ...... .......... ..... ...... .......... ..... ...... ..........................
Curatirea unitatilor.......... ..... ...... .......... ..... ...... .......... ..... ...... ..........................
Curatirea unitatilor conectate MVB
Curatirea antenei baliza.......... ..... ...... .......... ..... ...... .......... ..... ...... ..............
Curatirea bobinelor receptoare.......... ..... ...... .......... ..... ...... .......... ..... ...... ...
Intretinerea MFSD.......... ..... ...... .......... ..... ...... .......... ..... ...... .........................
Verificarea pozitiei antenei baliza (Antena ATO).......... ..... ...... .......... ..... ...... .............
Conditii de masurare.......... ..... ...... .......... ..... ...... .......... ..... ...... ..................
Verificarea pozitiei antenei Gray pentru seriile BM2
Verificarea pozitiei cutiei antenei pentru seriile BM21.......... ..... ...... .......... ..... ...... .
Verificarea intensitatii campului magnetic pentru antena baliza.......... ..... ...... .........................
Verificare pozitiei pentru antena baliza (Antena ATP)
Conditii de masurare
Verificarea pozitiei.......... ..... ...... .......... ..... ...... .......... ..... ...... .....................
Intretinerea tahimetroului
Ajustarea parametrilor in functie de dimensiunea rotii
Verificarea (brake output).......... ..... ...... .......... ..... ...... .......... ..... ...... ...............
Verificarea iesirilor VDX
Mentenanta corectiva.......... ..... ...... .......... ..... ...... .......... ..... ...... ......................
Generalitati.......... ..... ...... .......... ..... ...... .......... ..... ...... .......... ..... ...... ......
Uneltele PC SW
Introducere in trasabilitatea defectelor
Erori de citire pentru MFSD.......... ..... ...... .......... ..... ...... .......... ..... ...... .......
Manevrearea defectelor interne in sistemul ATC
Coduri de erori MFSD pentru BM21
Indicatoare LED in fata COMC, BTIU, BTM siCTIU.......... ..... ...... ..............................
Indicatoare LED in fata VCULite ATO.......... ..... ...... .......... ..... ...... .....................
Trasabilitatea defectelor.......... ..... ...... .......... ..... ...... .......... ..... ...... ..................
Trasabilitatea defectelor in timpul efectuarii testarilor.......... ..... ...... .......... ..... ...... .......
Trasabilitatea defectelor in timpul functionarii trenului
Trasabilitatea unui defect temporar.......... ..... ...... .......... ..... ...... .......... ..... ...... ..
Detectia defectelor inainte ca lansarea sistemului ATC sa fie finalizata.......... ..... ...... .............
Sistemul ATC nu porneste.......... ..... ...... .......... ..... ...... .......... ..... ...... ..........
Sistemul ATC porneste, insa nu intra in modul YARD la activarea cabinei.......... ..... ...... .
Testele de frana nu sunt efectuate cand cabina este activata.......... ..... ...... .......................
Detectia defectelor cand lansarea sistemului ATC este finalizata
Descrierea codului de eroare MFSD numai pentru seriile BM21.......... ..... ...... ...............
Eroarea MVB.......... ..... ...... .......... ..... ...... .......... ..... ...... ............................
Defecte legate de ATO .......... ..... ...... .......... ..... ...... .......... ..... ...... ..................
Defecte ale unitatii ATO.......... ..... ...... .......... ..... ...... .......... ..... ...... .............
Defecte legate de aparitia unor informatii gresite ale trenului
Salvarea unui registru al defectelor la dezactivarea cabinei.......... ..... ...... ..............................
Inlocuirea unitatii ATC.......... ..... ...... .......... ..... ...... .......... ..... ...... .....................
Inlocuirea COMC, VCULite, CTIU, BTIU, VDX si SDU.......... ..... ...... ............................
Conectorii.......... ..... ...... .......... ..... ...... .......... ..... ...... .......... ..... ...... ...
Indepartarea unitatii.......... ..... ...... .......... ..... ...... .......... ..... ...... ....................
Montarea unei noi unitati.......... ..... ...... .......... ..... ...... .......... ..... ...... ............
Inlocuirea BTM.......... ..... ...... .......... ..... ...... .......... ..... ...... ..............................
Inlocuirea /corectarea MFSD.......... ..... ...... .......... ..... ...... .......... ..... ...... ..........
Inlocuirea intreguluiMFSD.......... ..... ...... .......... ..... ...... .......... ..... ...... ..........
Schimbarea sigurantelor.......... ..... ...... .......... ..... ...... .......... ..... ...... .............
Schimbarea lampilor.......... ..... ...... .......... ..... ...... .......... ..... ...... ...................
Inlocuirea antenei baliza.......... ..... ...... .......... ..... ...... .......... ..... ...... ..................
Inlocuirea antenei Gray.......... ..... ...... .......... ..... ...... .......... ..... ...... ...............
Inlocuirea cutiei antenei (CAU)
Inlocuirea bobinelor receptoare.......... ..... ...... .......... ..... ...... .......... ..... ...... .......
Inlocuirea tahimetrului.......... ..... ...... .......... ..... ...... .......... ..... ...... .....................
Inlocuirea cablurilor si conectorilor.......... ..... ...... .......... ..... ...... .......... ..... ...... ..
Manevrarea cablurilor intre BTIU si antena Gray.......... ..... ...... .......... ..... ...... .......
Manevrarea cablurilor intre BTM si CAU
Inlocuirea releelor.......... ..... ...... .......... ..... ...... .......... ..... ...... ...........................
Uneltele si echipamentul de testare.......... ..... ...... .......... ..... ...... .......... ..... ......
Initierea terminalului PC.......... ..... ...... .......... ..... ...... .......... ..... ...... ..................
Download-area programului de control al aplicatiei(DLU)
Setarea parametrilor si verificararea.......... ..... ...... .......... ..... ...... .......... ..... ...... .
Setarea informatiilor trenului.......... ..... ...... .......... ..... ...... .......... ..... ...... .......
Setarea adresei blocului de siguranta(SDA)
Setarea lungimii cablului pentru antena de baliza (pentru BTIU).......... ..... ...... .................
Product data si verificarea starii.......... ..... ...... .......... ..... ...... .......... ..... ...... .......
Verificarea jurnalelor evenimentelor.......... ..... ...... .......... ..... ...... .......... ..... ...... .
Salvarea informatiilor de la terminal.......... ..... ...... .......... ..... ...... .......... ..... ...... .
Aparat de masurare a intensitatii campului
Instructiuni pentru utilizator.......... ..... ...... .......... ..... ...... .......... ..... ...... .........
Unitatea de interconectare
Instructiuni pentru utilizator.......... ..... ...... .......... ..... ...... .......... ..... ...... .........
Teste .......... ..... ...... .......... ..... ...... .......... ..... ...... .......... ..... ...... .................
Precautii .......... ..... ...... .......... ..... ...... .......... ..... ...... .......... ..... ...... .........
Pornirea testelor (si activarea cabinei).......... ..... ...... .......... ..... ...... .............................
Pregatiri.......... ..... ...... .......... ..... ...... .......... ..... ...... .......... ..... ...... ......
Testarea pe secvente.......... ..... ...... .......... ..... ...... .......... ..... ...... ..................
Testulde functionare.......... ..... ...... .......... ..... ...... .......... ..... ...... ........................
Pregatire.......... ..... ...... .......... ..... ...... .......... ..... ...... .......... ..... ...... .....
Testul de functionare.......... ..... ...... .......... ..... ...... .......... ..... ...... ..................
Referinte.......... ..... ...... .......... ..... ...... .......... ..... ...... .......... ..... ...... ............
|
Terminologie |
Acronim |
Descriere |
|
Activat |
|
Regimul de la pupitrul din cabina se modifica din INACTIV in ACTIV |
|
Jurnal eveniment |
AE |
Un anunt, in general un mesaj de eroare, care este stocat in jurnalul de erori al unitatii. |
|
Frecventa audio |
AF |
Tipul de frecventa utilizat in circuitele de cale pentru detectia prezentei trenului si transmisiuni de date ATP catre tren. |
|
Starea ATC |
|
Unitatea ATC poate avea 4 stari diferite : Power off, Esuarea sistemului, Inactiv si activ |
|
AUTO |
AUTO |
Mod de functionare in care sistemul ATO este utilizat la maxim. |
|
Automatic Train Control |
ATC |
Sistemul cuprinde subsistemele ATP si ATO |
|
Automatic Train Operation |
ATO |
Un sistem autoprotejat care opereaza trenul sub suprevegherea ATP in mod automat. |
|
Automatic Train Protection |
ATP |
Un sistem autopreotejat care supravegheaza in mod continuu modul de functionare al trenului. Acesta are autoritatea de a actiona franele in vederea evitarii pericolelor. |
|
Baliza |
|
O unitate de transmisie montata in cale care foloseste o tehnologia transponderului magnetic. Principala functie este aceea de a transmite semnale (telegrame), catre trenul aflat in functiune. |
|
Antena baliza |
|
Antena montata langa sasiul vehiculului .Activeaza baliza si primeste telegramele de rapsuns. In prezentul sistem ATC, este utilizata de ATO. Antena baliza e de doua tipuri: Antena conectata cu BTIU in seriile BM2 si cutia antenei (CAU) conectata cu BTM in seriile BM21. |
|
Interfata unitatii de transmisie a balizei. |
BTIU |
Controleaza antena Gray. Demoduleaza si digitalizeaza telegramele primite de la baliza si le trimite catrea ATP si ATO .Este utilizata numai in seriile BM2. |
|
Modulul de transmisie a balizei |
BTM |
Controleaza Cutia antenei (CAU). Demoduleaza si digitalizeaza telegramele primite de la baliza si le trimite catre ATP si ATO. Este utilizata numai in seriile BM21 |
|
Cheia de activare a cabinei (Llave de Gobierno) |
|
Cheia utilizata de conducator pentru a activa o cabina , inclusiv ATC. |
|
Viteza maxima |
|
Viteza maxima permisa pe a anumita portiune de cale. ATP primeste informatii incontinuu prin circuitele de cale si supravegheaza ca viteaza sa nu fie depasita. |
|
Navigatie |
|
Trenul ruleaza fara sa fie influentat de franare. |
|
Controllerul de comunicatii |
COMC |
Un computer care gazduieste mai multe aplicatii COMC_ATP gazduieste ATP SW |
|
Cutia antenei |
CAU |
CAU este o unitatea asemanatoare antenei baliza, conectata cu BTM. Este instalata numai in seriile BM21 . |
|
Interfata unitatii de codare a circuitelor de cale. |
CTIU |
CTIU demoduleaza fluxul de biti proveniti de la semnalul AF receptionat din cale prin intermediul bobinelor receptoare, si decodeaza telegrama digitala. Aceasta este poi decodata si emisa catre ATP. |
|
Dezactivat |
|
Cand starea cabinei e schimbata din activ in inactiv. |
|
Dispozitivul de adresare |
DA |
Utilizat pentru controlul mesajelor vehiculului. DA este definit prin conectorul cablului X1 sau X3 (depinde de unitate) prin intermediul hardware (strapping). Adresele portului MVB sunt deviata fata de unitatea DA, care defineste o unitate cu o singura adresa de comunicatie. |
|
Unitatea de downloadare |
DLU |
DLU este utilizat ca un pachet software, downloadabil intr-o unitate de computer. Contine mai multe aplicatii pentru unitatea in discutie. Aplicabil pentru COMC_x, CTIU, BTIU si BTM. |
|
Compatibilitatea electromagnetica |
EMC |
Abilitatea unei unitati a sistemului de a functiona intr-un mediu electromagnetic. |
|
Descarcari electrostatice |
ESD |
|
|
Franare de urgenta |
EB |
Aplicatie completa de franare; implicand deschiderea liniei de franaresi evacuarea presiunii de franare. Uutilizat de APT pentru interventie in situatii critice. |
|
Fail-Safe |
FS |
Un principiu de proiectare in care orice aparitie a unei componente defecte sau defectiune a sistemului va determina intrarea sistemului intr-o stare de siguranta si bine-definita. |
|
Antena Gray |
|
Antena Gray este asemanatoare antenei baliza si este conectata cu BTIU. Este instalata numai in seriile BM2 |
|
Dioda electroluminiscenta |
LED |
|
|
Switch-ul principal |
|
Un switch pentru comutarea pe pozitia ON si OFF a ATP si a altor aplicatii. |
|
Ecran pentru afisarea distantei multifunctional |
MFSD |
Panoul de control ATC |
|
Manual cu Cab Signal |
MCS |
Mod de operare utilizat in linie si pentru tranzitele de cale. Conducatorul ruleaza trenul sub stricta supraveghere a ATC. |
|
|
MOBAD |
ModeBaterie/Adresa unitatii - DCA 0030A, utilizata in unitatea VCU . |
|
Vehicul multifunctional |
MVB |
Un bus serial utilizat pentru comunicatii intre unitatile ATC. |
|
Memoria Non-Volatila |
NVMEM |
Memorie in interiorul unei unitati care stocheaza date (ex. SDA) chiar daca alimentarea electrica este OFF. |
|
Viteza permisa |
|
Viteza limita permite trenului sa porneasca fara avertizarea ATP si/sau interventia lui. |
|
Personal Computer |
PC |
|
|
Personal Computer Memory Card International Association |
PCMCIA |
|
|
Marker pentru oprirea de precizie |
PSM |
Baliza contine informatii precise de orpire si este pozitionata precis. |
|
Bobine receptoare |
PUC |
Antena este montata in fata primei osii in fiecare directie de mers. Detecteaza semnalele AF. Este utilizat in primul rand de sistemul ATP. |
|
Dispozitiv de siguranta de adresare |
SDA |
SDA este utilizat pentru averifica daca DLU a fost downloadat in unitate. |
|
Identitatea de siguranta |
SID |
Din motive de siguranta , fiecare unitate conectata cu MVB care emite sau receptioneaza date vitale primeste o identitate de siguranta. (SID). Aceasta pentru a asigura realizarea comunicatiei numai intre porturile MVB. SID pentru COMC_x, CTIU, BTIU si BTM este inclus in DLU care este downloadat in instalatiei. SDU siVDX primesc SID direct din fabrica. |
|
Serviciu de franare |
SB |
Frana ajustabila folosita de conducatorul vehiculului si de ATO pentru a obtine o franare normala. ATP foloseste "Serviciul complet de franare" pentru a interveni in conditii critice. |
|
Monitor simplu |
SiMon |
SiMon, este un software pentru monitor care ofera , utilizat impreuna cu o unitate de computer de la un program terminal instalat pe un PC prin interfata seriala RS-232 interface. SiMon are ca functie principala downloadarea DLU. Are de asemenea o functionalitatea de baza in intretinerea la nivel scazut si corectarea unitatii. |
|
Unitatea pentru viteza si distanta |
SDU |
Unitate vitala, ofera sistemului ATC informatii despre distanta si viteza, obtinute de la implusurile emise de tahimetru. |
|
Distanta tinta |
|
Distanta de la care se aplica viteza tinta. |
|
Viteza tinta |
|
Viteza maxima pe o sectiune parcursa de tren. De obicei mai mica decat viteza curenta. |
|
Simulator de comunicare tren -cale |
TWCSim |
Simularea comunicatiei TWC si informatiile de intrare pentru ATO. |
|
I/O Unitatea de digitale vitale |
VDX |
O unitate de I/O, utilizata pentru a efectua schimburi de date cu sistemele externe onboard ale trenului. |
|
Yard |
|
Mod de operare utilizat in zona yard, si in unele cazuri speciale in unele portiuni alea liniei principale unde nu sunt disponibile telegramele circuitelor de cale. Conducatorul trenului manevreaza trenul.. Numai vitezele maxime sunt supravegheata de ATP. |
Acest manual trateaza urmatoarele aspecte:
Sistemul ATC pentru Metroul Bucuresti - scurta descriere
Instructiuni de siguranta legate de intretinere
Intretinere preventiva, precum
q Diagnosticare si inspectia mecanica
q Curatare
Depanare, precum
q Trasabilitatea defectelor
q Inlocuirea unitatilor UTC
Nota: Defectele ATC pot fi externe echipamentului ATC (alte echipamente ale trenului). Actiunile de depanare sunt focalizate numai in aria echipamentului ATC.
Unelte pentru downloadare software, reglarea parametrilor, masuratori, etc.
Teste
Acest document va fi utilizat de catre personalul autorizat cu mentenata si intretinere instruit special asupra sistemului ATC Onboard pentru Metroul Bucuresti, acesta avand cunostinte tehnice in domeniul electronicii, precum si al legaturii dintre mecanica si electronica
Cand dispozitivele electronice sunt inlocuite, toate unitatile de precizie trebuiesc protejate Intregul personal trebuie instruit si informat de riscurile ce pot aparea in urma manipularii produselor sensibile la electricitatea electrostatica.
Nota!
In cazul nerespectarii intructiunilor, pot avea loc accidente soldate cu distrugerea echipamntului si/sau ranirea personalului.
Simboluri utilizate in cadrul acestui document:
|
Simbol |
Descriere |
|
|
Sugereaza personalului efectuarea unui control vizual |
|
F |
Implica realizarea unei actiuni din partea pesonalului |
|
I |
Sugereaza a activitatea de protectie |
Liniile 1 si 3 din cadrul Metroului Bucuresti au la baza doua categorii diferite de trenuri : seriile BM2 si .Arhitecturile ATC pentru BM2 si BM21 sunt diferite.
In urmatoarele randuri va fi realizata o scurta descriere a celor doua tipuri arhitecturale. Descrierea unitatii ATC va fi facuta in randurile de mai jos.
Vezi procedurile pentru testul de instalare a trenurilor de tipul BM2 si BM21 la ref [9]. Vezi procedurile pentru testele de instalare ale trenurilor BM2 si BM21 la ref [9].
Trenurile din seriile BM2 si BM21,Toate cele sase vagoane
sunt "legate" intr-un singur grup iar
trenul este intotdeauna configurat precum in figura urmatoare: 
Mai multe detalii in ref[1].
Trenurile BM2 si BM21 sunt formate din 6 vagoane care opereaza pe liniile 1,2 si 3 ale Metroului Bucuresti. Un sistem ATC este instalat pentru control intr-o directie in timp ce pe tren sunt montate doua sisteme ATC.
Trenurile BM2 si BM21 au doua cabine destinate conducerii trenului (R1 ai R2). Fiecare cabina este utilata cu un sistem complet ATC . Toate unitatile hardware ATC utilizate pentru BM2 si BM21 sunt identice cu exceptia:
BTIU si antenna Gray utilizate in seriile BM2 sunt inlocuite cu BTM si cutia antenei (CAU) in seria BM21
ATO COMC utilizat in seriile BM2 este inlocuit cu ATO VCU-Lite in seriile BM21
Informatii detaliate legate de unitatile ATC in capitolul 3.2.2. "Descrierea unitatilor ATC"

Figura , HW configuratia seriilor de
trenuri BM2/BM21
Echipamentul ATC este distribuit
in cadrul trenului in conformitate cu figura urmatoare:
Figura , Distributia echipamentului ATC pentru seriile BM2/BM21
|
ATC Unit |
Cabin |
Position Number |
|
VDX |
R |
EP10 |
|
SDU |
R |
EP11 |
|
BTIU (BM2 only) |
R |
EP9 |
|
EB Relay (JRF Relay) |
R |
EP17 |
|
Zero Speed Relay (JRF Relay) |
R |
EP18 |
|
All Doors Closed Relay (JRF Relay) |
R |
EP23 |
|
CTIU |
R-Driver cabin |
EP5 |
|
Gateway (VCULite) |
R-Driver cabin |
EP6 |
|
MFSD |
R-Driver cabin |
Driver panel |
|
ATP (COMC) |
MP |
EP8 |
|
ATO (COMC on BM2 only) |
MP |
EP9 |
|
TWCSIM (COMC) |
MP |
EP10 |
Table 0- , Position of ATC units on the train
|
VDX (Vital Digital I/O Unit), este utilizat pentru a transmite semnalele digitale dintre MVB su echipamantul extern). SDU (Unitatea pentru viteza si distanta ) detecteaza si transmite mai departe pulsatiile produse de tahimetru. Aceasta informatie sta la baza calculului vitezei si distantei cerute. VDX si SDU au acelasi aspect extern, insa in interior design-ul este diferit. |
VDX si SDU |
|
VCULite (Compact Vehicle Control Unit), este o unitate de computer, folosita pentru sistemul ATO numai in seriile BM21 |
ATO pentru seriile BM21 |
|
COMC (Controller de comunicatii), este o unitate de computer, folosita pentru ATP, ATO si TWCSim. Nota: COMC este utilizat pentru sistemul ATO numai in seriile BM2. |
ATP, ATO si TWCSim |
|
MFSD dedicate conducatorului de tren(cate un sistem in fiecare cabina)indica viteza in momentul current, viteza permisa, viteza tinta, distant ace trebuie parcursa, etc Prin apasarea butoanelor sistemului MFSD, conducatorul de tren poate interactiona cu sistemul ATC. Este de retinut faptul ca MFSD este active chiar si in starea FMC, in care receptioneaza pulsatiile primite printr-o conexiune directa cu tahimetrul. In aceasta stare, ofera informatii doar legate de viteza. |
|
|
BTIU (Unitatea I/O de transmisie a balizei) lucreaza asemenea unei interfete dintre antena Gray (antena ATO) si MVB. Principalele functii indeplinite sunt urmatoarele: Activeaza baliza prin intermediul antenei Receptioneaza semnale de la baliza prin intermediul antenei Emite telegrame digitale de la baliza catre sistemul ATC Permite supravegherea intena si Perform internal supervision and failure handling Note: BTIU este utilizat in seriile BM2 |
BTIU |
|
Antena Gray este orientata catre balizele din cale. Dispozititvul este interconectat cu BTIU ar indeplineste urmatoarele functiii: Produce campul magnetic necesar activarii balizei Detectarea campului magnetic prin baliza Permite supravegherea interna Note: Antena Gray poate fi conectata cu BTIU numai pentru seriile BM2. |
Antena Gray |
|
BTM (Balise Transmission Module) actioneaza ca o interfata intre CAU (antena ATO) si MVB.Indelineste urmatoarele functii: Activeaza baliza prin intermediul antenei Receptioneaza semnalele de la baliza prin antenna ; Emite telegrame digitale de la baliza catre sistemul ATC ; Permite supravegherea interna si failure handling Note: BTM este utilizat numai in seriile BM21 |
BTM |
|
CAU este direct orientat catre balizele din cale. CAU este interconectat cu BTM si indeplineste urmatoarele functii: Produce campul magnetic necesar activarii balizei Detectarea campului magnetic prin baliza Permite supravegherea interna Nota: CAU poate fi conectat cu BTM numai in seriile BM21 |
Cutia antenei (CAU) |
|
Tahimetrul (montat pe axul rotii) este un generator optic .Este conectat cu SDU ( si MFSD) si genereaza impulsurile necesare pentru calcularea vitezei si distantei. |
Tahimetru |
|
CTIU (Coded Track circuit Interface Unit) actioneaza ca interfata intre PUC (bobina receptoare) si MVB. Indeplineste urmatoarele functii: Detect and demodulate audio-frequency signals from the PUC:s. Emite telegrame digitale pentru circuitele de cale catre ATC Perform internal supervision and failure handling |
CTIU |
|
Bobinele receptoare (PUC) sunt montate in fata primei perechi de roti, cate una pentru fiecare roata. Acestea constau intr-o bobina capabila sa receptioneze semnalele din audio-frecventa produse de cale. Semnalele provenite de la perechea sunt combinate in colector, dupa care sunt dirijate catre CTIU . |
Bobine receptoare |
|
Releele de siguranta sunt utilizate pentru controlul functiilor de siguranta decisiva .In cadrul prezentului sistem , releul JRF este utilizat pentru: Releul EB: controleaza frana de urgenta. Cand franarea este ceruta de catre ATP, RL-FE este dezexcitat .Aceasta determina deschiderea conductei pentru lichidul de frana( care este dirijat catre contactele releelor) pana cand este obtinuta franarea completa. Releul pentru viteza zero: detecteaza daca viteza trenului este sau nu zero. Releu pentru detectia inchiderii usilor detecteaza daca toate usile suunt inchise sau nu. |
JRF Safety relay |
|
Alte dispozitive Exista o multime de alte dispozitive "mai mici " care apartin sistemului ATC, precum butoanele de plecare intrerupatoarele circuitelor, relee auxiliare, etc.Pentru mai multe informatii despre aceste circuite, vezi planurile electrice, ref[4], ref[5]. |
|
Pentru a evita ranirea umana in timpul activitatilor ce implica sistemul ATC, trebuie luate in considerare urmatoarele informatii
|
I |
Atentie alimentare cu energie electrica! Tensiunea electrica ridicata apare la pinii conectorilor X1,X3,X4 si X5 ( depinde de unitate) Trebuie retinuta faptul ca unele intrari ale conectorului de cabluri pot fi sub tensiune chiar daca sistemul ATC este deconectat. Pentru a fi asigurati ca niciunul dintre pini/elemente nu se afla sub tensiune, deconectati comutatorul electric principal cand inlocuiti elementele ATC, sau lucrati cu cabluri si circuite electrice. |
|
I |
Atentie radiatii electromagnetice!! Cand sistemul ATC este activ, antenna baliza transmite un camp magnetic (27MHz) care poate fi daunator la distante mici. Figure 0-1 si figura 4-2 arata care sunt zonele daunatoare din preajma antenei Gray si a cutiei antenei. Zona daunatoare trebuie evitata.. Este recomandat ca sistemul ATC sa fie deconectat atunci cand se lucreaza in preajma antenei de baliza.Este posibil de asemenea ca antena sa fie deconectata in timp ce sistemul ATC functioneaza, acest lucru efectuandu-se pentru lucrari de intretinere: Transmisiunea antenei va fi oprita pentru 10 secunde dupa ce trenul opreste iar controlerul de directie este in stare neutral. (In cazul in care sistemul este conectat, ATC va efectua un test de pornire a transmisiunii pentru cateva secunde, dupa care antena va fi deconectata conform conditiilor mentionate mai sus). |

Figure , Area subject to electromagnetic radiation of the Gray Antenna

Figure , The hazardous areas in the vicinity of the Cutia antenei
|
I |
Atentie la manevrarea unitatii! BTIUsi BTM contin tranzistoare emitatoare (in interiorul BTIU si BTM) care contin oxid de berilui BeO. Acesta este un material ceramic,care nu trebuie suspus unor procese mecanice nici sa se incalzeasca la peste 800°C , acest lucru putand cauza vatamarea grava a personalului. BeO nu este considerata o substanta solida periculoasa. Prin urmare stresul mecanic cauzat de caderea unitatii nu trebuie sa permita eliberarea de substante gazoase periculoase.Totusi, aprinderea focului intr-un compartiment inchis poate determina aparitia unor gaze de BeO intr-o concentratie mare. Pentru a evita vatamarea personalului trebuie aplicate urmatoarele precautii legate de sanatatea si siguranta: Spala-te cu atentie dupa un contact direct cu un material ceramic ce contine oxid de beriliu. (Nota: In orice caz, nu este posibila atingerea tranzistoarelor de BeO in timpul proceselor de service si intretinere. Pentru a fi posibil contactul cu tranzistoarele de BeO , carcasa BTIU sau BTM trebuie sa fie demontata sau avariata. |
Nota! Este foarte important ca toate lucrarile de intretinere si service sa fie efectuate in concordanta cu instructiunile mentionate precum si la intervalele prevazute. Acest lucru are scopul de a mentine siguranta, disponibilitatea si mentenanta sistemului ATC.
In timpul efectuarii lucrarilor de intretinere trebuie avute in vedere urmatoarele aspecte:
|
I |
Intotdeauna intrerupeti alimentarea cu energie electrica inainte ca o unitate sa fie retrasa sau instalata, chiar prin oprirea switch-ului principal sau prin inchiderea intrerupatoarelor circuitelor magnetice specializate. |
|
I |
Niciodata nu deschideti o unitate. Unitatile defecte se inlocuiesc . |
|
I |
Unitatile defecte se trimit catre Bombardier Transportation. Intotdeauna completati intr-un formular un raport legat de comportamentul unitatii in timpul defectarii. |
|
I |
Pentru a obtine o executare in siguranta a sistemului ATC , asigurati-va ca sistemul a fost instalat si testat in mod corect. Aceasta include setarea parametrilor de dimensionare a rotii. |
|
I |
Protejati echipamentul electronic de descarcarile electrostatice (ESD). Ramele unitatilor nu sunt sensibile la aparitia campului electrostatic,insa circuitele electronice din interior sunt. Evitati orice contact cu pinii conectorilor ,aceasta putand afecta circuitul electronic din interiorul unitatii. |
|
I |
Nu efectuati nici un serviciu de intretinere in timpul functionarii vehiculului. |
|
I |
Nu conectati echipamentul de testare in timp de vehiculul se afla in functiune. |
Sistemul ATC este proiectat pentru a oferi sigurnat in timpul functionarii. Pentru a putea fi indeplinit acest lucru, sistemul incorporeaza auto-teste si functii de detective a erorilor. Un lucru necesar pentru ca aceste functii sa fie utilizabile este ca echipamnetul sa fie instalat correct iar diametru rotii sa fie setat corect.
Intretinerea preventiva trebuie realizata la interval regulate. Daca o componenta / unitate este suspectata ca ar avea un defect , ar putea fi mutata din pozitia corecta sau este contaminata puternic, intre intervale stabilite pentru realizarea intretinerii, se va realize o inspectie suplimentara.
Nota! Daca sistemul ATC a fost reparat/inlocuit (ex. pozitia antenei a fost modificata au fost setati noi paramentrii pentru diametru rotii sau o unitate a fost gasita defecta si a fost inlocuita) se va realiza un test al sistemului ATC conform capitolului 10 inainte ca vehiculul sa fie pus in functiune.
La fiecare 2 ani:
Inspectia vizuala trebuie realizata la un interval de 2 ani sau in cazul suspectarii unui defect, ex deteriorarea unitatii. Scopul acestei inspectii este de a verifica daca unitatile sunt fixate corect si sa descopere defectarile mecanice ale componentelor incluse in sistemul ATC.
In timpul inspectie trebuie urmarite urmatoarele aspecte::
|
|
Toate unitatile si modalitatea de fixare. |
|
|
Identificarea tuturor conectorilor. |
|
|
Cablurile,inclusiv cablul antenei, cablurile tahimetrului si tuburile protectoare. De asemenea verificati conectarea si cablarea releelor , sigurantelor si intrerupatoarelor. |
|
|
Montarea detaliilor pentru bobinelor receptoare si antena baliza: Atentie la uzura mecanica sau lovituri (sparturi). |
|
|
Semne de avertizare pentru a semnala prezenta campului magnetic in preajma antenei baliza. |
|
|
Inpamantarea pentru cabluri si conectori. |
|
|
Verificati
existenta unui spatiu de ventilatie in jurul celor 5 fete ale BTM si accesul liber la conectorii
cuplati. Acest volum masoara 300 × 420 × 320 mm |
Nota! Este important sa va asigurati ca starea conditiei pentru montarea suportilor bobinelor receptoare si a antenei baliza este OK. Loviturile pot evolua in mod usor in fisuri, ceea ce ar duce la indepartare echipamnetului dupa tren.
Componentele ce prezinta avarii care pot cauza defectarea sistemului , vor fi inlocuite conforma capitolului 8.
Aceasta seaplica urmatoarelor unitati: COMC_x, VCULite, VDX, SDU, CTIU, BTIU si BTM.
La fiecare 2 ani:
Pentru a asigura funcionarea unitatilor, acestea trebuie curatate la intervale nu mai mari de 2 ani. Curatarea suprafetei exterioare este necesara pentru a garanta atrunderea unui flux de aer suficient de-alungul placii de racire/ radiatorului.
Nota! In timpul curatarii unitatilor>
Nu folositi apa sau solventi chimicali pentru curatare.
Niciodata nu curatati conectorii neprotejati ai unitatii .
Nu dezasamblati unitatea .
|
F |
Folositi un burete neted sau o carpa uscata. |
Cand este necesar:
Antena baliza, atat antena Gray cat si CAU, trebuie curatate in momentul in care pe suprafata acestora s-au acumulat foarte multe particule externe. Poluarea cu ulei, grasimi si murdarie maxim admisa este de 1mm. Invelisul de gheata maxim permis este de 30mm.
Nota! Daca este neglijata curatarea, este posibil ca antena sa nu mai fie capabila sa detecteze balizele.
Nota ! Daca folositi spray-uri cu apa sub presiune, nu depasiti 70bar.
Pastrati o distamta de cel putin 1m intre duza spray-ului si antena.
Nu aplicati spray pe circuitele electrice ale antenei.
A se folosi un detergent usor.
5.2.3 Curatarea bobinelor receptoare
Cand este necesar:
Bobinele receptoare vor fi sterse de ulei, grasime si murdarie.

Figure , Elements related to maintenance of MFSD
La fiecare 6 luni
|
F |
Curatati partea frontala a panoului cu o carpa uscata si moale. Nu utilizati detergenti! Analizati aspectul MFSD si inlocuiti unitatea daca aceasta este uzata fizic. |
|
|
Verificati luminozitatea LED-urilor diferitelor elemente si efectuati ajustari daca este cazul. Pentru reglarea luminozitatii apasati butonul de control al luminozitatii pentru partea dreapta sau stanga a elementelor ( vezi figura alaturata) si mentneti apasarea pana in momentul obtinerii luminozitatii dorite. |
|
F |
Efectuati un test, prin apasarea butonului de testare MFSD ( vezi figura alaturata). Trebuie retinut faptul ca trenul trebuie sa fie oprit iar cabina activata pentru a se realzia testul. Verificati urmatorul comportament: Seria BM2: In timp ce butonul TEST este apasat, lampile si LED-urile sclipesc la fiecare secunda, alternativ: Lampile din coloana stanga si LED-urile barografului Lampile din coloana dreapta si LED-urile de stare(ATP, ATO, Panou Defect ) Seria BM21 In timpul testarii lampilor din cadrul panoului, care se efectueaza intr-o singura tura de 18 secunde, in timpul careia au loc urmatoarele actiuni: Clanxonul suna la 1 Hz. Comportamentul
butoanelor Push (Apasa) si Indicator este: Cele trei LED-uri se schimba on/off (1Hz). Bara de LED-uri pentru aproximarea distantei (ATP/ATO Defect + PANOU Defect) este alimentata incontinuu. Daca este suspectata spargerea becului unei lampi se va urma procedura descrisa in capitolul 8.3.3 |
Dupa un incident care a afectat structura:
Se va efectua o verificare a pozitiei antenei in cazul in care exista suspiciunea ca aceasta s-a deplasat din pozitia corecta in urma unui accident/ incident. Verificarea pozitiei antenei se va face impreuna cu verificarea suportului antenei ( ex: starea sudurii sau fisuri) .
|
F |
Pentru a verifica daca antena se afla in pozitie corecta in raport cu trenul, se vor efectua masuratorile in concordanta cu cele descrise in acest capitol. |
In timpul efectuarii masuratorilor pentru antena, descrise in acest capitol, vehiculul trebuie sa se afle pe o cale dreapta, cu ambele roti si sasiul centrate pe calea de rulare, precum in figura 5-2, (figura din dreapta arata modul corect de centrare a axelor).

Figure , Position of the body (wheels) on the rail
Figura , pozitia verticala a antenei baliza
Pentru a verifica pozitia verticala a antenei,masurati mai intai distanta B (in mm) pentru toate cele patru colturi ale antenei, conform figurii 5-3.
Valoarea lui "B" pe parcursul oricarei operatii este intre 114 . 293 mm.
Calculati intervalul permis in raport cu urmatoarele:
Bmin_calc (calc. dist. min B.) = 114 mm + (Act - Min )/2 + (SME + MT)
Bmax_calc (calc. dist.max B) = 293 mm - (Max - Act )/2 - (SME + MT)
Min (diametrul rotii min. permis) = 730 mm
Max (diametrul rotii max. permis) = 780 mm
Act (Diametrul actual al rotii) = 760mm (ex.)
SME (Masurarea sistematica a erorilor) = +10 mm
MT (Toleranta ) = +5 mm
La final verificati daca :
Bmin_calc ≤ B ≤ Bmax_calc
(Bmax - Bmin) ≤ 10 mm
Aplicand formulele si exemplele de mai sus, valorile rezultate pentru distantele minime si maxime trebuie sa fie:
Bmin_calc = 114 + (760 - 730)/2 + (10+5) mm = 144 mm.
Bmax_calc = 293 - (780 - 760)/2 - (10+5) mm = 268 mm.
Figura pozitia orizaontala a antenei baliza
Pentru a verifica pozitia orizontala a antenei mai intai masurati valorile A3 si A4 conform 5-4.
Verificati daca: A3 A4 < 14 mm
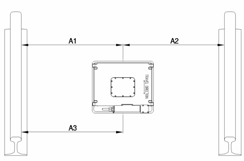
Figura , pozitia laterala a antenei baliza
Pentru a verifica pozitia laterala a antenei baliza mai intai masurati valorile A1si A2 conform cu figura 5-5 .
Verificati daca: A1 A2 < 40 mm
Trebuie verificata distanta dintre marginea superioara a sinei si marginea inferioara a cutiei antenei .
Distanta A = Anom - (Corectia dimensiunii rotii).
Valorile absolute permise pentru "A" in timpul oricarui tip de operatii sunt intre 137 . 276 mm.
Corectia dimensiunii rotii = (Dnew - Dact)/2
Dnew: Diametrul noilor roti in mm.
Dact: Diametrul rotilor actuale in mm.

Figure distanta dintre marginea superioara a sinei si marginea inferioara a cutia antenei.
Exemplu:
Luati un vehicul cu dametrul maxim al rotilor egal cu 780 mm, diametrul minim de 730 mm,insa diametrul actual este de but 760 mm potrivit cu uzura rotii. Luand 137 respectiv276 mm ca fiind distantele minime si maxime admisibile intre marginea superioara a sinei si marginea inferiora a cutiei antenei, eroarea sistematica de masurare de +10 mm, si o toleranta de +5 mm, trebuie sa obtineti urmatoare distanta :
Amin_mas = 137 + (760 - 730)/2 + (10+5) mm = 167 mm.
Amax_mas = 276 - (780 - 760)/2 - (10+5) mm = 251 mm.
Este foarte important sa se realizeze aceasta corectie in momentul verificarii pozitiei verticale a cutiei antenei. Daca acest lucru nu este fcaut, distanta dintre calea de rulare si antena va fi prea mare cand se vor inlocui rotile.O distanta prea mare sau prea mica, afecteaza transmisiunea dintre baliza si antena in mod negativ.
Pentru a verifica distanta la caer trebuie montata cutia antenei, masurati distanta de la A la cele 4 colturi.
Diferentele dintre distante,incluzand erorile de masurare dintre doua colturi in directii oblice ( ex: doua colturi din fata sau spatele CAU) nu trebuie sa depaseasca 14 mm, i.e., Amax - Amin < 14 mm.
Diferentele dintre distante,incluzand erorile de masurare dintre doua colturi in directii fixe ( ex: doua colturi din stanga sau dreapta CAU) nu trebuie sa depaseasca 12 mm, i.e., Amax - Amin < 12 mm.
Toleranta maxima la montare este de +10 mm intre centrul cutiei antenei si mijlocul distantei dintre sine.
Cand efectuati aceste masuratori, vehiculul trebuie pozitionat o cale rulanta dreapta cu rotile centrate pe sine. Pozitia antenei va fi verificata prin masurarea distantei dintre sine si centrul antenei. Vezi figura urmatoare:

Figura pozitia laterala a antenei
Diferentele dintre A1 siA2 nu trebuie sa depaseasca 20 mm, incluzand eroarea de masurare.
|A1 - A2| < 20 mm.
Cutia antenei va trebui montata cu o inclinatie unghiulara corecta fata de planul orizontal.
Masurand distanta de la sina la doua puncte de referinta ale antenei (A1 si A3) se va putea verifica pozitia antenei. Vezi figura alaturata:
In momentul efectuarii acestei masuratori, vehiculul va fi pozitionat drept pe calea de rulare, cu rotile centrate pe sine.

Figure pozitia orizontala a antenei
Distanta dintre A1 si A3 nu trebuie as depaseasca 6 mm, incluzand si erorile de masurare.
|A1 - A3| < 6 mm.
La fiecare 2 ani:
Verificare intensitatii campului magnetic in acest capitol, se aplica combinatiilor dintre BTIU si antena Gray in seriile BMM2. Pentru BTM si CAU in seriile BM21 , informatiile cuprinse in acest capitol nu sunt aplicabile deoarece, verificarea intensitatii campului magnetic se efectueaza in cadrul testelor din timpul rularii BTM.
De regula pentru supravegherea performantelor antenei Gray si a BTIU, este indicata verificarea regulata a intensitatii campului magnetic produs de aceste unitati.
Porniti sistemul ATC si intrati in modul YARD, conform capitolului 10.2.2.
Asezati aparatul de masurare a intensitatii cmapului sub antena si efectuati masurarea conform capitolului 9.7.1.
Daca
intensitatea campului nu este satisfacatoare, exista 3 cauze posibile:
- antena poate fi defecta
- cablarea (sau conectorii) dintre BTIU si antena pot fi avariati.
Daca nu sunt gasite semne de avrie in dreptul cabalajului/conectorilor, trebuie luata in considereare inlocuirea unitatilor conform capitolului 8.
Dupa incidente ce afecteaza structura mecanica:
Verificarea pozitiei bobinelor receptoare va fi efectuara daca exista suspiciuni ca acestea au fost mutate din pozitia corecta in urma unui incident/accident. Verificara pozitiei antenei va include de asemenea verificarea suportului acesteia (ex: deteriorarea sudurii sau fisuri).
|
F |
Pentru a verifica daca pozitia antenei este corecta fata sine, masuratorile se vor efectua in conformitate cu date mentionate in acest capitol. |
Aceleasi conditii ca si pentru antena baliza, capitolul 5.4.1 .
Figure , pozitionarea bobinelor receptoare
Pentru a verifica pozitia laterala si verticala a antenei, in primul rand masurati distanta dintre Y (pozitia laterala) si Z( pozitia verticala) conform figurii 5-9.
Valoarea absoluta permisa pentru "Z" in timpul operatiilor este intre 100 . 210 mm.
Pentru a calcula valorile limita ale intervalului permis se vor aplica urmatoarele calcule:
Zmin_calc (dist. min .calc.Z) = 100 mm + (Act - Min )/2 + (SME + MT)
Zmax_calc (dist.max.calc.Z) = 210 mm - (Max - Act )/2 - (SME + MT)
Min (diametrul min. Permis al rotii) = 730 mm
Max (diametrul max. Permis al rotii) = 780 mm
Act (diametrul actual al rotii conform uzurii) = 760mm (ex).
SME (Eroare sistematica de masuare)= +10 mm
MT (Toleranta) = +5 mm
La sfarsit verificati daca:
Zmin_calc ≤ Z ≤ Zmax_calc
Y = 100 ± 30 mm
Aplicand formulele de mai sus si exemplele de valori, vor rezulta urmatoarele valori pentru distantele minime si maxime:
Zmin_calc = 100 + (760 - 730)/2 + (10+5) mm = 130 mm.
Zmax_calc = 210 - (780 - 760)/2 - (10+5) mm = 185 mm.
Pentru a descoperi care este functia impulsurilor generatoare aplicati urmatoarele:
La fiecare 6 luni
|
F |
Verificati daca suruburile de fixare sunt stranse1. |
|
F |
Inspectati cablarea pentru a sesiza daca exista posibile avarii. |
La fiecare 10 ani sau dupa 2,000,000 km:
Indepartati tahimetrul dupa vehicul, demontati-l, curatati-l si montati-l la loc. Inlocuiti toate marcile, verificati componentele uzate si inlocuiti-le, daca este necesar.
Este indicat ca aceasta operatie sa se realizeze in urma unei discutii cu furnizorul, pentru a putea lua cea mai buna decizie.
|
F |
Urmariti capitolul 8.6 in care snut trasete procedurile pentru indepartarea si instalarea tahimetrelor. |
Nota! Introduceti noile dimensiuni ale rotii de fiecare data cand o roata este inlocuita sau modificata, si de asemena realziati acest lucru la intervale periodice.
Daca deviatia valorii este de ±3 mm sau mai mult , va fi setata o noua valoare.
Procedurile pentru ajustarea parametrilor in functie de dimensiunea rotii constau in urmatoarele activitati importante:
|
F |
Masurati acuratetea diametrului rotilor. Vo fi verificate doua valori, corespunzatoare a doua diametre de roti unde sunt montate tahimetre ATP. |
|
F |
Introduceti noile valori ale dimensiunilor rotilor in unitatea COMC_ATP. Pentru informatii detaliate legate de aceasta rocedura vezi ref[ |
Noile valori sunt introduse automat in unitatile MFSD odata ce sistemul ATC a pornit in mod corect. Valorile vor fi utilizate daca trenul va fi operat prin ocolirea ATC .
Nota! Masurarea si setarea diametrului rotilor reprezinta o activitate de o siguranta critica. Cotarea gresita a diametrului poate cauza calcularea gresita a distantei si vitezei, ceea ce poate conduce la situatii dezastruase.
Personalul responsabil cu setarea si masurarea diametrelor rotilor, trebuie sa verifice daca valorile diametrelor introduse sunt corecte.
Asigurati-va ca sistemul ATC este pornit, pentru a se putea realiza transferul parametrilor rotii catre MFSD. Chiar si in situatia in care trenul este manevrat prin metoda ocolirii ATC , este important sa efectuati aceasta procedura.
La fiecare 6 luni:
|
F |
Cu sistemul ATC in
executie si cu trenul stationand, apasati butonul DEP (YARD) pentru 10 secunde pentru a
provoca detectia erorilor. |
Nota! Daca aplicatia de franare nu se poate realiza din vreun motiv, este foarte important sa vizionati trasilitatea erorii, si sa nu permiteti sistemului ATC sa ruleze cu o capacitate de acces la franare deficitara!
La fiecare 6 luni:
|
I |
Inspectia vizuala a contactelor releelor! Se vor inlocui releele daca se observa contacte deteriorate, arse sau stricate. |
|
I |
Inspectia vizuala a cablurilor in perajma releelor. Invelisul, miezul si conectorii cablurilor nu trebuie sa fie deteriorate. |
|
F I |
Verificati ca semnalele negative ale iesirilor VDX (FS-, HR-) sa nu fie conectate la sasiu. |
Mentenanta corectiva consta in doi pasi principali:
1.Trasabilitatea defectelor in vederea localizarii componentei defecte, subsistemului sau functiei (vezi capitolul 7).
Inlocuirea unitatii defecte (vezi capitolul Eroare! Fara sursa de referinta.).
Pentru a resusi in mentenanta corectiva este important sa personalul as aiba cunostinte solide despre uneltele disponibile, pentru a avea acces la diferite subsisteme si de asemenea este faorte important sa acesta sa cunoasta modalitatea de interpretare a indicatorilor de erori.
La fel de important este ca departamentul de intetinere sa stabileasca rutine pentru a avea la dispozitie statistici legate de activitatile de interventie corectiva: inlocuirea unitatilor sau pur si simplu erori software. Statisticile corecte sunt o unealta nepretuita in descopretirea defectelor si imbunatatirea punctelor slabe ale sistemului.
Un jurnal de intretinere ar trebui tinut pentru obtinerea unor informatii legate de inlocuirea componentelor hardware, dowload-urile software si setarile parametrilor.
Nota! Inainte de a folosi ustensilele PC SW, trbuie citit manulul acestora.
O parte din masuratorile necesare pentru determinarea trasabilitatii defectelor cere utilizarea unui teminal PC. Cerintele si setarile terminalului PC sunt descrise inc apitolul 9.1. De asemenea, tot in capitolul 9 sunt descrise situatiile in care este necesara utilizarea terminalului PC.
In cadrul sistemului ATC, defectele pot fi detectate prin doua moduri:
In timpul testelor de pornire, care sunt executate de fiecare data cand sistemul ATC este pus in functiune.
In timpul unor operatii normal in cadrul caruia sistemul ATC, efectueaza teste asociate cu compenentele hardware si software.
Detectarea unui defect va fi semnalizata in doua moduri:
Aparitia unu cod de eroare sau a unui status de eroare la MFSD.
Un indicator LED va semnaliza defectarea in fata unitatii avariate.
MFSD indica erorile ATC in diferite moduri, atat prin statusuri de avertizare cat si prin afisarea unor coduri de eroare. Dispozitivele care au ca scop semnalizarea defectelor sunt afisate in figura urmatoare:

Figure , indicatorii in caz de defectare la MFSD
Modalitatea de functionare a MFSD si interconectarea cu sistemul ATC este descrisa in "Manualul Conducatorului" Drivers' ref.[ ]. In cele ce urmeaza se va trata numai modalitatea de indicare a erorilor.
Nota! Numai
MFSD al BM21 afiseaza codul de eroare
"indication of error code"( "indicatii cod de eroare"); mai multe despre
aceasta in formatie in capitolul 6.3.3 .
MFSD al BM2 arata "FAIL" in "indication of error code"
Inainte de a descrie modalitatea prin care conducatorul trenului este atentionat de prezenta unor erori, este necesar sa intelegeti modul in care erorile sunt clasate si manevrate in cadrul ATC.
Exist un tip de manevrare in cadrul sistemului ATP si unu pentru sistemul ATO .Defectele pot fi impartite in trei grupe in functie de gravitatea acestora:
Mesaje tip jurnal de bord
Defecte medii/minore
Defecte fatale
Toate mesajele sunt stocate in memoria COMC_ATP si COMC/VCULite_ATO. Pentru interpretarea codurilor de eroare vezi ref.[2] si ref.[ ] .
Mai mult decat atat, exista o platforma de supraveghere a functiilor sistemului, care permite supravegherea a starii tuturor unitatilor vitale. In plus pentru a directiona jurnalele emise de catre COMC_ATP si COMC/VCULite_ATO, exista o functie dedicata pentru jurnal, indeplinita de computeul trnului, care inregistreaza atat operatiile efectuate cat si mesajele de eroare.
Jurnalul mesajelor:
Un mesaj care indica un incident nu afecteaza siguranta sau conducerea trenului.Acest tip de mesaje sunt doar inregistrate fara a fi afisate conducatorului de tren. Un mesaj jurnal este inregistrat o singura data pentru fiecare incident, pana la urmatoarea activare a cabinei.Totusi, urmatoarele erori fca exceptie de la regula:
Mesaje jurnal cauzate de eronarea echipamentului de cale, ex: baliza.
Mesaje jurnal cauzate de esuarea comunicatiei cu echipamentul extern, ex:ATO.
Mesajul va fi inregistrat numai in jurnalul AE.
Defecte Minore/Medii:
Un defect detectat in timpul unei operatii, car nu afecteaza in mod vital functiile ATC, dar afecteaza condusul trenului intr-un anumit sens. In momentul depistarii unui defect minor/mediu ordinul de franare este activat. ATC va actiona dupa cum urmeaza:
In modul AUTO, conducatorul de tren este indrumat sa intre in modul .
In modurile YARD si MCS, nu este ceruta schimbare modului de functionare.
Este posibila eliberarea franei daca se merge in modurile MCS sau YARD iar defectul a disparut.
Defectul va fi inregistrat in jurnalul AE si afisat conducatorului.
Defecte fatale
Un defect detectat in timpul unei operatii care afecteaza vital functiile ATC. Cand este detectat un defect fatal , ATC se lanseaza in starea "Sistem esuat", ceea ce inseamna ca :
O alarma se va auzi in MFSD.
Viteza zero si valorile distantelor sunt trimise catre vitezometru.
Modul de informare ATC ste inlaturat de la panoul conducatorului de tren.
Defectul este inregistrat si afisat conducatorului[1].
Singurul mod prin care se poate iesi din acest mod il reprezinta relansarea (RESTART) sistemului.
Mesajul jurnal:
Un mesaj care indica un ncident care afecteaza conducerea trenului, insa permite conducerea acestuia in continuare.Acest eveniment consta doar in inregistrarea mesajului.
Mesajul va fi inregistrat in jurnalul AE.
Defecte medii/minore:
Un defect care afecteaza functionarea ATO. Cand un defect mediu sau minor este detectat , ATO se dezactiveaza automat. ATP va actiona franele. In modul AUTO se lanseaza o cerere de a intra in modul MCS. Actionarea franelor poate fi intrerupta cand modul este schimbat in MCS. Modul AUTO pote fi reluat in urmatoare statie.
Defectul va fi inregistrat in jurnalul AE.
Defecte fatale:
Un defect care afecteaza functii importante ale ATO. In momentul producerii unui defect fatal pentru sistem, ATO se va dezactiva si va intra si starea de "sistem esuat". ATP va actiona franele. Daca trenul se afla in modul AUTO se va emite o cerere de trecere in modul MCS. Este posibila eliberarea franelor in momentul trecerii in modul MCS.
Ingura modalitate de a iesi din aceasta stare si de a relua operarea trenului in modul AUTO este relansarea sistemului ATC (restart)
Defectul va fi inregistrat in jurnalul AE. Suplimentar, indicatorul de stare de alarma al MFSD va sclipi .
Toate mesajele de defectare sunt inregistrate in computerul trenului.
Sunt transmise urmatoarele mesaje:
ATP
esuarea circuitelor de cale
ATP defectare frane de siguranta
ATP Eroare a dimensiunii rotii
ATP defectare tahimetru
ATP SW Eroare
ATP VDX Eroare
MFSD Buton blocat
ATP Full Service Brake Failure
ATP esuare BTIU/BTM
ATP esuare CTIU
ATP esuare MMI
ATO eroare SW
Cand este detectata o conditie de siguranta critica, precum erorile de comunicatie ale memorie, CPU sau MVB ,intregul sistem se va inchide, in acest fel interzicand orice operare a softwarelui de aplicatii. Acest lucru atrage dupa sine urmatoare evenimente:
Sunt actionate franele de urgenta.
"FAIL (esuat)" este indicat pe ecranul de afisare a erorilor al MFSD .
Indicatorul de stare al alarmei ATP in MFSD este luminos.
Singura modalitate de iesi din aceasta stare o reprezinta restartarea sistemului. Testele de pornire vor oferi lamuri cu privire la tipul erorii; daca aceasta a fost permanenta sau temporara.
Este indicat sa se realizeze o verificare a starii unitatilor, vezi capitolul9.4, pentru a izola defectul. A se evdea de asemenea discutia despre erorile MVB in capitolul 7.5.2.
Exista o multitudine de erori care pot fi detectate prin intermediul sistemului ATC. Un set din acestea a fost selectionat pentru prezentare a MFSD. In unele cazuri unele erori de adresare care prezentau similaritati au fost grupate impreuna.
Selectia erorilor pentru afisajul MFSD contine 17 coduri diferite numite de la F001-F017. Codul este afisat in cifre, folosite de obicei pentru afisarea vitezei dorite pe ecranul MFSD. Tabelul alturat ofera o corespondenta intre cod si semnificatia acestuia.
|
Textul afisat |
Semnificatia erorii |
|
F001 |
Eroare frana de urgenta |
|
F002 |
Service brake error |
|
F003 |
Eroare releele de usa |
|
F004 |
Eroare VDX |
|
F005 |
Eroare MITRAC |
|
F006 |
Buton blocat |
|
F007 |
Eroare software ATP |
|
F008 |
Eroare circuit de cale |
|
F009 |
Eroare tahimetru |
|
F010 |
Eroare vitezometru |
|
F011 |
Eroare dimensiunile rotii ATP |
|
F012 |
Controllerul Master nu functioneaza |
|
F013 |
Combinatie invalida releele de control din capatetele trenului. (posibil cateva cabine activate) |
|
F014 |
Configuratie incorecta a trenului |
|
F015 |
Controlerul de directie in pozitie incorecta |
|
F016 |
Eroare Baliza |
|
F017 |
Eroare antena baliza |
|
F018 |
Switch-ul CAM in pozitie incorecta |
Table , afisarea codurile pe MFSD
Pentru multe dintre erori,aceasta tabela de corespondenta este suficient de clara pentru viitoarele corectii si masuratori. Totusi, in unele cazuri va fi necesar sa se actioneze pentru verificarea jurnalului AE din cadrul unuia sau mai multe unitati de computer,din moment ce unele coduri pot fi create dintr-o varietate de situatii defectuase. Procedura pentru citirea si interpretarea jurnalului AE este descrisa in capitolul Eroare! Fara sursa de referinta.
Detectia defectelor de catre ATC, poate fi indicata de asemenea prin combinatii de LED-uri pozitionate in fata unor unitati, vezi tabelul alaturat.
De asemenea poate fi un defect general al ATC ,sau numai un defect concentrat asupra unei unitati. Pentru a afla daca este vorba de o eroare specifica unitatii, unitatea poate fi izolata de restul sistemului ( indepartand cablul MVB) si pornita apoi ca unitate de sine statatoare.
|
LED-uri in fata COMC, BTIU, BTM si CTIU |
||
|
|
||
|
Culoare LED |
Descriere |
Eticheta |
|
Rosu |
Eroare |
ER |
|
Galben |
Avertisment |
WA |
|
Verde |
Activitate MVB |
MVB |
|
Verde |
Activitate de comunicatii seriale |
S-CO |
|
Verde |
Sistem in functiune |
OK |
Table . Description of the LED's at the front of the COMC, BTIU, BTM and CTIU
Tabelul urmator prezinta posibilele combinatii de LED-uri , impreuna cu semnificatia corespunzatoare a acestora:

6.3.5 Indicatoare LED in fata VCULite ATO
Unitatea cuprinde 8 LED-uri ( vezi figura 6-2 la pagina 43 pentru pozitionarea ledurilor) ,dintre care trei sunt controlate numai de unitatea hardware, vezi tabelul 6-3. LED-ul 'POW' de culoare verde este condus direct prin logica de defectare la alimentare la o unitate monitor alimentata la +5V. LED-urile TX si RX sunt actionate direct prin semnale hardware asociate canalelor de comunicatii seriale ale conectorilor X8 si X9.

Figure pozitia led-urilor VCULite
|
Nume LED |
Culoare |
Descriere |
Control |
|
POW |
Verde |
Power OK |
HW |
|
TX |
Galben |
Transmisiune de date pe canalele seriale RS232 sau1 0Base-T |
HW |
|
RX |
Galben |
Receptie de date pe canalele seriale RS232 sau 10Base-T |
HW |
Table led-uri controlate prin harware
Cele 5 LED-uri ramase ( ERR, MVB, S-C, WA si RTS) sunt folosite pentru a indica starea unitatii. Modelul de LED pentru fiecare stare reprezentativa controlata prin Basic SW este listat in tabelul 6-4.
|
Stare |
ERR |
MVB |
S-C |
WA |
RTS |
Descriere |
|
|
ON |
ON |
OFF |
ON |
ON |
Rulare codului de pornire |
|
|
ON |
OFF |
OFF |
ON |
OFF |
Suma de control a codului de pornire |
|
|
ON |
ON |
OFF |
ON |
OFF |
SiMon - suma de control |
|
|
OFF |
OFF |
OFF |
ON |
ON |
SiMon - rulare |
|
|
OFF |
ON |
OFF |
ON |
OFF |
Doawnload automat |
|
|
ON |
OFF |
ON |
OFF |
OFF |
FPGA date suma de control |
|
|
ON |
OFF |
ON |
OFF |
ON |
FPGA incarcare date |
|
|
ON |
ON |
OFF |
OFF |
ON |
Exceptii aparute |
Table starea led-urilor controlate prin Basic SW
Cand se afla in modul RTS (Run Time System) cele cinci LED-uri sunt controlate se sistemul de operare sau de o aplicatie precum cea descrisa in tabelul 6-5.
|
Nume LED |
Culoare |
Descriere |
|
ERR |
Rosu |
Detectia erorilor |
|
MVB |
Galben |
Activitate pe canalele de comunicatii MVB |
|
S-C |
Galben |
Activitate a unei aplicatii specifice canalelor de comunicatii seriale |
|
WA |
Galben |
Avertisment |
|
RTS |
Galben |
Timpul de rular al sistemului |
Table descrierea led-urilor
Este important sa observati comportamentul sistemului la aparitia unuei erori, ex afisarea codului de eroare pe MFSD,indicatoarele LED pentru unitati, pozitia vehiculului sau alte circumstante speciale.
Cand vehiculul a intrat in depou, jurnalul AE va fi verificat cu scopul de a obtine informatii suplimentare, vezi capitolul 9.5 pentru informatii suplimentare.
Trasabilitatea defectelor poate fi grupata in urmatoarele categorii principale:
Prin efectuarea unor teste de pornire
Prin efectuare unor teste de functionalitate
Prin identificarea unui defect temporar
Daca un defect este cauzat de o eoare software, sau este imposibil de identificat defectul, informatiile despre defect vor fi trimise catre Bombardier Transportation pentru investigatii suplimentare .Defecarea va fi raportata prin completarea unui formular tip de raportare a defectelor , conform Instructiunilor consumatorului din ref.[ ].
Efectuati un test de pornire conform capitolului 0
Daca defectul apare inainte ca sistemul ATC sa fi incheiat procedura de pornire, actionati actionati conform capitolului 0.
Daca defectul apare in momentul in care sistemul ATC a finalizat procedura de pornire actionati conform capitolului 7.5
Daca eroare nu este detectata in timpul testelor de pornire, trenul trebuie operat. Erprire legate de detectia vitezei, decetia balizei, detectia directie , detectia telegramenlor AF sunt mai usor de detectat in timpul operarii trenului decat in timpul testelor de pornire
Testele dedicate de cale pentru fiecare linie sunt pregatite, ceea ce permite rularea unul test de functionare in cadrul caruia sunt executate majoritatea sistemelor si interfetelor.Testul de operare(functionalitate) este descris in capitolu 10.3 .
Pot aparea erori care sa nu poata fi analizate in cadrul testelor dedicate de cale, datorita infrastructurii limitate disponibile. In acest caz trebuie folosite alte linii si pozitii. O sursa a erorii care necesita atentie speciala o reprezinta subsistemul ATO . Acesta fiind un subsistem care lucreaza intr-un mediu in care exista multe conditii de care trebuie tinut cont si care trebuiesc corelate, poate fi dificil sa fie urmarita trasabilitatea defectului. Un capitol special se adreseaza trasabilitatii defectelor pentru functiile ATO, vezi capitolul 7.6
Pentru a facilita trasabilitatea defectelor in aceste circumstante, este indicat sa se primeasca informatii de la jurnalul de evenimente al computerului de tren (MITRAC).
Exista cateva aspecte importante de luat in considerare in realizarea trasabilitatii unui defect si cautarea oricariu " specimen de eroare" :
Pierderea sau uzura conectorilor si setarea gresita a pinilor conectorilor poate genera aparitia defectelor, doar prin aparitii sporadice.
Climat:Are legatura aparitia erorii cu conditiile de temperatura si umiditate?
EMC: Eroare apare in combinatie cu alte activitati ale sistemului trenului care pot cauza diferite efecte asupra puterii de intrerupere sau un camp electromagnetic de radiatii neobisnuit?
Este
frecventa aparitiei erorii legata de o anumita zona gegrafica?
- Un subsistem poate fi subiectul EMC (
perturbatiilor electromagnetice) din surse externe.
-Baliza specifica poate fi montata la limita valorii critice (inaltime, latime,
pozitie longitudinala), astfel ca unele antene reusesc sa isi indeplineasca
functia de detectie in timp ce altele nu.
- circuitele de cale specifice sau buclele pot fi ajustate incorect , ceea ce poate cauza
momente in care codul de detectie ATP sa functioneze doar sporadic.
Pentru a facilita urmarirea trasabilitatii defectelor, este indicat sa se p[rimeasca informatiile din jurnalul evenimentelor din cadrul computerului trenului(MITRAC).
Daca nu este posibila identificarea sau urmarirea unui defect, eset posibil sa fie necesara montare unui dispozitiv de testare special, pentru a analiza si investiga problema.
Nota! Daca o siguranta s-a ars, motivul trebuie cautat inainte ca sistemul ATC sa fie pus in functiune.
In aceasta situatie este indicata verificarea cablurilor prin urmarirea diagramelor circuitelor electrice.
Trasabilitatea defectelor trebuie facuta in conformitate cu urmatoarele secvente, depinzand de comportamnetul sistemului in urma erorii:
De obicei in aceasta situatie LED-rile nu indica nimic in dreptul unitatilor iar MFSD nu indica aparitia niciunui cod de eroare.
Verificati daca circuitul de franare pentru fiecare dintre unitatile ATC este in pozitie ridicata.
Verificati starea cabarii prin aplicarea diferitelor diagrame ale circuitelor electrice.
La pornirea sistemul ATC lanseaza testel de pornire si intrarea apoi intra starea de inactiv pana la activarea cabinei, ceea ce permite realizarea unor teste de activare a cabinei.
Cand activarea cabinei este finalizata, se intra in modul YARD.
In mod independent de activarea cabinei, toate unitatile conectatae MVB trebuie sa execute si sa indice starea de "rulare". Aceasta stare poate fi verificata prin intermediul unui terminal PC, perecum cel descris in capitolul 9.4.
Un motiv pentru care o unitate nu s-ar afla in starea de"running" (rulare) ar putea fi oricare dintre urmatoarele:
Lipsa alimentarii de la retea
O unitate a atribuit gresit identitatea unui produs sau revizia.
( Identitatile si revizuirile compatibitile sunt aratate in figura 9-1 pag 66)
SDA nu este setata corect (se aplica numai pentru COMC_ATP, COMC/VCULite_ATO, BTIU/BTM si CTIU)
Dispozitiv hardware de adresare (strapping) nu este corect setata .
Comunicatia MVB este cazuta
Unitatea are un hardware defect. Daca unitatea in discutie este echipata cu LED-uri pe parte frontala, eroare va fi indicate prin ledul "ER, vezi capitolul 6.3.4
DLU (aplicatie software) nu este descarcat in unitate (aplicabil pentru COMC_x, VCULite, BTIU/BTM si CTIU). Aceatsa situatie va fi indicate de LED-ul "idle mode", vezi capitolul 6.3.4 si capitotlul 6.3.5.
Testele de frana nu sunt efectuate cand cabina este activata
Daca testele de franare nu sunt effectuate sunt cel putin trei motive pentru ceearea acestei situatii:
Sistemul ATC nu detecteaza semnalul de activare a cabinei. Acest lucru poate fi verificat prin investigarea semnalului de intrearea al computerului trenului (MITRAC) (a se studia diagramele circuitelor electrice).
Linia de franare este deschisa la oricare dintre sisteme. Aceasta retine sistemul ATC de al efectuarea testelor de franare, pentru ca sistemul ATC are nevoie de linia inchisa pentru lansarea procedurilor de testare a franelor.
Sistemul
ATC a depistat un defect la iesirile VDX. Acest defect poate fi cauzat de unul
dintre motivele:
- Circuitul conectat la iesirea VDX FS
este stricat
- VDX nu controleaza deschiderea tuturor iesirilor, voltajul scade la 6 V. Motivul ar putea fi interferenta
cablurilor.
- Reteaua externa de alimentare a iesirilor VDX este defecta.
- Unitatea VDX este defecta.
7.5 Detectia defectelor cand lansarea sistemului ATC este finalizata
Erorile care apar dupa activarea cabinei si dupa efectuarea testelor de pornire, sau in timpul efectuarii unor operatii, trebuiesc manevrate dupa cum urmeaza:
[Numai pentru BM21]:- Urmariti mesajul de eroare afisat de MFSD si verificatii semnificatia, vezi capitolul 6.3.3
Verificati starea LEDurilor , vezi capitolul 6.3.4 si capitolul 6.3.5
Cand tipul erorii a fost identificat , urmati unul dintre urmatoarele subcapitole, unde sunt listate tipurile de erori.
Daca este suspectata o eroare a I/O a sursei, este indicat sa se ia in considereare utilizarea unitatii de pentru a facilita verificarea tensiunii circuitelor electrice, vezi capitolul 9.8.1
7.5.1 Descrierea codului de eroare MFSD numai pentru seriile BM21
Urmatorul capitol descrie codul de eroare care este afisat de MFSD numai pentru seriile BM21. Aceste erori nu sunt afisate de MFSD pentru BM2 datorita diferentelor intre software-ul ATP pentru seriile BM2 si BM21.
Cazul 1; aplicatia franare de urgenta nu este executata:
Sistemul de franare al trenului, sau interfata EB a sistemului ATC al trenului este defect.
Releul EB nu este capabil sa deschidac linia de franare . Acest lucru se intampla pentru ca releu este dezexcitat/deconectat: Verificati circuitele care au legatura cu ATC. De asemenea , observati influenta releelor EB in cabinele dezactivate ale altor trenuri.Fiti atenti daca releul este excitat, linia de franare va sta inchisa independent de starea releului EB in cealalata cabina.
Releul pentru franarea de urgenta nu functioneaza corect (Bobina nu se alimenteaza sau contactele sunt uzate).
Vehiculul a actionat déjŕ franele cand a fost initiat testul de verificare a acestora..
Cazul 2; Aplicatia de franare de urgenta este indeplimita:
Feedback-ul de franare de la sistemul de franare nu este primit in timp real.
Semnalul releului EB nu este receptionat in mai putin de 300 ms. Acest lucru se intampla daca contactele releelor nu sunt correct instalate
Receptia semnalului EB de la computerului trenului (MITRAC) nu este efectuata in mai putin de 1 sec.
Unul dintre contactele releului EB nu functioneaza correct.
Micsorarea vitezei nu este suficienta sau efectuata la timp. Performantele de franare asteptate de catre sistemul ATC reprezinta echivalentul unuei scaderi a vitezei cu 60% in 0.87 m/s2 (=0.5 m/s2). La viteza redusa (< 3 km/h), aceasta scaderea vitezei nu este masurabila, insa trenul treuie sa opreasca in mai putin de 3 s.
Cazul 1; Aplicarea ordinului de franare nu este executata
Sistemul de franare al trenului I special interfata SB a sistemului ATC, este defecta
Vehiculul a actionat déjŕ franele inad a fost initiat testul de verificare a acestora..
Defect hardware in cadrul unitatii computerului trenului (MITRAC) care controleaza SB.
Cazul 2; Aplicarea ordinului de franare este executata :
Releul SB nu receptioneaza semnalul de la computerul trenului (MITRAC) in mai putin de 1 sec.
Micsorarea vitezei nu este suficienta sau efectuata la timp. Performantele de franare asteptate de catre sistemul ATC reprezinta echivalentul unuei scaderi a vitezei cu 1.00 m/s2, pornind de la 5 s. dupa "decizia SB". La viteza redusa (< 10 km/h), micsorarea vitezei este mica , aceatsa scazand liniar la zero.
Aceasta eroare presupune ca trenul se afla in miscare fara a fi semnalizata inchiderea usilor. Posibilele cauze sunt:
POate fi o greseala de operare, trenul in realitate deplasandu-se cu toate usile inchise
Releul RL-PC este posibil sa nu fie alimentat datorita unor defectiuni ale circuitului extern
Releu RL-PC nu functioneaza correct. Verificati circuitul.
Alimentarea cu energie electrica lipseste la iesirile VDX sau unitatea VDX
Dispozitiv hardware de adresare ( strapping) la conectorul X3 nu este corecta ( trebuie sa fie 384). Prin urmare , nu se potriveste cu , ceea ce poate cauza aparitia unei stari de defectare
Exista o intrrupere in ciruitul conectat la iesirile VDX FS
Una dintre iesirile VDX nu este capabila sa schimbe o stare de " Open ". Aceasta inseamana ca tensiunea la iesire nu a scazut cu aproximativ 6V cand iesirea a fost intrerupta. Motivul il pot constitui perturbatiile din cablu, sau voltajul bateriei care poate fi accidental conectat directa la iesire.
Unitatea VDX are un defect hardware.
Eroare MVB , vezi capitolul .
Computerul trenului (MITRAC ) nu functioneaza cand ATC cere citirea/scrierea informatiilor.
Eroare MVB, vezi .
Aceasta eroare apare cand butonul de apasare MFSD este detectat ca fiind apasat de mai mult de 10 secunde.Cauzele posibile sunt :
Butonul este apasat mai mult de 10 s, prin asezarea unui obiect sau prin eroare unama.
Contactele butonului MFSD sunt defecte
Cand este descoperita o eroare SW de catre ATC este foarte important sa se urmareasca simptomele si circumstantele, inculsiv starea altor dispositive sau parametrii precum Controller-ul Master Controllers i Controller-ul de directie, indicatii ale MFSD, baliza, etc.
Acest tip de eroare de obicei poate aparea din mai multe cause. De aceea este indicat sa se verifice jurnalul AE pentru a obtine informatii, pentru mai multe detalii vezi capitolul 9.5.
Este recomandata efectuarea catorva porniri ale successive ale sistemului pentru a se observa daca eroarea este temporara sau permanenta.
Se va trimite care Bombardier Transportation unraport cu intreaga informatie pentru a fi investigata..
Lipseste alimentarea cu energie de la retea catre CTIU.
Verificati conexiunile si cablurile intre CTIU si collector( cutia de record).
Verificati conexiunile si cablurile dintre colector si PUC-uri.
Verificarea pozitiei PUC, vezi capitolul 5.6
Verificati circuitul de cale la care s-a produs eroare,cu un dispozitivde masurare/investigare a ciruitelor de cale .
Lipseste alimentarea cu energie de la retea catre SDU.
Dispozitivul de adresare( strapping ) in conectorul X3 nu este corecta (ar trebui 256). Prin urmare, nu se potrivesc SID-urile software , ceea ce poate determina SDU sa intre intr-o stare de defectare.
Alimenatrea cu energie (de la SDU) de la tahimetru lipseste sau nu este conform indicatiilor. Voltajul va fi intre 15.3-21.5 VDC +/-5% la un nivel normal (tahimetru conectat).
Una dintre intrarile semnalelor tahimetrului lipseste sau indeplineste toate cerintele. Semnalul tahimetrului va fi de forma de unda patratic. Nivelul de intrare al curentului va fi intre 500µA pentru a detecta valoarea "Low" si 6,5mA pentru a detecta valoarea "High".
Perturbatiile semnlaleor de la intrarea tahimetrului (probleme EMC).
Tahimetrul este defect
Defectiune hardware a unitatii SDU.
Eroare MVB, vezi capitolul .
Alte defecte aparute la SDU sunt miscarea din pozitia corecta , sau setarea gresita a parametrilor rotii. Totusi, pentru ca aceste defecte sa fie detectate trenul trebuie sa se afle in miscare.
Aceasta eroare poate fi afisata datorita neglijentei operationale:
Conducatorul a condus trenul prea repede, Depasirea vitezei legale. In acest caz , eroarea/franarea poate fi rezolvata direct, dupa care indicatia va fi stearsa.
In alt caz , o eroare poate fi detectata in informatia trimisa de la MFSD la ATC, care trimite inapoi mesaje de eroare pentru a fi afisate de MFSD. In acest caz, eroare provine dintr-o eroare SW sau HW a MFSD:
Verificati starea indicatorului MFSD .
Executati o testare a butonului conform procedurii din capitolul 5.3
Verificati alimentarea cu energie a MFSD.
A fost detectata o eroare in formatul sau dimensionarea parametrilor rotii .Aceasta poate determina aparitia unui defect in NVMEM al COMC_ATP.
Valorile luate din memorie sunt in afara intervalelor specifice.
Deviatia rotilor este prea mare una fata de cealalta. Deviatia maxima admisa 20 mm.
In orice caz este recomandat sa se reincarce dimensiunile aprametrilor rotii pentru rezolvarea erorii, conform capitolului 9.3.1
Aceasta eroare apare la activarea cabinei in cazul in care Controllerul Master este detectat ca ne fiind in pozitia de functionare, conditie necesara pentru a fcailita testele de pornire . Cauzele posibile sunt:
Controllerul nu functioneaza datorita unei erori unamne.
Computerul trenului care trimite semnale de intrare catre ATC este defect.
Nu se utilizeaza in proiectul din Bucuresti.
O inconsistenta a fost detectata in configuratia datelor trenului , probabil datorita unei setari gresite a parametrilor .
Este recomandat sa se reincarce configuratia datelor trenului pentru a se putea sterge eroare, conform capitolului 9.3.1
Nu este aplicabil proiectului din Bucuresti.
Informatie gresita transmisa de baliza
Baliza lipseste sau este gresit pozitionata
Baliza are un defect hardware
Parametrii rotilor nu sunt corect setati (aceasta mascheaza integrarea balizei in profilul energetic)
Influenta erorii antenei baliza (F017)
Alimentarea cu energie a BTM lipseste
Perturbatii pe cablul antenei baliza (degradarea cablului, pierderea conectorilor sau a pinilor, probleme EMC).
Probleme EMC cauzate de campul electromagnetic din vecinatatea antenei. Frecventa limita 4,5 MHz.
Antena nu se afla in pozitia corecta
Antena este pozitionata peste o baliza sau un corp solid metalic cand sistemul ATC efectueaza testele de pornire.
Eroare in cale (transmiterea unei informatii incorecte de catre baliza).
Defect haerware in BTM.
Defect haerware al antenei baliza
Eroare MVB ,vezi .
In cazul unei erori a MVB, unitatile computerului care sunt conectate la MVB vor indica eraorea prin intermediul LED-urilor. Indicarea erorii la MFSD nu poate fi prezisa exact deoarece depinde de tipul erorii MVB. O regula generala, daca unitatile vitale pierd capacitatea de a comunica, acestea se vor opri, deoarece sistemul platforma de supraveghere va detecta eroarea, vezi captitolul 6.3.2.4 MFSD va afisa mesajul "FAIL" pe ecranul de afisarea a codurilor de eroare. Daca sunt suspectate probleme de comunicatii este recomandat sa se verifice strea unitatilor, conform procedurii descrise in capitolul 9.4 cu scopul de a izola defectul.
Posibilele cauze ale unei erori de comunicatie MVB, sunt::
Comunicatia MVB intrerupta (pierderea contorilor sau pinilor MVB).
Perturbatii in comunicatia MVB (probleme EMC).
Mufa terminala nu este conectata corect sau este defecta.
Defect al unitatii MVB .
7.6 Defecte ale ATO
Deefectele ATO nu sunt indicate direct pe MFSD, cu exceptia celor fatale pentru ATO, care sunt indicate prin alarma ATO care va sclipi. IN timpul operatiei un defect ATO, este anuntat prin schimbarea nesteptata a modului AUTO in modul MCS. Defectarea ATO poate proveni din mai multe cauze, si de aceea este recomandata verificarea jurnalelor AE al COMC/VCULite_ATO pentru obtinerea unor informati suplimenatre, vezi capitolul 9.5
Exista mai multe motive care pot determina aparitia unor defecte ale ATO , pe care le vom enunta in subcapitolele urmatoare:
7.6.1 Defecte ale unitatii ATO
Cauze posibile:
Intreruperea alimentarii unitatii COMC/VCULite_ATO
Defectarea hardware a unitatii COMC/VCULite_ATO.
Defectare software in apliactii ATO. Acestea pot fi remediate prin simpla repornire a sistemului.
Eroare MVB .
7.6.2 Defecte legate de aparitia unor informatii gresite ale trenului
Este de o importanta cruciala ca datele trenului sa fie corect setate pentru ca ATO sa functioneze corect. Urmatoarele aspecte trebuie atribuite unei functionari incorecte a setului de date al trenului:
Precizia ATO opreste trenul, dar intotdeauna la o pozitie relativa fata de pozitia normala de oprire. Acest lucru se intampla probabil datorita unor setari gresite ale configuratiei trenului, vezi capitolul. 9.3.1
Locatiile stabiliate sunt ignorate. Aceasta este cauza pentru care sajustarea parametrilor rotii poate fi defectuasa. Acest lucru determina o masurare a lungimii eronata, ceea ce impiedica ATO in sa gaseasca cea mai apropiata baliza. (ATO prezinta o "gama de cautare" limita in cadrul careia baliza trebuie cauta, altfel este ignorata).
Fiecare dintre unnitatile computerului , COMC_x, VCULite, CTIU, BTIU si BTM, inregistreaza un jurnal al erorilor in memoria lor. Aceasta informatie este retinuta pana cand sistemulATC este oprit. (NOTA: Dezactivarea cabinei nu opreste ATC) .
Este importanta extragerea jurnalului de erori din unitati inainte ca trenul sa fie oprit.
Nota! VCULite o baterie back up ce permite inregistrarea erorilor pana in momentul epuizarii acesteia. Bateria se fla in unitatea externa MOBAD , pentru a schimba aceasta baterie vezi ref.[ ].
Urmati urmatoarele instructiuni cand inlocuiti unitatile ATC. Montarea fizica a unitatilor este descrisa in desenele de montare..
Nota! Cand o unitate a fost inlocuita, s-au efectuat daowloaduri, setari de parametrii sau s-au efectuat teste , acestea trebie sa se fi efectuat inainte ca vehiculul sa fie pus in functiune, dupa cum se va explica in urmatoarele sectiuni!
Toate unitatile si cablurile sunt identificate dupa eticheta. Este o parte a mentenantei corective, evitarea riscului de combinare a conexiunilor, lucru posibil cand la un loc se gasesc mai multe cabluri cu conectorii de acelasi tip.
Opriti alimentarea cu energie a sistemului ATC .
Pierderea suruburilor de montare al tuturor conectorilor, apoi indepartati conectorii din unitate, inclusiv componenta terminala MVB , daca exista.
Deconectati cablul de legare la pamant.
Pierderea suruburilor de montare ale unitatii.
Indepartati unitatea defecta de la locul ei.
Indepartati pinii mecanici codificati de la unitate, daca exista.
Verificati dca unitatea este etichetata cu numarul de productie corect.
Remontati pinii mecanici codificati noii unitati, daac este necesar. Carcasa conectorului unitatii va prezenta pini codati in acelasi mod cu conectorul X3, vezi capitolul 8.1.1 .
Montarea unitatii si securizarea tuturor suruburilor montate prin aplicarea unei forte de strangere corecte.
Conectati cablul cu legatura la pamant. Verificati ca suprafata de contact sa fie curata.
Masurati rezintenta electrica dintre unitatea ea mai apropiata si sasiul vehiculului. Re\istenta maxima admisa este 1.0 Ω.
Conectati toti conectorii, incluzand capatul MVB, daca exista, si securizati suruburile montate prin aplicarea unei forte de strangere corecte.
Alimentati sistemul ATC .
Daca COMC, VCULite, BTM, BTIU (sau CTIU, nu este updatata cu ultima versiune a SW ): Download-ati fisierul DLU , vezi capitolul 9.2.
Daca COMC, VCULite, BTM, BTIU sau CTIU: Setati valoarea SDA, vezi capitolul 9.3.2.
Daca COMC_ATP: Setati datele trenului, vezi capitolul 9.3.1.
Daca BTIU: Setati lungimea cablului antenei, vezi capitolul 9.3.3
Executati un test de pornire in conformitate cu procedura din capitolul 0.
Executati un test de operare conform procedurii descrise in capitolul 10.3
Inlocuirea BTM in principal include urmatoarele activitati:
Dezactivarea ATP cu cheia de activare a cabinei.
Oprirea alimentarii de la baterie pentru BTM care va fi inlocuit.
Deconectare toti conectorii.
Deconectare cablurile de impamantare.
Pierderea suruburilor de montare.
Indepartati pinii mecanici codificati de la unitate, daca este cazul.
Indepartati unitatea defecta de la locul ei.
Verificati numarul produsului, revizia si daca este cazul numarul de serie al noii unitati, conform cerintelor.
Montati noua unitate cu mounting screws.
Conectati cablul de impamantare ( verificati ca suprafata de contact sa fie curata).
Remontati pinii mecanici codificati noii unitati, daca est cazul. Carcasa conectorilor unitatii va fi codata cu pini in acelasi mod cu conectorul asociat X3, vezi capitolul 8.1.1 .
Atasati toti conectorii de cabluri.
Treceti alimentarea pe baterie a BTM care urmeaza sa fie schimbat. Inainte de a porni unitatea BTM, fiti siguri ca BMT are cablul antenei conectat la cutia antenei.
Realizati calibrarea la bordul echipamentului de baliza conform Ref. [ ].
Downloadati software-ul BTM conform sectiunii 9.2 .
Downloadati SDA conform sectiunii 9.3.2 .
Efectuati verifivarea de calibrare a echipamentului de antena de baliza conform Ref. [12].
Realizati un test de pornire conform procedurii descrise in capitolul 10.2.
Realizat un test de operarea conform procedurii descrise in capitolul 10.3
Opriti sistemulATC , inclusiv circuitul magnetic de intrerupere al MFSD.
Indepartati cele patru suruburi din fata unitatii.
Scoate cu grija MFSD din panoul de control.Atentie, cablajul din prejut trebuie manevrat astfel incat acesta sa nu fie avaratiat in timpul rpocedurii.
Deconectati toti conectorii de cabluri, inclusiv suprafata de terminare a MVB daca este cazul.
Deconectati cablul d eimpamantare.
Indepartati unitatea defecta.
Conectati cablul de impamantare la noul MFSD.
Conectati conectorii de acabluri si suprafata de conectare a MVB , daca este cazul, la noul MFSD.
Puneti noul MFSD la locul sau inc adrul panoului de comanda.
Inserati suruburile de montare si strangeti-i.
Comutati alimentarea pe baterie cu circuitul magnetic de intrerupere..
Efectuati un test de pornire conform procedurii descrise in capitlul 0.
Efectuati un test prin apasarea butonului conform capitolului 0.
Efectuati un test de operare .cap 10.3
Testati modul autonom al MFSD prin inchiderea ATP prin intemediul switc-ului CAM actionat in pozitia "MINERVA". Actionati trenul si verificati daca este indicata viteza.
Actionati switch-ul CAM in pozitia "ATP"
Indepartati MFSD conform capitolului 8.3.1
Inlaturati partea metalica din partea din spate a MFSD prin demontarea suruburilor.
Schimbati siguranta in interiorul MFSD.
Punei la loc partea metalica..
Montati unitatea conform capitolului 8.3.1.
Este recomandata utilizarea uneltelor de intretinere speciale pentru inlocuirea lampilor.
Indepartati protectia.
Schimbati becul.
Put back the bonnet.
Efectuati un tets prin apasarea butonului pentru a verifca daca toate compenentele functioneaza.
Inlocuirea antenei Gray pentru seriile BM2 este diferita de cea a Cutia antenei pentru seriile BM21 in unele detalii.O inlocuire a antenei baliza va asigura o urmare corecta a instructiunilor.
Pentru inlocuirea antenei Gray vor avea loc urmatoarele activitati antena este conectata cu BTIU numai pentru seriile BM)
Opriti sistemul ATC.
Indepartati capacul emitatorului si al conectorilor cablurilor de receptie.
Decomenctati emitatorul si si conectorii cablurilor de receptie de la unitate.
Desfaceti mufele bucselor izolante. Slabirea piulitelor atasate.
Asezati in afara unitatii antenei, bucsele izolante si cablurile antenei.
Deconectati cablul de legatura cu pamantul
Desfaceti cele patru bolturi ale antenei si indepartatile.
Securizati antena cu cele 4 bolturi.
Masurati distanta de montare conform procedurii de verificare a pozitiei descrisa in capitolul 5.4 .daca este necesar, demontati antena si ajustati structura metalica pentru a obtine distantele corecte.
Atasati corect puntea cu legare la pamant, de antena.Asigurativa ca exista legatura electrica intre unitatea antenei si sasiul vehiculului.Rezistenta maxima permisa este de 1.0 Ω.
Asezati cu atentie bucsele izolante si tuburile de protectie in noua unitate a antenei.
Protejati suruburile prin bucsele izolante.
Conectati cu atentie emitatorul si conectorii cablurilor de receptie in noua unitate a antenei.
Inlocuiti capacele protectoare ale emitorului si conectorilor cablurilor de receptie.
Verificati intensitatea campului magnetic produs de noua antena conform capitolului 5.5
Daca rezultatul esteOK, efectuati un test de operare conform capitolului 10.3
Activitatile efectuate pentru inlocuirea cutiei antenei (CAU)sunt urmatorele, cand aceasta este conectata cu BTM numai pentru seriile BM2.
Dezactivati ATP cu cheia de activare a cabinei.
Opriti alimentarea de la baterie BTM.
Indepartarea capacului de protectie al cablului conectroului antenei.
Deconectati cablul conectorului antenei de la cutia antenei.
Slabirea piulitelor din zona bucselor izolante.
Indepartati bucsele izolantecu tuburile si cablurile izolante de la cutia antenei.
Slabiti clemele montate la sol, daca este cazul, ale cutiei antenei.
Indepartati cele 4 suruburi ale cutiei antenei.
Mutati bucsele izolante de la noua cutie a antenei la cea care urmeaza sa fie inlocuita.
Verificati daca numarul de productie, revizia, si daca este cazul nuamril de serie al noii unitati, indeplineste cererile.
Manevrati in siguranta noua cutie a antenei .
Verificati posibilele diferente de nivel. Daca apar diferente mai mare de 1 mm acestea trebuiesc compensate.
Montati cutia antenei cu cele 4 surubuti (piroane)
Masurat distantele din urma montarii conform verificarii pozitiei din capitolul 5.4 .Daca este necesar demontati antena si ajustati structura pana obtineri distantele corecte.
Montati clemele de la sol,daca este cazul, cutiei antenei. Asigurati-va ca exista o conexiune intre cutia antenei si sasiul vehiculului. Rezistenta maxima dintre sasiul vehiculului va fi de 1,0 W.Puneti cu atentie bucsele izolante cu tuburile si cablurile protective in cutia antenei.
Securizati mufele prin bucse izolante.
Conectati cu atentie cablul antenei la Cutia antenei.
Montati capacul protector peste conectorul cablului de antena..
Schimbati alimentarea cu baterie pentru BTM.
Efectuati calibrarea echipamentului balizei onboard conform Ref. [11].
Downloadati soft-ul BTM conform sectiunii 9.4.
Efectuati o verificare a calibrarii echipamentului de baliza onboard, conform Ref. [12].
Activarea ATP cu cheia de activare a cabinei.
Se efectueaza tetsul de pornire al sistemului ATP.
Verificti dca testele de pornire s-au efectuat fara erori.
Efectuati testele de operare din capitolul 10.3
Exista cate o PUC in fata fiecarei roti ale primei osii in fiecare directie de mers. La un capat al PUC, cablul este capsulat in PUC iar la celalat capat acesta intra in cutia de jonctiune.Pentru inlocuirea bobinelor receptoare defecte procedati astfel :
Opriti alimentarea sistemului ATC.
Deconectati cablul din cutia de jonctiune.
Demontati suruburile care tin PUC si indepartati PUC.
Verificati conditia suportilor Uitati-va dupa lovituri, si inlocuiti suporturile daca este necasara.
Montati noile PUC.
Efectuati o verificare a pozitiei urmand instructiunile din capitolul 5.6
Conectati cablul in cutia de jonctiune.
Porniti sistemul ATC si efectuati testele de pornire conform procedurii dn capitolul 10.2
Efectuati un tets de operare conform capitolului 10.3
Nota! Este important sa se verifice conditia suporturilor de montare ale bobinelor receptoare.Fisurile pot evolua usor in sparturi ceea ce poate determina caderea sistemului.
Fiecare sistem ATC are atasate doua tahimetre. La un capat al tahimetrului cablul este capsulat iar la celalat capat cablul se termina in cutia de conexiune.Urmati urmatoarea procedura cand inlocuiti un tahimetru defect:
Opriti alimentarea sistemului ATC.
Deconectati cablul tahimetrului de la cutia terminala.
Demonati toate clemele pentru cabluri.
Demontati cele patru surubri cu care este fixat tahimetru de ax.
Scoateti tahimetrul si indepartati-l din lcoul de fixare.
Nu slabiti flansa de adaptare,decat daca este necesara schimbarea (boogie ). In acest caz este necesara atat schimbarea flansetei de adaptare cat si pinilor la noul ( boggie).
Aasati cu grija noul tahimetru in mansonul de cabluri. Fiti siguri ca bransamentul tahimetrului este inserat langa pini, pot aparea erori de masurare!
Protejati cele patru suruburi prin apicarea unei forte de strangere potrivite(31-34 Nm).
Conectati cablul tahimentrului la cutia terminala.
Asigurativa ca iesirea cablurilor la tahimetru are unghiul corect iar raza formata de cablu nu este prea mica (min 150 mm), vei Figure 0-1.
Montati clemele pentru cabluri.
Efectuati un test de operare conform procedurii din capitolul Eroare! Fara sursa de referinta..
Figure generatorul de impulsuri, fixare
Inlocuirea cablurilor si conectorilor avariati se va realiza numai cu aprobare. Pentru informatii detaliate legate de punctele de conexiune ale conectorilor vezi ref.[4] si ref.[ ].
|
Alternative |
Lungime [m] |
Toleranta [m] |
|
|
|
|
|
|
|
|
|
|
|
|
|
|
|
|
|
|
|
|
|
|
|
|
|
|
|
|
|
|
|
|
Table , Restrictions on cable lengths between connector X8 and the Antenna Unit
Pentru precizari legate de instructiunile de montare ale conectorilor Rx si Tx vezi ref.[ ] si ref.[8].
Inlocuirea cablului CAU - BTM presupune urmatoarele actiuni:
Deactivati ATP cu cheia de activare a cabinei.
Opriti alimentarea de la baterie a BTM.
Indepartati capacul de protectie al conectroului de cabluri al antenei .
Indepartati conetrorul de cabluri al antenei de Cutia antenei.
Indepartati conetrorul de cabluri al antenei de BTM.
Verificati daca numarul produsului, revizia si daca este necesar numarul de serie al noii unitati, indeplinesc cererile..
Inlocuiti cablul
Conectati conectorul cablui de antena la BTM.
Atasati cu grija conectorul de cabluri al antenei la CAU.
Montati capacul de protectie peste conectorul de cabluri al antenei.
Comutati pe alimentarea cu baterie a BTM.
Realizati calibrarea echipamentului de baliza conform Ref.[11].
Download.ati software-ul the BTM conform sectiunii 9.2
Realizati o verificare a calibrarii echipamentului de baliza conform Ref.[12].
Activati APT prin cheia de activare a cabinei
Sistemul ATP realizeaza un etst de pornire.
Verificati daca tetsul de pornire s-a efectuat fara erori.
Inlocuirea releeelor defecte se face numai cu aprobare.
Nota! Retineti ca integritatea intregului sistem ATC este obtinuta prin utilizarea unor relee de clasa de siguranta.De aceea acestea nu trebuiesc inlocuite cu relee mai slabe.
Exista cateva unelte folositoare pentru service si intretinerea a unitatilor ATC, care trebuie sa fie familiare conducerii din acest departament. In urmatoarele sectiuni, va fi oferit un rezumat despre fiecare unealta si procedurile de testare.
In cea mai mare parte, organizare presupune un terminal PC, preferabil un laptop, ca interfata folosita. Este nevoie un Microsoft Windows NT 4.0 sau de o varianta mai buna cu un terminal emulator urmanad standardele VT100 ca sa utilizati un SW PC cu un procesor Intel Pentium.
Aditonal, este nevoie de un cablu seriat RS-232
Nota! Terminaul PC nu trebuie sa fie conectat in timp ce trenul merge.
Setati urmatorii parametrii ai terminalului
Rata Biti: For CTIU, BTIU, BTM, VCULite_ATO si COMC_ATP: 19200 bps;
For COMC_ATO: 38400 bps
Data bits: 8 bit
No of stop bits: 1
Parity Nici unul
Flow control: Nici unul
Connect RS232: on
VT 100-terminal mode: on
Cablul serial trebuie sa fie unul protejat si in 3 fire, dupa urmatoarele standarde.
|
9-pin barbatesc DSUB; Conectat la X4 laCOMC_x, BTIU, BTM sau CTIU |
9-pin femeiesc DSUB; conectat la portul RS232 COM la PC |
|
Pin 3 (TxD) |
Pin 2 (RxD) |
|
Pin 2 (RxD) |
Pin 3 (TxD) |
|
Pin 5 (GND) |
Pin 5 (GND) |
|
|
|
|
6-pin RJ-12; Connect to X8 la VCULite |
RJ-12 to 9-pin femeiesc DSUB converter; Conectat la portul RS232 COM al PC |
|
Pin 2 (TxD) |
Pin 2 (RxD) |
|
Pin 3 (RxD) |
Pin 3 (TxD) |
|
Pin 4 (GND) |
Pin 5 (GND) |
Aplicatia software se downlodeaza din terminalul PC spre o interfata serial. Downlodarea necesita sa fie facuta inaintea oricaror parametrii, cum ar fi marimea rotii, SDA.
Unitatile pentru download-ul software sunt COMC_x, VCULite, CTIU, BTIU and BTM
Pentru detalii referitoare la procedura de download, vezi ref.[1].
In mod normal, parametrii sunt setari si verificati folosind monitorul RTS, care este fixat in unitatea vizata. Aceasta este accesata de terminalul PC, care este conectat ca in descrierea de mai sus.
Este necesar ca unii parametrii din data de baze ale trenului sa fie setate pentru ca sistemul ATC sa fie compatibil cu trenul. Cei mai importanti parametrii sunt:
Marimea rotii
Datele trenului sunt setate prin monitor spre PC Terminal, vezi procedura descrisa in ref 1.
Nota! Setarea gresita a parametrilor poate fi periculoasa! Ex: trenul poate sa mearga mai repede decat apreciaza ATC, trenul poate sa se opreasca inainte de locul dorit, trenul poate accelera mai repede datorita notiunii gresite a lungimii trenului.
Intotdeauna verificati daca datele trenului au fost introduse corect dupa downloadare!
SDA este necesara pentru a fi siguri ca downlodarea software-ului este in locul corect. Valoarea SDA este inclusa in DLU si trebuie setata in unitate in Non-Volatile Memory (NVMEM). La inceput, SDA care include DLU se potriveste cu stocarea SDA in unitate, NVMEM
Setarile SDA sunt aplicate din COMC_x, VCULite, CTIU, BTIU and BTM.
Atentie la faptul ca SDA trebuie sa fie setat o singura data, dupa downlodarea primului DLU. Cand unitatea este aprinsa prima oara cu software-ul downlodat, utiliztorul are doar 1 minut pentru a introduce SDA dupa ce monitorul RTS este disponibil. Aceasta presupune o verificare corecta, altfel o eroare va fi primita si unitatea va fi restartata.SDA este setat prin monitorul RTS spre terminalul PC.
Nota: Doar BM21 the MOBAD in VCULite are serialul EEPROM este folosit pentru stocarea datelor adresa dispozitivului MVB si data bateriei. Adresa MBV trebuie sa fie aceeasi cu adresa SDA a ATO see in ref.[1]. Procedura de inlocuire a MOBAD, vezi ref.[ ].
Cand a este inlocuit BTIU, este necesara downlodarea lungimii cablului antenei BTIU. Pentru acest tren sunt disponibile un numar de lungimi de cablu.
Lungimea cablului este setata prin monitoul RTS spre Terminal PC, procedura este descrisa in ref.[1].
Nota: BTM in trenurile BM21 nu are nevoie de setarea lungimii cablului antenei baliza dar BTM realizeaza calibrarea echipamentului Balise disponibil. Calibrarea va fi facuta cand se inlocuieste BTM, CAU ori cablul antenei balise. Vezi capitoul , pentru mai multe detalii.
Pentu a verifica daca toate unittile din sitemul ATC comunica in mod corect si au ca ca status "Running", (Funcioneaza), citeste informatiile produsului din COMC_ATP dupa ce sistemul a fost aprins. Informatia este accesata prin monitorul RTS spre terminalul PC. Introduceti comanda "dbs", dupa ce unitatile relevante au fost listate, priviti figura 9-1. Pentru indentificarea fiecarei unitati a produsului, va fi afisat statusul si o recapitulare a evaluarii.
Daca unitatea nu arata statusul "Running", motivul ar putea fi acela ca o evaluare incorecta a unitatii sau un fisier gresit DLU este folosit.

Figure ,
Terminal display when requesting status information
Fiecare unitate a computerului, COMC, VCULite, CTIU, BTIU si BTM, stocheaza un jurnal AE (functionarea aplicatiei) in propria memerie. Cel putin ultimele 200 de functionari sunt stocate in fiecare jurnal AE. Informatia este retinuta pana cand sistemul ATC este oprit (de la principala sursa de putere a trenului.)
cand a avut loc o eroare in timpul operatiei, este nevoie ca un jurnal AE sa fie verificat, pentru ca acesta ofera mai multe detalii despre eroare. aceasta se face prin monitorul RTS spre terminalul PC. aparasi comanda AE, si toate informtiile vor fi afisate pe ecran, vezi ex de mai jos

Figure , Listing of AE log on terminal screen
Retineti ca fiecare unitate are propriul logaritm, care poate fi accesat din unitatea respectiva. Toate mesajele distribuite in unitatile slave sunt trimise de asemenea in unitatea COMC_ATP, unde apar in format comprimat. Este indicata de asemenea ca verificarea logarirmul AE sa inceapa din COMC_ATP.
Memorarea AE de catre COMC/VCULite_ATP, incluzand formatul lor este specificat in ref.[2].
Memorarea AE de catre COMC/VCULite_ATO, incluzand formatul lor este specificat in ref.[3].
Memorarea AE de catre BTM, incluzand formatul lor este specificat in ref.[13].
Este necesara stocarea informatiilor terminale, cum ar fi jurnalul AE, in fisiere pentur analize ulterioare. Orice apare pe ecran, poate fi stocat cand se foloseste termenul DCU, urmand pasii:
[ ] Conectati cablul si configurati termenul DCU cum se descrie in ref. [ ]
Din Meniu - fisiere - stocati toate datele de transfer in LOGFILE pentru stocarea pasilor fisierelor (trebuie facut inainte de a cere un jurnal AE)
Verificati spre ex. Jurnalul AE pentru a intra comanda "AE".
Totul ce apare pe ecran va fi acum stocat in fisierul specificat. Aceasta va fi in functiune pana cand "Store all data transfers to Logfile"este neverificat.
Selectati optiunea numele jurnalului si apasati OK
Aparatul de masurare a intensitatii campului magnetic
Fiti atenti la prevederile de siguranta in ceea ce priveste transmisiile campului magnetic asa cum sunt descrise in capitolul 4.1, cand lucrati in apropierea unei antene baliza!
Aparatul (numarul produsului ZTH 101 02) este folosit pentru a masura intensitatea campului antenei baliza in timpul transmisiunilor.

Figure , Field strength meter
Nota: Aparatul nu este aplicabil in combinatia BTM si CAU in serii BM21
Suspendati intrumentul sub antena, ca in imaginea de mai jos.
Activati antena, setand in revers directia controllerului (persoana/lucru care directioneaza)
Verificati intensitatea campului masurat

Figure , Field strength meter hanging under antenna
Aparatul functioneaza in trei arii:
Rosu =intensitatea campului este prea jos
Alb =intensitatea campului este prea jos
Verde = intensitatea campului acceptabila
Unitatea interconectata este o unealta pentru test pentru a masura semnalele ce trec prin conctorii X3 si X4 spre urmatoarele unitati: COMC_x, BTIU, BTM, CTIU, VDX, SDU si MFSD. Unele puncte ale testului sunt disponibile incluzand posibilitatea de a frana circuite specifice. Exista doua tipuri de unitati interconectate, una pentru conectorul DIN MH (3NSS001797-01) si unul pentru conectorul DIN F (3NSS001798-01).

Figure , Interconnecting Unit
Inainte de inter-conecta unitatea, sistemul ATC trebuie sa fie oprit.
Deconectati conectorii de la unitate pentru a efectua trasabilitatea defectelor.
Daca conectorul X3 (J1 on the MFSD) trebuie accesat, folositi IU-DIN MH, exceptand cazul in cand au loc teste pe COMC, CTIU si MFSD, la care trebuie folosit IU-DIN F
Daca conectorul X4 este accesat, folositi IU-DIN F.(nu se potriveste cu COMC, CTIU, BTIU si BTM unde conectorul X4 este folosit pentru interfata seriala).
Conectati conectorul femeiesc IU la unitate pentru a testa
Conecatai conectorul IU la cablul conector, care a fost deconectat.
Porniti sistemul
Semnalele actuale pot fi acum masurate cu un multimetru sau un instrument similar. Pentru a afla ce terminal corespunde unui anumit semnal, trebuie sa fie disponibila diagrama circuitului.
-Voltajul unui semnal poate fi masurat intre doi terminali
-Curentul unui semnal poate fi masurat mai intai prin conectarea intrumentului intre doua puncte de acces din terminal, si prin deschiderea terminalului astfel incat curentul circula prin intrument.
Dupa ce tesul este gata sistemul trebuie inchis, IU deconectat si conectorul reconectat la unitate.
Software-ul de test si instalare BTM (BTIT) este utilizat pentru testarea si calibrarea hardware-ului BTM. Urmatoarele capitole descriu cum se foloseste BTIT pentru calibrarea BTM. Pentru mai multe informatii despre Software-ul de Test si Instalare a BTM (BTIT) vezi Ref.[11]
Pentru utilizarea Software-ului de test si instalare BTM (BTIT) veti avea nevoie de:
Un PC compatibil IBM cu procesor Pentium III, cel putin
Windows XP / Windows 2000 instalat si configurat în sistem
Cel putin 256 MB RAM
Un monitor video VGA (sau mai bun)
Cel putin 20 MB spatiu liber pe hard disk
Un slot de card tip I PCMCIA, si
O unitate optica CD ROM pentru instalarea Software-ului de test si instalare BTM
Pe acest CD ROM veti gasi:
Un fisier Set-up (BTITsetup.exe) cu patru fisiere arhiva (uir_cust.001,uir_cust.002, uir_cust.003, uir_cust.004), folosite la instalarea PC-client BTIT Client SW (Article No. 3NSS003713-03)
DCU-Term - un program Terminal pentru download din BTIT Server SW fisiere -.dlu
Un fisier BTIT Server SW DLU-(exemplu namebtm_test_version_5_4.dlu) pentru download într-un BTM (Article No.3NSS003713-02)
Documentatie continând informatii utilizator, manualul BTIT, Informatii despre Versiunea Produsului si Release Notes BTM (Article No. 3NSS003713-01).
Când rulati setup.exe, Software-ul de test si instalare BTM se va extrage singur în directorul selectat si va crea un folder (BTMtest) continând urmatoarele fisiere:
Fisierul executabil (BTMTest_customer.exe)
Fisierul de initializare (testsw.ini)
Câteva fisiere interfata user (start_part_1.uir, start_part_2.uir, uir_flashload_1.uir , uir_flashload_2.uir, Uir_two_1.uir, Uir_two_2.uir, btm_id_1.uir, btm_id_2.uir, lang.uir), and
Fisiere utilizate utilizate pentru dezinstalarea programului (uninst.exe, uninst.dll and uninst.lrm).
Fisierul setup.exe va instala de asemenea un folder (cvirte) în directorul WINNT /system32. Acest folder contine doua two sub-foldere, bin si fonts.
Folderul bin contine patru fisiere dupa cum urmeaza:
cvirt4.rsc si cvirte.rsc, si
doua fisiere text msgrt4.txt si msgrt.txt.
Folderul fonts contine doua fisiere True Type Font dupa cum urmeaza:
font_ni7seg.ttf, and nisystem.ttf.
BTIT Server SW (BTM Test and Installation Software) este uneori downloadat în BTM în timpul fabricarii. Acest ghid de instalare este utilizat daca din diferite motive este necesara reinstalarea, de exemplu BTM trebuie recalibrat pentru ca antene a fost înlocuita.
Download-ul va fi executat printr-o legatura seriala de comunicatie, utilizând un cablu Null Modem între conectorul X4 al BTM si un conector serial (COM1 sau COM2) al PC (este recomandata utilizarea programului terminal DCUTerm, acesta este vazut în prezent ca fiind cel mai rapid
Introduceti CD ROM-ul continând Software-ul de test si instalare BTM. Copiati fisierul BTIT Server SW dlu din CD în partitia C: a computerului.
Deschideti programul DCU-Term.
Alimentati cu energie BTM si verificati ca ledurile MVB si OK de pe partea frontala a BTM sunt aprinse (verde).
Mergeti în meniul "file", "open" fisierul setup btm.dts
Mergeti în meniul "options", apoi la "Setup (communications and signals).".
Acelasi port de comunicatie va trebui ales pentru conectarea cablului Null Modem al PC-ului. Viteza de comunicatie baud rate va trebui setata la 19200. Se da Click pe butonul OK , va fi afisata fereastra principala a DCU-Term. Daca în partea de jos a ferestrei DCU-Term apare Reconnect (F8), apasati tastan F8.
Apasati butonul "simon" localizat în partea de jos a ferestrei DCU term. Apoi va trebui sa apara în fereastra Monitorul Simplu SiMon, aratând ca în imaginea urmatoare.

Apasati
butonul "SB 115.2" localizat în partea de jos a ferestrei DCU term. Urmatorul text va aparea în
fereastra.

Mergeti în meniul "options", apoi la "Setup (communications and signals).". Schimbati viteza de comunicatie baud rate la 115200 si apasati butonul OK.
Tastati caracterul "q" în fereastra DCU-Term si apasati tasta ENTER (return).
Mergeti
în meniul "Tools",apoi la "Download program to target system.". Apoi este
afisata fereastra "download
program to target system.".

Apasati
butonul OK si va apare ferestra de dialog "File to Load". Localizati
si selectati fisierul BTIT Server SW DLU pentru a fi downloadat
la BTM si click pe butonul Open. Începe downloadarea fisierului DLU.
Downloadarea BTIT Server SW DLU dureaza aproximativ 6 minute.

Când
downloadarea BTIT Server SW este completa, textul Programming OK va
aparea în fereastra DCU-Term.

Închdeti programul DCU-term. La închiderea programului DCU-term poate sa apara o fereastra dialog cu întrebarea daca se salveaza fisierul set-up. Se da clik pe butonul "No".
Conectati cablul Test and Installation între portul PC COM1 sau COM2 si conectorul X9 al BTM, dupa cum este aratat în figura urmatoare.
Conectati convertorul RS232/RS485 la adaptorul pentru alimentare cu energie 115/230 VAC.
Asigurati-va ca BTM este corect conectat la CAU.
Verificati si validati operatiunileset-up în concordanta cu Bombardier Routine Installation Tests, cum ar fi: toate conexiunile sunt facute corect, nu sunt erori de polaritate, adresele device-urilor sunt corecte si bucla de test este terminata.
Alimentati cu energie BTM si varificati ca LED-ul OK de pe partea frontala a BTM este aprins (verde).

Opriti si apoi reporniti alimentarea cu energie a BTM pentru a restarta BTM.
Se da click pe Start
si din meniu se selecteaza Programs. În
folderul BTM Test and Installation SW ver. 5.xx din lista de
programe, selectati fisierul program icon BTM
Test and Installation SW ver. 5.xx , ca in imaginea de mai jos.

Se da dublu click pe iconul BTM Test and Installation SW ver. 5.xx pentru a porni programul.
Programul va afisa o fereastra principala, ca în figura urmatoare.

Nota: Software-ul de Test si Instalare BTM porneste cu trimiterea versiunii partii tinta la partea PC Client pentru a se verifica potrivirea PC Client cu tinta DLU. Daca se constata o greseala, un mesaj de atentionare va va oferi alegerea între abandonare si continuare (cancel or continue). Daca alegeti Continue cu apasarea butonului OK, software-ul de Test si Instalare BTM poate sa nu functioneze corect.
Fereastra de încarcare flash este utilizata pentru încarcarea configuratiilor FPGA (firmware) în BTM/Rx dupa cum urmeaza:
Apasati
butonul Flash loading în BTM fereastra Software-ului
de Test si Instalare BTM pentru a accesa fereastra Flash load panel.

Utilizati
butonul Browse. pentru selectarea fisierului (*.exo) cerut si
apoi selectati canalul corect (A sau B). Dati click pe
butonul Load file to flash pentru a începe procesul de
downloadare. Executia downloadarii este afisata în bara de
progres Loading (%).

Daca este necesara operatiunea stop/intrerupere downloadare, dati click pe butonul Break loading
Nota: Pentru a fi siguri ca influente nedorite nu afecteaza calibrarea, antena trebuie sa fie montata corect. Nimic nu va trebui sa disturbe masuratorile, ca exemplu: surse de zgomot, balize, obiecte metalice, cabluri sau apa.
Sunt utilizate trei ferestre pentru calibrarea BTM:
fereastra RX EEPROM Parameters,
fereastra TX EEPROM Parameters,
fereastra PS EEPROM Parameters.
Apasati butonul Installation
Parameters în fereastra Software-ului de Test si Instalare BTM.
Nota: În timpul procesului de calibrare, BTM nu trebuie
miscata sub nici o forma. Personalul care lucreaza în
zona va fi avertizat ca antena este activa pe durata acestui
proces.

Dupa
apasarea butonului Installation Parameters este executat automat un test
Hardware Diagnostics. Apasati butonul OK.

Apoi va
apare o fereastra mesaj unde dati click pe Yes pentru a începe
procesul de calibrare. Daca se doreste doar vizualizarea parametrilor
de instalare, dati click pe No si apoi apasati butoanele Upload
în panelurile TX, RX si PS.

Nota: Cu apasarea pe No procesul de calibrare nu va
începe.
O
fereastra mesaj este afisata apoi, informâdu-va ca va
trebui sa introduceti datele Antenei, Cablul si
NumarulVehiculului (optional) în partea dreapta a ecranului.
Dati click pe butonul OK.


Panelul PS EEPROM este afisat.
Introduceti datele Antenei, cablului si NumarulVehiculului în partea dreapta a ecranului (informatiile despre ID-ul antenei trebuie sa se gaseasca pe o eticheta pe antena). Dati click pe butonul Enter:
Lungimea cablului antenei în centimetrii,
Numarul versiunii cablului,
Numarul serial al antenei,
Numarul de produs al antenei,
r-state al antenei(numarul versiunii).
Numarul vehiculului.
Dupa
apasarea butonului 'Enter' o fereastra mesaj este
afisata, solicitându-va reintroducerea datelor Antenei, cablului
si Numarul Vehiculului. Dati clic pe butonul 'OK' pentru
reintroducerea datelor din nou.

Apoi în
panelul PS EEPROM, datele Antenei, cablului siNumarul Vehiculului
Number sunt resetate la valorile implicite. Reintroduceti aceleasi
date ca mai înainte si dati click pe butonul 'Start Calibration',
care, de aceasta data, a înlocuit butonul 'Enter'.

O
fereastra mesaj este afisata cu întrebarea daca doriti
sa continuati sau sa abandonati operatiunea.Dati click
pe butonul 'Continue' pentru a continua calibrarea BTM, operatie
care poate dura pâna la 5 minute.

Când calibrarea a fost încheiata, urmatorul mesaj este afisat. Dati click pe butonul 'OK'.
Pentru a salva parametrii de instalare a BTM, într-un fisier, apasati butonul 'Save to file' din panelul PS EEPROM. Alegeti numele fisierului si apasati 'OK' pentru a salva parametrii de instalare.
Închideti toate ferestrele daca doriti.
Când butonul 'Routine tests' este apasat testele Hardware Diagnosis sunt executate în BTM. Când testele sunt gata un mesaj pop-up este afisat informând daca toate testele de rutina au fost trecute cu succes sau nu.

Fereastra Routine Test Results este alcatuita dintr-o caseta text si un buton de închidere Close. Caseta text este utilizata pentru afisarea rezultatului testarii, iar butonul Close pentru închiderea ferestrei Routine Test Results.
Functia BTM/CAU Parameter Check Tool este de verifica parametrii de calibrare a unei unitati BTM/CAU.
Urmatoarele capitole descriu cum se utilizeaza instrumentul BTM/CAU Parameter Check Tool. Pentru mai multe informatii Ref. [12]
Instrumentul PCT software si hardware este alcatuit din Test and Installation Software (Article No. 3NSS003713-01), existent pe un CD-ROM (Article No. 3NSS004169-01), si partea PCT HW hardware.
PCT HW contine:
PCT Cablu (Article No. 3NSS005929-01),
BTM Reset Tool (Article No. 3NSS005819-01).
Un PC cu o unitate optica CD ROM interna sau externa. Este recomandat un laptop cu un port paralel.
O întelegere a hardware-ului si software-ului BTM este necesara în succesiunea utilizarii tuturor elementelor PCT Parameter Check Tool. Este recomandat ca numai persoanele care sunt calificate corespunzator si antrenate sa execute verificarea.
La utilizarea PCT Parameter Check Tool, veti avea nevoiede urmatorul hardware:
Un PC compatibil IBM cu procesor 386 cel putin
Windows NT 4.0/2000/XP instalat si configurat în sistem
Cel putin 64 MB memorie RAM
Monitor video VGA (sau mai bun)
Cel putin 10 MB spatiu liber pe hard disk
LPT1- port paralel
O unitate optica CD-ROM pentru instalarea BTM Test and Installation Software si PCT Software.
BTM Reset Tool (3NSS005819-01) Ref. [5].
PCT Cable (3NSS005929-01) Ref. [4].
Pe CD ROM veti gasi:
Un fisier Set-up (setup.exe) utilizat pentru instalarea PCT
documentatie continând informatii user.
Când rulati setup.exe, PCT Parameter Check Tool Software se va auto extrage în directorul selectat si va crea un folder continând urmatoarele fisiere:
fisierul executabil (pctApp.exe),
câteva fisiere interfata user (log files, result files and raw data files),
un fisier utilizat pentru dezinstalare programului (uninst.exe).
Porniti PC-ul.
Alimentati cu energie BTM si verificati ca LED-urile MVB si OK, din partea frontala a BTM, sunt aprinse (verde), ca în figura urmatoare.

PCT cable connection
BTM trebuie acum resetat. Înlaturati surubul M3 ce acopera butonul RESet din partea frontala a BTM si înlocuiti-l cu un BTM reset tool. Rotiti cu grija surubul pâna când led-urile MVB si OK se sting si led-urile ER si WA se aprind (rosu si respectiv galben), ca în figura urmatoare.

BTM in reset mode
Conectati cablul PCT între portul LPT1 al PC-ului si conectorul X9 al BTM, asa cum este aratat în figurile "BTM in reset mode" si "Overview of connection set-up".
Asigurati-va ca BTM este corect conectat la CAU.
Verificati si validati operatiunea Set-up a echipamentului. Asigurati-va ca:
Toate conexiunile sunt facute corect
Adresele dispozitivelor sunt corecte

Overview of connection set-up
Nota: Aceste instructiuni sunt scrise sub premiza ca Windows ruleaza si ca utilizati un PC cu mouse sau touchpad.
Opriti si reporniti alimentarea cu energie a BTM pentru restart.
Dati click pe Start si selectati meniul Programs. De la folderul Pct în lista de programe selectati PCT 1.8

Dati click pe iconul PCT 1.8 pentru a porni programul si apoi va fi afisata o fereastra principala ca an figura de mai jos.

PCT GUI
Utilizatorul poate schimba limbajul între English si Chinese (Taiwan) de la lista caseta.

List of Languages
Dupa scrierea numarului trenului si cabinei apasati butonul Analyse using BTM, si cautati pentru a potrivi folderul în care se gasesc fisierele. Aceasta actiune verifica BTM-ul "live", si genereaza doua fisiere, "Resultfile" si "Raw Data File". GUI este updatat si verificatorul este actualizat cu un feedback immediat despre rezultatul verificarii
O analiza off-line este disponibila.
Apasati butonul Analyse using
Raw Data File, si apoi alegeti un fisier generat anterior în
timpul unei verificari "live". În acest caz, un fisier de rezultat va
fi generat de starea aceea, iar o analiza va fi executata într-un
fisier "Raw Data File". GUI va fi updatat dupa ce analiza este
terminata.
Nota: Butonul Analyse using Raw
Data File este proiectat în special pentru cazurile unde sunt necesare
analize suplimentare în Laborator.
Un fisier log va fi initiat de catre programul PCT. Acesta este foarte folositor pentru deranjamente. Fisierul este amplasat în folderul "installation", Folderul care a fost ales în timpul instalarii.
Închideti Windows NT/2000/XP si opriti PC-ul.
Îndepartati surubul RESet si reinstalati surubul original care acopera butonul de reset. Asigurati-va ca led-urile MVB si OK din partea frontala a BTM sunt aprinse (verde), si apoi opriti alimentarea cu energie a BTM. Daca indicatoarele nu se aprind, BTM -ul ar putea fi defect si rezultatele ar fi prin urmare ne luate în seama.
Deconectati cablul PCT de la portul paralel al PC-ului si conectorul X9 al BTM.
Nota! Conducatorul este responsabil pentru avarierea trenului.
In situatia in care in timpul testului cand sistemul ATC trebuie sa franeze trenul, conductorul trebuie sa astepte interventia ATC, dar sa fie alertat pentru franare daca din anumite motive ATC nu actioneaza franarea.
Un test de inceput in concordata cu capitolul 10.2 trebuie efectuat inainte ca testul operational sa aiba loc.
Un test operational trebuie facut dupa fiecare instalare,reparatie si intretinere a echipamentului ATC pentru a verifica daca sistemul ATC functioneaza corect. Personalul care a efectuat reparatia si intretinerea, nu trebuie sa execute testul operational.
Testul de inceput ca si testul operatinal trebuie facute din ambele cabine.
Imediat ce trenul este pornit, sistemul ATC va incepe sa functioneze propriul test de inceput. Ledurilor COMC_x, VCULite, BTIU/BTM si CTIU sunt aprinse si MFSD este aprins. In timpul testului de inceput, o memorie totala si testul CPU este in functiune si unitatile conectate MVB sunt sincronizate
Cand cabina este activata, intra in functiune un test de activare a cabinei. Aceasta inseamna testarea interfatei aplicatiei de franare.
Portiunea exacta a acestui test este desfasurata in tabelul de mai jos. (Ridicat si coborat se refera la pozitia releului, in timp ce intelesul logic al pozitia este data in parametrii )
|
Pozitie |
Semnalele de iesire ale ATC |
Valori asteptate |
|||
|
EB |
SB |
feedback releul EB |
feedback EB |
feedback SB |
|
|
Fara frana 1 |
Scazut |
(fara frana)Scazut |
Ridicat |
Scazut |
Scazut |
|
ComandaEB |
(frana) Ridicat |
Scazut |
Scazut |
Ridicat |
Neverificat |
|
Fara frana2 |
(fara frana) Scazut |
(fara frana) Scazut |
Ridicat |
Scazut |
Scazut |
|
comandaFSB |
(fara frana) Scazut |
(frana) Ridicat |
Neverificat |
Neverificat |
Ridicat |
Cand aceste teste automate au fost efectuate, sistemul ATC este gata pentru a intra in modul YARD.
Testul de inceput poate fi efectuat pe un traseu sau in depou. Ambele cabine au nevoie de verificare individuala.
Inainte de a incepe testul luati seama de urmatoarele masuri de siguranta:
Asigurati-va ca software-ul este downdolat in unitatea corecta.
Asigurati-va ca toti conectorii sunt conectati la unitate si bine legati.
Verificati ca trenul sa fie oprit si ca corcuitul de frane ATC sa fie deschise
Asigurati-va ca franele de serviciu sa nu fie folosite de nici un alt sistem in timpul testului.
Verificati ca trenul nu sta pe un circuit ce emite AF
Verificti ca antena baliza nu este asezata peste baliza.
Verificati ca controllerii master din ambele cabine sa fie on pozitie initiala.
|
Nr |
Actiunile conducatorului |
Rezultate |
|
|
Power on the train. Porniti trenul |
The train is powered. Trenul porneste |
|
|
Porniti circuitul ATC al franelor |
Luminile se aprind la MFSD |
|
|
Introduceri Cheia cabinei de activare in cabina B |
Are loc activarea testelor Au loc testele de activare Cand testarea este completa, EB este dezactivat si activat SB. Butonul DEP licareste ai FR este aprins |
|
|
Apasati DEP si intrati modul YARD In cazul inc are se identifica o eroare, indicatorul FR va licari, si va fi indicat codul erorii. Retineti codul si actionati intretinerea de corectie, vezi cap 6 |
Franele de serviciu vor fi activate de ATC si butonul FR este stins. Butonul DEP este aprins si trenul poate si acum utilizat din punct de vedere al ATC |
|
|
Apasati butonul MFSD TEST |
Testele interne MFSD sunt in functiune |
|
|
Mutati cheia de activare a cabinei si opriti trenul |
Butoanele DEP si FR sunt stinse |
|
|
Repetati aceiasi pasi din cealalta cabina a trenului |
|
Este de notat, ca urmatorul test nu este un test operational complet, ceea ce inseamna ca trenul va trece prin multe combinatii diferite ale dispozitivelor de pe traseu. Testul se concentreaza mai degraba asupra verificarii performantelor unitatilor hardware ATC, si este presupus ca functionalitatea sa fie legata de aspecte testate in alte contexte.
Este indicat ca testele special concepute pentru traseu la depou si respectiv Linie sa fie folosite cand are loc testul operational, desi nu este cerut. Conditia este ca traseul folosit sa fie echipat cu dispozitive ce permit trenului sa intre in moduri ATC si este posibil sa declanseze aplicatia franelor de urgenta
In ceea ce urmeaza, este presupus ca sunt folosite testele de traseu speciale. Asigurati-va ca sistemul ATC a functionat cu succes in testul de inceput ca in prezentarea trenului, si ca modul YARD a intrat.
Localizati trebun la cativa metri inainte de prima buclaAV a traseului testat.
Prima bucla AF, ofera o tinta departe de limita, si a doua indica telegrama 0/0 .
|
No |
Actiunea mecanicului |
Rezultat |
|
|
Porniti trenul in modul YARD (DEP) |
DEP (YARD) se aprinde pe MFSD Viteza pemisa este 15 km/h |
|
|
Conduceti trenul in zona cu circuite de cale |
Cand trenul ajunge in zona cu circuite de cale modul ATP intra automat. Se aprinde ATP si se stinge DEP pe MFSD. |
|
|
Opriti trenul la peron si deschideti usile pe ambele parti (dreapta si stanga) |
Numai usile de pe partea cu peronul pot fi deschise. |
|
|
Close the doors Inchideti usile |
All doors are closed Toate usile se inchid |
|
|
Apasati butonul STG de pe MFSD |
STG se aprinde pe MFSD |
|
|
Miscati trenul inainte incet si deschideti usile stanga si dreapta in timp ce trenul se misca |
Nici usile stanga nici dreapta nu se deschid pentru ca trenul se misca |
|
|
Opriti trenul si deschideti usile pe partea cu peronul cand trenul e pe loc. |
Usile de la peron pot fi deschise |
|
|
Miscati trenul in timp ce usile sunt deschise |
ATP aplica EB imediat ce trenul s epune in miscare. |
|
|
Apasati FR pentru a elibera frana |
EB este eliberata |
|
|
Inchideti usile |
Toate usile se inchid |
|
|
Cresteti viteza pana la viteza permisa + 3km/h |
ATP da un semnal de alarma si taie propulsia. |
|
|
Increase train speed to |
ATP applies full service brake. |
|
|
Apasati butonul FR cand viteza trenului e mai mica decat viteza permisa. |
ATP elibereaza frana de serviciu. |
|
|
Conduceti trenul si opriti la urmatoarea statie. |
|
|
|
Intrati in modul ATO. Apasati butoanele de plecare |
Verificati ca ATO porneste trenul, accelereaza si opreste in mod corect. |
|
|
Repetati aceiasi secventa de la celalalt post al trenului. |
|
Acest capitol descrie procedurile generale pentru raportarea defectului si inlaturarea acestuia din echipamentul de semnalizare.
Un defect care necesita asistenta din partea Bombardier Transportation va trebui raportat la Centrul de Comunicare "SupportLine", utilizand formularul raport de defect, furnizat de Bombardier Transportation. Acest formular este disponibil in format tiparit pe hartie si deasemenea in format electronic ca sablon Word. In cazul in care acelasi defect aparut se repeta, un singur raport poate acoperi toate incidentele similare.
Pe baza formularului, raportul de defect este inregistrat in sistemul propriu Bombardier de raportare a defectelor si primeste un numar unic de inregistrare. O confirmare este trimisa in scris sau prin e-mail incluzand o descriere a defectului raportat.
Rezolvarea situatiei si inlaturarea defectului este descrisa in capitolul " Repair/Service".
Postal address:
Via
Cerchiara, 125
00131 - Roma
Italy
Attn: Claudio Scilletta, Domenico Fraioli
E-mail address:
[email protected]
[email protected]
Phone number:
+39 06.87.429.111
Fax number:
+39 06.87.429.492
Când se completeaza un raport de defect este necesara o descriere clara si concisa a defectului pentru ca Bombardier Transportation sa faca o investigare corecta si ulterior sa rezolve problema.
Informatiile urmatoare sunt exemple de informatii cerute într-un raport de defect:
care computer a fost online? (în cazul unui sistem dual)
unde a fost situat trenul în linie?
La ce ora a aparut defectul?
Defectul a reaparut?
Este posibil a reproduce defectul si în acest caz, cum?
Exista observatii sau alarme legate de defect?
Se includ listele de alarme sau fisierele log daca sunt aplicabile.
Daca un defect descarcat (dump) este inclus, informatiile urmatoare sunt obligatorii:
Numele instalatiei si versiunea sistemului.
Data descarcarii (dump)
Identitatea descarcarii (Dump identity).
Numarul referinta propriu al raportului de defect înregistrat.
Cu privire la continutul specific de adaugat la raportul de defect se va avea în vedere manualul fiecarui sistem. Continuturile specifice la raportul de defect sunt fisierele log sau imprimarile.
Pentru detalierea informatiilor ce privesc diferitele câmpuri în formularul de raportare a defectului, vedeti explicatiile în pagina a doua a formularului.
Produsele care vor fi returnate la Bombardier Transportation pentru service si/sau reparatii vor trebui expediate la adresa:
Via
Cerchiara, 125
00131 - Roma
Italy
Attn: Claudio Scilletta, Domenico Fraioli
Anexat cu bunul va fi o copie a raportului (rapoartelor) de defect si toate documentele cerute.
Toate echipamentele, pentru a fi returnate, vor trebui bine ambalate înaintea transportului. Pentru a avea garantia ca, de exemplu, o placa cu circuite nu va fi deteriorata în timpul transportului, aceasta va trebui împachetata într-o învelitoare anti-statica si o cutie special proiectata pentru fiecare tip specific de placa cu circuite. Placile cu circuite nu pot fi împachetate în Styrofoam.
Un raport de defect cuprinzator, în mod clar, cu descrierea pe cât posibila a defectului produsului va trebui sa însoteasca fiecare produs care va fi returnat la Bombardier Transportation pentru service si/sau reparatie.
Daca este posibil si aplicabil, raportul de defect va contine locul unde produsul este deteriorat si de asemenea când si cum a aparut deteriorarea.
Daca câteva diferite produse sunt de returnat la Bombardier Transportation pentru service si/sau reparatie în acelasi transport, fiecare produs va fi însotit de un raport de defect separat.
Daca sunt câteva defecte diferite într-un produs de returnat la Bombardier Transportation pentru service si/sau reparatie, toate defectele în legatura cu produsul specificat vor fi descrise si acoperite într-un singur raport de defect.
Urmatoarele informatii vor fi clar stabilite în fiecare raport de defect:
Numarul articolului/produsului Bombardier Transportation.
Revision state (unde este aplicabila).
Serial number (unde este aplicabila).
Daca sunt produse de returnat la Bombardier Transportation pentru reparatie în garantie, aceasta va trebui clar stabilita însotind raportul de defect împreuna cu urmatoarele informatii aditionale:
Numarul comenzii de achizitie adecvat alaturi de care loc de origine de livrare a produselor de la Bombardier Transportation.
Numarul notei de transport a Bombardier sub care din locul de origine au fost livrate de la Bombardier Transportation.
Daca sunt produse pentru a fi returnate la Bombardier Transportation sub o comanda service si/sau reparatie, urmatoarele informatii vor trebui clar stabilite si vor însoti raportul de defect:
Numarul comenzii service si/sau reparatie aplicabile alaturi de care, corespunzator, costurile de investigare/reparatie care vor fi facturate de Bombardier Transportation.
Bunurile vor trebui trimise împreuna cu raportul de defect, factura pro-forma (daca este necesar) si comanda de achizitie/cerere la adresa din capitolul 0:
Informatii cerute în comanda de achizitie/cerere:
Adresa de livrare incluzând persoana de contact, aplicabile acolo unde produsele vor trebui returnate clientului dupa service si/sau reparatie.
Adresa de E-mail a persoanei de contact la care Bombardier Transportation va putea adresa situatii informative relevante cum ar fi: document(e) confirmare comanda/cerere, costuri reparatii, situatia la zi a reparatiilor.
Adresa - incluzând persoana de contact - unde vor fi adresate facturile Bombardier Transportation (daca este aplicabil) pentru costurile service si/sau reparatie.
Când produsele sosesc la Bombardier Transportation pentru service si/sau reparatie, fiecare raport de defect care însoteste produsele este înregistrat si primeste un numar de caz unic în sistemul nostru de raportare a defectelor.
Toate informatiile relevante pentru fiecare numar de caz (de ex. privind starea manevrarii si repararii,etc) este prelucrata si memorata în sistemul de raportare a defectelor.
Un raport service si/sau reparatie, împreuna cu raportul de defect backlog corespunzator vor fi livrate laolalta cu produsele respective la returnarea de la Bombardier Transportation dupa service si/sau reparatie.
Appendix B este un formular de raport de defect prezentat în pagina urmatoare.
|
Customer |
Date of fault |
Bombardier Transportation ref. |
|
|
|
|
|
Postal address |
||
|
Goods address |
Goods label at return |
|
|
Prepared by |
Customer order no |
Customer ref. |
|
|
|
|
|
Contact person |
Telephone |
|
|
|
|
System |
Plant |
|
|
|
|
Article description |
Article number |
R-state |
Serial no. |
|
|
|
|
|
|
Fault heading |
SW: Time |
Intermittent |
|
|
|
Yes No |
|
Fault description |
|
|
|
Enclosures |
|
|
Bombardier Transportation notes
|
MC70062 rev. C |
|
Bombardier Transportation (Signal) Italy
Postal address Goods address Telephone Fax
Via Cerchiara, 125 Via Cerchiara, 125 +39 06.87.429.111 +39 06.87.429.492
00131 - Roma 00131 - Roma
Italy Italy
Explanations
|
Head line |
Explanation |
|
Customer |
Name of Company |
|
Date of fault |
Date of report |
|
Bombardier Transportation ref. Postal address Goods address Goods label at return |
Bombardier Transportation internal ref. no. Your postal address Your goods address Goods label at return |
|
Prepared by |
Name of reporting person |
|
Customer order no. |
Your order number |
|
Customer ref. |
Your reference number |
|
Contact person |
Your contact person |
|
Telephone |
Telephone number of contact person |
|
System |
System name |
|
Plant |
Name of plant |
|
Article description |
Name of article |
|
Article number |
Bombardier Transportation article number |
|
R-state |
Revision state |
|
Serial no |
Serial number |
|
Fault heading |
Head line describing the fault |
|
SW: Time Intermittent |
Logged time when fault occured Recurrent fault? |
|
Fault description Enclosures |
Course of events before and after the fault Examples of enclosures to be sent with the report: EBICOS Console printouts OMF-printouts (CTC) Latest periodic report (CTC) Print-out of log on faulty object Log of transmission Control list from interlocking Dump files from interlocking EBILOCK Log files Dump files from interlocking Print-outs Console printouts ATP /ATO ATCSPY log files Log files from recording equipment Print-outs |
|
Ref. Nr. |
Numele documentului |
Nr. document |
Versiune |
|
|
Instructiuni de download alsoftului |
3NSS007108S4004 |
Emis |
|
|
Lista de coduri de ATP |
3NSS007109S1007 |
Emis |
|
|
Lista de coduri de ATO |
3NSS007110S1002 |
|
|
|
ATO/ATP Diagrama bloc BM2 |
|
|
|
|
ATO/ATP Diagrama blocBM21 |
1740-DOC-0010-A3 |
|
|
|
Manualul conducatorului de tren |
3NSS007108S2011 |
|
|
|
Desene de asamblare pt cablul antenei Rx |
151 88-TSR 940 0225 |
D |
|
|
Desene de asamblare pt cablul antenei Tx |
151 88-TSR 940 0224 |
C |
|
|
Spec. tipuri de test (spec. test de instalare) |
3NSS007108S5009 |
Emis |
|
|
Instructiuni pt clien in vederea raportarii defectelor, reparatii, ingrijire |
TBD |
TBD |
|
|
Testare BTM si instalarea softului BTIT, Manual de utilizare pentru client |
3NSS003713D0111 |
Emis |
|
|
Manual de utilizare, BTM/CAU unelte pentru verificarea parametrilor |
3NSS005570D0016 |
Emis |
|
|
Soft specificBTM,lista defectelor minore si fatale |
3NSS001724S0046 |
Emis |
|
|
Instalare/dezinstalare & proceduri de mentenanta DCB 0911A (VCU-Lite), DCB 0911B (VCU-Lite M),DCA 0030A (MOBAD) |
3EST 126-209 |
0 2001-08-06 Emis |
Aprobari
|
Aprobat de Nune semnatura: |
|
Aprobat de Nume semnatura: |
|
|
|
|
|
|
|
|
Istoricul versiunilor
|
Versiune |
Modificari/Comentarii |
Semnatura |
Data |
|
|
Creat, bazat pe manualul proiectului S5000 Barcelona project. |
Taweerak |
|
|
|
Updated conform " Proiectare si siguranta" (3NSS007108S7049) vers.1.0 |
Taweerak |
|
|
|
Updated conform " Proiectare si siguranta" (3NSS007108S7049) vers.1.1 |
TAweerak |
|
|