Colegiul tehnic de Marina „ AL.I.Cuza”Constanta
PROIECT
pentru
EXAMENUL DE CERTIFICARE A COMPETENTELOR
PROFESIONALE
PENTRU OBTINEREA CERTIFICATULUI
DE CALIFICARE PROFESIONALA NIVEL III
Specializare : Tehnician mecanic intretinere si reparatii
Tema proiectului : Elaborarea tehnologiei de executie a pistoanelor motoarelor navale
Argument
Capitol 1
Notiuni generale
Pistonul indeplineste urmatoarele roluri :
- transmite forta de presiune a gazelor bielei ;
- preia reactiunea provenita de la peretele cilindrului si transmite cilindrului reactiunea normala produsa de biela ;
- contribuie la realizarea formei camerei de ardere ;
- la motoarele in doi timpi este un e 949i84j lement din sistemul de distributie a gazelor.
Capitol 2
Elemente constructive ale pistonului
Pistonul se compune din urmatoarele parti:
a). Capul pistonului – partea superioara a pistonului ce preia presiunea gazelor. Constructia sa trebuie sa asigure rezistenta necesara si buna desfasurare a proceselor functionale.
La motoarele Diesel, forma capului pistonului depinde de organizarea camerei de ardere. Cand camera de ardere este divizata, se poate utiliza capul plan, dar adesea capul se profileaza pentru a stimula arderea. Pentru camerele nedivizate, se pot aplica solutii variate: cap mulat dupa forma jetului, cap cu camera de ardere in forma de cupa, cap cu camera de ardere toroidala, la care suprafata frontala constituie un prag ce expulzeaza aerul comprimat spre combustibilul injectat in cavitate, cap cu camera de ardere sferica, folosit la motoarele cu formare peliculara a amestecului.
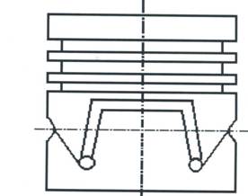
Pistonul unui motor diesel fara cap de cruce (fig,1) este compus din capul pistonului 1, care suporta principalele eforturi termice si mecanice, intrand in contact direct cu gazele de ardere , canalele segmentilor de compresie 2, fusta pistonului 3, care are rol de ghidaj al acestuia in timpul deplasarii, canalele pentru segmentii de ungere 4, prevazute cu orificiile5 de scurgere a uleiului spre carter, umerii pistonului 6, in care se fixeaza boltul de legatura cu biela, orificiul pentru fixarea boltului 7, prevazut cu niste degajari laterale pentru a permite dilatarea diametrala a pistonului in zona umerilor acestuia. Forma capului de piston (fig.2) este foarte importanta in formarea amestecului intim si constructia camerei de ardere si difera constructiv in functie de tipul motorului.
Forme ale capului pistonului la m.a.c
La motoarele Diesel fortate cu injectie directa, se pot ameliora conditiile de functionare ale capului pistonului prin diverse metode (fig.3). Prin rotunjirea muchiei camerei de ardere, sau tesirea ei, se micsoreaza viteza de curgere a gazelor si gradientul de temperatura in zona respectiva si se previne aparitia de fisuri radiale de-a lungul muchiei. Tot pentru a proteja muchia se utilizeaza un inel fabricat dintr-un material de mare plasticitate, solidarizat cu pistonul prin sudare sub flux de electroni . Se mai foloseste o armatura de bronz cu cupru, cobalt si beriliu, fixata cu suruburi . La pistonul “armal”, muchia camerei de ardere este executata intr-o insertie de material refractar, incorporata la turnare, care poate contine si canalul primului segment . Echiparea capului pistonului cu insertii de diferite configuratii il protejeaza de impactul cu jetul de combustibil sau de flacara, realizand totodata zone de temperatura ridicata, care favorizeaza arderea. Insertiile se realizeaza din fonta speciala sau otel austenitic.
b) zona port-segmenti care contine canalele pentru segmentii
de compresie si de ungere .
c) umerii pistonului (bosajele) este zona supradimensionata de deasupra si de dedesubtul boltului si care il sustine pe acesta.
d) orificiul (alezajul) boltului este suprafata interioara in care se afla montat boltul si care poate avea niste degajari laterale pentru dilatarea diametrala a pistonului.
La capetele alezajului se afla niste canale in care intra inele de siguranta in cazul cand boltul este flotant pentru a limita deplasarea axiala a acestuia.
e) fusta (mantaua) pistonului are rolul de a-l ghida in timpul deplasarii sale pe verticala.
f) orificiile de scurgere spre centru sunt dispuse echidistant in canalul in care se monteaza segmentii de ungere.
Starea termica a pistonului
Fiind in contact permanent cu gazele de ardere pistonul primeste o cantitate mare de caldura, o parte din aceasta cantitate se evacueaza.
Cea mai mare cantitate de caldura se evacueaza la nivelul regiunii port-segment,restul transmitandu-se gazelor din carterul motorului si uleiului.
Cea mai solicitata zona termic este zona capului pistonului.Datorita temperaturii are loc o dilatare termica a pistonului,el devenind eliptic in zona alezajului pentru bolt.
Pentru a micsora temperatura mantalei pistonului cu scopul de a reduce jocul dintre piston si cilindru o solutie des intalnita in constructia pistoanelor este mantaua elastica aceasta avand niste decupari in forma de T sau I inclinat dupa canalul ce apartine segmentului de ungere asa cum rezulta in figura 7(fig.7 a pentru canal T si fig.7 b pentru canal in forma de Π )
În felul acesta se micsoreaza fluxul de caldura care trece spre manta cu 30 – 50%.
Capitol 3
Materiale utilizate la fabricarea pistoanelor
Capitol 4
Tehnologia de prelucrare a pistonului
Capitol 5
Calculul pistonului
Calculul de rezistenta a pistonului se face dupa stabilirea principalelor dimensiuni pe baza datelor statistice ale motoarelor existente si care s-au comportat bine in exploatare.
Capitol 6
Norme de sanatatea si securitatea muncii
6.1. Tehnica securitatii muncii la prelucrarea prin aschiere
asigurarea iluminatului, incalzirii si ventilatiei in atelier;
masinile si instalatiile sa fie echipate cu instructiuni de folosire;
sa fie asigurata legarea la pamant a tuturor masinilor actionate electric;
masinile sa fie echipate cu ecrane de protectie conform normelor de protectie a muncii;
atelierele sa fie echipate in locuri vizibile cu mijloace de combatere a incendiilor;
atelierul sa fie dotat cu mijloace de ridicat pentru manipularea pieselor mai mari de 20 Kg;
muncitorii sa poarte echipament bine ajustat pe corp cu manicile incheiate si parul sa fie acoperit sau legat;
inainte de inceperea lucrului va fi controlata starea masinilor, a dispozitivelor de pornire-oprire si inversare a sensului de miscare;
se va verifica inaintea lucrului daca atmosfera nu este incarcata cu vapori de benzina sau alte gaze inflamabile sau toxice;
la terminarea lucrului se deconecteaza legaturile electrice de la prize, masinile vor fi oprite, sculele se vor aseza la locul lor iar materialele si piesele vor fi stivuite in locuri indicate;
ciocanele trebuie sa aiba cozi de esenta tare, fara noduri sau crapaturi; este interzis lucrul cu ciocanele, nicovalele care au fisuri, stirbituri, sparturi sau deformari in forma de floare;
la folosirea trasatoarelor se cere atentie pentru a nu se produce intepaturi iar dupa utilizare vor fi asezate in truse speciale
ANEXA DESENE

Fig.1
Pistonul plonjor al unui motor diesel fara cap de cruce

Fig.2
Diferite forme constructive ale capetelor de pistoane

Fig.3

Fig.4
Desenul de executie al pistonului

Fig.5
Repartizarea fortei in capul pistonului

Fig.6
Fortele care actioneaza asupra pistonului


Fig.7a, b
Bibliografie
1, M.Toader, N. Sambotin, D. Balanescu – Masini termice si instalatii navale si portuare – EDP Bucuresti 1980
2. Apostolescu N., Bataga N. – Motoare cu ardere interna – EDP Bucuresti 1967
3. M.Toader – Masini termice si instalatii navale – EDP Bucuresti 1979
|