
si
Instructiuni de instalare
GU-2EK-S


Aparat |
Tip |
Categorie |
Regim de functionare |
Racordabil la |
||||
|
Germania |
Austria |
Functioneaza cu aerul din încapere |
Independent de aerul din încapere |
Cos de fum |
Cos aer/gaze arse |
Tubulatura aer/gaze arse |
||
|
GU-2EK-S |
B11BS |
II2ELL3P |
II2H3P |
X |
|
X |
|
|
|
GG-2EK-S |
B32, C12x, C32x, C42x |
II2ELL3P |
II2H3P |
X1) |
X |
X1) |
X |
X |
Normative, prescriptii

Pentru pagube produse datorita unor modificari la reglaje sau la piesele componente ce realizeaza reglajele, nu ne asumam nici o raspundere.
Date tehnice
|
Tip |
|
GU-2EK-18-S |
GU-2EK-24-S |
GG-2EK-18-S |
GG-2EK-24-S |
|
Putere termica nominala Incarcare termica nominala Putere termica minima (modulata) Incarcare termica minima (modulata) |
kW kW kW kW |
|
|
|
|
|
Ducere încalzire- Ű exterior Intoarcere încalzire- Ű exterior Racord apa calda de consum Racord apa rece Racord gaz Racord tubulatura gaze de ardere Racord tubulatura aer/gaze de ardere |
mm mm G G R mm mm |
20 (G3/4) 20 (G3/4) |
20 (G3/4) 20 (G3/4) |
20 (G3/4) 20 (G3/4) |
20 (G3/4) 20 (G3/4) |
|
Valori pe racord gaz Gaz natural Gaz lichefiat |
m3/h m3/h kg/h mbar mbar |
|
|
|
|
|
Temperatura pe ducere (domeniu de reglare) Presiune maxima admisa Continut apa schimbator de caldura primar Presiune remanenta (pierderi de presiune): -debit 430 l/h (10 kW la ΔT = 20 K) -debit 770 l/h (18 kW la ΔT = 20 K) -debit 1030 l/h (24 kW la ΔT = 20 K) |
șC bar l mbar mbar mbar |
|
|
|
|
|
Debit apa calda de consum Presiune minima de curgere pt. 95% din Qmax Suprapresiune maxima admisa Temp. maxima de iesire3) La un debit de: |
l/min bar bar șC l/min |
|
|
|
|
|
Vas de expansiune Volum total Presiune initiala |
l bar |
|
|
|
|
|
Debit gaze deardere1) Temperatura gaze de ardere1) Presiune de refulare Grupa gaze de ardere Interval de timp pâna la declansare supraveghetor gaze de ardere Racord electric Siguranta Consum electric Tip de protectie Greutate |
g/s șC Pa min V/H A W IP kg |
X4D |
X4D |
G01 X4D |
G01 X4D |
|
Nr de identificare |
|
CE-0085BL0124 |
CE-0085BL0124 |
CE-0085BL0125 |
CE-0085BL0125 |
1) Pentru putere calorica minima/maxima în urmatoarele conditii: gaz natural tip E, temperatura pe ducere de 60 șC si tubulatura de aer/gaze de ardere de 0,5 m.
Cu piesa de racord B32.
La o temperatura a apei reci de 10 șC.
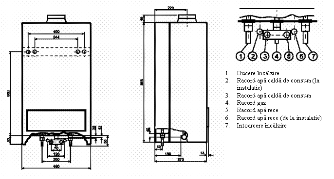
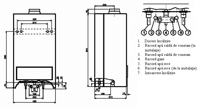
Dimensiuni


GU-2EK-S
GG-2EK-S


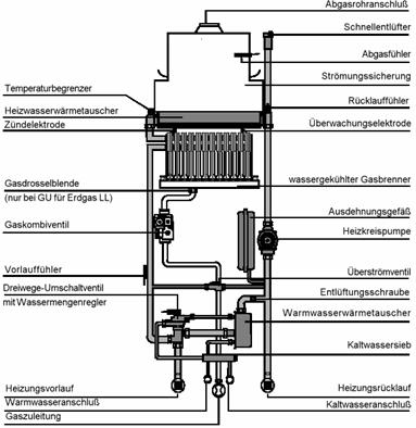
Schema constructiva

|
Racord gaze de ardere |
|
|
Dezaerisitor
rapid Limitator de
siguranta la
temperatura Senzor
intoarcere Electrod
supraveghere flacara Rampa de gaz Ducere
încalzire Intoarcere
încalzire Tub
aer/gaze de ardere Ventil cu 3
cai cu senzor curgere
![]()
![]()
|
Presostat |
|
|
|
|
Schimbator
secundar Filtru
apa rece Racord
apa calda Racord
apa rece Racord gaz Dezaerisitor
rapid Carcasa
camera de ardere Senzor
intoarcere Electrod
supraveghere flacara Arzator
racit cu apa Vas de
expansiune Pompa
de circulatie (doar la GU
pe gaze tip LL) Colector
gaze arse Limitator
de siguranta temperatura Schimbator
primar Electrod de
aprindere Rampa de gaz Senzor
ducere By-pas Ventil
dezaerisire Ventil cu 3
cai cu senzor curgetre Schimbator
secundar Filtru
apa rece Intoarcere
încalzire Ducerer
încalzire Racord
apa rece
![]()
![]()
![]()
![]()
![]()
Montare

Microcentrala pe gaze Dimensiune "A" GU-2EK-18-S 303 mm GU-2EK-24-S 323 mm GG-2EK-18-S 231 mm GG-2EK-24-S 231 mm

Dimensiuni de montare
Dim. A La montarea cu un
coltar de sustinere
Generalitati Pentru eventuale lucrari de inspectie/întretinere la aparat recomandam o distanta laterala de cel putin 40 mm la GU-2EK-S si 100 mm la GG-2EK-S si o distanta pâna la plafon de 400 mm.
Microcentralele pe gaz sunt conforme tipului de protectie IP X4D si pot fi instalate în bai cu domeniul de protectie 1 sau mai mare, conform VDE 0100 partea 701.
Microcentralele pe gaz trebuiesc instalate în incaperi protejate la înghet.
La puerea termica nominala, aparatul nu atinge temperaturi mai mari de 85șC, astfel ca, în apropierea acestuia se pot depozita materiale inflamabile.
La montarea aparatului trebuiesc îndepartate corpurile straine (de ex. span). Utilizati capacul din stiropor!
Aerul necesar arderii nu trebuie sa contina substante chimice (de ex.: flor, clor, sulf). Aceste substante duc la coroziuni, chiar si în instalatia de gaze arse.
Montare
Pozitionare aparat Mai întâi stabiliti pozitia de montare a microcentralei.
Apoi asigurati pozitionarea tubulaturii de aer/gaze arse (la GG-2EK-S), racordul pt. gaze arse (la GU-2EK-S), distantele laterale si distanta pâna la plafon, precum si racordurile la gaz, apa rece, apa calda de consum, ducere, intoarcere si racordurile electrice.
Pentru marcarea gaurilor de fixare si a racordurilor exista un sablon de montare.
Asezati sablonul vertical si marcati gaurile de fixare. Trebuie tinut cont de distantele minime laterale, precum si de distanta pâna la plafon.
Decupare

-Aparatul nu trebuie fixat pe placajul dulapului, ci pe perete.
-Realizati o decupare în parea superioara a dulapului de min. 410 x 550 mm, conform schitei alaturate.
-Lasati o distanta laterala, între microcentrala si dulap de min. 25 mm.
-În cazul aparatelor functionand cu aerul din încapere (GU-2EK-S, GG-2EK-S art. B32) montati o grila pentru aer, conform schitei alaturate.
-Sectiunea grilei trebuie mentinuta libera.
|
Tip aparat |
Sectiune minima |
|
GU-2EK-S |
400 cm2 |
|
Rama
grila
aer |
|
|
Instalare
|
Robinet cu cap termostatat |
|
|
|
Limitator temperatura tur |
|
GG-2EK-S |

|
Taste pt. programare |
|
Lungimea calculata (m) |
|
|
|
|
|
|
|
Reset |
Aparatul GG-2EK-S-18 poseda un deflector de gaze de ardere, care nu trebuie scos.
Aparatul GG-2EK-S-24 nu necesita un deflector de gaze de ardere.
Racord la cosul de aer/gaze de ardere Traseul tubulaturii de aer/gaze de ardere,
în cazul unui racord la cos nu trebuie (LAS), respectiv B32 sa
depaseasca 2 m. Pot fi folosite, de asemenea maximum 2 coturi la
90 șC.
V Variante de montare
GG-2EK-S
tubulatura
de aer/gaze de ardere

Racord la cos concentric aer/gaze de ardere (LAS)
Racord la cos (LAS) C42x Racord la cos de fum B32 GG-2EK-S



Tubulatura orizontalade aer/gaze arse
|
GG-2EK-S |
|
Orificii de aer |
|
GG-2EK-S |











Conexiuni electrice
|
|
|
|
|
|
Conexiuni electrice
|
|
|
Fig. 1a: Conexiuni microcentrala |
|
|
|
Fig. 1b: Conexiuni microcentrala |
|
|
|
Fig. 2 Conexiuni ART, AWT |
Afisarea/modificarea
parametrilor de reglare
|
|
|
Taste pt. programare |
|
Reset -- + |
Putere max. pe apa calda de consum
% (modulare)
Putere max. pe circuit încalzire
% (modulare)
Protectie la înghet
șC
Pornire pompa circulatie
1 = pompa cupleaza o data cu arzatorul
0 = Functionare de durata pe timp de iarna
Întârziere pompa de circulatie
0,1 minute
Temp. maxima agent termic
șC
Temporizare
Minute
Adresa e-bus
Tip de gaz1)
EL
EL
BP
Nr
Parametrii de afisat
U.M.
Turatie ventilator
U/s
Temperatura exterioara
șC
Temp. reala apa calda de consum
șC
Temp. necesara apa calda de consum
șC
Temp. necesara ducere
șC
Temp. supraveghere gaze arse
șC (doar la
GU-2EK-S)
Temp. reala intoarcere
șC
Curent de modulare
2mA
Curent de ionizare
0,1μA
1) Reglarea din fabrica nu tebuie modificata
2) Gradul de modulare eprezinta 87% din puterea nominala a aparatului
Presiune la duze/tabel de debit
Presiunile la duze pentru reglarea cantitatii de gaz dupa metoda presiunii la duza
|
Aparat |
Putere termica kW |
Incarcare termica kW |
Presiunea la duza în mbar (1013 mbar; 15șC) |
||
|
Gaz natural LL WS=11,5 kWh/m3 gfg=41,5 MJ/m3 |
Gaz natural E WS=14,1 kWh/m3 gfg=50,7 MJ/m3 |
Gaz lichefiat P WS=21,3 kWh/m3 gfg=76,8 MJ/m3 |
|||
|
GU-2EK-S-18 |
|
|
|
|
|
|
GU-2EK-S-24 |
|
|
|
|
|
|
GG-2EK-S-18 |
|
|
|
|
|
|
GG-2EK-S-24 |
|
|
|
|
|
Debit gaz pentru reglarea cantitatii de gaz dupa metoda volumica
|
Aparat |
Putere termica kW |
Incarc. termica kW |
Debit gaz în l/min (1013 mbar; 15șC) |
|||||||||||
|
Gaz natural tip E si LL |
||||||||||||||
|
La o putere calorica Hi în MJ/m3 (kWh/m3) |
||||||||||||||
|
|
|
|
|
|
|
|
|
|
|
|
||||
|
La o putere calorica HS în MJ/m3 (kWh/m3) |
||||||||||||||
|
|
|
|
|
|
|
|
|
|
|
|
||||
|
GU-2EK-S-18 |
|
|
|
|
|
|
|
|
|
|
|
|
|
|
|
|
|
|
|
|
|
|
|
|
|
|
|
|
|
|
|
|
|
|
|
|
|
|
|
|
|
|
|
|
|
|
|
|
|
|
|
|
|
|
|
|
|
|
|
|
|
|
|
|
|
|
|
|
|
|
|
|
|
|
|
|
|
|
|
GU-2EK-S-24 |
|
|
|
|
|
|
|
|
|
|
|
|
|
|
|
|
|
|
|
|
|
|
|
|
|
|
|
|
|
|
|
|
|
|
|
|
|
|
|
|
|
|
|
|
|
|
|
|
|
|
|
|
|
|
|
|
|
|
|
|
|
|
|
|
|
|
|
|
|
|
|
|
|
|
|
|
|
|
|
GG-2EK-S-18 |
|
|
|
|
|
|
|
|
|
|
|
|
|
|
|
|
|
|
|
|
|
|
|
|
|
|
|
|
|
|
|
|
|
|
|
|
|
|
|
|
|
|
|
|
|
|
|
|
|
|
|
|
|
|
|
|
|
|
|
|
|
|
|
|
|
|
|
|
|
|
|
|
|
|
|
|
|
|
|
GG-2EK-S-24 |
|
|
|
|
|
|
|
|
|
|
|
|
|
|
|
|
|
|
|
|
|
|
|
|
|
|
|
|
|
|
|
|
|
|
|
|
|
|
|
|
|
|
|
|
|
|
|
|
|
|
|
|
|
|
|
|
|
|
|
|
|
|
|
|
|
|
|
|
|
|
|
|
|
|
|
|
|
|
Valorile din paranteza corespund unei sarcini de 85% din sarcina nomninala
Sarcina nominala (kW) x 1000
Întretinere
Curatarea shimbatorului Scoateti aparatul din functiune conform instructiunilor de utlizare si goliti-l.
primar Înainte de orice interventie la aparat, decuplati-l de la retea.

|
Carcasa camera de ardere |

|
Carcasa camera de ardere |
|
|
|
Deflector gaze arse |
|
Schimbator primar |
|
Colector gaze arse |
|
|
|
Senzor retu |
|
Limitator de temp. |
Întretinere
Curatarea arzatorului Goliti aparatul si apoi procedati dupa cum urmeaza:
|
|
|
Piulita olandeza |
|
Electrod de ionizare |
|
Electrod de aprindere |
|
Unitate arzator |
|
suruburi de sustinere |
|
|
|
Distribuitor |
|
suruburi |
Detartrarea schimbatorului În functie de structura chimica a apei se recomanda o detartrare periodica a schimba- secundar de caldura torului secundar de caldura.
|
|
|
Ventil de suprapresiune 1 |
|
Piesa de racord 2 |
Supraveghetor gaze arse
Masurare conform BlmSchV
|
Capac |
|
|
|
Piulita moletata |
Defectiune - cauza - remediere
Verificati rezistenta (360 Ohm), verificati cablarea (vezi schema de racord)
Senzorul pt. temperatura exterioara este defect
Senzorul pt. temperatura exterioara, sau cablul acestuia sunt defecte
Verificati cablul
Verificati senzorul
Senzorul de intoarcereeste defect
Senzorul de intoarcere sau cablul acestuia sunt defecte
Verificati cablul
Verificati senzorul
Eroare curent de modulare
Curentul de modulare a depasit pentru 10 sec. valoarea de 15mA
Apasati tasta reset; verificati magnetul de modulare si conexiunile.
Masurati curentul de modulare
(doar la GG)
Lipsa aer
Presostatul nu deschide
Apasati tasta reset; Verificati furtunul din silicon de la presostat, calea de gaze arse si ventilatorul, apoi verificati si presostatul
(doar la GG)
Defectiune presostat
Presostatul nu închide
Apasati tasta reset;
În cazul repetarii erorii schimbati presostatul
(doar la GG)
Defectiune ventilator
Turatia ventilatorului nu se afla în domeniul admis, sau puntea de la clapeta de gaze arse lipseste (vezi pag 15)
Apasati tasta reset; verificati cablul de alimentare la ventilator, ventilatorul si rampade gaze arse
Supraveghere curgere *)
Temperatura pe intoarcere este mai mare cu mai mult de 25 K decât temperatura de pe ducere
Verificati pompa de circulatie si by-pass
*) Eroarea 41 poate aparea, pentru scurt timp si în functionare normala (Trecere de pe preparare apa calda pe încalzire)
În acest caz codul de eroare va disparea dupa câteva secunde.
-Reglati temperatura în asa fel încât aceast sa corespunda necesarului dvs. de caldura.; fiecare grad în plus înseamnând un consum de energie cu 5% mai mare.
-În camerele nelocuite scadeti temperatura cât mai mult posibil; avand grija la protectia la înghet.
-În camera în care amplasati termostatul de camera închideti toate ventilele radiatoarelor.
Acest termostat trebuie lasat liber (sa nu fie mascat cu mobila sau cu perdele).
|