ALTE DOCUMENTE
|
||||||||||
Stabilirea formei si dimensiunilor semifabricatelor MATRIŢATE
Scopul lucrarii
Lucrarea urmareste sa prezinte modul de lucru pentru stabilirea formei si dimensiunilor semifabricatelor matritate.
Aspecte teoretice
Matritarea este procedeul de prelucrare a materialelor prin deformare plastica, proces ce are loc datorita curgerii materialelor metalice în cavitatea unei scule numita matrita, alcatuita, de obicei din doua parti numite semimatrite.
În comparatie cu forjarea libera, matritarea (forjarea în matrita) prezinta urmatoarele avantaje: productivitate ridicata, permite obtinerea de semifabricate pentru piese de complexitate mare, consum redus de material. Printre dezavantajele matritarii amintim: greutatea limitata a pieselor ce se pot matrita si costul ridicat al matritelor.
Alegerea procedeului de obtinere a unui semifabricat pentru o piesa data, prin forjare libera sau prin forjare în matrita, este conditionata si de numarul de semifabricate si de marimea si configuratia piesei.
Semifabricatele de dimensiuni foarte mari se pot obtine numai prin 11411w2211l forjare libera; cele de dimensiuni medii si mici se pot obtine fie prin matritare, fie prin forjare libera. La productia de serie mijlocie si mai sus este economica matritarea.
Clasificarea procedeelor de matritare se face dupa mai multe criterii. Dupa modul de curgere a materialului matritarea poate fi cu bavura (matritarea deschisa) sau fara bavura (matritarea închisa). La matritarea deschisa surplusul de material curge în bavura si se îndeparteaza prin debavurare (fig.1a). La matritarea deschisa (fig.1b), bavura nu apare, ca urmare a unei debitari foarte exacte a materialului de pornire. Eventualul surplus de material este mic si va fi preluat în spatiul dintre poanson si matrita.
|
a b Fig 1 |
1-semimatrita superioara; 2- locas; 3-bavura; 4-piesa matritata; 5-semimatrita inferioara; 6-poanson; 7-matrita; 8-extractor. |
La întocmirea desenului semifabricatului matritat, trebuie realizate urmatoarele faze succesive:
Întocmirea desenului semifabricatului matritat se face practic plecând de la desenul piesei finite, la care se considera adaosurile de prelucrare si adaosurile tehnologice (înclinari pentru scoaterea usoara a semifabricatului din cavitatea matritei, raze de racordare si adaosuri pentru simplificarea formei acestuia). Pe desenul semifabricatului matritat se va stabili si pozitia planului de separatie dupa care se face închiderea si deschiderea matritei.
1. Alegerea planului de separatie se face tinând seama de urmatoarele principii de baza:
Raportul dintre înaltimea diferitelor sectiuni determina alegerea suprafetei de separatie, care coincide, de obicei, cu planul suprafetei maxime.
Pentru matritarea la ciocane, se recomanda ca partea cea mai înalta a matritei sa fie asezata deasupra (unde materialul curge mai bine); la prese, aceasta problema nu se pune, curgerea materialului fiind asemanatoare în ambele parti ale matritei.
2. Stabilirea adaosului de prelucrare Ap pe fetele semifabricatului matritat se alege conform STAS 7670-83, în raport cu greutatea pieselor, sau se calculeaza cu relatia:
|
Ap = 0,4 + 0,015·H + 0,0015·L |
|
în care H este înaltimea piesei; L, lungimea piesei.
Marimea adaosului de prelucrare depinde deci de marimea si forma piesei, dar si de calitatea necesara a suprafetelor prelucrate si de natura productiei. Tolerantele depind, de asemenea, de dimensiunile si forma piesei si se aleg conform STAS 7670-83 sau se calculeaza astfel:
Adaosurile de prelucrare se aplica numai suprafetelor semifabricatelor matritate care se prelucreaza prin aschiere.
3. Stabilirea adaosului tehnologic. La stabilirea înclinarilor de matritare trebuie sa se aiba în vedere ca, cu cât unghiurile de înclinare sunt mai mari, cu atât mai usor se pot extrage piesele din cavitatile matritei. Pe de alta parte însa, cu cât unghiurile de înclinare sunt mai mari, materialul urca mai greu în cavitatile adânci, iar consumul de material creste. De obicei, înclinarile interioare (3.10 ) sunt mai mari decât cele exterioare (1.7 ), pentru a evita blocarea semifabricatului în matrita din cauza contractiei la racire. Valorile înclinarilor de matritare se aleg din STAS 7670-83, iar pentru piese cu forme complexe se recomanda sa se folosesca indicatiile din tabelul 1 (Anexa1).
Razele de racordare se executa pentru a elimina muchiile ascutite si pentru a ajuta la curgerea materialului în cavitatile matritelor. Muchiile ascutite interioare si exterioare ale pieselor nu se pot umple bine, din cauza frecarii si racirii materialului în timpul curgerii prin aceste zone.
Marimea razelor de racordare între diferite sectiuni si razele de rotunjire ale muchiilor nu trebuie sa fie prea mari pentru a nu spori în mod inutil pierderile de material. Determinarea razelor de rotunjire R si al razelor de racordare R1 se stabilesc conform STAS 7670-83 sau se calculeaza cu relatiile din tabelul 2
(Anexa 1).
4. Determinarea înaltimii membranei. Alezajele piesei cu diametre mai mari de 28 mm se pot obtine prin matritare. Aceste alezaje nu se pot realiza complet prin matritare deoarece frecarile interioare din materialul care trebuie expulzat cresc atât de mult pe masura ce stratul se subtiaza, încât energia masinii devine insuficienta pentru gaurirea completa a semifabricatului. Prin matritare se realizeaza numai niste adâncituri (numite amprente), care corespund gaurii din piesa prelucrata. Ele sunt despartite prin stratul de material care nu a putut fi expulzat în timpul matritarii, numita membrana.

a. b.
Fig. 2
Pentru calculul înaltimii membranei se poate utiliza relatia:
|
|
|
în care: d este diametrul gaurii (la partea superioara), în mm; h, înaltimea gaurii pâna la planul de separatie, în mm.
Bavurile interioare (membranele) cu diametrul
mic se executa cu grosimea constanta h, iar cele cu diametrul mare au
grosime variabila (pentru a usura curgerea materialului); în ultimul
caz, grosimea lor minima se ia hmin = 0,65h, iar hmax=1,35h
(fig. 3a). Când se matriteaza piese cu înaltimi mici, având
(H/D)<0,7, bavura interioara are forma din fig. 3b, cu grosimea h =
si raza de racordare R1=5H.
a b
Fig. 3
Pentru a întelege modul de stabilire a formei si dimensiunilor semifabricatului matritat se prezinta în continuare un exemplu.
Fig. 4
1 Alegerea planului de separatie Se alege ca plan de separatie planul care contine sectiunea maxima a piesei, deoarece nu exista alte conditii tehnologice care sa impuna alegerea altui plan de separatie mai favorabil.
2 Stabilirea adaosurilor de prelucrare si a tolerantelor de matritare. Adaosurile de prelucrare se calculeaza cu relatia 1:
Ap = 0,4 + 0,015 170 = 1,4 mm
Tolerantele de matritare se calculeaza astfel:
3.Stabilirea adaosului tehnologic Înclinarea peretilor semifabricatului, perpendiculara pe planul de separatie se aleg din tab. 1 (Anexa 1) în functie de rapoartele H/B si L/B:
;
rezulta ca a
Razele de racordare se calculeaza cu relatiile din tabelul 2 (Anexa 1) în functie de raportul H/B.
Rezulta: R = 0,05 32 + 0.5 = 2,1 mm; R1 = 2,5 2,1 + 0.5 = 5,8 mm
R = 0,05 46 + 0.5 = 2,8 mm; R1 = 2,5 2,8 + 0.5 = 7,5 mm
R = 0,05 25 + 0.5 = 1,8 mm; R1 = 2,5 1,8 + 0.5 = 5 mm
Semifabricatul matritat este prezentat în fig. 5.

Fig. 5
3. Modul de lucru
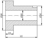
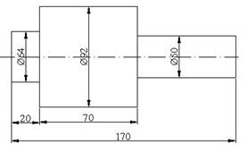
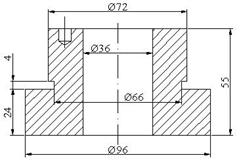
Pe baza modului de lucru prezentat, vor fi stabilite forma si dimensiunile semifabricatelor matritate pentru piesele din figurile 6, 7 si 8, folosindu-se în acest scop si indicatiile date în anexa 1.
|
Fig. 6 |
Fig. 7 |
Fig. 8
Concluzii
Se vor face observatii privind întocmirea desenului de semifabricat si cotarea corecta a acestuia(v. Anexa 1)
ANEXA 1
Înclinarile semifabricatelor matritate
Tab. 1
|
H/B L/B |
<1 |
|
|
|
|
>8 |
|
< 1,5 |
|
|
|
|
|
|
|
>1,5 |
|
|
|
|
|
|
Razele de racordare si de rotunjire pentru semifabricate matritate
Tab.2
|
H/B |
R [mm] |
R1[mm] *) |
|
< 2 |
H + 0,5 |
R + 0,5 |
|
|
H + 0,5 |
R + 0,5 |
|
> |
H + 0,5 |
R + 0,5 |
*) Valorile calculate pentru R1 se rotunjesc la 1; 1,5; 2; 2,5; 3; 4; 5; 6; 8; 10; 12,5; 15; 20; 25 mm.
Exemple de cotare a semifabricatelor matritate
|
|
|
|
a: cote de lungime; b: cote de latime; c: cota de deviere; d: grosime în sectiune perpendiculara pe planul de separatie |
Lungimi si latimi între fetele interioare |

Cotarea decalajelor si bavurilor
|
Cotarea suprafetelor exterioare Cotarea suprafetelor în raport cu axele |
|