Stabilirea formei si dimensiunilor semifabricatelor forjate liber
Lucrarea urmareste sa prezinte modul de stabilire a formei si dimensiunilor semifabricatelor forjate liber.
Forjarea este procedeul de prelucrare prin deformare plastica la rece sau la cald prin care se obtine, prin curgerea materialului, o forma cāt mai apropiata de piesa finita. Dupa modul de curgere al materialului forjarea poate fi l 949y2421j ibera sau īn matrita.
Piesele care se obtin prin forjare se numesc semifabricate forjate. Pentru obtinerea unui grad superior de prelucrare, semifabricatele se supun ulterior altor operatii (prelucrari prin aschiere si tratamente termice) care le confera proprietatile fizico-mecanice necesare functionarii lor īn diferite ansambluri.
Semifabricatele au abateri dimensionale de la forma, de la pozitia suprafetelor si de la calitatea suprafetei fata de piesele corespunzatoare. Pentru ca la prelucrarea semifabricatului, īn vederea obtinerii piesei, sa se poata elimina abaterile acestuia fata de piesa, el trebuie prevazut cu un anumit surplus de material fata de aceasta. Astfel, desenul semifabricatului forjat liber se realizeaza plecānd de la desenul piesei finite la care se adauga:
Adaosul de prelucrare este surplusul de material prevazut pe suprafetele componente ale piesei care urmeaza a fi obtinuta prin prelucrare, īn scopul eliminarii abaterilor semifabricatului fata de piesa, la transformarea acestuia īn piesa.
Marimea adaosurilor de prelucrare depinde de mai multi factori:
Adaosurile tehnologice se prevad pe anumite parti ale piesei finite ce nu pot fi executate printr-una din operatiile de forjare libera, de exemplu: gauri de diametru mic, flanse apropiate de un arbore, adāncituri īn piesa, etc.
Adaosurile de prelucrare sunt standardizate prin STAS 2171-84 si SR 13172 pentru o serie de piese uzuale, cum sunt: bare rotunde si patrate, discuri pline, discuri cu gauri, inele, bucse forjate pe dorn, piese cu sectiune variabila.
Tolerantele de forjare sunt abaterile admise de la cotele semifabricatului forjat si se aplica la toate dimensiunile.
Calitatea suprafetelor semifabricatelor forjate liber este foarte grosolana (Ra=25 - 50 mm).
Semifabricatele se obtin prin forjare libera īn cazul productiei de serie mica si unicate.
Se pot forja piese din aliaje feroase si neferoase. Aliajele feoase deformabile prin forjare sunt otelurile carbon si aliate. Caracteristicile mecanice si tehnologice ale acestora sunt influentate de compozitia chimica. Astfel, de exemplu, la otelurile carbon, elementul chimic care are cea mai mare influenta asupra forjabilitatii este carbonul (continutul de carbon care asigura o deformabilitate buna la aceste tipuri de oteluri trebuie sa fie pāna la 1,4%), iar la cele aliate, concentratiile, elementelor de aliere care intra īn compozitie. Dintre metalele si aliajele neferoase cele mai des utilizate pentru obtinerea semifabricatelor forjate sunt: aluminiul si aliajele acestuia cu Si, Cu, Mg, Zn, si Mn; aliajele magneziului cu Mn, Al si Zn; cuprul si aliajele lui cu Zn (alamele), Sn (bronzurile) si Al.

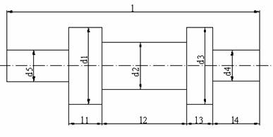
Fig. 1
Īn continuare se va prezenta un exemplu de stabilire a formei si dimensiunilor semifabricatului forjat liber pentru o piesa data (fig. 1).
Pentru a stabili forma semifabricatului forjat liber (fig. 2) la forma piesei finite se adauga adaosurile de prelucrare si adaosurile tehnologice.

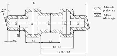
Fig. 2
Cotarea pe directie orizontala a semifabricatului se face diferit fata de cotarea piesei finite deoarece se tine cont de tehnologia de obtinere a semifabricatului.
Dimensiunile semifabricatului se calculeaza avānd īn vedere dimensiunile piesei finite si adaosul de prelucrare. Pentru semifabricatul prezentat īn fig. 2 dimensiunile sunt:
|
D1 = (d1 + 2Ap) |
L1 = (l1 + 2Ap) |
|
D2 = (d2 + 2Ap) |
L2 = (l2 -2Ap) |
|
D3 = (d3 + 2Ap) |
L2 +L3 = (l2 + l3); |
|
D4 = (d4 + 2Ap) |
L2 +L3 +L4 = (l2 + l3 +l4 + Ap); |
|
D5 = (d5 + 2Ap) |
L = (l + 2Ap); |
īn care: Ap reprezinta adaosul de prelucrare, īn mm;
T, toleranta, īn mm.
Adaosul de prelucrare si tolerantele la dimensiuni sunt date īn standardul SR 13172 īn functie de forma si dimensiunile piesei finite.
3. Modul de lucru
Dupa īnsusirea modului de stabilire a formei
si dimensiunilor semifabricatului forjat liber, prezentat īn lucrare, se
trece la stabilirea formei si dimensiunilor semifabricatelor forjate
pentru obtinerea piesele prezentate īn figurile 3, 4 si 5.

Fig. 4
Fig. 3
Fig. 4
Fig. 5
Concluzii
Concluziile se vor referi la forma suprafetelor care pot fi obtinute prin forjare libera si la modul de stabilire a dimensiunilor acestor semifabricate.
|