5.5 Scari
5.5.1. Definitia si rolul scarilor.
Definitie Scarile sunt subsisteme principale de constructii alcatuite din elemente plane numite trepte. Asezarea acestor plane este denivelata si echidistanta pe înaltime si poate alterna cu elemente plane orizontale de dimensiuni mai mari numite podeste. Podestele au functia de a asigura odihna persoanelor, utilizatorilor, dupa parcurgerea unui numar constant de trepte.
Rolul scarilor este asigurarea comunicarii si circulatiei pe verticala între toate nivelurile cladirii sau asigurarea circulatiei locale în spatii tehnice, de depozitare si altele mai putin accesibile.
Elementele care alcatuiesc scarile.
Elementele care alcatuiesc scarile pot fi grupate în urmatoarele categorii:
elemente de rezistenta diferite care, asamblate împreuna, alcatuiesc structura de rezistenta a scarii. Aceste elemente de rezistenta sunt: rampa, podestul sau odihna, grinzile de podest sau de vang.
elemente functionale ale scarii care asigura utilizatorilor functionarea corespunzatoare a scarii în raport cu destinatia cladirii, cu pozitia fata de cladire, cu forma scarii etc. Aceste elemente functionale sunt: treapta, contratreapta, vangul, balustrada, mâna curenta.
elemente geometrice ale scarii care determina forma scarii. Aceste elemente geometrice sunt: înaltimea, latimea si lungimea treptei, linia pasului, înaltimea balustradei si pozitia acesteia pe rampa si podest, înaltimea de pozitionare a mâinii curente.
Rampa. Este elementul de rezistenta înclinat al scarii. Pe ea sunt dispuse, echidistant si decalat pe înaltime, treptele. În plan, rampa poate avea forma dreapta sau curba. Pentru scari interioare se recomanda ca o rampa sa aiba minim 3(trei) trepte si maxim 16 trepte. În situatii deosebite rampa unei scari interioare poate avea 18 trepte, cu respectarea unor prevederi speciale.
Podestul. Este elementul orizontal intercalat între rampe. Podestul are scopul de a asigura odihna utilizatorului. Din acest motiv, podestul se mai numeste odihna scarii. Podestul prilejuieste, daca este cazul, schimbarea de directie a rampei. Din punct de vedere structural poate exista o grinda de separare între rampa si podest. Aceasta grinda se numeste grinda de podest.
Vangul. Este marginea libera a rampei. O rampa poate avea un vang si atunci rampa este rezemata pe peretele casei scarii sau doua vanguri. În acest caz, rampa scarii functioneaza similar unei grinzi. Când exista o grinda dispusa în lungul liniei vangului, aceasta grinda se numeste grinda de vang.
Treapta si contratreapta. Treapta este elementul
orizontal al rampei. Dimensiunile treptei sunt înaltimea
, latimea
, si lungimea
. Lungimea
a treptei este si
latimea rampei. Contratreapta este
elementul vertical care poate lipsi în functie de tipul scarii.
Balustrada. Este elementul vertical dispus la marginea libera a rampei. Poate avea forma unui parapet. Are rolul de a proteja circulatia utilizatorilor. Se calculeaza la forte orizontale care actioneaza la partea superioara a balustradei. Intensitatea fortei de calcul se considera în functie de destinatia cladirii: 50 daN sau 100 daN. La partea superioara a balustradei se prevede un element paralel cu rampa denumit mâna curenta. Mâna curenta are rol de sprijin pentru utilizatori. Mâna curenta poate fi alcatuita în diferite moduri decorative. Din acest motiv, îndeplineste un rol estetic deosebit, îndeosebi în cazul scarilor monumentale, fie interioare, fie exterioare.
Linia pasului. Este proiectia în plan a liniei de folosire normala a treptelor de catre un utilizator care se sprijina de mâna curenta. Este situata la 50-60 cm de vangul interior. Aceasta cota depinde de latimea rampei. Se alege 50 cm pentru latimi de rampa pâna la un metru si 60 cm pentru latimi care depasesc aceasta cota.

Fig. 5.5.1. Elemente geometrice ale treptei

Fig. 5.5.2. Înaltimea treptelor si relatia pasilor
5.5.3. Amplasarea scarilor.
Scarile se amplaseaza într-un spatiu structural special amenajat si destinat anume circulatiei pe verticala numit casa scarii.
În acest spatiu se poate dispune si casa liftului sau tubul liftului atunci când numarul de niveluri al sistemului cladire impune acest lucru. Numarul minim de niveluri al unui sistem cladire care nu impune dotarea cu unu sau mai multe lifturi este de trei niveluri. Acest numar de niveluri poate fi diferit în raport cu destinatia cladirii, cu importanta acesteia sau cu subiectivismul si necesitatile beneficiarului sau utilizatorului. În cazul casei liftului se iau masuri speciale pentru amplasarea mecanismului de ridicare, situat de regula într-un spatiu tehnic dispus la baza casei liftului sau la partea ei superioara.
Scarile au forme geometrice foarte variate si pot fi executate din toate sortimentele de materiale.
În raport cu sistemul-cladire, scarile pot fi amplasate în interiorul sau în exteriorul acestuia. O cladire poate fi echipata cu una sau mai multe scari interioare, numarul lor si dimensiunea treptelor fiind stabilit în conformitate cu normele de protectie contra incendiilor si necesitatea de evacuare într-un anumit interval de timp a persoanelor ce s-ar putea afla la un anumit moment dat în interiorul cladirii în timpul unui incendiu.
Casa scarii trebuie sa fie vizibila de la intrarea în cladire.
Sensul de urcare al scarii trebuie sa fie în continuarea sensului de intrare în cladire. Aceasta cerinta decurge din necesitatea ca subsistemul scarii sa fie conceput, proiectat si executat într-o maniera cât mai fireasca, în raport cu cerintele utilizatorului.
Scarile trebuie sa fie iluminate si ventilate natural.
Scarile raportate la destinatia cladirilor.
Destinatia cladirii si importanta sa determina în mod direct toate caracteristicile scarii sau scarilor care sunt necesare. Corespunzator clasificarii constructiilor dupa destinatie si dupa importanta, vezi monografia Constructii si mediu, Editura MATRIX ROM, Bucuresti, 2004, scarile se pot grupa în urmatoarele cinci categorii:
Monumentale pentru muzee, teatre, sali de expozitie;
Principale, care asigura circulatia principala la cladirile de locuit. Aceste scari se executa pe întreaga înaltime a cladirii.
Secundare, care asigura circulatia mai intensa, spre exemplu la subsol, la terasa si altele. Se executa numai între anumite niveluri, dupa necesitate.
De incendiu, când au destinatia de evacuare în caz de pericol. Se executa special pentru acest scop, în cazurile când sistemul cladire necesita aceasta prevedere. Se confectioneaza de obicei din metal si se amplaseaza în exteriorul cladirii.
De întretinere sau exploatare. Cu astfel de scari sunt prevazute anumite instalatii, echipamente sau utilaje. si aceste scari sunt executate în cele mai multe cazuri în solutie metalica, de obicei fara contratrepte.
5.5.5. Pozitia scarilor fata de cladirea deservita.
Dupa pozitia fata de cladire, scarile se împart în doua categorii: interioare si exterioare.
Scarile sunt interioare când întregul spatiu al casei scarii se afla dispus în interiorul cladirii;
Scarile sunt exterioare când casa scarii este prevazuta în afara cladirii. Aceste scari pot fi acoperite sau nu. Ca si scarile interioare, scarile exterioare pot avea diferite forme geometrice.
Aceste doua tipuri de scari se pot deosebi prin masurile de ancorare de sistemul cladire si prin modul de realizare al acoperisului.
5.5.6. Modul de comportare la foc al scarilor.
Comportarea la foc a scarilor depinde în principal de materialul din care sunt confectionate. Exista mai multe tipuri de scari, conform Normativului P118 "Realizarea cladirilor privind protectia împotriva focului". Aceste tipuri de scari sunt definite în raport cu gradul de rezistenta la foc.
Incombustibile la cladiri cu grad de rezistenta la foc I, II si III. Se pot executa din beton, piatra, materiale ceramice.
Urmatoarele trei categorii de scari se prevad la cladiri cu grad de rezistenta la foc IV si V.
Greu combustibile, se executa din elemente metalice.
Semicombustibile, se executa din lemn ignifugat.
Combustibile, executate din lemn.
5.5.7. Fluxurile de circulatie ale scarilor.
Dimensionarea geometrica a scarilor are scopul de a asigura conditiile de exploatare în siguranta a constructiei deservite, de circulatie în interior si, dupa caz, în exterior.
Se definesc mai întâi urmatoarele notiuni:
F = numarul de fluxuri de circulatie:
![]()
unde:
N = numarul de persoane care trebuie sa treaca pe întreaga cale de evacuare;
C = capacitatea de evacuare a unui flux exprimata prin numarul total de persoane, spre exemplu 90 persoane la cladiri de locuit, care se evacueaza pe toata durata de evacuare, mergând în sir indian.
Numarul de fluxuri astfel calculat determina dimensiuni minime ale elementelor scarii: rampa si podestul. În tabel este data corelatia între numarul de fluxuri si latimea minima de rampa si podest.
Numar de fluxuri |
Latimea minima pentru rampe si podeste, în metri [m] |
5.5.8. Scarile definite dupa înaltimea treptelor.
Joase, h 16,5 cm folosite la scoli, gradinite, spitale, scari monumentele;
Mijlocii, 16,5 <h 17,5 cm, sunt scarile principale, cele mai frecvente si din punct de vedere al utilizatorului uman, cele mai comode;
Înalte, 17,5<h 22,5 cm, sunt scari secundare, de acces în subsoluri sau poduri, sau alte spatii cu destinatii tehnice restrânse;
Abrupte, 22,5<h 30 cm, sunt scari de obicei verticale, de incendiu.
În fig. 5.2. sunt reprezentate toate cele patru tipuri de scari clasificate dupa înaltimea treptelor.
5.5.9. Confortul circulatiei.
În vederea asigurarii unei circulatii comode si confortabile, ceea ce constituie o exigenta antropodinamica esentiala, trebuie respectata relatia pasilor, relatia fiziologica sau relatia lui Rondelet.
Pentru scari obisnuite (principale sau secundare) aceasta relatie este:
![]()
Pentru scari
folosite la cladiri destinate copiilor prescolari se recomanda
cm. În acest caz relatia
pasilor este:
Numarul de trepte se determina cu relatia:
![]()
5.5.10. Scarile definite dupa tipul treptelor.
Forma treptelor este determinata de:
profilul contratreptei;
planeitatea intradosului.

Fig. 5.5.3. Tipuri de trepte
În fig. 5.5.3. sunt prezentate urmatoarele tipuri de trepte:
a. Scari cu contratrepte drepte si intrados neted.
b. Scari cu contratrepte înclinate si intrados neted.
c. Scari cu contratrepte profilate si intrados neted.
d. Scari cu contratrepte drepte si intrados cutat. Se mai numesc scari cutate.
e. Scari fara contratrepte.
Forma treptelor mai poate fi diferita si dupa forma geometrica a proiectiei în plan.
Forma scarilor în plan.
Proiectia în plan înseamna în principal proiectia în plan a rampei si a podestului. Totodata, se mai înregistreaza golul scarii, proiectia balustradei si a mâinii curente.
Diferitele forme ale scarilor definite în proiectie plana au o întrebuintare preponderenta si recomandata.
Dupa forma lor în plan, principalele tipuri de scari sunt:
Scari cu rampe drepte;
Scari cu rampe curbe;
Scari balansate.
Scari cu rampe drepte Sunt scari principale si secundare la cladiri multietajate. Aceste scari se pot dispune în case ale scarilor care au în plan forma patrata sau forma dreptunghiulara;
Scari cu rampe curbe Aceste scari au un domeniu de folosinta limitat. Siguranta în exploatare impune ca raza curbei vangului interior, respectiv marginea libera interioara, sa aiba minim 1,50 m. Curba rezultata în proiectie plana poate fi un cerc sau un arc de cerc. În cazul altui tip de curba este necesar sa se poata trasa pe teren si astfel executia scarii sa fie posibila.
Scari balansate. În situatiile în care spatiul de dispunere a scarii este insuficient, se recurge la procedeul de balansare a scarii. Acest procedeu consta în dispunerea treptelor si în zona de schimbare a directiei, zona care, în situatia contrara, era ocupata de podest. Deci podestul este înlocuit cu trepte. Balansarea treptelor se face, prin urmare, pe zona de schimbare a sensului de urcare unde nu este posibila executarea unui podest din cauza lipsei de spatiu. Aceste scari se folosesc la locuinte individuale sau la cladiri cu maxim P+2E. Nu se admit la scoli.
5.5.12. Scari cu o singura rampa dreapta.
În fig. 5.5.4. sunt reprezentate doua tipuri de scari cu rampe drepte:
scara cu o singura rampa dreapta si podest marginal, fig.5.5.4.a.
scara cu doua rampe drepte dispuse în prelungire si un podest intermediar, fig. 5.5.4.b.
Aceste tipuri de scari sunt frecvent folosite la cladiri de locuit cu numar mare de niveluri. Solutia a doua de scara, anume aceea cu doua rampe drepte situate în prelungire este mai comoda din punctul de vedere al utilizatorului, datorita podestului situat la mijlocul rampei.
Din punct de vedere structural, rampa, daca nu reazema pe latura lunga pe peretele cu care este paralela, poate fi considerata o grinda simplu rezemata pe podestul de plecare si cel de sosire.
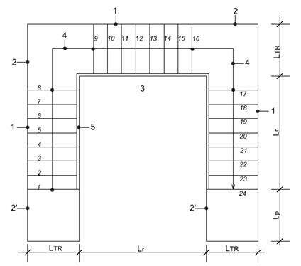
5.5.13. Scari cu doua rampe drepte.
În fig. 5.5.5. sunt reprezentate doua tipuri de scari cu doua rampe drepte:
scara cu doua rampe drepte nedecalate si un podest intermediar, fig.5.5.5.a.
scara cu doua rampe drepte decalate si un podest intermediar, fig. 5.5.5.b.
Aceste tipuri de scari sunt folosite în toate situatiile de cladiri civile, Social-culturale sau industriale.
Rampele reazema pe podestul de plecare si pe cel de sosire. Cele doua solutii difera prin armarea placilor de rampa si de podest în zonele de contact. Functional, aceste doua solutii difera prin forma balustradei si a mâinii curente în zonele de schimbare a directiei.
În fig. 5.5.6. este expusa o solutie de scara cu doua rampe dispuse perpendicular si podest intermediar. Aceasta varianta este folosita în cazuri deosebite, când spatiul casei scarii permite desfasurarea scarii.
5.5.14. Scari cu trei rampe drepte.
În fig. 5.5.7. este prezentata o solutie de scara cu trei rampe drepte si doua podeste intermediare. Aceasta configuratie este indicata în cazul unei înaltimi mari de nivel, în conditii de desfasurare deosebita a scarii.
5.5.15. Scari cu rampe curbe.
Scarile cu rampe curbe au proiectia în plan:
circulara
parabolica
eliptica
În situatii deosebite se pot folosi curbe construite prin puncte. Aceste scari sunt recomandate în cazuri deosebite, când aspectul estetic este esential. Scarile monumentale pot avea forme curbe. În fig. 5.5.8. este prezentata solutia unei scari care are proiectia în plan un arc de cerc.
Scari cu rampe curbe pot fi vazute si admirate în incinta Ateneului Român sau în ansamblul Muzeului George Enescu, respectiv Palatul Cantacuzino.
5.5.16. Scara cu rampa circulara.
Când spatiul disponibil pentru casa scarii este redus, se poate
adopta solutia de scara circulara. În fig.5.5.9. este
reprezentat un mod posibil de realizare a unei scari circulare. Zona
centrala poate fi un element de rezistenta: stâlp circular cu
diametrul
.
Un model deosebit de scara circulara poate fi vazut în incinta Muzeului Palatului Brâncovenesc din Mogosoaia, judetul Ilfov.
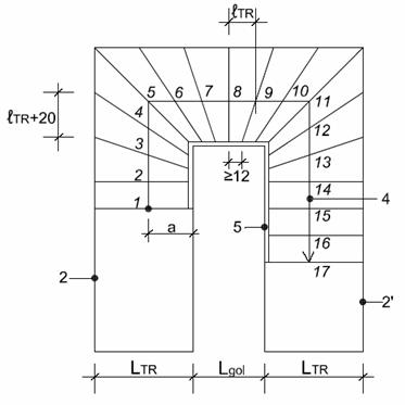
5.5.17. Scari balansate.
În fig. 5.5.10. se poate urmari modul de alcatuire al unei scari balansate, într-o configuratie particulara.
Linia pasului este situata la 50 cm de mâna curenta, pentru rampe late de maxim 1,00 m, si la 60 cm pentru scari mai late. Pentru configurarea geometrica a unei scari balansate, latimea treptei se masoara pe linia pasului.
Este recomandat ca balansarea treptelor sa fie dispusa pe un numar mai mare de trepte.
Sunt recomandate urmatoarele restrictii dimensionale conform
STAS 2965-79: latimea treptei în zona minima sa fie min. 12
cm. Latimea treptei în zona maxima sa nu
depaseasca
cm. Latimea
golului scarii poate avea dimensiuni diferite.
5.5.18. Înaltimea libera între rampe.
Înaltimea libera dintre doua rampe sau între
rampa si unele elemente proeminente ale planseului superior, cum
poate fi grinda planseului, este limitata la 2,00 m. Schema de
configurare a acestor elemente este reprezentata în fig. 5.5.11. În cazuri
speciale, înaltimea libera
poate fi redusa
pâna la 1,70 m.

Fig. 5.5.4. Scari cu o singura rampa dreapta.

Fig. 5.5.5. Scari cu doua rampe drepte.

Fig. 5.5.6. Scara cu doua rampe drepte dispuse perpendicular si un podest intermediar

Fig. 5.5.7. Scara cu trei rampe drepte si doua podeste intermediare

Fig. 5.5.8. Scara cu rampa curba

Fig. 5.5.9. Scara circulara

Fig. 5.5.10. Scara balansata

Fig. 5.5.11. Înaltimea libera între rampe
5.5.19. Materiale de constructie pentru scari.
Scarile se pot executa din orice material de constructie: piatra, lemn, beton simplu, beton armat, metal si altele.
Scarile din beton armat monolit sau prefabricat sunt, în general, principale sau secundare la cladiri social culturale sau de locuit.
Scarile din metal sunt, în general, scari de acces la rampe sau platforme industriale sau scari de incendiu. Scarile de acces întrebuintate pentru întretinerea unor constructii speciale cu forme deosebite, înalte, cum sunt spre exemplu bazinele, rezervoarele, cosurile de fum, turnurile, castelele de apa etc.
5.5.20. Scari din beton armat.
Aceste scari pot fi realizate monolit sau prefabricat.
Scarile din beton armat monolit se realizeaza prin turnarea betonului în cofraje chiar pe locul utilizarii ulterioare a scarii. Treptele unei scari monolite pot fi armate sau nu. Aceasta solutie prezinta avantajul monolitismului si deci al continuitatii. Finisajul treptelor se realizeaza pe loc.
Scarile din beton armat prefabricat se folosesc în cazul unei largi utilizari la cladiri civile sau social culturale. În mod frecvent, solutia se foloseste la scari drepte care pot avea una sau mai multe rampe. Prefabricarea scarilor înseamna de fapt prefabricarea separata a rampelor si podestelor. Finisajul scarilor prefabricate se poate realiza industrializat.
5.5.21. Scari metalice.
Aceste scari sunt, în general, scari de acces tehnologic, de incendiu etc. Treptele si contratreptele scarilor metalice se realizeaza din tabla striata. Contratreptele pot lipsi si de obicei lipsesc.
Rezemarea treptelor se face pe grinzi de vang care se pot realiza din profile laminate de tip u sau I. În cazul scarilor metalice de incendiu se poate adopta o solutie diferita, folosindu-se pentru trepte otel-beton. Important este sa se asigure protectia circulatiei pe verticala cu inele de otel-lat încastrate în peretele vertical sau sudate de peretele metalic al obiectivului deservit.
5.5.22. Scari din lemn.
Realizarea scarilor din lemn este asemanatoare scarilor metalice. Se pot alcatui cu trepte si contratrepte sau numai cu trepte, în ambele cazuri acestea rezemându-se pe grinzi de vang. Scarile din lemn se conformeaza în ansamblu dupa aceleasi reguli ca si celelalte tipuri de scari. În mod particular, dat fiind posibilitatea unei calitati deosebite a materialului lemnos, scarile de acest tip se preteaza la finisaje deosebite, artistice.
Din punct de vedere al calculului, acesta se conduce în mod diferit în functie de tipul scarii, de material, de solutia constructiva adoptata, de pozitie etc.
|