ARZATOR GAZ
MODEL : BLU 3000.1 PR / MD
BLU 4000.1 PR / MD

MANUAL TEHNIC PENTRU :
MONTARE
UTILIZARE
SERVICE- REPARARE

CARACTERISTICI TEHNICE

Legenda termenilor din tabel (in ordinea aparitiei):
- Caracteristici tehnice.
- Puterea termica maxima.
- Puterea termica minima.
- Presiune gaz natural.
- Presiune GPL.
- Tensiune de alimentare, frecventa 50 Hz.
- Motor ventilatie.
- Turatia motorului de ventilatie.
- Combustibil.
CURBELE DE PUTERE

Legenda termenilor din diagrama:
- (orizontala) puterea arzatorului [kW].
- (vertical) contrapresiunea in camera de combustie (mbar).
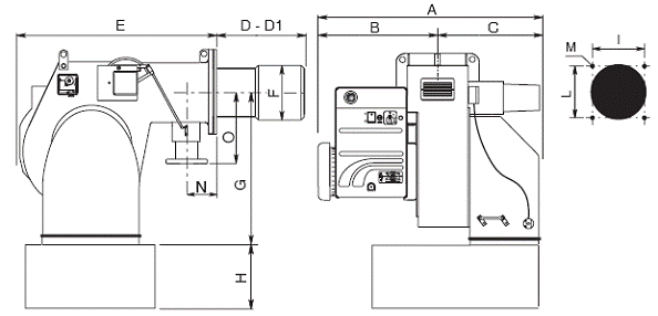
DIMENSIUNI DE GABARIT


Legenda termenilor din tabel:
D – cap scurt.
D1 – cap lung.
RACORDUL LA RETEAUA DE GAZ
Dupa ce arzatorul a fost conectat la reteaua de gaz este necesar sa se verifice etanseitatea si ca nu este opturata conducta de evacuare a gazelor arse.
Dupa deschiderea vanei de gaz se purjeaza distributia de gaz prin priza de presiune si se controleaza apoi presiunea cu ajutorul unui manometru.
Se branseaza electric sistemul si se regleaza termostatele la temperatura dorita.
La inchiderea termostatelor dispozitivul de control de etanseitate va efectua o verificare a vanelor.
La sfarsitul verificarii se va obtine consensul pentru pornirea arzatorului.
RACORDUL ELECTRIC
Toate modelele de arzatoare vor fi alimentate la retea trifazata 400 V, 50 Hz, cu neutrul conectat la legatura de impamantare pentru circuitele de comanda.
In cazul in care este necesara alimentarea arzatorului in retea trifazata de 230 V, 50 Hz, fara neutru conectat la legatura de impamantare vor fi efectuate modificarile necesare conform schemei electrice a arzatorului verificandu-se ca releul termic acopera sarcina absorbita de motor.
Se va verifica de asemenea sensul de rotatie a motorului de ventilatie.
PUNEREA IN FUNCTIUNE A ARZATORULUI
Inainte de punerea in functiune va veti asigura ca arzatorul este instalat corect.
Verificati conexiunile electrice conform schemelor si modul de racordare la reteaua de distributie gaz.
Inainte de a efectua conexiunile electrice verificati ca tensiunea corespunde datelor indicate pe placuta cu caracteristicile tehnice.
Schema cu conexiunile electrice ca si ciclul de pornire sunt ilustrate separat.
Pentru conectarea aparatelor la arzator se va urmari schema.
Verificati conexiunile pentru neutru si faza. Nu vor fi inversate niciodata.
Verificati conexiunea la legatura de impamantare a sistemului.
Pentru motoarele trifazate se va verifica sensul de rotatie (marcat pe motor prin sageata).
Purjati aerul si impuritatile de pe distributia de gaz si verificati ca presiunea gazului se situeaza in limitele indicate pe placuta de caracteristici.
Controlul va fi efectuat cu ajutorul unui manometru conectat la priza de presiune a arzatorului.
Va porni motorul de ventilatie si va incepe preventilarea.
Motoreductorul portclapeta de aer se va deschide in pozitia maxima in 30 secunde.
Cand motoreductorul a asigurat deschiderea completa, 333j94d un semnal este transmis dispozitivului de comanda si va demara un ciclu de pre-ventilare de aproximativ 66 secunde.
La sfarsitul acestei perioade motoreductorul va aduce clapeta de aer in pozitia corespunzatoare treptei reduse, ceea ce va permite aprinderea arzatorului la putere minima.
In acelasi timp se vor alimenta transformatorul de aprindere si dupa 3 secunde (perioada de preaprindere) vor fi alimentate vanele de gaz.
In acest moment vanele se vor deschide permitand accesul gazului in capul de combustie.
Dupa doua secunde de la deschiderea vanelor transformatorul va fi decuplat. In cazul unui defect de aprindere arzatorul se va bloca in 2 secunde.
Altfel arzatorul va fi aprins la puterea minima (aproximativ 30% din puterea maxima).
Regulatorul pentru modulare (daca este prevazut) va deschide servomotorul la puterea maxima sau se va opri la puterea intermediara ceruta de sistem.
La cuplare servomotorul va deschide gazul si aerul in maniera proportionala asigurand o combustie optima in domeniul de putere 30% - 100% din puterea nominala.
La sfarsit servomotorul se va opri in pozitie de inchidere.
OBSERVATIE IMPORTANTA:
Toate organele reglabile trebuie sa fie fixate de instalator dupa efectuarea reglajelor.
Se va verifica combustia in cosul de fum dupa fiecare reglaj.
REGLAJUL COMBUSTIEI
ATENTIE !
Pentru a obtine un reglaj corect al combustiei si al debitului termic trebuie facuta analiza gazelor utilizand un analizor.
Reglajul combustiei si al debitului termic se va face in acelasi timp cu analiza produselor de ardere verificandu-se totodata ca valorile masurate sunt corecte si raspund normelor de securitate in vigoare.
Aceasta operatie va fi efectuata de catre personal calificat si autorizat de catre ECOFLAM SpA.

Legenda termenilor din diagrama:
- Excesul de aer [%].
- Factorul de aer.
- Puterea nominala [kW].
AUTOMATUL DE COMANDA SI SECURITATE LANDIS & STAEFA
TIP LFL 1.622

Legenda termenilor mentionati in diagrama de prezentare a unui ciclu de functionare normal si a unui ciclu de functionare in care lipseste flacara de aprindere:
- Presostat de gaz. - Consens putere minima / maxima.
- Motor ventilator. - Procent de aer.
- Presostat de aer. - Procent de gaz.
- Transformator de aprindere. - Sonda de ionizare.
- Vana de gaz. - Lampa de securitate.
|
Referinta timp |
Descriere |
Timp |
|
t1 |
Timp de control presostat de aer. |
|
|
t2 |
Timp de preventilare. |
|
|
t3 |
Timp de securitate. |
|
|
t4 |
Timp de preaprindere. |
|
|
t5 |
Timp de consens de functionare la puterea minima pentru vana de combustibil de lucru. |
|
|
t6 |
Timp de consens de functionare la puterea maxima pentru vana de combustibil de lucru. |
|
Automatul de comanda si securitate porneste ventilatorul si incepe prevetilarea camerei de combustie.
Presostatul de aer controleaza presiunea aerului de ventilatie confirmand daca functionarea este corecta.
La sfarsitul acestei perioade transformatorul de aprindere anclanseaza generand o scanteie intre electrozi in acelasi timp cu deschiderea vanelor de gaz (vanele de securitate VS si de lucru VL).
In cazul unui defect de aprindere sau a unei intreruperi accidentale sonda de ionizare declanseaza functia de securitate si derularea timpului de securitate.
In caz de intrerupere a gazului sau scaderea presiunii, presostatul de gaz pentru presiune minima determina intreruperea functionarii arzatorului.
SERVOMOTOR LANDIS & STAEFA TIP SQM 50.481 A2
Demontati capacul pentru a avea acces la camele de reglare.
Reglarea camelor va fi facuta cu ajutorul cheii livrate (este montata pe carcasa servomotorului).


Functiile camelor:
I - Cama de reglare a pozitiei de deschidere in treapta mare.
II - Cama de reglare a pozitiei clapetei de aer la oprire.
III - Cama de reglare a pozitiei de deschidere la putere minima.
IV - Cama de reglare a pozitiei de deschidere in treapta I.
V - Cama de reglare libera (neutilizata).
VI - Cama de reglare libera (neutilizata).
VII - Cama de reglare libera (neutilizata).
VIII - Cama de reglare libera (neutilizata).
REGLAGUL DEBITELOR DE AER SI GAZ

Legenda pentru comenzile comutatorului modului de lucru:
– Blocarea servomotorului intr-o pozitie intermediara.
– Functionare la putere maxima.
–
Functionare la putere minima.
AUTO – Functionare automata.
REGLAJUL PUTERII LA DEBITUL MINIM DE GAZ
Pozitionati comutatorul care se gaseste pe tabloul de comanda in pozitia 2 si procedati dupa cum urmeaza:
Pentru a regla debitul minim de gaz actionati cu o cheie asupra surubului pentru came si modificati unghiul clapetei pentru gaz.
REGLAJUL PUTERII LA DEBITUL MAXIM DE GAZ

Pozitionati comutatorul care se gaseste pe tabloul de comanda in pozitia 1 si procedati dupa cum urmeaza:
Pentru a regla debitul maxim de gaz actionati asupra vanei de reglaj pana obtineti debitul corect pentru cazan.
REGLAJUL DEBITULUI MAXIM DE AER
Demontati surubul de fixare al tijei si plasati-l in pozitia corecta.
La sfarsitul reglajului strangeti surubul tijei.
REGLAJUL PUTERILOR INTERMEDIARE DE GAZ
Cuplati servomotorul cu comutatorul inchis / deschis si pozitionati-l in pozitia 0 pentru oprire.
Pentru reglaje se procedeaza ca in figura alaturata. Repetati operatia pentru celelalte puncte ale camelor. Pentru reglarea debitelor intermediare de gaz a se vedea imaginea – partea 3.
Cu o cheie modificati pozitia lamei de ghidare a camelor, prin strangere debitul creste, prin slabire debitul se diminueaza.
CALCULUL PUTERII DE FUNCTIONARE A ARZATORULUI
Pentru calculul puterii de functionare a arzatorului, in kW, se procedeaza astfel:
Verificati cu un contor consumul de gaz si durata pe care se face masurarea.
Calculul se face cu formula urmatoare:
e / s * f = kW
unde:
e = consum de gaz.
s = timpul in secunde.
f = coeficient ce tine seama de tipul de gaz, avand urmatoarele valori:
G20 = 34,02
G25 = 29,25
G30 = 116
G31 = 88
REGLAJUL COMBUSTIEI
ATENTIE !
Pentru a obtine un reglaj corect al combustiei si al debitului termic trebuie facuta analiza gazelor utilizand un analizor.
Reglajul combustiei si al debitului termic se va face in acelasi timp cu analiza produselor de ardere verificandu-se totodata ca valorile masurate sunt corecte si raspund normelor de securitate in vigoare.
Aceasta operatie va fi efectuata de catre personal calificat si autorizat de catre ECOFLAM SpA.
REGLAJUL CAPULUI DE COMBUSTIE

POZITIA ELECTROZILOR

Legenda pentru elementele incluse in explicativa de reglare:
- Electrod de aprindere.
- Electrod de ionizare.
REGLAREA VALORII MINIME PENTRU PRESOSTATUL DE GAZ
Demontati suruburile I si L si inlaturati capacul M.
Pozitionati regulatorul N la o valoare echivalenta cu 60% din presiunea nominala de alimentare cu gaz (de exemplu: pentru gaz natural cu presiunea nominala de 20 mbar se pozitioneaza regulatorul la valoarea de 12 mbar; pentru GPL cu presiunea nominala G30 / G31 – 30 / 37 mbar se pozitioneaza regulatorul la 18 mbar).
Se remonteaza capacul M si se strang suruburile I si L.

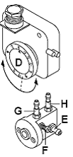
REGLAREA PRESOSTATULUI DE AER

Demontati suruburile A si B si inlaturati capacul C.
Reglati presostatul de aer la valoarea minima rotind regulatorul D in pozitia 1.
Porniti arzatorul in prima treapta si efectuati analiza combustiei.
Cu ajutorul unui carton obturati
progresiv conducta de aspiratie de aer pana obtineti o crestere a continutului
de CO cu 0,5-0,8 % sau daca se dispune de un
manometru conectat la priza de presiune E
pana se obtine o diminuare a presiunii la valoarea de 1 mbar (~ 10 mm
Cresteti progresiv valoarea de reglaj a presostatului pana obtineti oprirea de securitate a arzatorului.
Inlaturati opturarea conductei de aspiratie, montati capacul C, strangeti suruburile A si B si porniti automatul de comanda si securitate prin apasarea butonului de rearmare.
NOTA:
Presiunea masurata la priza de presiune E trebuie sa se afle in limitele de lucru ale presostatului. Daca nu se incadreaza in aceste limite de va debloca surubul F si se va roti gradual; spre dreapta pentru reducerea presiunii, spre stanga pentru cresterea acesteia. La sfarsitul reglajului se va bloca surubul F.
VERIFICAREA SISTEMULUI DE DETECTIE A FLACARII

Controlul curentului de ionizare se va efectua cu arzatorul in functiune, inseriind un microampermetru, cu 50 µA cc cap de scala, cu electrodul de ionizare.
Pozitionarea eronata a electrodului poate conduce la diminuarea curentului de ionizare determinand oprirea de siguranta a arzatorului datorita nedetectarii flacarii.
In toate cazurile se verifica pozitionarea corecta a electrodului, legaturile electrice si punerea arzatorului la masa.
In mod normal valoarea curentului de ionizare trebuie sa fie stabila si intotdeauna mai mare de 20 µA.
DEMONTAREA CAPULUI DE COMBUSTIE

DESCRIEREA TABLOULUI DE
COMANDA

A - Intreruptor pornit / oprit.
B - Portfuzibil.
C - Selector cu 4 pozitii:
– Blocarea servomotorului intr-o pozitie intermediara.
–
Functionare la putere maxima.
– Functionare la putere minima.
AUTO – Functionare automata.
D - Lampa semnalizare declansare
releu termic.
E - Lampa semnalizare functionare
normala.
F - Buton deblocare.
REGULATORUL COMPACT UNIVERSAL TIP RWF 40

Descrierea afisorului cu cristale lichide (display) si a tastelor regulatorului tip RWF 40 – in ordinea pozitionarii din figura:
- Afisaj cu cristale lichide. Intrare analogica 1 (valoare reala).
- Afisaj cu cristale lichide. Setpoint (valoarea setata) SP1.
- Semnal pentru: reducere putere / INCHIS / Treapta 1.
- Functionare arzator.
- Semnal pentru: crestere putere / DESCHIS / Treapta 2.
- Diminuarea valorii programate.
- Tasta de programare PGM.
- Operare manuala.
- Contact auxiliar.
- Functionare in 2 trepte.
- Cresterea valorii programate.
- Tasta de iesire din meniu EXIT.
Figura prezinta displayul normal care indica valoarea actuala, valoarea programata, informatii semnalizate prin LED si taste de lucru.
NIVELE DE PROGRAMARE

Legenda termenilor in ordinea aparitiei in figura:
- Display normal (de lucru, principal).
- Nivel “UTILIZATOR”.
- Nivel “PARAMETRI”.
- Nivel “CONFIGURARE”
INTRODUCEREA PARAMETRILOR
La cuplarea arzatorului toate LED-urile de pe panoul frontal sunt aprinse.
Afisajul cu cristale lichide (display) de culoare verde pentru valoarea prescrisa va clipi cu intermitenta aproximativ 10 sec.
Afisajul cu cristale lichide superior de culoare rosie va indica valoarea masurata (reala) sau in timpul reglajului valoarea de intrare pentru parametrul selectat.
Afisajul inferior de culoare verde va indica valoarea de prescriere introdusa sau in timpul reglajului simbolul parametrului.
Reglarea valorii prescrise
Pentru a regla valoarea prescrisa se procedeaza astfel:
Apasand tasta PGM se intra in nivelul “UTILIZATOR”, pe afisajul cu cristale lichide este vizualizat SP1*.
Modificarea valorii prescrise SP1 se face cu ajutorul tastelor ▼ si ▲.
Dupa aproximativ 2 secunde valoarea introdusa este memorata automat.
Pentru revenire in meniul principal se apasa tasta EXIT.
* Valoarea SP1 depinde de valoarea introdusa in nivelul de configurare C111.
Introducerea parametrilor pentru regulator (PID)
Parametrii pentru regulator (PID) sunt deja reglati din fabrica la valori standard.
Este posibila adaptarea functionarii regulatorului la cerintele aplicatiei activand functia de “AUTO – ADAPTARE”, caz in care pe afisaj va apare “tunE” clipind cu intermitenta.
Regulatorul va adapta fara alte interventii parametrii de reglare PID.
Pentru activarea functiei “tunE” se va proceda astfel:
Se activeaza functia de “AUTO – ADAPTARE” prin apasarea simultana a tastelor PGM si ▼ cu arzatorul in functiune.
Pe afisaj va apare “tunE*” clipind cu intermitenta.
Cand s-a terminat clipirea “AUTO – ADAPTAREA” este finalizata.
Confirmarea parametrilor de adaptare se face prin apasarea tastei ▲ pentru 2 secunde.
* Functia “tunE” nu poate fi activata cu regulatorul functionand in regim manual sau cu arzatorul oprit.
Parametrii PID pot fi introdusi manual prin intrarea in nivelul “PARAMETRI” modificand banda proportionala Pb1, timpul de derivare dt si timpul de integrare rt.
Pentru modificarea acestor parametrii se procedeaza astfel:
Se intra in nivelul “PARAMETRI” prin apasarea tastei PGM minim 2 sec.
Se selecteaza parametrii mentionati prin apasarea tastei PGM.
Se afiseaza parametrul Pb1.
Se creste sau se diminueaza valoarea acestuia prin apasarea tastelor ▼ si ▲.
Confirmarea parametrului introdus se face prin apasarea tastei PGM.
Dupa aproximativ 2 secunde valoarea introdusa este memorata automat.
Se trece la parametrul urmator prin apasarea tastei PGM.
Se creste sau se diminueaza valoarea acestuia prin apasarea tastelor ▼ si ▲.
La finalizarea reglajelor pentru revenire in meniul principal se apasa tasta EXIT.
Reglare valoare diferentiala
Regulatorul permite afisarea unei valori deferentiale de comutare reglabila care determina pornirea si oprirea arzatorului.
Cu HYS1 este indicata limita inferioara sub care arzatorul porneste pe treapta maxima de putere.
Cu HYS3 este indicata limita superioara deasupra careia arzatorul se opreste.
Pentru modificarea acestor parametrii se procedeaza astfel:
Se intra in nivelul “PARAMETRI” prin apasarea tastei PGM minim 2 sec.
Se selecteaza parametrii mentionati prin apasarea tastei PGM.
Se afiseaza parametrul HYS1 (valoare diferentiala de aprindere treapta II).
Se creste sau se diminueaza valoarea acestuia prin apasarea tastelor ▼ si ▲.
Confirmarea parametrului introdus se face prin apasarea tastei PGM.
Dupa aproximativ 2 secunde valoarea introdusa este memorata automat.
Se trece la parametrul urmator prin apasarea tastei PGM.
Se creste sau se diminueaza valoarea acestuia prin apasarea tastelor ▼ si ▲.
La finalizarea reglajelor pentru revenire in meniul principal se apasa tasta EXIT.
Functionare MANUAL / AUTOMAT
Se poate intra in modul de functionare MANUAL prin apasarea tastei EXIT pentru aproximativ 5 sec.
Functionarea in regim MANUAL poate fi activata numai cu arzatorul in functiune, aceasta fiind anulata automat la oprirea arzatorului.
Cu regulatorul in modul de functionare MANUAL (confirmata de aprinderea LED-ului pentru acest regim de pe panoul frontal) se poate modifica pozitia servomotorului prin apasarea tastelor ▼ si ▲.
LED-urile aprinse pe panoul frontal indica daca comanda DESCHIS sau INCHIS pentru servomotor este activa.
Apasand tasta ▲ servomotorul se deschide, apasand tasta ▼ servomotorul se inchide.
Apasand tasta EXIT pentru aproximativ 5 sec. se revine la modul AUTOMAT de functionare.
LED-ul pentru functionare manuala se stinge, iar regulatorul este in modul de functionare AUTOMAT.
Compensarea climatica
Regulatorul RWF 40 poate fi setat pentru prescriere furnizata de sonda externa.
Pentru a selecta acest mod de operare se va proceda in felul urmator:
Se conecteaza sonda conform schemei de conexiuni.
Se modifica setarile regulatorului.
Se apasa tasta PGM pentru a accesa nivelul de “CONFIGURARE”.
Dupa afisarea parametrului C111 (xxxx) apasand tasta ▲ se acceseaza domeniul de valori (xxxx).
Se apasa tasta ▼ pentru selectarea tipului de sonda la valoarea (xx3x).
Confirmarea modificarii valorii parametrului se face prin apasarea tastei PGM. Daca aceasta operatie nu esta facuta in 2 secunde valoarea este memorata automat.
Se apasa tasta PGM pentru a accesa nivelul de “CONFIGURARE”.
Similar se modifica valoarea parametrului C112 la valoarea (xx3x).
Pentru revenire in meniul principal se apasa tasta EXIT.
Daca arzatorul este instalat pe un cazan de abur compensarea climatica nu va fi utilizata.
Pentru stabilirea curbei de incalzire se procedeaza astfel:
Se apasa tasta PGM pentru a accesa nivelul “PARAMETRI”.
Se apasa tasta PGM pentru trecerea la parametrul urmator.
Dupa afisarea parametrului H (panta curbei de incalzire) se creste sau se diminueaza valoarea acestuia prin apasarea tastelor ▼ si ▲.
Confirmarea modificarii valorii parametrului se face prin apasarea tastei PGM. Daca aceasta operatie nu esta facuta in 2 secunde valoarea este memorata automat.
Pentru revenire in meniul principal se apasa tasta EXIT.
Valorile introduse vor fi in concordanta cu diagrama de mai jos:
(parametrizare dupa curbe izoterme)

Legenda
Valoare setata pentru cazan (cu precizarea valorilor pentru SPL si SPH).
Temperatura externa.
Panta curbei de incalzire.
SCHEMA DE CONECTARE A SONDELOR EXTERIOARE

Legenda termenilor din figurile de mai sus:
Cod S721
Conectarea sondei
QAE2 (sonda pasiva)
Sonda apa
Cod C111 = 9xxx
Cod S704
Conectarea sondei
FT-TP/ (sonda pasiva)
Cod C111 = 5xxx
Cod S731, S731/1, S731/2, S731/3, S731/4
Conectarea sondei
QBE 620-P (sonda activa)
Cod C111 = Gxxx
Cod S720/1
Conectarea sondei
QAC 22 (sonda pasiva)
Cod C111 = xx3x
C112 = xx1x
INDICATII DE CONFIGURARE INTRARI C 111- C 112
Intrare analogica 1
(valoare reala)
Pt 1000, 2 conductoare de legatura, Landis & Staefa IEC 751
FT-TP/ (sonda pasiva) 5
Ni 1000, 2 conductoare de legatura, Landis & Staefa QAE2
(sonda pasiva – sonda apa) 9
Semnal standard 010 Vcc
QBE620-P(sonda activa, sonda de presiune) G

Intrare analogica 3
(sonda exterioara)
Nici o functie
(sonda nu este activa) 0
Sonda exterioara Pt 1000, 2 conductoare de legatura,
QAC22 (sonda pasiva) 1
CONTACT AUXILIAR, TIP DE REGULATOR “SP 1”, BLOCARE C 112

Prescriere “SP1”
Prescriere SP1 – date introduse de la tastatura 0
Prescriere SP1 – configurare cu sonda exterioara 1
SEMNALIZAREA DEFECTELOR SI ANOMALIILOR PRIN SEMNALIZARE
NUMERICA INTERMITENTA PE AFISORUL CU CRISTALE LICHIDE (DISPLAY)

Defect – Pe afisajul pentru valoarea reala apare codul 1999 clipind cu intermitenta si pe afisajul pentru valoarea prescrisa apare valoarea prescrisa introdusa (60).
Cauza – Valoarea reala nu este masurata. Acesta inseamna ca valoarea domeniului de lucru pentru intrarea analogica 1 (valoarea reala) a fost depasita (in sus sau in jos).
Remediere – Verificare conexiuni electrice si integritatea sondei. In cazul in care sonda este deteriorata regulatorul nu sesizeaza valoarea reala de controlat si arzatorul intra automat in regim de oprire de urgenta; se dezactiveaza auto-adaptarea ca in cazul functionarii manuale. Comparatorul de limita raspunde in concordanta cu valoarea de configurare a parametrului C113.

Defect – Pe afisajul pentru valoarea reala apare codul 1999 clipind cu intermitenta si pe afisajul pentru valoarea prescrisa apare indicatia tA.
Cauza – Temperatura exterioara nu este masurata. Acesta inseamna ca valoarea domeniului de lucru pentru intrarea analogica 3 (valoarea reala) a fost depasita (in sus sau in jos).
Remediere – Verificare conexiuni electrice si integritatea sondei. In cazul in care sonda este deteriorata regulatorul nu sesizeaza valoarea reala.

Defect – Pe afisajul pentru valoarea reala apare codul 1999 clipind cu intermitenta si pe afisajul pentru valoarea prescrisa apare indicatia SP.E.
Cauza – Valoarea de prescriere nu este masurata. Acesta inseamna ca valoarea domeniului de lucru pentru intrarea analogica 2 (valoarea reala) a fost depasita (in sus sau in jos).
Remediere – Verificare conexiuni electrice si semnalul de prescriere exterior. In cazul in care sonda este deteriorata regulatorul nu sesizeaza valoarea reala de controlat si arzatorul intra automat in regim de oprire de urgenta; se dezactiveaza auto-adaptarea ca in cazul functionarii manuale.
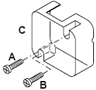
INLOCUIREA REGULATORULUI


In figurile de mai sus (A, B, C) este indicat modul de demontare si remontare a regulatorului RWF 40.
A – Se introduce regulatorul RWF 40 in decuparea panoului electric.
B – Se introduc suruburile in fante si se fixeaza regulatorul pe panou.
C – Pentru demontarea regulatorului se apasa asupra capacului si se trage spre exterior.
INTRETINERE
Controlul anual
Controlul periodic al arzatorului (capul de combustie, electrozii, etc.) va fi efectuat de un tehnician autorizat, o data sau de doua ori pe an in functie de regimul de utilizare.
Inainte de a efectua controlul de intretinere al arzatorului este necesara verificarea starii generale a acestuia si a se parcurge operatiile urmatoare:
Debransare arzator (decuplare cuple de racordare),
Inchidere robinet de separare de la reteaua de alimentare cu gaz,
Demontare carcasa arzator, curatire ventilator si aspiratie de aer,
Curatire cap de combustie si verificare pozitie electrozi,
Se remonteaza arzatorul,
Verificati etanseitatea racordurilor de gaz,
Verificati cosul de evacuare gaze arse,
Reporniti arzatorul,
Verificati parametrii combustiei (CO =9,7 (G20); 9,6 (G25);11,7 (G30); 11,7 (G31),
CO mai mic de 75 ppm).
Inainte de fiecare interventie se va controla:
Daca alimentarea cu energie electrica este corecta si la parametrii nominali,
Daca presiunea de gaz este normala si robinetul de separare este deschis,
Daca sistemele de control sunt bransate corect,
Daca toate conditiile de mai sus sunt indeplinite se va porni arzatorul apasand butonul de deblocare,
Verificati ciclul de functionare al arzatorului.
Arzatorul nu porneste:
Verificati intreruptorul general, lantul termostatic, motorul de ventilare, presiunea de gaz.
Arzatorul efectueaza preventilarea si se blocheaza la sfarsitul ciclului:
Verificati presiunea de aer si functionarea ventilatorului
Verificati presostatul de aer
Arzatorul efectueaza preventilarea dar nu se aprinde:
Verificati montarea si pozitia electrozilor,
Verificati cablul de aprindere,
Verificati transformatorul de aprindere,
Verificati automatul de comanda si securitate.
Arzatorul se aprinde si se blocheaza dupa timpul de securitate:
Verificati bransarea corecta a conductorilor de faza si de nul,
Verificati vana de gaz,
Verificati pozitia electrodului de ionizare si conectarea acestuia,
Verificati electrodul de ionizare,
Verificati automatul de comanda si securitate.
Arzatorul se aprinde si se blocheaza dupa cateva minute de functionare:
Verificati regulatorul de presiune si filtrul de gaz,
Verificati presiunea de gaz cu ajutorul unui manometru,
Verificati valoarea curentului de ionizare (minimum 6 µA).
PARAMETRI
|
Parametru |
Simbol |
Setare Ecoflam sonda pasiva QAE 22 |
Setare Ecoflam sonda pasiva FT-TP / 1000 |
Setare Ecoflam sonda activa QBE620-P |
|
Valoare limita pentru comparatorul de limita |
|
|
|
|
|
Valoare diferentiala pentru comparatorul de limita |
HYSt |
|
|
|
|
Banda proportionala |
Pb.1 |
|
|
|
|
Timp de derivare |
dt |
|
|
|
|
Timp de integrare |
rt |
|
|
|
|
Banda neutra (moarta) |
db |
|
|
|
|
Timp cursa servocomanda (sec) |
tt |
|
|
|
|
Valoare diferentiala de aprindere arzator / treapta a II – a |
HYS1 |
|
|
|
|
Valoare diferentiala de stingere treapta a II – a |
HYS2 |
|
|
|
|
Valoare diferentiala superioara de stingere |
HYS3 |
|
|
|
|
Pragul de reactie |
q |
|
|
|
|
Panta curbei de incalzire |
H |
|
|
|
|
Deplasare paralela |
P |
|
|
|
CONFIGURARE
|
Parametru |
Simbol |
Setare Ecoflam sonda pasiva |
Setare Ecoflam sonda activa QBE 620- |
|||||
|
QAE22 |
FT-TP/ |
-P4 |
-P10 |
-P16 |
-P25 |
-P40 |
||
|
Intrare analogica 1, 2 sau 3: comutare / modificare prescriere |
C111 |
|
|
G000 |
G000 |
G000 |
G000 |
G000 G030 |
|
Comparator de limita; tip de regulator; prescriere 1; blocare |
C112 |
|
|
|
|
|
|
|
|
Adresa unitate; cifra zecimala / unitate de masura; semnal de depasire scala |
C113 |
|
|
|
|
|
|
|
|
Inceput domeniu intrare analogica 1 (valoare minima sonda) |
SCL |
|
|
|
|
|
|
|
|
Sfarsit domeniu intrare anaolgica 1 (valoare maxima sonda) |
SCH |
|
|
|
|
|
|
|
|
Inceput domeniu intrare analogica 2 (valoare minima sonda) |
SCL2 |
|
|
|
|
|
|
|
|
Sfarsit domeniu intrare anaolgica 2 (valoare maxima sonda) |
SCH2 |
|
|
|
|
|
|
|
|
Limita inferioara de prescriere |
SPL |
|
|
|
|
|
|
|
|
Limita superioara de prescriere |
SPH |
|
|
|
|
|
|
|
|
Corectia valorii reale pentru intrarea analogica (offset) 1 |
OFF1 |
|
|
|
|
|
|
|
|
Corectia valorii reale pentru intrarea analogica (offset) 2 |
OFF2 |
|
|
|
|
|
|
|
|
Corectia valorii reale pentru intrarea analogica (offset) 3 |
OFF3 |
|
|
|
|
|
|
|
|
|
dF1 |
|
|
|
|
|
|
|
|