CENTRALA SUSPENDATA CU ACUMULARE, CAMERA DE ARDERE DESCHISA
MANUAL CU INSTRUCTIUNI SI AVERTIZARI DESTINAT
INSTALATORULUI
UTILIZATORULUI
SERVICIULUI TEHNIC
Avertizari generale:
· &nbs 21521s1811v p; acest manual constitue parte integranta si esentiala a produsului si trebuie livrat utilizatorului
· &nbs 21521s1811v p; trebuie pastrat si consultat cu atentie, deoarece in instructiunile sale se regasesc informatii importante privind siguranta in fazele de instalare, exploatare si intretinere.
· &nbs 21521s1811v p; instalarea si intretinerea trebuiesc efectuate in conformitate cu normele in vigoare, urmand instructiunile constructorului si a personalului calificat in domeniul instalatiilor.
· &nbs 21521s1811v p; o instalare gresita poate cauza daune persoanelor, animalelor si lucrurilor, pentru care producatorul nu poate fi facut raspunzator. Intretinerea trebuie efectuata de catre personal calificat si autorizat, ce trebuie sa prezinte in acest sens un act care sa ateste autorizarea.
· &nbs 21521s1811v p; produsul este destinat doar pentru scopul in care a fost proiectat. Orice alta utilizare este considerata improprie si chiar periculoasa.
· &nbs 21521s1811v p; in cazul greselilor datorate nerespectarii normelor tehnice in vigoare si a instructiunilor furnizate de producator in acest manual, produsul isi pierde dreptul de garantie.
1. &nbs 21521s1811v p; Instalarea centralei
Observatii la instalare
· &nbs 21521s1811v p; Instalarea trebuie realizata de un instalator calificat si autorizat, respectand normele in vigoare.
· &nbs 21521s1811v p; Inainte de instalare este indicat sa se verifice daca produsul este in stare buna. Daca exista dubii trebuie contactat imediat furnizorul.
· &nbs 21521s1811v p; Elementele de ambalaj (agrafe, cuie, saci de plastic, poliestiren expandat, etc) nu trebuiesc lasate la indemana copiilor deoarece sunt potentiale surse de risc.
· &nbs 21521s1811v p; In cazul montarii centralei langa mobila sau in interiorul acesteia, trebuie prevazut un spatiu de 2÷3 cm intre mantaua centralei si mobila.
· &nbs 21521s1811v p; Este important ca grila de aspiratie sa nu fie obturata.
· &nbs 21521s1811v p; Nici-un obiect inflamabil nu trebuie sa se gaseasca in vecinatatea centralei (hartie, haine, plastic, poliestiren).
· &nbs 21521s1811v p; In cazul functionarii defectuoase sau a defectarii, centrala trebuie dezactivata si trebuie chemat personalul service (ce are la dispozitie piese de schimb originale si pregatirea necesara). Trebuie evitata orice interventie sau tentativa de reparare din partea persoanelor neautorizate.
Nerespectarea indicatiilor de mai sus duce la pierderea dreptului de garantie si la asumarea responsabilitatii personale in ceeace priveste centrala.
Norme de utilizare:
· &nbs 21521s1811v p; Aceste centrale au fost proiectate pentru a fi instalate pe perete;
· &nbs 21521s1811v p; Trebuiesc utilizate pentru incalzirea spatiilor interioare si producerea de ACM
· &nbs 21521s1811v p; Peretele trebuie sa fie neted, fara muchii sau borduri ce pot impiedica lipirea perfecta a partii posterioare de perete.
· &nbs 21521s1811v p; Centrala nu a fost proiectata pentru a fi montata pe pardoseala ! (a se vedea figura)
· &nbs 21521s1811v p; Atentie, instalarea centralei pe perete trebuie sa garanteze o sustinere stabila si eficace.
· &nbs 21521s1811v p; Diblurile pentru fixarea centralei asigura o sustinere eficienta daca sunt introduse corespunzator in peretii realizati din caramizi pline sau perforate. In cazul in care peretii sunt realizati din boltari perforati sau din materiale cu capacitate de incarcare statica limitata, este necesara efectuarea unei verificari statice a sistemului de prindere a centralei.
· &nbs 21521s1811v p; Centrala - incalzeste apa la o temperatura inferioara punctului de fierbere, la presiune atmosferica.
trebuie conectata la o instalatie de incalzire si la reteaua de alimentare cu apa rece, astfel incat sa se incadreze in intervalul acoperit de puterea centralei.
nu se instaleaza in incinte cu dusuri sau cazi de baie.
nu se instaleaza in camere cu seminee sau tubulatura de ventilare.
trebuie instalata intr-o camera unde temperatura nu poate scade sub valoare 0 C.
nu trebuie expusa intemperiilor atmosferice.
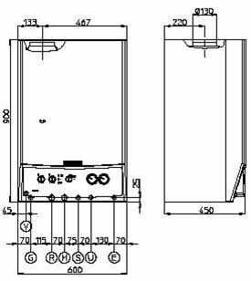
Dimensiuni de gabarit
|
Inaltime |
Lungime |
Profunzime |
||
|
mm |
mm |
mm |
||
|
|
|
|
||
|
Conexiunile |
||||
|
Gaz |
Instalati incalzire |
ACM |
||
|
G |
R |
M |
U |
E |
|
|
|
|
|
|
Legenda:
G - alimentare cu gaz
R - retur instalatie incalzire
M - tur instalatie incalzire
S - recirculare (optional)
U - iesire ACM
E - intrare apa rece
V - conexiunea electrica
Racordurile centralei (livrate optional cu centrala)
Rracordul la gaz: (aparat din categoria II2H3+)
Centrala este construita pentru a functiona cu gaz metan (G20) si GPL. Conducta de alimentare trebuie sa fie egala in diametru sau mai mare decat racordul centralei ½" G.
Inainte de efectuarea conexiunii la conducta de alimentare cu gaz, trebuie suflata instalatia, pentru a indeparta eventualele reziduuri ce pot compromite buna functionare a centralei. Trebuie verificat daca tipul gazului din conducta de alimentare este corespunzator celui utilizat de centrala (a se vedea placa de timbru a centralei).
Daca gazul difera este necesara o interventie asupra centralei pentru adaptarea la un alt tip de gaz (a se vedea sectiunea cu schimbarea tipului de gaz).
Este importanta verificarea presiunii dinamice la reteaua utilizata pentru alimentarea centralei, valoare ce trebuie sa fie conform normelor in vigoare. Daca presiunea este insuficienta, va inluenta puterea termica a centralei provocand neplaceri utilizatorului.
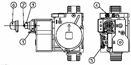
Se urmareste daca montarea robinetului de gaz a fost realizata corect, urmand secventele de montaj ilustrate in figura.
Conducta
de alimentare cu gaz trebuie dimensionata conform normelor in vigoare astfel
incat sa garanteze debitul de gaz necesar arzatorului, in conditii de
functionare la putere maxima a centralei si sa garanteze buna functionare a
acesteia. Sistemul de racordare trebuie sa fie in conformitate cu normele in
vigoare.
Calitatea gazului combustibil
· &nbs 21521s1811v p; centrala a fost proiectata pentru a functiona cu combustibil gazos fara impuritati.
· &nbs 21521s1811v p; in caz contrar este indicat montarea unui filtru in amonte de centrala, pentru a garanta eliminarea impuritatilor mecanice din gaz
Rezervorul de stocaj (in cazul alimentarii cu GPL)
· &nbs 21521s1811v p; se poate intampla ca rezervorul de stocaj GPL sa contina reziduuri de gaze inerte (azot) ce modifica cantitatea de gaz livrat centralei, avand ca rezultat functionare anormala.
· &nbs 21521s1811v p; din cauza compozitiei amestecului de GPL se poate verifica in perioada de stocaj o stratificare a componentelor amestecului in rezervor. Aceasta stratificare poate cauza variatia puterii calorifice a amestecului livrat centralei.
Legatura la instalatia de apa rece
Inainte de efectuarea conexiunilor centralei la conducta de alimentare cu apa rece si la instalatia de incalzire, trebuie suflata instalatia pentru a indeparta eventualele reziduuri ce pot compromite buna functionare a centralei. Legaturile hidraulice trebuiesc executate corect, utilizand desenul livrat odata cu centrala.
Evacuarea valvei de siguranta trebuie racordata la o conducta de scurgere. In caz contrar, la o actionare a supapei de siguranta, incinta va fi inundata iar producatorul nu poate fi facut responsabil.
Atentie:
Pentru pastrarea in timp a caracteristicilor de eficienta a schimbatorului de producere ACM si pentru a prelungi durata de functionare a centralei, este recomandata instalarea unei statii de dedurizare (daca duritatea apei depaseste 25 grade franceze) pentru evitarea depunerilor de calcar.
Conexiunea electrica
Centrala AVIO MAIOR are pentru tot sistemul un grad de protectie IPX4D. Siguranta electrica a sistemului este realizata in momentul cand exista conexiunea la o priza de pamant eficace, realizata conform normelor in vigoare privind siguranta electrica.
Atentie:
Producatorul Immergas SpA declina orice responsabilitate pentru daunele cauzate persoanelor sau dispozitivelor electrice de lipsa legaturii la priza de pamant sau realizarea acesteia fara a indeplini cerintele normelor in vigoare.
Se verifica daca instalatia electrica este adecvata curentului maxim absorbit de centrala ce este indicat pe placa de timbru.
Cablu de alimentare trebuie legat la o retea de 230 V ± 10% / 50 Hz, respectand polaritatea si legatura la priza de pamant. Pe traseul cablului de alimentare se monteaza un intreruptor ce trebuie sa aiba distanta intre contacte de cel putin 3 mm. In eventualitatea schimbarii cablului de alimentare se va apela la serviciul tehnic autorizat.
Cablul de alimentare trebuie sa respecte traseul indicat de figura.
Vedere de jos

In caz ca trebuie inlocuita siguranta fuzibila de pe placa de reglare, se va folosii o siguranta fuzibila rapida de 2 A. Pentru alimentarea centralei nu este de dorit a utiliza adaptoare sau prelungitoare electrice.
Observatii :
Daca in timpul efetuarii legaturilor electrice nu s-a tinut cont de legarea exacta a conductorului de faza si nul (au fost legate invers), centrala nu va depista prezenta flacarii si va intra in blocaj aprinderea. In cazul nerespectarii legaturii faza-nul, pe conductorul de nul va apare o tensiune reziduala momentana, superioara valorii de 30 V , centrala putand functiona (doar momentan). Se va masura valoarea tensiunii cu instrumente adecvate, fara a utiliza pentru asigurare un creion de tensiune. Daca alimentarea electrica este de tipul faza-faza 230 V, pentru a garanta conditiile de siguranta echivalente celor oferite in cazul cand centrala este alimentata electric faza-nul, este necesara instalarea in centrala a unui dispozitiv de adaptare livrat la cerere. Pentru instalarea dispozitivelor se va apela la serviciul tehnic autorizat.
Conectarea electrica a termostatului ambiental (pornit / oprit)
Termostatul sau cronotermostatul se va conecta la rigleta in pozitiile 34 si 35, eliminand puntea P1. Acestea trebuie sa aiba izolare electrica doar din clasa de protectie II (norma EN 60335-1), a se vedea schema electrica de la pagina 14. Contactul termostatului de ambient si legaturile sale, lucreaza cu tensiunea de la retea si trebuie sa comute la un curent minim de 0.8 A.
Atentie :
Asigurati-va ca termostatul sa aiba un contact de tip "curat", adica este independent de tensiunea din retea, in caz contrar provoca pagube montajului electronic de reglare. Conductele instalatiei la care este racordata centrala nu trebuiesc folosite ca priza de pamant pentru instalatia electrica sau cea telefonica. Se va inspecta instalatia, astfel incat sa se asigure ca nu exista aceste legaturi facute anterior montarii centralei.
Ventilarea incaperii
Este indispensabil ca incaperea unde este instalata centrala sa se asigre un debit de aer minim, necesar procesului de ardere a gazului, dar si pentru ventilarea incaperii. Fluxul natural de aer poate ajunge in incinta prin:
· &nbs 21521s1811v p; Deschideri permanente, practicate in peretii exteriori ai incaperii.
· &nbs 21521s1811v p; Conducte de ventilare, simple sau ramificate.
Aerul necesar ventilarii trebuie prelevat din exterior, departe de orice sursa de poluare. Pentru ventilarea incaperii de montaj se va tine seama de prescriptiile normativelor UNI 7129 si de cele locale in vigoare.
Fiecare deschidere trebuie sa corespunda cerintelor :
· &nbs 21521s1811v p; Sa aiba deschiderea libera toatala astfel incat sa ii corespunda 6 cm2 fiecarui kW din puterea termica instalata si o valoare minima de 100 cm2.
· &nbs 21521s1811v p; Este realizata astfel incat gura de aerisire nu poate fi obturata la interior sau exterior.
· &nbs 21521s1811v p; Este situata la o cota apropiata de pardoseala. Daca aceasta cerinta nu este posibila, se va marii cu aproape 50 % deschiderea necesara ventilarii.
In cazul procurarii aerului necesar arderii prin intermediul conductelor, trebuiesc respectate normativele tehnice in vigoare.
Ventilare naturala indirecta
Fluxul de aer mai poate fi obtinut si dintr-o incapere alaturata doar daca:
· &nbs 21521s1811v p; &nbs 21521s1811v p; incaperea alaturata este dotata cu ventilare directa, in conformitate cu cele specificate anterior.
· &nbs 21521s1811v p; &nbs 21521s1811v p; in incaperea ventilata se gasesc instalate doar aparate racordate la tubulatura de evacuare.
· &nbs 21521s1811v p; &nbs 21521s1811v p; incaperea alaturata nu este vecina cu un dormitor si nu constituie parte comuna a imobilului.
· &nbs 21521s1811v p; &nbs 21521s1811v p; in incaperea alaturata nu este un ambient care sa favorizeze declansarea unui incendiu: garaj, magazie de materiale combustibile etc.
· &nbs 21521s1811v p; &nbs 21521s1811v p; incaperea alaturata nu trebuie sa se gaseasca in depresiune fata de incaperea pe care o ventileaza, deoarece se creeaza efectul de tiraj invers (tirajul invers poate fi provocat de un semineu, exhaustor, aparate ce functioneaza cu alte tipuri de combustil si pentru care nu s-a prevazut o introducere de aer)
· &nbs 21521s1811v p; &nbs 21521s1811v p; fluxul de aer din camera alaturata parcurge traseul spre camera ce trebuie ventilata, prin deschiderile realizate de constructor intre cele doua camere, deschideri ce nu trebuie sa aiba valori mai mici decat cele indicate in normele tehnice.
Aceste deschideri se pot obtine marind spatiul dintre usa si pardoseala.
In incaperile in care sunt instalate aparate ce functioneaza pe gaz trebuie restabilit echilibru intre aerul viciat si cel proaspat. De aceea se va realiza un sistem de ventilare conform normelor tehnice in vigoare.
EVACUAREA GAZELOR DE ARDERE
Aparatele cu functionare pe gaz si sistem de evacuare naturala a gazelor, trebuiesc racordate la un camin de fum eficient din punct de vedere al functionarii.
Doar in lipsa acestora este permisa utilizarea dispozitivelor de evacuare a produsilor de ardere direct la exterior.
Racordul centralei pentru evacuarea gazelor de ardere la un camin se va amplasa la mijlocul acestuia. In cazul racordarii la un burlan de evacuare existent, trebuie curatat perfect deoarece zgura si/sau funinginea stocata pe peretii interiori ai acestuia pot obtura trecerea fumului, provocand situatii extrem de periculoase pentru utilizator.
Conducta de evacuare a gazelor de ardere trebuie racordata la un camin sau burlan din aceiasi incapere cu centrala sau dintr-o incapere alaturata si trebuie sa respecte urmatoarele cerinte:
· &nbs 21521s1811v p; &nbs 21521s1811v p;
este realizata din
materiale adecvate, rezistente in timp la solicitari mecanice, caldura,actiunea
produsilor de ardere si eventuala condensare a acestora. In orice punct al conductei de evacuare a
gazelor de ardere si pentru orice conditii exterioare, valoarea temperaturii trebuie
sa fie superioara celei a punctului de roua.
· &nbs 21521s1811v p; &nbs 21521s1811v p; materialele ce se vor folosi pentru etansare trebuie sa fie rezistente la temperatura si coroziune
· &nbs 21521s1811v p; &nbs 21521s1811v p; trebuiesc pozitionate la vedere, usor de demontat si astfel instalate incat sa permita dilatarea termica
· &nbs 21521s1811v p; &nbs 21521s1811v p; pentru aparatele cu evacuare verticala, lungimea traseului masurat din zona de prindere a burlanului la partea superioara a centralei, nu trebuie sa fie mai mic de 2 diametre (a se vedea figura)
· &nbs 21521s1811v p; &nbs 21521s1811v p; dupa montarea traseului vertical, pe traseul ramas pana la camin se merge cu o panta minima de 3 %. Lungimea traseului orizontal nu trebuie sa depaseasca ¼ din inaltimea eficace H a caminului sau valoarea de 2500 mm.
· &nbs 21521s1811v p; &nbs 21521s1811v p;
daca sunt schimbari de directie (maxim 3) racordarea la camin se va face cu un unghi
superior valorii de 90 . Schimbarea de directie se va realiza doar prin intermediul curbelor.
· &nbs 21521s1811v p; &nbs 21521s1811v p; axa traseului final la intrarea in camin, trebuie sa fie perpendiculara pe axa peretelui intern opus al caminului.
· &nbs 21521s1811v p; &nbs 21521s1811v p; sa aiba pe toata lungimea traseului aceiasi sectiune si nu mai mica decat diametrul de evacuare al centralei. Daca sectiunea caminului este mai mica decat cea a conductei de evacuare se va efectua un racord conic corespunzator sistemului de prindere.
· &nbs 21521s1811v p; &nbs 21521s1811v p; nu exista dispozitive de interceptare (sibar etc.). Daca astfel de dispozitive au fost puse deja in opera trebuiesc eliminate.
· &nbs 21521s1811v p; &nbs 21521s1811v p; distanta minima fata de materiale combustibile sau inflamabile este de 500 mm, in caz ca aceasta distanta nu poate fi mentinuta se vor folosi materiale specifice pentru izolare termica.
· &nbs 21521s1811v p; &nbs 21521s1811v p; caminul sa primeasca produse de ardere de la un singur aparat, cel mult doua si aceasta numai daca:
Ø &nbs 21521s1811v p; cele doua aparate sa aiba o putere termica diferita cu cel mult 30 %, unul fata de altul si sa fie instalate in aceeasi incapere.
Ø &nbs 21521s1811v p; sectiunea canalului de fum comun pentru cele doua aparate sa fie cel putin egala cu sectiunea canalului de fum al aparatului cu putere mai mare, multiplicat cu raportul PC/P1, din care PC -reprezinta suma puterii termice a celor doua aparate si P1- puterea termica mai mare.
· &nbs 21521s1811v p; &nbs 21521s1811v p; cele doua aparate cu conditiile de mai sus, pot fi de asemenea racordate direct la acelasi camin sau la acelasi burlan de evacuare, in acest caz distanta verticala intre axele orificiilor de racordare trebuie sa fie cel putin 250 mm (a se vedea figura alaturata).
· &nbs 21521s1811v p; &nbs 21521s1811v p; nu este permisa legarea la acelasi canal de fum a conductei de evacuare de la centrala pe gaz si a tubulaturii provenind de la hota din bucatarie.
BURLAN / CAMIN DE EVACUARE
Un burlan/ camin de evacuare a gazelor de ardere in atmosfera, de la centralele cu tiraj natural, trebuie sa corespunda urmatoarelor cerinte:
· &nbs 21521s1811v p; &nbs 21521s1811v p; sa fie etans fata de produsii de combustie, impermeabil si izolat termic (dupa cum prevede norma corespunzatoare)
· &nbs 21521s1811v p; &nbs 21521s1811v p; sa fie realizat dintr-un material care sa reziste in timp la solicitari mecanice normale, caldura, actiunea produsilor de ardere si la eventualul lor condens.
· &nbs 21521s1811v p; &nbs 21521s1811v p; sa aiba o desfasurare pe verticala, fara nici-o gatuire pe toata lungimea.
· &nbs 21521s1811v p; &nbs 21521s1811v p; sa fie izolat adecvat pentru a evita fenomenul de condens sau de racire a fumului; in mod normal se monteaza la exteriorul imobilului sau in locuri neincalzite.
· &nbs 21521s1811v p; &nbs 21521s1811v p; sa fie distantat adecvat prin intermediul distantierelor (izolare cu patura de aer) sau izolat corespunzator in zonele in care se gasesc materiale combustibile si/sau usor inflamabile.
· &nbs 21521s1811v p; &nbs 21521s1811v p; sa aiba sub racordarea primei conducte de evacuare o camera pentru recoltarea materialelor solide si a eventualului condens, cu o inaltime de cel putin 500 mm; accesul la aceasta camera se va face prin intermediul unei deschideri cu usa metalica cu inchidere ermetica.
· &nbs 21521s1811v p; &nbs 21521s1811v p; sa aiba sectiunea interna de forma circulara, patrata sau rectangulara (in ultimele doua cazuri muchiile trebuie rotunjite cu o raza nu mai mica de 20 mm, fiind totusi admise si sectiunile hidraulice echivalente);
· &nbs 21521s1811v p; &nbs 21521s1811v p; sa fie dotata cu un cos de fum inaltat, corespunzator cerintelor anterioare;
· &nbs 21521s1811v p; &nbs 21521s1811v p; sa fie ferit de lovituri mecanice si sa nu aiba dispozitive de aspiratie (exhaustor) situate la partea superioara a conductei;
· &nbs 21521s1811v p; &nbs 21521s1811v p; nu trebuie sa fie in suprapresiune
Pentru aparatele cu tiraj natural se pot folosi caminele izolate si burlane de evacuare colective si ramificate.
Camine izolate
Dimensiunile interne ale oricaror tipuri de camine izolate sunt continute in normele tehnice. In cazul in care datele efective de instalare nu corespund conditiilor de aplicare sau limitelor din tabele trebuie sa se efectueze un calcul de dimensionare al caminului dupa normele in vigoare.
In imobilele cu mai multe etaje, pentru evacuarea cu tiraj natural a produsilor de ardere, pot fi utilizate burlane colective ramificate (bcr). BCR pentru imobile noi trebuie sa fie proiectate in conformitate cu metodologia de calcul si normele in vigoare.
Se considera cos dispozitivul montat deasupra unui camin izolat sau a unui burlan colectiv ramificat. Acest dispozitiv faciliteaza dispersia produsilor de ardere chiar si in conditii atmosferice neprielnice, impiedicand patrunderea corpurilor straine.
Trebuie sa satisfaca urmatoarele cerinte:
· &nbs 21521s1811v p; &nbs 21521s1811v p; sa aiba sectiunea utila de iesire nu mai mica decat a burlanului sau caminului pe care este montat.
· &nbs 21521s1811v p; &nbs 21521s1811v p; sa aiba conformatia astfel incat sa impiedice patrunderea ploii sau a zapezii in camin.
· &nbs 21521s1811v p; &nbs 21521s1811v p; sa fie realizat astfel incat sa asigure evacuarea produsilor de ardere, chiar si in cazul vanturilor din orice directie si inclinatie.
Cota de evacuare corespunzatoare inaltimii caminului sau burlanului trebuie sa fie in afara "zonei de reflux", pentru a evita formarea contrapresiunii ce impiedica evacuarea libera in atmosfera a produsilor de ardere. Este necesar sa se adopte inaltimea minima indicata in figura, in conformitate cu normele tehnice in vigoare.
Centralele cu tiraj natural, prevazute pentru a fi racordate la un camin de evacuare, pot descarca direct in atmosfera produsii de ardere prin intermediul unei conducte ce strapunge diafragma cladirii. Evacuarea in acest caz se realizeaza prin intermediul conductei de evacuare ce este racordata la un terminal pentru tiraj.
Conducta de evacuare trebuie sa corespunda acelorasi cerinte ca si cele pentru caminul de evacuare gaze arse, cu prescriptii ulterioare referitoare normelor in vigoare.
Terminalul pentru tiraj trebuie sa fie:
· &nbs 21521s1811v p; &nbs 21521s1811v p; situat la exteriorul unui perete perimetral
· &nbs 21521s1811v p; &nbs 21521s1811v p; pozitionat (a se vedea figura) astfel incat distantele sa respecte valorile minime raportate la norma tehnica in vigoare.
Evacuarea produsilor de ardere de la centrale cu tiraj natural in spatii inchise si atmosfera
In spatiile inchise (canale de ventilare, curti interioare, etc) pe toate laturile, este permisa evacuarea directa a produsilor de ardere de la centrale cu tiraj natural sau fortat cu puterea termica intre 4 ÷ 35 kW, deaorece se incadreaza in normele tehnice in vigoare.
Este interzisa scoaterea din uz a dispozitivului de control a evacuarii produsilor de ardere, din proprie vointa. Daca orice piesa a cestui dispozitiv se defecteaza, trebuie inlocuita doar cu o piesa originala. In cazul a numeroase interventii la dispozitivul de control a evacuarii gazelor de ardere, trebuie verificata conducta de evacuare si ventilarea incaperii unde este montata centrala.
Umplerea instalatiei de incalzire
Se conecteaza centrala si se efectueaza secventa de umplere a instalatiei prin intermediul robinetului de umplere (a se vedea figura de la pagina 13). Umplerea se va realiza lent, astfel incat aerul din instalatie si bulele de aer continute in apa, sa fie eliminate prin intermediul valvelor de aerisire de la centrala si instalatia de incalzire. Centrala are incorporata o valva de aerisire automata montata pe vasul de expansiune, situat pe o latura a hotei de evacuare a gazelor de ardere. Se verifica daca capacul acesteia este desurubat (slabit), pentru a permite evacuarea aerului. Se deschid valvele de aerisire de la radiatoare. Acestea se vor inchide cand va curge apa, fara bule de aer. Robinetul de umplere se va inchide cand acul indicator al manometrului se va gasii in jurul valorii de 1.2 bar.
In timpul acestei operatiuni, la anumite intervale se va pune in functiune pompa de circulatie, actionand intreruptorul general montat pe panoul de comanda. Se aeriseste pompa de circulatie desuruband dopul din fata si pastrand motorul in functiune. Se insurubeaza dopul dupa incheierea operatiunii.
Punerea in functiune a conductei de gaz
Pentru a pune in functiune conducta de gaz trebuiesc urmate secventele:
· &nbs 21521s1811v p; &nbs 21521s1811v p; se deschid ferestrele si usile
· &nbs 21521s1811v p; &nbs 21521s1811v p; se evita prezenta flacarii deschise si a scanteilor
· &nbs 21521s1811v p; &nbs 21521s1811v p; se purjeaza aerul din instalatie
· &nbs 21521s1811v p; &nbs 21521s1811v p; se controleaza etanseitatea instalatiei de alimentare cu gaz, pastrand inchis robinetul de separatie din centrala si se urmareste ca timp de 10 minute valoarea indicata de contor sa ramana neschimbata.
Punerea in functiune a centralei (pornirea arzatorului)
Punerea in functiune a centralei, se face de catre personalul autorizat ce va completa in fisa de garantie data punerii in functiune. Inainte de a pune in functiune centrala se verifica urmatoarele:
· &nbs 21521s1811v p; &nbs 21521s1811v p; etanseitatea circuitului de alimentare cu gaz executand o miscare DESCHIS/INCHIS a robinetului de separatie al centralei, mentinand valva de gaz dezactivata.
· &nbs 21521s1811v p; &nbs 21521s1811v p; timp de 10 minute contorul de gaz nu trebuie sa isi schimbe valoarea indicata.
· &nbs 21521s1811v p; &nbs 21521s1811v p; daca gazul din conducta de alimentare este corespunzator celui pentru care a fost proiectata centrala.
· &nbs 21521s1811v p; &nbs 21521s1811v p; se porneste centrala si se verifica daca secventa de aprindere este corecta.
· &nbs 21521s1811v p; &nbs 21521s1811v p; daca debitul de gaz si presiunea relativa se conformeaza celor indicate in acest manual. (a se vedea fig. de la pagina 19).
· &nbs 21521s1811v p; &nbs 21521s1811v p; daca incaperea unde este instalata centrala este ventilata corect.
· &nbs 21521s1811v p; &nbs 21521s1811v p; tirajul existent pe durata reglarii centralei, utilizand un manometru diferential montat imediat dupa iesirea produsilor de ardere din centrala.
· &nbs 21521s1811v p; &nbs 21521s1811v p; daca nu sunt eliminati in incapere produsi de ardere, chiar in timpul functionarii eventuale a unui electroventilator.
· &nbs 21521s1811v p; &nbs 21521s1811v p; interventia dispozitivului de siguranta in cazul lipsei gazului si timpul de inchidere.
· &nbs 21521s1811v p; &nbs 21521s1811v p; rezultatul actionarii intreruptorului principal din amonte de centrala si a celui de pe panoul de control.
Daca o singura proba din cele enumerate mai sus rezulta negativa, centrala nu trebuie pusa in functiune.
Verificarea initiala a centralei trebuie efectuata de un tehnician autorizat. Perioada de garantie incepe din momentul verificarii si punerii in functiune a cetralei de catre lucratorul service. Procesul verbal de verificare si punere in functiune trebuie semnat de catre lucratorul service.
1.10 &nbs 21521s1811v p; &nbs 21521s1811v p; Pompa de circulatie
Centralele din seria Avio Maior au incorporate pompe de circulatie in trei trepte de viteza si cu regulator electric al vitezei. Cu pompa functionand in prima treapta de viteza centrala nu functioneaza corect.
Pentru o functionare optima a centralei racordata la instalatii mono sau bitubulare este recomandata utilizarea pompei la treapta de viteza maxima. Pompa de circulatie este dotata cu condensatori.
INALTIMEA DE POMPARE DISPONIBILA INSTALATIEI
B - Inaltime de pompare disponibila in treapta a 2-a de viteza
C - Inaltime de pompare disponibila in treapta a 3-a de viteza, cu by-pass (optional)
D - Inaltime de pompare disponibila in treapta a 2-a de viteza cu by-pass
Dupa o perioada lunga de inactivitate pompa se poate bloca si pentru aceasta se va desuruba capacul frontal al pompei si cu ajutorul unei surubelnite se va roti axul pompei. Aceasta operatie trebuie efectuata pentru a preintampina arderea pompei.
Aceasta operatie trebuie efectuata cu extrema precautie pentru a evita defectarea pompei.
1.11 &nbs 21521s1811v p; &nbs 21521s1811v p; BOILERUL PENTRU PREPARARE ACM
Boilerul Avio Maior este cu acumulare si are capacitatea de 60 litri. La interior este introdusa o serpentina pe post de schimbator de caldura, confectionata din otel inox si supradimensionata astfel incat sa aduca importante reduceri de timp la prepararea apei calde menajere (ACM). Corpul boilerului este realizat din otel inox (AISI 316L) si garanteaza o lunga perioada de utilizare. Constructia, realizarea si sudarea sunt efectuate cu cea mai mare grija, acordand atentie celor mai mici detalii, pentru a asigura o fiabilitate maxima. Flansa de la partea inferioara a boilerului asigura posibilitatea inspectarii serpentinei si a curatarii rapide daca este cazul. Pe flansa inferioara a boilerului se gasesc racordurile pentru conectarea instalatiei la apa menajera (intra rece, iese calda) si un dop filetat pe care este montat un anod de magneziu corespunzator modelului, fiind livrat odata cu centrala pentru protectia acesteia impotriva fenomenelor de depunere de calcar si coroziune.
OBSERVATIE
Trebuie efectuata o verificare anuala a eficientei anodului de magneziu, de catre un tehnician autorizat. Boilerul poate fi adaptat pentru recircularea apei calde menajere.
1.12 &nbs 21521s1811v p; &nbs 21521s1811v p; Kit-uri disponibile la cerere
Ø &nbs 21521s1811v p; Kit-ul de recirculare (la cerere). Boilerul centralei poate fi adaptat conectarii unui kit pentru recirculare. Immergas furnizeaza o serie de racorduri si sisteme de prindere ce permit realizarea lagaturii intre boiler si instalatia sanitara. Chiar si pe schema de montaj livrata odata cu centrala sunt prevazute indicatii pentru fixarea kit-ului de recirculare.
Ø &nbs 21521s1811v p; Kit-ul robineti de separare pentru instalatie (la cerere). Centrala poate fi adaptata montajului robinetilor de separare pe conexiunea de tur si retur a acesteia. Acesti robineti sunt utili in cazul operatiilor de intretinere a centralei, deoarece nu va trebui sa golim decat centrala, instalatia fiind separata cu ajutorul robinetilor.
Ø &nbs 21521s1811v p; Kit-ul dozator de polifosfati (la cerere). Dozatorul de polifosfati impiedica formarea depunerilor de calcar, mentinand in timp eficienta ridicata a schimbatorului de caldura pentru ACM. Centrala se poate adapta conectarii unui dozator de polifosfati.
Ø &nbs 21521s1811v p; Kit-ul by-pass (la cerere). In cazul in care instalatia de incalzire este dotata cu robineti de sectorizare sau un debit insuficient de apa in circulatie, Immergas furnizeaza la cerere kit-ul by-pass, ce se monteaza intre racordul de tur si cel de retur. In aceste conditii este mereu garantat un debit suficient de apa in centrala.
Curba de functionare (Inaltime de pompare)/(Debit) este reprezentata anterior. Kit-urile dorite vor fi furnizate impreuna cu instructiunile de montaj si utilizare.
1.13 &nbs 21521s1811v p; &nbs 21521s1811v p;

Componente
centrala AVIO Maior
LEGENDA :
1. &nbs 21521s1811v p; Hota gaze
2. &nbs 21521s1811v p; Sonda temperatura, reglare si limitare incalzire
3. &nbs 21521s1811v p; Schimbator primar
4. &nbs 21521s1811v p; Camera de ardere
5. &nbs 21521s1811v p; Arzator
6. &nbs 21521s1811v p; Pompa circulatie
7. &nbs 21521s1811v p; Valva gaz
8. &nbs 21521s1811v p; Valva cu 3 cai actionare electrica
9. &nbs 21521s1811v p; Robinet umplere instalatie
10. &nbs 21521s1811v p; Valva de aerisire
11. &nbs 21521s1811v p; Vas de expansiune
12. &nbs 21521s1811v p; Electrod detectare flacara
13. &nbs 21521s1811v p; Sonda temperatura circuit ACM
14. &nbs 21521s1811v p; Termostat siguranta la supraincalzire
15. &nbs 21521s1811v p; Boiler INOX 316L
16. &nbs 21521s1811v p; Flusostat pentru siguranta pompei
17. &nbs 21521s1811v p; Valva de siguranta 8 bar pe circuitul de acm
18. &nbs 21521s1811v p; Robinet golire boiler
19. &nbs 21521s1811v p; Termostat de siguranta pe circuitul de evacuare al gazelor
20. &nbs 21521s1811v p; Vas expansiune pe circuitul sanitar
21. &nbs 21521s1811v p; Valva de siguranta 3 bar, instalatie incalzire
Robinet golire instalatie
2. &nbs 21521s1811v p; Instructiuni pentru exploatare si intretinere
Verificarea initiala gratuita
La finalul tuturor operatiilor (etansare si umplere instalatie) este necesara chemarea unui tehnician autorizat in termen de 30 zile. Personalul calificat si autorizat va efectua prima pornire a centralei si va furniza si indicatii utile privind exploatarea centralei.
Verificarea initiala efectuata de catre un tehnician autorizat, este indispensabila pentru eficacitatea garantiei; aceasta verificare asigura avantajele proprii centralei Immergas: siguranta, eficienta si economie de gas.
Curatarea si intretinerea
Atentie: Este obligatia utilizatorului de a cere cel putin o data pe an verificarea centralei si cel putin bianual verificarea arderii (proba de gaze arse), urmand procedurile indicate in acest manual.
Aceasta verificare permite pastrarea in timp a caracteristicilor de siguranta, randament si buna functionare, ce se disting la centralele Immergas.
Este recomandat de a incheia contracte anuale cu serviciul tehnic autorizat, pentru efectuarea procedurilor de curatare si verificare.
Ventilarea incaperii
Este indispensabil ca incaperea unde este instalata centrala, sa fie ventilata cu un debit de aer care sa asigure aerul necesar arderii si cel pentru ventilarea incaperii. Instructiunile cu privire la ventilare, se gasesc in acest manual la paginile 5 ÷ 8. In cazul ca exista dubii privind corecta ventilare a camerei se va apela personalul calificat.
Avertizari generale
Centrala nu trebuie expusa direct vaporilor produsi de masina de gatit.
Este interzisa utilizarea (manevrarea) centralei de catre copii sau persoane in necunostinta de cauza.
Daca se decide dezactivarea centralei temporar se procedeaza astfel:
se goleste instalatia de incalzire, unde nu este prevazut cu functiune anti-inghet.
se opreste alimentarea cu electricitate, apa si gaz.
In cazul lucrarilor de intretinere a peretilor, aflati in vecinatatea conductelor si a dispozitivelor de evacuare a produsilor de ardere, se opreste centrala si dupa incheierea lucrarii se verifica eficienta conductelor si a dispozitivelor de catre personal calificat si autorizat.
NU se efectueaza curatarea centralei sau a partilor sale cu substante inflamabile.
NU se lasa in incaperea unde este montata centrala, produse ce contin substante inflamabile.
Este interzisa si periculoasa blocarea, chiar si partial a deschiderii pentru ventilarea incaperii unde este montata centrala.
Este de asemeni periculoasa functionarea in celasi timp si loc cu centrala, a dispozitivelor de aspirare (ventilator) sau semineu, fara a prevede deschideri suplimentare necesare pastrarii echilibrului (aer introdus - aer evacuat). Pentru dimensionarea deschiderilor suplimentare se va recurge la asistenta tehnica calificata. In particular, un semineu deschis trebuie sa aiba alimentare cu aer proprie.
In caz contrar centrala nu poate fi instalata in apropierea acelor dispozitive.
ATENTIE utilizarea anumitor componente ce folosesc energie electrica trebuie facuta respectand urmatoarele:
nu se ating dispozitivele cu parti ale corpului umede; nu trebuiesc atinse in nici-un caz daca nu sunteti incaltat;
nu se trage de cablurile electrice, nu se expun intemperiilor atmosferice (ploaie, soare etc.);
cablul de alimentare electrica a centralei nu trebuie inlocuit de catre utilizator.
in cazul defectarii cablului, se opreste centrala si se recurge la ajutorul personalului calificat si autorizat pentru inlocuirea firului defect.
daca se decide neutilizarea centralei pentru o perioada de timp, este recomandata instalarea unui intreruptor pe circuitul de alimentare cu energie electrica.
Avio Maior - Panoul de comanda

1. &nbs 21521s1811v p; &nbs 21521s1811v p; Potentiometru temperatura incalzire
2. &nbs 21521s1811v p; &nbs 21521s1811v p; Potentiometru temperatura ACM
3. &nbs 21521s1811v p; &nbs 21521s1811v p; Semnalizator optic pentru eventual blocaj datorat supraincalzirii sau blocarii evacuarii gazelor de ardere
4. &nbs 21521s1811v p; &nbs 21521s1811v p; Semnalizator optic prezenta tensiune
5. &nbs 21521s1811v p; &nbs 21521s1811v p; Comutator 0 Livrare ACM Incalzire si ACM Reinitializare
6. &nbs 21521s1811v p; &nbs 21521s1811v p; Semnalizator optic culoare rosie, blocare secventa aprindere
7. &nbs 21521s1811v p; &nbs 21521s1811v p; Termometru centrala
8. &nbs 21521s1811v p; &nbs 21521s1811v p; Manometru centrala
Pornirea centralei. Inainte de pornire se verifica ca instalatia sa fie plina cu apa si in acest scop se verifica indicatia manometrului "8", care ar trebuie sa fie intre valorile 1 ÷ 1,2 bar.
se deschide robinetul de gaz din amonte de centrala.
se roteste rozeta intreruptorului general (5) pana la pozitia <LIVRARE ACM> sau <LIVRARE ACM si INCALZIRE>
Cu intreruptorul in pozitia
potentiometrul de reglare a temperaturii pe
circuitul de incalzire, este scos din functiune si temperatura de livrare ACM
se poate regla cu ajutorul potentiometrului (2).
Cu intreruptorul in
pozitia
potentiometrul (1) foloseste la reglarea temperaturii in circuitul de
incalzire (temperatura radiatoarelor), in timp ce pentru reglarea temperaturii
de livrare ACM se foloseste acelasi potentiometru (2). Rotind potentiometrele
in sens orar temperatura creste, iar in sens contrar temperatura scade.
Din acest moment centrala functioneaza automat. In absenta indicatiilor specifice, este recomandat a pozitiona potentiometrul (2) de reglare a temperaturii ACM intre pozitiile 3 ÷ 6, interval in care se livreaza apa la o temperatura optima, fara a exista riscul depunerilor de calcar.
Blocaj datorat supratemperaturii - Indicatorul optic de culoare rosie (3) se aprinde
In timpul functionarii se poate intampla ca temperatura apei sa depaseasca 100 C. In acel moment centrala va intra in "blocaj datorat supratemperaturii" (se aprinde indicatorul optic 3)! Pentru eliminarea starii de "blocaj datorat supratemperaturii", este necesara rotirea intreruptorului (5) pana in pozitia de reinitializare, unde se mentine un moment.
Daca fenomenul se repeta frecvent, trebuie chemat serviciul tehnic autorizat.
In perioada de functionare daca conducta de evacuare a gazelor de ardere nu functioneaza corect centrala va intra in "blocaj conducta evacuare" (se aprinde indicatorul optic 3)!
Pentru eliminarea starii de blocaj este necesara rotirea intreruptorului (5) pana in pozitia de reinitializare, unde se mentine un moment.
Daca fenomenul se repeta frecvent, trebuie chemat serviciul tehnic autorizat.
Doar cand exista cerere de incalzire sau de ACM centrala porneste automat.
Pentru eliminarea starii de blocaj este necesara rotirea intreruptorului (5) pana in pozitia de reinitializare, unde se mentine un moment.
La prima punere in functiune sau dupa o perioada mai lunga de inactivitate a centralei poate fi necesara interventia pentru eliminarea starii de blocaj.
Daca fenomenul se repeta frecvent, trebuie chemat serviciul tehnic autorizat.
Se pozitioneaza intreruptorul general (5) in pozitia "0" (semnalizatorul optic de culoare verde este stins) si se inchide robinetul de gaz aflat in amonte de centrala.
Se deconecteaza centrala de la utilitati (electricitate, gaz si apa rece) daca nu este utilizata o perioada mai lunga si nu exista riscul de inghet al instalatiei.
REFACEREA PRESIUNII IN INSTALATIA DE INCALZIRE
Se controleaza periodic presiunea apei in instalatie.
Sageata manometrului montat pe centrala trebuie sa indice o valoare in intervalul 1 ÷ 1.2 bar (instalatia rece).
Daca presiunea este inferioara valorii de 1 bar (instalatia rece) este necesara reumplerea instalatiei prin intermediul robinetului aflat in partea inferioara a centralei (a se vedea figura).
OBSERVATIE:
Se va inchide robinetul dupa operatie.
Daca presiunea ajunge in jurul valorii de 3 bar exista pericolul de interventie a valvei de siguranta. In acest caz trebuie ceruta interventia personalului calificat autorizat. Daca se observa caderi de presiune repetate, se va cere interventia personalului calificat, ce va elimina eventualele pierderi ale retelei.
GOLIREA INSTALATIEI
Pentru a putea efectua golirea instalatiei trebuie actionat robinetul de golire (a se vedea figura de mai sus si la pagina 10).
Inainte de a efectua aceasta operatie trebuie verificat daca robinetul de reumplere este inchis.
GOLIREA BOILERULUI
Pentru a putea efectua golirea boilerului, se actioneaza robinetul de golire a boilerului (a se vedea figura de mai sus si la pagina 10).
OBSERVATIE:
Inainte de a efectua aceasta operatie se inchide robinetul de intrare apa rece si se deschide orice robinet de apa calda din instalatie, pentru a permite intrarea aerului in boiler.
PROTECTIA ANTI-INGHET
Centrala este dotata cu protectie anti-inghet ce actioneaza pompa de circulatie si arzatorul, cand temperatura apei de la interiorul centralei scade sub valoarea de 4 C. Functia anti-inghet este activata daca centrala se afla in stare perfecta de functionare, este alimentata electric si intreruptorul general se afla in pozitia vara sau iarna.
Pentru a evita mentinerea in functiune a centralei in ipoteza unei neutilizari pe timp indelungat, se goleste instalatia de incalzire sau se introduc produse tip "antigel", in timp ce circuitul de producere ACM trebuie golit.
O instalatie la care se efectueaza des operatia de golire, trebuie sa aiba pe circuitul de alimentare cu apa un dispozitiv pentru dedurizarea apei, pentru a elimina eventualele depuneri de calcar.
2.10 &nbs 21521s1811v p; CURATAREA MANTALEI
Pentru curatarea mantalei centralei se foloseste o carpa umeda si sapun. Nu se folosesc pentru curatare detergenti abrazivi sau pulberi.
2.11 &nbs 21521s1811v p; DEZACTIVARE DEFINITIVA
Daca este decisa dezactivarea definitiva a centralei, trebuie chemat serviciul tehnic autorizat pentru deconectarea de la circuitele de alimentare cu gaz, apa si electricitate.
¨ &nbs 21521s1811v p; se verifica existenta declaratiei de conformitate a instalatiei;
¨ &nbs 21521s1811v p; se verifica etanseitatea circuitului de alimentare cu gaz, efectuand operatia inchis/deschis succesiv cu robinetul de separatie si pastrand valva de gaz dezactivata. Timp de 10 minute contorul de gaz nu trebuie sa isi modifice valoarea indicata.
¨ &nbs 21521s1811v p; se verifica daca gazul din conducta de alimentare corespunde cu cel pentru care a fost conceputa centrala.
¨ &nbs 21521s1811v p; se verifica conexiunea electrica la reteaua de 230 V / 50 Hz, legarea corecta a fazei si nulului, dar si eficienta legaturii la priza de pamant.
¨ &nbs 21521s1811v p; se porneste centrala si se verifica secventele de aprindere a flacarii la arzator.
¨ &nbs 21521s1811v p; se verifica daca debitul maxim, mediu si minim, precum si presiunile relative sunt in conformitate cu cele indicate in acest manual la pagina 19.
¨ &nbs 21521s1811v p; se verifica interventia dispozitivului de siguranta in cazul lipsei de gaz si timpul de inchidere.
¨ &nbs 21521s1811v p; se verifica actiunea intreruptorului general montat pe panoul de comanda al centralei si cel de pe circuitul de alimentare (in amonte de centrala).
¨ &nbs 21521s1811v p; se verifica tirajul existent in timpul reglarii functionarii centralei, prin intermediul unui manometru diferential montat imediat dupa iesirea produsilor de ardere din centrala.
¨ &nbs 21521s1811v p; se verifica ca in incaperea unde este montata centrala sa nu existe scurgeri de gaze arse.
¨ &nbs 21521s1811v p; se verifica interventia dispozitivelor de reglare.
¨ &nbs 21521s1811v p; se sigileaza dispozitivele de reglare a debitului de gaz.
¨ &nbs 21521s1811v p; se verifica productia de ACM.
¨ &nbs 21521s1811v p; se verifica etanseitatea instalatiei hidraulice.
¨ &nbs 21521s1811v p; se verifica aerisirea si/sau ventilarea incaperii unde este montata centrala.
Daca rezultatul unui singur control la un dispozitiv de siguranta este negativ, centrala nu trebuie pusa in functiune.
Termostatul de ambient:
· &nbs 21521s1811v p; &nbs 21521s1811v p; centrala este predispusa montarii unui termostat ambiental (TA).
· &nbs 21521s1811v p; &nbs 21521s1811v p; acesta trebuie neaparat sa aiba gradul de protectie din clasa II (conform normei EN 60335-1).
· &nbs 21521s1811v p; &nbs 21521s1811v p; se monteaza pe pozitiile 34 - 35 ale rigletei, eliminand puntea P1.
1. Valva de gaz
2.Serpentina inox
3. Anod de magneziu
4. Boiler
5. Pompa circulare
6. Arzator principal
7. Camera de ardere
8. Schimbator primar
9. Hota evacuare gaze arse
10. Termostat de siguranta (circuit fum)
11. Sonda NTC circuit incalzire
12. Valva aerisire automata
13. Vas de expansiune
14.Termostat siguranta la supratemperatura
15. Microintreruptor presostat pompa
16. Presostat pompa
17. Robinet golire instalatie
18. Vana cu 3 cai actionata electric
19. Sonda NTC circuit ACM
20. Valva de siguranta 3 bar
21. Robinet de umplere
22. Vas expansiune circuit sanitar
23. Valva de siguranta 8 bar
24. Clapeta de sens
25. Robinet golire boiler
G - alimentare cu gaz
U - iesire ACM
R - retur instalatie
M - tur instalatie
3.3 EVENTUALE INCONVENIENTE SI CAUZA LOR
OBSERVATIE:
Interventiile de intretinere trebuiesc efectuate de catre personal calificat si autorizat.
Ø &nbs 21521s1811v p; miros de gaz. Datorita unei scurgeri la o conducta de gaz. Trebuie verificata etanseitatea circuitului de alimentare cu gaz.
Ø &nbs 21521s1811v p; ardere imperfecta (flacara rosie sau galbena). Se intampla cand arzatorul este murdar sau lamelele de la schimbator sunt lovite. Se efectueaza curatarea arzatorului sau indreptarea lamelelor.
Ø &nbs 21521s1811v p; frecvente interventii ale termostatului de protectie la supratemperatura. Poate fi din cauza: lipsei de apa din centrala, insuficienta circulare a apei in instalatie sau blocarea pompei de circulatie. Se verifica la manometru daca presiunea este in limitele admisibile. Se verifica daca robinetii de la radiatoare nu sunt toti inchisi si daca functioneaza pompa.
Ø &nbs 21521s1811v p; centrala face condens. Poate fi cauzata de blocarea caminului, cosului de evacuare sau sectiune necorespunzatoare a tubulaturii. Alta cauza poate fi temperatura prea scazuta a ambientului din incaperea unde functioneaza centrala.
Ø &nbs 21521s1811v p; interventii numeroase ale termostatului de siguranta din hota. Poate fi din cauza obturarii circuitului gazelor de ardere. Se controleaza canalul de evacuare. Acesta poate fi obturat sau are o sectiune neadaptata centralei. Ventilarea incaperii este insuficienta (a se vedea sectiunea cu ventilarea incaperii)!
Ø &nbs 21521s1811v p; aer in instalatia de incalzire. Se verifica deschiderea capacului de la valva de aerisire (a se vedea la pagina 10). Se verifica daca presiunea din instalatie si cea de preincarcare a vasului de expansiune se regasesc in limitele admisibile (preincarcarea vasului de expansiune = 1 bar, presiunea din instalatie, intre 1 ÷ 1.2 bar)
Ø &nbs 21521s1811v p; Blocajul sistemului de evacuare a gazelor de ardere si Blocarea aprinderii, a se citii la paginile 4 12 (legaturile electrice).
Ø &nbs 21521s1811v p; sonda de temperatura din boiler defecta. Pentru inlocuirea sondei de temperatura este necesara golirea boilerului astfel incat sonda sa nu fie in contact direct cu apa calda din boiler.
3.4 ADAPTAREA CENTRALEI IN CAZUL SCHIMBARII GAZULUI
In cazul adaptarii centralei la un gas diferit de cel de pe placa de timbru, este necesara solicitarea kit-ului de adaptare. Cu ajutorul acestuia modificarea se va face rapid. Efectuarea operatiunii de adaptare la un nou tip de gaz trebuie efectuata de catre personal tehnic autorizat.
Pentru trecerea de la un tip de gaz la un altul sunt necesare operatiile:
§ &nbs 21521s1811v p; &nbs 21521s1811v p; inlocuirea duzelor de la arzatorul principal.
§ &nbs 21521s1811v p; &nbs 21521s1811v p; se muta puntea (13 de la pagina 17) in pozitia corecta tipului de gaz folosit (metan sau GPL).
§ &nbs 21521s1811v p; &nbs 21521s1811v p; se regleaza prima data aprinderea lenta a flacarii la arzator.
§ &nbs 21521s1811v p; &nbs 21521s1811v p; se regleaza puterea termica maxima a centralei.
§ &nbs 21521s1811v p; &nbs 21521s1811v p; se regleaza puterea termica minima a centralei.
§ &nbs 21521s1811v p; &nbs 21521s1811v p; se regleaza (eventual) puterea termica pe incalzire.
§ &nbs 21521s1811v p; &nbs 21521s1811v p; se sigileaza dispozitivele de reglare a debitului de gaz.
§ &nbs 21521s1811v p; &nbs 21521s1811v p; odata facuta transformarea, se aplica o eticheta autoadeziva livrata cu kit-ul in apropierea placii de timbru a centralei. Pe acesta din urma se va sterge cu ajutorul unui pix permanent, datele referitoare la vechiul tip de gaz.
Aceste reglari trebuiesc facute in conformitate cu tipul de gaz utilizat, urmand indicatiile de la pagina 19.
3.5 VERIFICARI DUPA SCHIMBAREA TIPULUI DE GAZ
Dupa efectuarea schimbarii duzelor, se verifica daca au fost montate duzele cu diametrul corespunzator tipului de gaz utilizat. Reglarea se efectueaza la presiunea stabilita si se verifica daca :
· &nbs 21521s1811v p; flacara nu iese din camera de combustie (daca nu este prea mare).
· &nbs 21521s1811v p; flacara la arzator este prea mare sau prea mica si daca este stabila.( nueste suflata de pe arzator).
· &nbs 21521s1811v p; priza de presiune utilizata pentru reglare este inchisa ermetic si nu exista pierderi de gaz in circuit.
OBSERVATIE
Toate operatiile de reglare a centralei trebuiesc efectuate de catre personal tehnic autorizat. Reglarea arzatorului se realizeaza cu ajutorul unui manometru diferential tip U sau digital, conectat la priza de presiune a valvei de gaz si se realizeaza valoarea presiunii indicata in tabelul de la pagina 19 pentru tipul de gaz respectiv.
3.6 REGLARI EVENTUALE LA AVIO MAIOR
Ø &nbs 21521s1811v p; Reglarea puterii termice nominale (a se vedea figura de la pagina 17)
se roteste rozeta potentiometrului de reglarea temperaturii ACM (2 pagina 12) in pozitie maxima.
se deschide robinetul de apa calda pentru evitarea interventiei secventei de modulare a flacarii.
se actioneaza piulita de bronz (3) pentru a regla puterea nominala a centralei si a obtine presiunea maxima indicata in tabelul de la pagina 19 conform tipului de gaz.
rotind in sens orar puterea termica creste, iar in sens invers descreste.
Ø &nbs 21521s1811v p; Reglarea puterii termice minime (a se vedea figura de la pagina 17 )
OBSERVATIE :
Se monteaza capacul de protectie dupa reglarea presiunii nominale.
Reglarea puterii termice minime se obtine actionand surubul din plastic (2) cu capul in forma de cruce aflat pe valva de gaz si mentinand blocata piulita din bronz.
se opreste alimentarea bobinei modulante (este suficienta desprinderea unui contactor); rotind surubul in sens orar presiunea creste, iar in sens invers scade. Odata terminata reglarea se realimenteaza bobina modulanta. Presiunea de reglare a puterii termice a centralei, nu trebuie sa fie inferioara valorii indicate in tabelul de la pagina 19 conform tipului de gaz.
Ø &nbs 21521s1811v p; Reglarea puterii termice pe incalzire (a se vedea figura de la pagina 17). Pentru efectuarea reglarii puterii termice in circuitul de incalzire se actioneaza potentiometrul (12 pagina 17) inserat pe placa electronica de modulare a centralei, urmand secventele :
se inchide robinetul de
apa calda si se pozitioneaza intreruptorul (5 pagina 12 ) in pozitia
se invarte potentiometrul pentru reglarea temperaturii in circuitul de incalzire (1 la pagina 12) pana ajunge la pozitia maxima, evitandu-se astfel interventia modularii.
se regleaza puterea termica din circuitul de incalzire, rotind potentiometrul (12 pagina 17) aflat pe placa electronica de modulatie, obtinand valori relative celor din tabelul de la pagina 19 cu privire la puterea termica variabila a centralei. Rotind potentiometrul in sens orar presiunea creste, iar in sens antiorar presiunea scade.
OBSERVATIE
ü &nbs 21521s1811v p; Pentru a efectua reglarea valvei de gaz trebuie scos capacul de plastic (6), iar la terminarea operatiei se monteaza la loc.
ü &nbs 21521s1811v p; Centrala Avio Maior este dotata cu modulare electronica ce alege puterea termica a centralei in functie de cererea de caldura din sistem. Astfel centrala lucreaza normal intr-un interval variabil de presiuni ale gazului, cuprinse intre puterea minima si puterea circuitului de incalzire, in functie de incarcarea termica a instalatiei.
ü &nbs 21521s1811v p; Centrala Avio Maior este reglata din fabrica la puterea nominala pentru modul de lucru incalzire.
3.7 REGLAREA APRINDERII LENTE LA CENTRALA AVIO MAIOR
Dupa efectuarea presiunii minime si maxime a centralei, este posibila reglarea primului grad de aprindere lenta la valva de gaz. Pentru a efectua aceasta reglare se actioneaza potentiometrul (11) aflat pe placa electronica de modulare a centralei. Rotind in sens orar presiunea creste, iar in sens contrar scade.
Pentru a obtine o aprindere lenta sau graduala, este recomandata reglarea la primul grad de aprindere lenta adica 25 mm H2O pentru centralele alimentate cu gaz metan si 60 mm H2O pentru centralele alimentate cu GPL.
OBSERVATIE
Debitul de gaz necesar aprinderii lente a flacarii la arzator nu poate fi mai mic decat debitul necesar pentru a functiona la putere minima.
3.8 FUNCTIA ANTI-BLOCAJ A POMPEI
Centrala are incorporata o functie ce actioneaza pompa cel putin o data la 24 de ore, pentru 30 secunde si reduce riscul blocarii blocarii rotorului, dupa o lunga perioada de inactivitate.
3.9 FUNCTIA ANTI-INGHET
Centrala este dotata cu o functie anti-inghet, care se activeaza cand temperatura de pe circuitul de retur este sub 4 C, punand in functiune centrala pana cand temperatura ajunge la 43 C.
![]()
![]()
SCHEMA ELECTRONICA AVIO MAIOR Valva de gaz GAS 845
Legenda:
1. &nbs 21521s1811v p; Bobina
2. &nbs 21521s1811v p; Surub pentru reglarea puterii minime
3. &nbs 21521s1811v p; Surub pentru reglare putere maxima
4. &nbs 21521s1811v p; Priza presiune la iesirea din valva de gaz
5. &nbs 21521s1811v p; Priza presiune la intrarea in valva de gaz
6. &nbs 21521s1811v p; Capac de protectie
Siguranta fuzibila de 2 A
Potentiometru reglare aprindere lenta
Potentiometru reglare incalzire
Punte pentru functionare pe metan sau GPL
3.10 DEMONTAREA MANTALEI
Pentru o usoara intretinere a centralei este posibila demontarea mantalei urmand instructiunile :
- &nbs 21521s1811v p; &nbs 21521s1811v p; se demonteaza gratarul de protectie din plastic, de la partea inferioara.
- &nbs 21521s1811v p; &nbs 21521s1811v p; se scot suruburile (1) aflate la partea de jos a panoului frontal.
- &nbs 21521s1811v p; &nbs 21521s1811v p; se trage usor spre fata, partea inferioara a panoului si se impinge in sus (a se vedea figura)
- &nbs 21521s1811v p; &nbs 21521s1811v p; se scot suruburile (2) de la partea superioara a profilului din tabla, pentru sustinere a panoului frontal (a se vedea figura)
- &nbs 21521s1811v p; &nbs 21521s1811v p; se scot suruburile (3) din partea lateral - jos a centralei si se impinge usor (a se vedea figura)
3.11 CONTROLUL SI VERIFICAREA ANUALA A CENTRALEI
Cel putin o data pe an trebuie sa se efectueze urmatoarele secvente de control si intretinere :
· &nbs 21521s1811v p; se curata partea schimbatorului expusa gazelor de ardere
· &nbs 21521s1811v p; se curata arzatorul principal
· &nbs 21521s1811v p; se verifica vizual dispozitivul antivant al cosului
· &nbs 21521s1811v p; se controleaza secventa de aprindere si functionare
· &nbs 21521s1811v p; se verifica corecta reglare a arzatorului in modul de lucru incalzire si producere ACM
· &nbs 21521s1811v p; se verifica reglarea si functionarea dispozitivelor de comanda si reglare si in particular :
- &nbs 21521s1811v p; &nbs 21521s1811v p; se actioneaza intreruptorul electric general, montat in centrala
- &nbs 21521s1811v p; &nbs 21521s1811v p; se intervine asupra termostatului de reglare a temperaturii in instalatie
- &nbs 21521s1811v p; &nbs 21521s1811v p; se intervine asupra termostatului de reglare a temperaturii de livrare ACM
· &nbs 21521s1811v p; se verifica etanseitatea circuitului de alimentare cu gaz cu ajutorul unui manometru diferential tip U conectat la priza de presiune din amonte de valva de gaz si se inchide si deschide succesiv robinetul de separare al centralei. timp de 5 minute nu trebuie sa avem variatii de presiune la manometru.
· &nbs 21521s1811v p; se verifica interventia dispozitivului de siguranta in cazul lipsei gazului si a electrodului ce detecteaza de flacara. Timpul de interventie trebuie sa fie mai mic de 10 secunde !
· &nbs 21521s1811v p; se verifica vizual instalatia pentru a detecta eventualele pierderi de apa si daca racordurile sunt oxidate
· &nbs 21521s1811v p; se controleaza vizual ca iesirea din valva de siguranta sa nu fie obturata
· &nbs 21521s1811v p; se verifica ca preincarcarea vasului de expansiune, dupa ce presiunea din instalatie este 0 (se citeste pe manometru centralei) este 1 bar.
· &nbs 21521s1811v p; se verifica ca presiunea statica din instalatie (cu instalatia rece, sau dupa umplerea instalatiei) sa se gaseasca in intervalul 1 ÷ 1.2 bar
· &nbs 21521s1811v p; se verifica vizual ca dispozitivele de control si siguranta, sa nu fie indepartate si/sau scurtcircuitate :
- &nbs 21521s1811v p; &nbs 21521s1811v p; termostatul de siguranta la supraincalzire
- &nbs 21521s1811v p; &nbs 21521s1811v p; termostatul de control evacuare gaze arse
· &nbs 21521s1811v p; se verifica integritatea anodului de magneziu din boiler
· &nbs 21521s1811v p; se verifica conservarea si integritatea instalatiei electrice, iar in particular :
- &nbs 21521s1811v p; &nbs 21521s1811v p; firele de alimentare trebuiesc montate in conducte speciale
- &nbs 21521s1811v p; &nbs 21521s1811v p; nu trebuie sa fie prezente urme de arsura pe izolatia cablurilor.
3.12 Variatia puterii termice la centralele AVIO MAIOR
|
|
Metan G20 |
Butan G30 |
Propan G31 |
|||||||
|
Putere termica |
Putere termica |
Debit gaz la arzator |
Presiune la duzele arzatorului |
Debit gaz la arzator |
Presiune la duzele arzatorului |
Debit gaz la arzator |
Presiune la duzele arzatorului |
|||
|
kcal/h |
kW |
m3/h |
mbar |
mm H2O |
kg/h |
kg/h |
mm H2O |
kg/h |
mbar |
mm H2O |
|
|
|
|
|
|
|
|
|
|
|
|
|
|
|
|
|
|
|
|
|
|
|
|
|
|
|
|
|
|
|
|
|
|
|
|
|
|
|
|
|
|
|
|
|
|
|
|
|
|
|
|
|
|
|
|
|
|
|
|
|
|
|
|
|
|
|
|
|
|
|
|
|
|
|
|
|
|
|
|
|
|
|
|
|
|
|
|
|
|
|
|
|
|
|
|
|
|
|
|
|
|
|
|
|
|
|
|
|
|
|
|
|
|
|
|
|
|
|
|
|
|
|
|
|
|
|
|
|
|
|
|
|
|
|
|
|
|
|
|
|
|
|
|
|
|
|
|
|
|
|
|
|
|
|
|
|
|
|
|
|
|
|
|
|
|
|
|
|
|
|
|
|
|
|
|
|
|
|
|
|
|
|
|
|
|
|
|
|
|
|
|
debitele de gaz fac referire la puteri calorifice inferioare temperaturii de 15 C si la presiunea de 1013 mbar.
presiunea la arzator este in functie de gazul utilizat la temperatura 15 C.
3.13 Date tehnice AVIO MAIOR
|
Putere termica nominala |
kW (kcal/h) |
|
||
|
Putere termica minima |
kW (kcal/h) |
|
||
|
Putere termica utila |
kW (kcal/h) |
|
||
|
Putere termica minima utila |
kW (kcal/h) |
|
||
|
Randament termic la putere nominala |
|
|
||
|
Randament termic la 30 % din puterea nominala |
|
|
||
|
Pierdere de caldura prin manta cu arzatorul pornit/oprit |
|
|
||
|
Pierdere de caldura la cos cu arzatorul pornit/oprit |
|
|
||
|
|
|
G20 |
G30 |
G31 |
|
Diametru duze |
mm |
|
|
|
|
Presiune de alimentare |
mbar (mmH2O) |
|
|
|
|
Presiune max. in circuitul de incalzire |
bar |
|
||
|
Temperatura max. in circuitul de incalzire |
C |
|
||
|
Domeniu de reglare temperatura incalzite |
C |
|
||
|
Volum vas de expansiune |
l |
|
||
|
Preincarcare vas expansiune |
bar |
|
||
|
Volum de apa continut de centrala |
l |
|
||
|
Inaltime de pompare disponibila la 1000 l/h |
kPa (mH2O) |
|
||
|
Putere termica utila producere ACM |
kW (kcal/h) |
|
||
|
Domenul de reglare a temperaturii de livrare ACM |
C |
|
||
|
Limitator de debit |
l/min |
|
||
|
Presiune minima de alimentare |
bar |
|
||
|
Presiune min. (dinamica) in circuitul ACM |
bar |
|
||
|
Presiune max. in circuitul ACM |
bar |
|
||
|
Debit ACM ( T = 30 C) |
l/min |
|
||
|
Debit ACM in servici continuu ( T = 30 C) |
l/min |
|
||
|
Masa centrala plina |
kg |
|
||
|
Masa centrala goala |
kg |
|
||
|
Alimentare electrica |
V / Hz |
|
||
|
Curent nominal absorbit |
A |
|
||
|
Putere electrica instalata |
W |
|
||
|
Putere electrica absorbita de pompa |
W |
|
||
|
Grad de protectie electrica |
|
IP44 |
||
|
|
|
G20 |
G30 |
G31 |
|
Debit gaze arse la putere nominala |
kg/h |
|
|
|
|
Debit gaze arse la putere minima |
kg/h |
|
|
|
|
CO2 la putere nom/min |
|
|
|
|
|
CO cu 0 % O2 la putere nom/min |
ppm |
|
|
|
|
NOx cu 0 % O2 la putere nom/min |
ppm |
|
|
|
|
Temperatura fum la putere nominala |
C |
|
|
|
|
Temperatura fum la putere minima |
C |
|
|
|
|
Rezistenta circuitului de gaze arse |
Pa |
|
||
|