3510L.DOC
- Manual de utilizare -
CONŢINUT
1 - GENERALITĂŢI
2 - INDICATORUL DE TIP LED
3 - INDICATORUL ACUSTIC (BUZZER)
4 - RELEU
5 - RELEU REED
6 - SOLENOID
7 - SENZOR CU EFECT HALL
8 - COMUTATOR OPTIC REFLECTIV
9 - COMUTATOR DE PROXIMITATE INDUCTIV
10 - COMUTATOR ELECTRONIC
11 - EXEMPLE DE REZULTATE ALE EXPERIMENTELOR
12 - ANEXA : LITERATURĂ TEHNICĂ
1 - GENERALITĂŢI
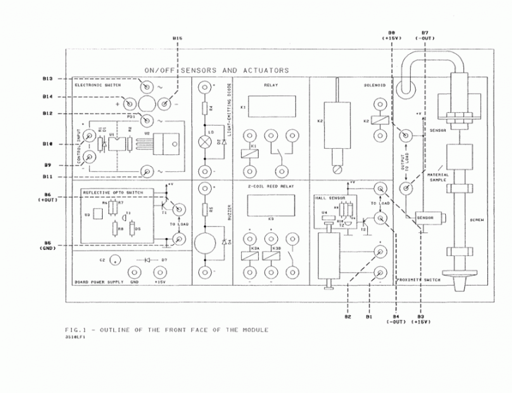
Acest modul cuprinde montaje experimentale pentru câteva dispozitive de intrare/iesire de tipul PORNIT/OPRIT (TOTUL/NIMIC, ACŢIONAT/NEACŢIONAT, ON/OFF)
Acestea sunt:
Comutator optic reflectiv si amplificator tampon capabil sa actioneze o sarcina de tipul pornit/oprit
Led indicator si circuit de comanda.
Beeper (buzzer, mic difuzor) piezoceramic si circuit de comanda.
Releu electromecanic, bobina de curent continuu (CC), 1 comutator. Releul are o carcasa transparenta, asa încât constructia sa poate fi observata.
Releu reed cu doua bobine. Prezenta celor doua bobine identice permite experimentarea efectului întaririi/slabirii câmpului prin alimentarea separata a bobinelor.
Comutator cu senzor cu efect Hall si adaptor de iesire.
Un montaj pentru testarea senzorului cu efect Hall : bobina cu miez culisabil din fier (a carui distanta fata de senzor poate fi ajustata) pentru studierea conditiilor de functionare ale senzorului.
Comutator de proximitate, de tip inductiv, cu un dispozitiv mecanic care sa permita prinderea unor mostre interschimbabile de material (fier moale, bronz (alama), aluminiu) la distante micrometrice ajustabile.
Solenoid, ca exemplu de actionare electrica cu iesire mecanica.
Comutator electronic, constând dintr-un TRIAC cu comanda cu separator (izolator) optic (optocuplor). Este inclus de asemenea si un montaj pentru comanda unor sarcini de curent alternativ si de curent continuu.
Toate partile acestui modul sunt folosite mult în industrie. Elevii sunt facuti sa devina repede familiarizati cu principiul lor de functionare, cu caracteristicile si limitele de utilizare.
Modulul necesita pentru functionare o sursa de alimentare de tip B4191.
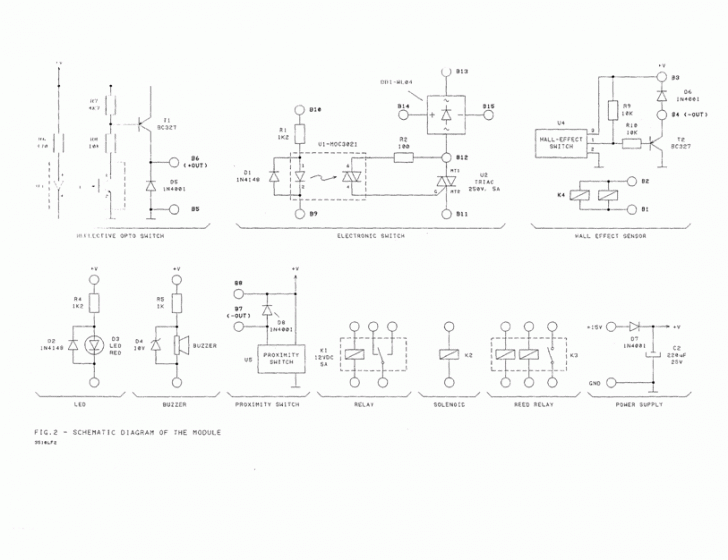
Figura 1 arata schita vederii frontale modulului. Figura 2 îi prezinta schema de principiu.


2 - INDICATORUL DE TIP LED
Diodele ElectroLuminiscente LED (The Light Emitting Diodes) sunt convertoare curent-lumina semiconductoare. Înca de la aparitia lor au început sa înlocuiasca cu rapiditate indicatoarele cu becuri cu incadescenta în majoritatea aplicatiilor.
Mai jos sunt prezentate cele mai importante caracteristici ale LED-urilor. Informatii mai detaliate si date de catalog ale producatorilor pentru unul din aceste dispozitive sunt atasate acestui manual.
Caracteristica electrica tensiune-curent a LED-ului este similara celei a unei diode. Tensiunea de polarizare directa este însa tipic 1,4V fata de 0,6V pentru diodele cu siliciu.
Pentru a emite lumina LED-ul trebuie sa fie polarizat direct cu un curent cuprins între 5 si 20mA. LED-urile care necesita mai putin curent (5 la 10mA) sunt de tipul "de înalta eficienta" si utilizarea lor începe sa o depaseasca pe cea a celor de tip normal.
LED-urile nu suporta în general polarizarea inversa. Ele pot sa aiba o tensiune inversa de strapungere cuprinsa între 5 si 50V.
Atunci când se presupune ca LED-ul poate ajunge sa fie polarizat invers, trebuie montata si o dioda de protectie.
LED-ul din modulul experimental este montat într-un circuit care include un rezistor limitator de curent, de 1k2 ohm si o dioda de protectie împotriva polarizarii inverse.
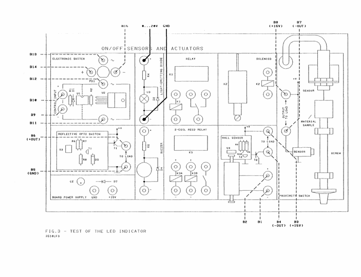
Pentru a pune în functiune indicatorul aplicati o tensiune variabila de la 0 la 20V între mufele terminale, asa cum se arata în fig. 3.

3 - INDICATORUL ACUSTIC (BUZZER)
Acest dispozitiv este facut în general dintr-un element piezoceramic montat pe o diafragma care transforma vibratiile mecanice în unde sonore. Dispozitivul este montat de obicei intr-o cutie de rezonanta cu scopul de a creste intensitatea sunetului.
Buzzerele sau Beeperele sunt oferite de obicei în doua tipuri constructive : unul este un rezonator plan necesitând o alimentare corespunzatoare în curent alternativ iar cealalta include un tranzistor ca micro-oscilator, si deci necesita o alimentare în curent continuu.
Dispozitivul prezentat pe placa modulului este de acest din urma tip. Buzzer-ul de pe placa include un rezistor limitator si o dioda Zener pentru protectia dispozitivului fata de inversarea tensiunii de alimentare.
Testati dispozitivul aplicându-i o tensiune continua variabila de la 0 la 20V între mufele sale de alimentare.
4 - RELEU
Releul prezentat în modul are carcasa transparenta pentru a permite observarea miscarilor sale.
Bobina releului functioneaza la o tensiune nominala de 12Vcc (curent continuu).
Oricum, nu se va întâmpla nimic rau daca dispozitivul este exploatat la o tensiune de pâna la 17V, datorita dimensiunii sale relativ mari care îi permite sa disipe surplusul de putere. O alta explicatie pentru capacitatea releelor de a suporta supratensiunile este aceea ca conductorul din cupru al bobinei are un coeficient de temperatura pozitiv si tinde sa conduca mai putin curent pe masura ce temperatura sa creste.
Releul are un singur comutator pe care îl actioneaza, capabil sa comute un curent de 5A la 250V.
O alta caracteristica interesanta a releelor este histerezisul lor : daca tensiunea de alimentare a bobinei va fi facuta sa creasca incet, se poate observa ca releul va anclasa la o tensiune între 9 si 10 volti ( pentru releul nostru cu tensiunea nominala de 12V). Daca tensiunea va fi apoi facuta sa scada încet, releul va declansa la o tensiune între 7,5 si 8,5V, în orice caz la o valoare mai mica decât precedenta.
Motivul acestui comportament este acela ca odata anclasat releul îsi schimba caracteristicile geometrice ale circuitului magnetic : armatura mobila vine în contact cu jugul (armatura fixa) si acest lucru micsoreaza rezilienta circuitului magnetic. Prin urmare va fi nevoie de un curent mai mic pentru a tine anclasat releul decât cel necesar pentru a-l anclasa.
Testati releul conectând între mufele bobinei sale o sursa de alimentare cu tensiune variabila intre 0 si 20V, si cresteti si scadeti încet aceasta tensiune pentru a înregistra punctele de anclasare si declansare (vezi fig. 4).
Observati ca acest releu nu este polarizat si prin urmare tensiunea de alimentare poate fi aplicata cu orice polaritate.
Retineti faptul ca în mod normal, la releele alimentate în curent continuu exista si o dioda montata în antiparalel, (adica în paralel cu bobina, dar polarizata invers, cu anodul înspre masa si cu catodul înspre sursa pozitiva) cu scopul suprimarii impulsurilor inductive (supratensiunilor) care apar atunci când dispozitivul este de-energizat. Aceasta dioda nu este inclusa în acest circuit demonstrativ, tocmai pentru a permite functionarea lui cu orice polaritate a tensiunii de alimentare (chiar si în curent alternativ).

5 - RELEU REED
Un releu reed poate fi definit ca un releu în care o portiune a circuitului magnetic si circuitul electric comutat (adica închis si deschis de el) coincid.
De fapt dispozitivul Reed consta într-o lamela de contact facuta dintr-un material cu o înalta permeabilitate magnetica, încapsulata într-o capsula de sticla umpluta cu gaz inert.
Când capsula de sticla este excitata axial de un câmp magnetic, lamela de contact tinde sa se orienteze în lungul liniilor de flux si asta o face sa vina în contact cu contactul fix.
Lamela de contact este asadar în acelasi timp parte a circuitului magnetic si a celui electric având în vedere ca prin ea trece curentul de sarcina comutat.
În mod normal releele Reed nu sunt dispozitive de mare putere dar sînt folosite de preferinta pentru comutarea semnalelor si pentru a implementa logica bazata pe relee.
Marele lor avantaj fata de releele conventionale este functionarea rapida (tipic 5msec fata de 15 la100msec) si durata lor mare de viata (peste 109 actionari).
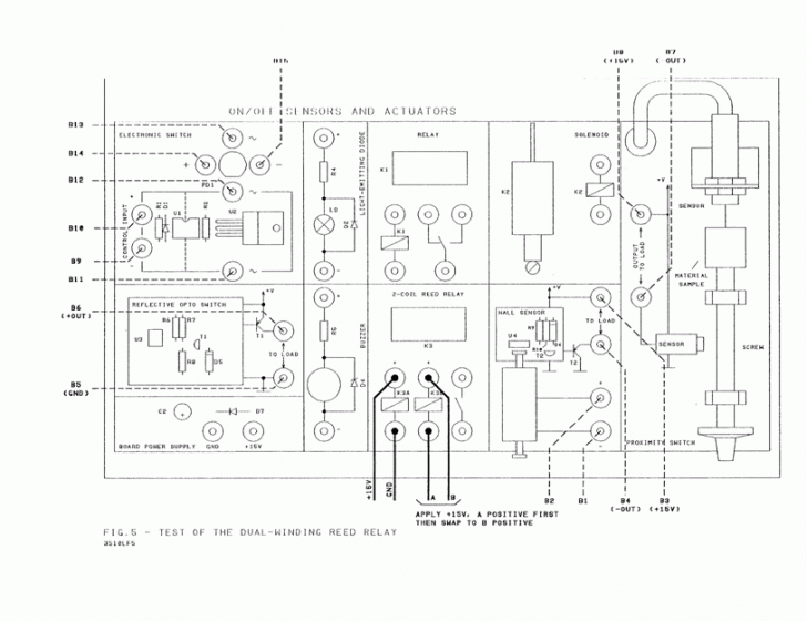
Releul Reed prezentat pe placa are o bobina cu doua infasurari. Acest aranjament este frecvent întâlnit la releele pentru operatii logice : a doua bobina poate fi folosita pentru a realiza o operatie SAU (OR) cu prima sau operatii de tip SAU EXCLUSIV (XOR) numai prin schimbarea polaritatii conexiunii celei de a doua infasurari cu scopul de a anula câmpul magnetic produs de prima.
Testati functionarea releului conectându-l în prima faza la o sursa variabila de curent continuu, pentru a înregistra tensiunile la care comuta (închide si deschide circuitul).
Puteti apoi testa efectul celor doua câmpuri magnetice care se anuleaza reciproc aplicând o tensiune de +15V unei bobine si una de -15V celeilalte.
6 - SOLENOID
Acest dispozitiv este adesea folosit pentru a deplasa mecanic o sarcina sau pentru a o retine sau, în general pentru a efectua operatiuni mecanice care implica miscari.
Solenoidul prezentat pe placa este unul de dimensiuni reduse, cu o bobina care functioneaza la o tensiune nominala de 12V curent continuu.

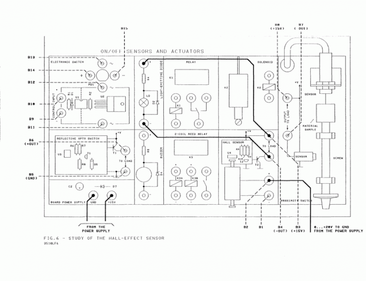
7 - SENZORUL CU EFECT HALL
În principiu sunt doua tipuri de senzori cu elect Hall : cele liniare si cele de tipul TOTUL sau NIMIC (ON/OFF).
Primele sunt în general utilizate pentru masurarea liniara a câmpurilor magnetice, pentru a masura curentul alternativ si contunuu prin conductori etc... Al doilea tip este folosit pentru limitatoare, senzori de prezenta si asa mai departe. Ele furnizeaza o iesire logica pentru interfatarea directa cu portile logice sau pentru a comanda diverse sarcini prin intermediul unor amplificatoare intermediare.
Senzorul Hall oferit în modulul experimental este de tipul TOTUL sau NIMIC.
Este montat împreuna cu un circuit de comanda pentru o sarcina de curent continuu si cu mijloace de testare a functionarii sale.
Acestea din urma constau în :
O bobina cu o înfasurare cu un miez culisabil. Înfasurarea poate fi alimentata la o tensiune fixa de 15V curent continuu iar miezul poate fi facut sa culiseze înauntru si înafara pentru a îi testa functionarea ca detector de proximitate.
Alternativ miezul poate fi facut sa culiseze si sa ajunga în contact cu fata senzorului iar curentul prin bobina poate fi variat pentru a studia limita de functionare a senzorului.
Vedeti în fig. 6 descrierea schemei de conexiuni.
În timp ce cablati acest circuit pentru experimente, observati urmatoarele :
Referitor la figura 6.
Mufa B1 trebuie conectata la masa placii.
Mufa B2 este celalalt capat al bobinei magnetizante. Conectati aceasta mufa la o sursa de tensiune de 0...+20V curent continuu (nominal 15V) pentru a face sa functioneze senzorul Hall.
Conectati aceasta mufa la o sursa de 0... -20V curent continuu pentru a dovedi ca senzorul nu functioneaza cu câmpuri magnetice de polaritate inversata.
Mufa B3 este conectata la alimentarea pozitiva de +15V a placii.
Mufa B4 este iesirea circuitului. Este o iesire cu colector în gol PNP Open Colector). Prin urmare sarcina trebuie sa fie conectata asa cum e indicat în fig. 6.

8 - COMUTATORUL OPTIC REFLECTIV
Dispozitivul consta într-o pereche emitator-detector care formeaza un corp comun.
Fata sensibila a ambelor este orientata în sus fata de placa de circuit imprimat.
Emitatorul radiaza o lumina ultravioleta (UV) si, daca nu este în apropiere nici un obiect (reflectiv) are sa o reflecte, lumina nu este receptata de detector.
Daca în fata dispozitivului se pune un obiect reflectiv (de o culoare adecvata si/sau cu o suprafata finisata corespunzator), detectorul (un fotorezistor) îsi satureaza intrarea, producând astfel un semnal logic.
Emitatorul si receptorul se potrivesc unul cu altul, în sensul ca detectorul are un vârf de sensibilitate corespunzator lungimii de unda a emitatorului. Oricum, asta nu împiedica detectorul sa fie sensibil la lumina ambienta si la alte surse de lumina.
Asadar este nevoie de o grija deosebita în utilizarea în practica a acestui dispozitiv.
Pentru a testa dispozitivul folositi montajul din fig. 7.
Atunci când montati cablurile pentru punerea în functiune a circuitului de test oferit în acest modul, tineti seama de urmatoarele observatii :
Dispozitivul are iesirea adaptata printr-un amplificator tranzistorizat.
Mufa B5 este legata la masa (electrica a) placii (GND).
Mufa B6 este o iesire NPN deci aceasta va fi "trasa în sus" la V+ când iesirea este activa.
Legarea la polul pozitiv al sursei (V+) de pe placa este facuta de un traseu de pe placa de circuit imprimat. Asadar sarcina trebuie sa fie conectata între B5 si B6.

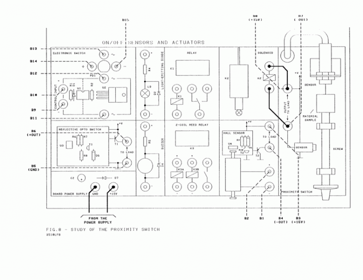
9 - COMUTATORUL DE PROXIMITATE INDUCTIV
Acest dispozitiv este disponibil comercial într-o varietate de forme si caracteristici. O clasificare grosiera poate fi facuta dupa cum urmeaza :
Dispozitive alimentate în curent alternativ (CA) sau în curent continuu (CC).
Dispozitive cu 2 terminale, în care incarcatura este conectata între un terminal si sursa de CA sau de CC, în timp ce celalalt terminal este conectat la masa (GND).
Dispozitive cu 3 terminale, doua dintre ele fiind tensiunea de alimentare si masa (GND), iar al treilea este iesirea de sarcina, pentru a fi conectat la tensiunea de alimentare (la tipurile NPN) sau la masa (GND) (la tipurile PNP).
Toate aceste dispozitive functioneaza dupa principiul unui oscilator cu tranzistor a carui functionare este amortizata atunci când un obiect metalic se apropie de elementele sale de rezonanta.
Eficienta efectului de amortizare si prin urmare si sensibilitatea dispozitivului depind de tipul de metal (maximum pentru obiecte feromagnetice) si de distanta.
Dispozitivul oferit în acest modul experimental este unul cu alimentare în curent continuu, cu 3 terminale, NPN, cu functionare de tip "trage în jos" (pull down).
Vezi fig. 8.
Mufa B8 este conectata la alimentarea V+ a placii printr-un traseu de pe placa de circuit imprimat.
Masa dispozitivului nu are o mufa dar este legata printr-un traseu imprimat pe placa la masa placii.
Mufa B7 este iesirea dispozitivului. Sarcina trebuie sa fie conectata între mufele B8 si B7 pentru ca dispozitivul sa functioneze corect.
Sunt oferite trei mostre de material, respectiv fier moale, bronz alama), aluminiu.
Exercitiile prevazute constau în studierea functionarii si masurarea distantelor de pornit/oprit (ON/OFF) în cazurile celor trei mostre de materiale (figura 8 prezinta conexiunile care trebuie realizate).
Observati ca mostrele de metal pot fi introduse în capatul unui surub cu filet metric, cu pas de 1mm. Asta înseamna ca pentru fiecare rotatie (sau fractiune de rotatie) a surubului se va obtine o deplasare longitudinala de 1mm (sau fractiune de milimetru).

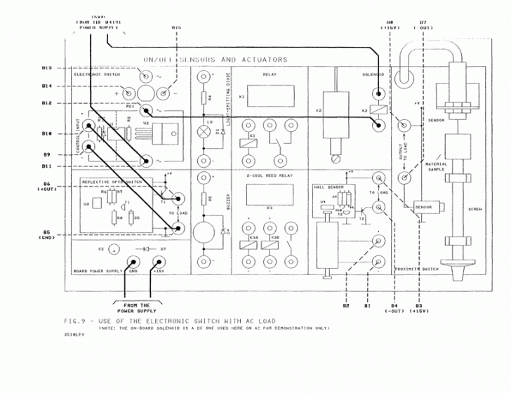
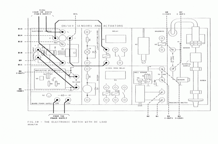
10 - COMUTATOR ELECTRONIC
Modulul include un exemplu de comutator electronic cu semiconductori realizat dintr-o componenta numita TRIAC a carei poarta de comanda este actionata printr-un optocuplor (izolator optic).
Acest lucru permite ca circuitul de comanda sa fie izolat galvanic, asa cum se cere pentru a exploata sarcini care sa fie conectate la reteaua de alimentare cu energie electrica (alternativa) (220Vca).
Evident, comutatorul electronic al acestui modul experimental NU ESTE facut pentru a fi exploatat prin alimentarea de la reteaua de energie electrica (220Vac), din motive de protectie a utilizatorilor. Va trebui pus în functiune alimentându-l de la iesirea de joasa tensiune, curent alternativ, a sursei B4191, de exemplu cu 15Vca sau cu 30Vca.
Vezi fig. 2 si 8 pentru detaliile de functionare :
Mufele B9, B10 sunt intrarile de comanda flotante. B10 trebuie sa fie pozitiv (nominal +15V) fata de B9 pentru a pune comutatorul pe pozitia pornit (ON).
Când comutatorul este pornit (ON), este închisa o cale de curent (este facuta legatura) între mufele B11 si B12.
Cu alte cuvinte, aceste mufe se comporta ca si contactul normal-deschis al unui releu.
Aceasta afirmatie este valabila numai pentru curent alternativ: daca un curent continuu este facut sa treaca de la mufa B11 la B12 sau invers, comutatorul nu va comuta (nu se va deschide, nu va întrerupe circuitul) atunci când comanda de pornire (ON) de la intrare este eliminata. Asta deoarece TRIACUL nu comuta pe "OPRIT" decât daca curentul pe care-l conduce se întrerupe (din alte cauze, cum ar fi trecerea prin zero a tensiunii de alimentare).
În cazul în care trebuie comandata o sarcina în curent continuu, trebuie folosita puntea cu diode DB1, oferita în acest scop.
Figurile 9 si 10 arata doua variante de conexiuni pentru circuit.
Comutatorul optic reflectiv este legat la intrarea de comanda a comutatorului electronic pentru a oferi o demonstratie de lucru, în timp ce solenoidul si releul de pe placa sunt legate ca sarcina pentru acelasi comutator.


11 - EXEMPLE DE REZULTATE ALE EXPERIMENTELOR
Domeniul de tensiune de încercare : 0 la 20V. Domeniul de iluminare : de la aprox. 3V în sus.
Domeniul de tensiune de încercare : 0 la 20V. Tensiunea de functionare : de la 3V în sus.
Tensiunea de anclasare : tipic 9,5V. Tensiunea de declansare : 8V.
Ca mai sus ( la punctul 4 )
Punctul de anclasare : tipic 10V.
Cu miezul împins complet înainte (=sensibilitate maxima), comutarea din starea oprit în starea pornit (OFF ON), adica anclasarea se produce tipic la 11V, tensiune de excitatie a bobinei.
Declansarea (ON OFF) la aprox. 7V.
Cu o protejare corespunzatoare fata de lumina ambianta, o foaie de hârtie neagra opaca nu va pune în functiune senzorul. O foaie de hârtie alba îl va face sa functioneze de la o distanta de aprox. 2,5mm.
Distantele de comutare :
Proba din fier moale : 2.6mm.
Proba din bronz : 1.1mm.
Proba din aluminiu : 0.8mm.
12 - ANEXE : LITERATURĂ TEHNICĂ
|