Sa se intocmeasca documentatia de proiectare si tehnologica pentru Comoda 1736 avand in vedere normele si standardele in vigoare.
A. Proiectarea produsului:
Studiul de produs (stabilirea dimensiunilor de gabarit si functionale, compartimentare variante de structura;
Intocmirea schitelor pentru varianta avizata si intocmirea listei de materiale;
Desen de ansamblu, desen de detaliu sau de atelier, scara 1:1;
Descrierea tehnica a produsului: constructie, materiale, finisare, verificare, marcare, depozitare, livrare, transport;
Nomenclatorul de repere pentru produsul conceput.
Calculul suprafetelor pentru operatiile de incleiere, furniruire, slefuire si finisare;
Fisa consumului de materiale;
Desenul de executie pentru 3 repere;
Fisa plan de operatii pentru prelucrarea mecanica a re 222b16c perelor;
Schema grafica a fluxului tehnologic pentru cele 3 repere;
Organizarea locului de munca la 3 masini;
Proiectarea ambalajului si calculul necesarului de materiale pentru ambalare.
1. Studiul de produs (stabilirea dimensiunilor de gabarit si functionare, compartimentare, variante de structura)
Dimensiunile principale sunt urmatoarele
|
Lungime (mm) |
Latime (mm) |
Inaltime (mm) |
|
|
|
|
Comoda este compartimentata in 7 compartimente, dintre care 2 superioare sunt fixe, unul superior central cu sertar si 4 reglabile 2 cate 2 in compensare.
Intocmirea schitelor pt varianta avizata si intocmirea listei de materiale

4.1.Constructie
Comoda proiectata este in costructie fixa si se compune din urmatoarele repere si accesorii:
placa superioara – P.A.L. furniruit si bordurat;
placa intermediara – P.A.L. furniruit;
placa inferioara – P.A.L. furniruit si bordurat;
pereti laterali – P.A.L. furniruit;
pereti despartitori – P.A.L. furniruit;
picioare – masiv stejar;
placa spate – placaj;
sertar – masiv fag iar fata din P.A.L. furniruit
polite – P.A.L. furniruit;
buton tragatori – metal;
suporti polite – metal;
suruburi pentru lemn.
4.2. Executie. Materiale. Accesorii
Placa superioara – se executa din P.A.L. cu grosimea de 19 mm, furniruit pe o fata cu stejar si pe alta si un cant cu furnir de fag cu grosimea de 0,7 mm; cantul din fata si canturile laterale vor fi bordurate cu masiv de stejar.
Placa intermediara – se executa din P.A.L. cu grosimea de 19 mm, furniruit pe pe o fata cu stejar si pe alta cu furnir de fag; cantul din fata cu furnir de stejar cu grosimea de 0,7 mm.
Placa inferioara – se executa din P.A.L. cu grosimea de 19 mm, furniruit pe o fata cu stejar si pe alta si un cant cu furnir de fag cu grosimea de 0,7 mm; cantul din fata si canturile laterale vor fi bordurate cu masiv de stejar.
Peretii laterali – se executa din P.A.L. cu grosimea de 19 mm, furniruit pe ambele fete si cantul din fata cu furnir din stejar, iar cantul din spate cu furnir din fag cu grosimea de 0,7 mm.
Peretii despartitori – se executa din P.A.L. cu grosimea de 19 mm, furniruit pe ambele fete si cantul din fata cu furnir din stejar cu grosimea de 0,7 mm.
Placa spate – se executa din placaj de fag cu grosimea de 5 mm.
Sertarul – se executa din masiv de fag, atat lateralele cat sispatele, cu grosimea de 16 mm; fundul din placaj de fag de 5 mm iar fata sertarului din P.A.L. furniruit numai cu furnir de stejar cu grosimea de 0,7 mm.
Politele – se executa din P.A.L. cu grosimea de 19 mm, furniruit pe pe o fata cu stejar si pe alta cu furnir de fag; cantul din fata cu furnir de stejar cu grosimea de 0,7 mm.
Picioare – din masiv de stejar incleiat si strunjit.
Suporti polite – din metal.
Butoni tragatori – din metal.
Suruburi pentru lemn – conform STAS.
Suprafetele exterioare si interioare se finiseaza in varianta transparenta, cu lacuri nitrocelulozice.
Peretii laterali se monteaza cu placa superioara, intermediara, inferioara, peretii despartitori si picioarele cu ajutorul cepurilor rotunde aplicate. Spatele se monteaza cu suruburi pentru lemn. Suportii din metal pentru polite sunt introdusi in P.A.L., dupa ce in prealabil s-au executat burghierile necesare, apoi se aseaza politele. Sertarul este montat cu ajutorul unor sipci de glisare din masiv de fag.
La ambalare se vor respecta conditiile prevazute in STAS 5223-88, privitor la materialele de ambalare, si conform conditiilor tehnice de ambalare pentru produsele in constructie fixa.
Mobilierul se va verifica periodic, conform STAS 770-91.
Controlul calitatii produsului pe flux, dupa executarea fiecarei operatii, si la final se va executa conform tehnologiilor de control tip.
la Comoda 1736
|
Nr. Crt. |
Material, clasa de calitate, Grosime, STAS |
UM |
Baza de Calcul |
Indice utilizare |
Norma consum |
Cost unitar |
Cost pe produs |
A |
MATERII PRIME |
|
|
|
|
|
|
|
|
P.A.L., 19 mm, cls A |
m2 |
|
|
|
|
|
|
|
Furnir Stejar, mm, cls II |
m2 |
|
|
|
|
|
|
|
Furnir Fag, mm, cls II |
m2 |
|
|
|
|
|
|
|
Placaj, mm, cls B |
m2 |
|
|
|
|
|
|
|
Cherestea Stejar, 25 mm, cls A |
m3 |
|
|
|
|
|
|
|
Cherestea Fag, 25 mm, cls B |
m3 |
|
|
|
|
|
|
|
Cepuri cilindrice, |
kg |
|
0,00067 kg/buc |
|
|
|
|
|
Cepuri cilindrice, |
kg |
|
0,00118 kg/buc |
|
|
|
|
|
Cepuri cilindrice, |
kg |
|
0,00185 kg/buc |
|
|
|
|
|
Furnir pt cant cu ad de topire |
m2 |
|
|
|
|
|
B |
MATERIALE TEHNICE |
|
|
|
|
|
|
|
|
HE-31E-80 (calibrare) |
m2 |
|
|
|
|
|
|
|
HE-21E-100 (slefuire I) |
m2 |
|
|
|
|
|
|
|
HE-31E-120 (slefuire II) |
m2 |
|
|
|
|
|
|
|
HC-31E-100 (slefuire cant furniruit) |
m2 |
|
|
|
|
|
|
|
HE-21E-100 (slefuire masive) |
m2 |
|
|
|
|
|
|
|
Aracet (imbinari + montaj) |
kg |
|
|
|
|
|
|
|
Urelit C |
kg |
|
|
|
|
|
|
|
Intaritor IC |
kg |
|
|
|
|
|
|
|
Faina de secara |
kg |
|
|
|
|
|
|
|
Uree tehnica |
kg |
|
|
|
|
|
|
|
Grund G 002-4 (pulverizare + turnare) |
kg |
|
|
|
|
|
|
|
Diluant D209 (pulverizare + turnare) |
kg |
|
|
|
|
|
|
|
P-HCn-10C-240 (slefuire grund) |
m2 |
|
|
|
|
|
|
|
L-NI-2137 mat (pulverizare + turnare) |
kg |
|
|
|
|
|
|
|
Diluant D209 (pulverizare + turnare) |
kg |
|
|
|
|
|
C |
Accesorii |
|
|
|
|
|
|
|
|
Buton tragator, cod 121.19.809 |
Buc |
|
|
|
|
|
|
|
Suporti polita, cod 282.38.708 |
Buc |
|
|
|
|
|
|
|
Surub pt lemn |
Buc |
|
|
|
|
|
|
|
|
|
|
|
|
|
|
|
|
|
|
|
|
|
|
|
8. Proiectarea ambalajului si calcululnecesarului de materiale pentru ambalare
Dimensiunile de gabarit sunt urmatoarele
|
Lungime (mm) |
Latime (mm) |
Inaltime (mm) |
|
|
|
|
8.1. Descrierea tehnica a ambalajului
Comoda se va ambala cu materiale cerute de catre STAS 5223-88.
Se vor proteja suprafetele finisate cu hartie matase si hartie rezistenta de ambalaj.
Comoda astfel ambalata se va aseza pe panoul din PAL de 6 mm introdus in capacul inferior, dupa care se lipesc cu scotch panourile din CO pt protectie laterala.
Se protejeaza placa superioara cu un panou din CO tip 5R dupa care se aseaza capacul.
Capacul superior si cel inferior se vor lipi de panourile laterale cu banda scotch de a lungul intregului perimetru al cutiei astfel formate.
Cutia se introduce intre doua grilaje de protectie si se consolideaza cu banda din polipropilena.
8.2. Dimensionarea componentelor de structura
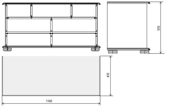
Dimensiunile produsului 1160 x 470 x 570
Dimensiunile interioare ale cutiei: 1180 x 490 x 590
Dimensiunile exterioare ale cutiei: 1190 x 500 x 600
Dimensionarea fundului si capacului
Schema de croire
Dimensionarea cartonului ondulat care protejeaza partile laterale
Lt=2(1160+470+50)=3360mm=3,36m
Ht=570+10=580mm=0,58m
Schema de biguire:

Dimensionare panou ce protejeaza placa superioara
Dimensionarea tampoanelor laterale: pt distantarea peretilor laterali ai comodei de peretii cutiei se vor utiliza 4 tampoane din CO tip 5R cu dimensiunile de: 450 x 100 x 35mm, fiecare tampon avand 7 straturi.
Pt protectia fetei comodei, similar se vor confectiona 4 tompoane cu dimensiunea de 450 x 100 x 40 mm.
Dimensinarea panoului de fund:
Dimensionarea straturilor de hartie matase si hartie de ambalaj rezistenta
a superioara: (1160+130) x (470+130) = 1290 x 600 mm.
te laterale [2*(1110+400)+100] x 450 = 3120 x 450 mm.
Necesarul de sfoara de canepa
artiilor de protectie
Dimensionarea grilajului de protectie
Componente din structura ambalajului
|
Poz. |
Denumirea |
Dimensiuni |
Buc |
Material |
Obs |
Masa neta |
|
|
Comoda protejata cu hartie |
1170x480x580 |
|
Hartie matase+ambalaj |
|
|
|
|
Capac |
1190 x 500 |
|
CO 5R |
|
|
|
|
Tampon lateral |
450 x 100 x 35 |
|
CO 5R |
|
|
|
|
Tampon fata |
450 x 100 x 40 |
|
CO 5R |
|
|
|
|
Panou protectie laterala |
1680 x 580 |
|
CO 5R |
|
|
|
|
Panou fund |
1100 x 435 x 51 |
|
PAL 6 mm + Ch diverse |
|
|
|
|
Sfoara canepa |
3120 x |
|
|
|
|
|
|
|
|
|
|
|
|
|
|
|
|
|
|
|
|
Se va executa si un grilaj de protectie peste colet, cu dimensiunile:
1210 x 520 x 51 mm.
Grilajul se va executa din cherestea de diverse specii, sau din resturi de PAL rezultate de la debitare.
8.3. Determinarea bazelor de calcul pentru materialele din componenta ambalajului
Carton ondulat 5R (STAS 4258
Capace: 1,33*0,64*2=1,7 m2
Carton protectie laterala 1,95 m2
Panou protectie placa superioara 0,56 m2
Tampoane laterale =1,26 m2
Tampoane protectie fata: =1,44 m2
Total: 6,91 m2
Masa: 6,91 m2 * 0,490 kg/m2 = 3,39 kg
Hartie matase (STAS 3790
Placa superioara: 1,29*0,60=0,78 m2
Suprafete laterale m2
Total: 2,18 m2
Masa: 2,18 m2 * 0,025 kg/m2 = 0,0545 kg
Hartie rezistenta (STAS 3789-86)
Masa: 2,18 m2 * 0,08 kg/m2 = 0,1744 kg
Sfoara canepa (STAS 1930-86)
Masa: 6,64 m * 0,0001 kg/m = 0,000664 kg
PAL 6 mm – panou fund: 1,1*0,435=0,478 m2
Cherestea diverse specii: (STAS 3575-80)
Panou fund: 3*(0,45*0,05*0,045)=0,0030375 m3
Grilaj protectie lonjeron: 2*2*(1,21*0,05*0,025)=0,00605 m3
Grilaj protectie traversa: 2*3*(0,52*0,05*0,025)=0,0039 m3
Total: 0,012987 m3
Cuie constructie 2,0 x 40 mm (STAS 2111-81)
Panou fund: 3 traverse x 3 buc = 9 buc
Grilaj protectie: 6 imbinari x 2 buc = 12 buc
Total: 21 buc
Capse pt capace: 2 capace x 16 capse = 32 buc
Banda scotch
Fixare panouri protectie laterala: 2 * 0,58 = 1,16 m
Fixare capace: 2 * 2 * (1,19 + 0,5) = 6,76 m
Total: 7,92 m
Necesar: 7,92 m / 50 m/rola = 0,16 role de scotch
Banda polipropilena (STAS 9414-81) (16 x 0,9 mm)
2 [2 (0,48 + 0,54) + 0,2] = 4,48 m
Catarame: 2 buc
Eticheta: 1 buc
Aracet:
Lipit tampoane laterale: =1,08 m2
Lipit tampoane frontale: =1,26 m2
Total: 2,34 m2
Masa: 2,34 m2 x 0,2 kg/m2 = 0,468 kg
8.4. Fisa de consum pentru ambalaj
|
Nr crt |
Denumirea materialului |
U M |
Baza de calcul |
Coef de utilizare sau Csp unitar |
Norma de consum |
Pret unitar |
Valoare totala |
|
|
Carton ondulat 5R |
kg |
|
|
|
|
|
|
|
Hartie matase |
kg |
|
|
|
|
|
|
|
Hartie rezistenta |
kg |
|
|
|
|
|
|
|
Sfoara canepa |
kg |
|
|
|
|
|
|
|
PAL 6 mm |
m2 |
|
|
|
|
|
|
|
Ch diverse specii |
m3 |
|
|
|
|
|
|
|
Cuie constructie |
kg |
|
/1000buc |
|
|
|
|
|
Capse pt capace |
buc |
|
|
|
|
|
|
|
Banda scotch |
role |
|
|
|
|
|
|
|
Banda polipropilena |
kg |
|
1,306/100m |
|
|
|
|
|
Catarame |
buc |
|
|
|
|
|
|
|
Eticheta |
buc |
|
|
|
|
|
|
|
Aracet DPC 50-18 |
kg |
|
|
|
|
|
BIBLIOGRAFIE:
Lica, D., Nastase, V., - ‘Ambalarea mobilei. Facicola curs si aplicatii.’
Nastase,
V., Bucataru, M. – ‘Proiectarea mobilei. Indrumar pentru lucrari practice.’
Universitatea Transilvania
Nastase,
V. – ‘Tehnologia fabricarii mobilei.’ Universitatea Transilvania
Bratila, Colectivul – ‘Desen pentru produse finite din lemn.’
STAS 770-88 – ‘ Mobilier din lemn. Conditii generale de calitate.’
STAS 7837-89 – ‘ Mobila si alte produse finite din lemn. Abateri limita si ajustaje.’
|