CALCULUL SI CONSTRUCTIA AMBREIAJULUI
La majoritatea autovehiculelor ambreiajul se fixeaza de volantul motorului, marind astfel momentul de inertie al acestuia, si constituie în cazul ambreajelor mecanice, un cuplaj de frictiune, prin care, cu ajutorul fortelor de frecare cuplul motorului se transmite la rotile motoare, prin transmisia autovehiculelor. În cazul ambreajelor hidraulice el joaca chiar rol de volant.
Includerea ambreiajului în transmisia autovehiculului are drept scop compensarea principalelor dezavantaje ale motorului cu ardere interna, functionare instabila si mers neuniform al arborelui cotit.
Ambreiajul 2 (fig.6.1) reprezinta un cuplaj de legatura între arborele cotit al motorului 1 si arborele primar al cutiei de viteze 3, fiind amplasat în vecinatatea volantului motorului, cu care este compatibil în dimensiuni.
Ambreiajul este inclus în transmisia automobilului în vederea compensarii principalelor dezavantaje functionale ale motorului cu ardere interna precum si ale cutiei de viteze mecanice în trepte. El serveste la:
- cuplarea progresiva a motorului cu restul transmisiei la pornirea din loc a automobilului;
- decuplarea temporara a transmisiei la:
pornirea motorului termic, în vederea atingerii regimului de functionare regimului de functionala stabila a acestuia;
schimbarea treptelor de viteza;
- frânarea automobilului pâna la oprire;
Fig.6.1. Dispunerea ambreiajului în
echipamentul de propulsie
- limitarea valorii maxime a momentului de torsiune din organele transmisiei si motorului (cuplaj de siguranta);
izolarea între motor si transmisie a vibratiilor torsionale provenite din functionarea motorului si din deplasarea automobilului pe cale.
Constructiv, ambrei 636j91g ajul este constituit din partea conducatoare, partea condusa si sistemul de actionare.
Partea conducatoare reprezentata prin volantul 1 al motorului si mecanismul de ambreiaj 2, cuprinde totalitatea elementelor ambreiajului legate prin legaturi permanente cu arborele cotit al motorului. Partea conducatoare se afla întotdeauna în acelasi regim de miscare cu arborele cotit al motorului.
Fig.6.2. Compunerea generala
a ambreiajului
Partea condusa reprezentata de discul de ambreiaj 3 si arborele ambreiaj (daca acesta exista ca piesa distincta), cuprinde totalitatea elementelor ambreiajului legate prin legaturi permanente de arborele primar al cutiei de viteze, cu care se afla în acelasi regim de miscare.
Sistemul de actionare, reprezentat prin mansonul de decuplare 4, furca 5 si un dispozitiv extern de comanda 6, mecanic sau hidraulic, cuprinde totalitatea elementelor ce participa la stabilirea sau desfacerea legaturii, numita legatura de cuplare, dintre partea conducatoare si partea condusa.
Starea cuplata a ambreiajului corespunde existentei legaturii de cuplare, iar starea decuplata corespunde desfacerii legaturii de cuplare. Trecerea ambreiajului din stare decuplata în stare cuplata se obtine în urma actiunii de debreiere, iar trecerea din starea cuplata în starea decuplata se obtine în urma debreierii.
Dupa felul legaturii de cuplare se deosebesc:
- ambreiaje mecanice,tratate în aceasta lucrare: ambreiajele la care legatura de cuplare este reprezentata de fortele de frecare ce iau nastere în suprafetele frontale de contact ale partilor conducatoare si condusa sub actiunea unor forte normale de apasare dezvoltate în sistemele mecanice rigide sau elastice;
- ambreiaje hidrodinamice (hidroambreiajele): ambreiajele la care legatura de cuplare se obtine printr-un lichid, dupa principiul de lucru al masinilor hidraulice rotative;
- ambreiaje electromagnetice: ambreiajele la care legatura de cuplare este consecinta unui câmp electromagnetic indus ansamblului condus de ansamblul conducator.
Un ambreiaj bine conceput si corespunzator reglat trebuie sa îndeplineasca o serie de cerinte, dintre care:
- la decuplare sa asigure desfacerea rapida si totala a legaturii dintre motor si transmisie, pentru a da posibilitatea schimbarii treptelor de viteza fara socuri si pentru a preîntâmpina uzura prematura a ambreiajului prin existenta frecarii mecanice din suprafetele de contact atunci când automobilul este oprit cu motorul în functiune si din cutia de viteze cuplata;
la cuplare sa asigure cuplarea lina si completa a motorului cu transmisia, adica sa permita o crestere progresiva a momentului pe care îl transmite, pentru a se evita pornirea brusca din loc a automobilului si aparitia unor solicitari dinamice însemnate în transmisie. Cum în fazele cuplarii ambreiajului o parte din energia motorului se transforma prin patinarea ambreiajului în caldura, ambreiajul trebuie sa fie capabil sa preia întreaga caldura rezultata, fara a se produce cresteri periculoase de temperatura, si sa o cedeze cu usurinta mediului exterior;
- în stare cuplata, în toate conditiile normale de functionare ale automobilului, sa asigure transmiterea integrala a momentului maxim al motorului, fara patinare, iar în regimurile în care pot aparea suprasarcini dinamice sa limiteze, prin patinare, cresterea momentului, evitându-se astfel suprasolicitarea organelor transmisiei. De asemenea, fata de caracterul periodic variabil al momentului motorului si aleatoriu variabil al rezistentelor de înaintare, ambreiajul trebuie sa asigure izolarea transmiterii vibratiilor de torsiune între motor si transmisie.
În afara conditiilor impuse ambreiajului în diversele faze de functionare, acesta trebuie sa mai îndeplineasca urmatoarele: momentul de inertie al partii conduse, solidare la rotatie cu arborele primar al cutiei de viteze, sa fie cât mai mic, un moment mare prelungind durata de egalizare a vitezelor unghiulare ale rotilor dintate ce urmeaza a fi cuplate, pe toata durata de functionare, parametrii de baza sa varieze cât mai putin, cuplate; pe toata durata de functionare, parametrii de baza sa varieze cât mai putin, eventualele reglaje impuse de corectarea parametrilor urmând sa se mentina timp îndelungat; sa aiba durata de serviciu si o rezistenta la uzura cât mai mari; sa aiba dimensiuni geometrice si mase cât mai reduse; sa confere siguranta în functionare printr-o constructie simpla si ieftina.
În constructia de automobile, ambreiajele mecanice, de frictiune, au capatat raspândirea cea mai larga, dat fiind faptul ca ele satisfac în buna masura cerintele principale, respectiv: sunt simple, ieftine, sigure în exploatare, usor de manevrat si au momente de inertie mici ale pieselor partii conduse. Functionarea ambreiajelor mecanice este bazata pe folosirea fortelor de frecare ce apar între suprafetele partilor conduse si conducatoare ale acestora.
Alegerea tipului constructiv
Ambreiajele mecanice întâlnite în constructia de autoturisme sunt ambreiaje cu arcuri.
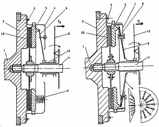
Partea conducatoare, legata de arborele cotit 1 al motorului, cuprinde volantul 2, de care se monteaza, prin suruburile 3,carcasa 4 a mecanismului ambreiaj. Solidar în rotatie cu carcasa 4, având însa fata de ceasta mobilitate relativa de translatie, se gaseste discul de presiune 5. Pentru realizarea fortei necesare mentinerii starii cuplate a ambreiajului, între carcasa 4 si discul de presiune 5 sunt montate precomprimat, arcurile periferice 7, respectiv arcul central diafragma 9.
Arcurile periferice, dispuse echidistant pe periferia discului de presiune, sunt arcuri elicoidale din sârma trasa cu caracteristica liniara. Starile de functionare ale ambreiajului sunt determinate prin modificarea sagetii elastice a arcurilor. Pentru aceasta, ambreiajul este prevazut cu pârghiile de decuplare 6.
a) ambreiaj cu arcuri periferice b)ambreiajul cu arc central diafragma
Fig.6.3. Schemele de organizare constructiva a
ambreiajelor mecanice cu arcuri
La ambreiajul cu arc central diafragma rolul arcurilor de presiune si al pârghiilor de decuplare este îndeplinit de un disc subtire din otel de forma tronconica, având o serie de brate elastice formate din taieturi. În mecanismul ambreiaj prezentat, arcul se sprijina, prin cercul bazei mari pe discul de presiune 5 si, prin reazamul 8 din zona mediana, de carcasa 4. Situarea arcului în diferite pozitii în caracteristica elastica, corespunzatoare starilor de functionare, se obtin prin modificarea înaltimii trunchiului de con la actionarea cu o forta deformatoare asupra cercului bazei mici.
Partea condusa este reprezentata prin ansamblul discului condus 10, montat prin caneluri pe arborele 11, care, în majoritatea cazurilor, este arborele primar al cutiei de viteze.
Partea de comanda este reprezentata prin pârghia 13 si prin mansonul de decupare 12.
În stare normala, ambreiajul este cuplat. Starea "normal cuplata" este efectul arcurilor de presiune 7 (fig.6.3.a), respectiv al arcului diafragma 9 (fig.6.3.b), care, montate precomprimat între carcasa 4 si discul de presiune 5, în tendinta de destindere, vor realiza strângerea discului condus între volant si discul de presiune.
Fortele normale de apasare dintre suprafetele conduse si suprafetele conducatoare vor determina aparitia fortelor de frecare, fiecare suprafata de frecare reprezentând o cale de legatura dintre partile condusa si conducatoare. Fortele de frecare astfel generate, reduse în raport cu axa de rotatie, dau nastere momentului capabil al ambreiajului.
Decuplarea ambreiajului se obtine când în partea de comanda se dezvolta o forta de decuplare Fd, sub actiunea caruia mansonul de decuplare 12, deplasat axial spre stânga, va rotii pârghiile de decuplare a fortelor elastice ale arcului diafragma 9, în sens orar. Simultan cu preluarea de catre pârghiile de decuplare a fortelor elastice ale arcurilor, prin comprimarea suplimentara a arcurilor, discul de presiune 5 este deplasat axial spre stânga, pâna când se desface contactul cu frecare dintre partile conducatoare si condusa. Se obtine starea de debreiere (decuplarea motorului de transmisie). Ambreierea dupa debreiere ( recuplarea motorului de transmisie ) se obtine prin anularea fortei de decuplare Fd din partea de actionare, când, prin destinderea arcurilor în starea anterioara decuplarii, se realizeaza contactul cu frecare dintre partea conducatoare si partea condusa.
Analizând comparativ constructiile celor doua tipuri de ambreiaje, la ambreiajele cu arcuri periferice se constata urmatoarele:
- apasarea discului de presiune pe suprafata de frecare se face uniform;
- montarea arcurilor impune o serie de prevederi constructive legate de mentinerea lor contra actiunii fortei centrifuge la functionarea motorului si de evitarea actiunii directe a fluxului de caldura rezultat în fazele de patinare ale ambreiajului;
pârghiile de decuplare impun operatii laborioase de reglare pentru dispunerea capetelor inferioare într-un plan paralel cu planul mansonului de decuplare;
fiabilitate redusa datorita existentei unui numar mare de piese si cuple mobile si cu frecare ce intra în compunerea ambreiajului.
Din analiza celor doua caracteristici rezulta urmatoarele:
- actionarea ambreiajului cu arc diafragma este mai usoara deoarece forta necesara pentru mentinerea ambreiajului în pozitie decuplata este mai redusa la acest tip de ambreiaj (FD1<<FD2);
- ambreiajul cu arc central diafragma prezinta o progresivitate ridicata la cuplare datorita elasticitatii mari a arcului diafragma;
- ambreiajul cu arc central diafragma nu are tendinta de patinare la uzarea garniturilor, deoarece momentul capabil al ambreiajului se mentine în jurul valorii nominale de nou pe toata durata de functionare a ambreiajului (corespunzatoare uzarii garniturilor cu marimea Dh);
- toate elementele constructive sunt piese de revolutie, astfel ca echilibrarea ambreiajului se face fara dificultate.
La ambreiajele cu arc central diafragma, în functie de sensul de actionare al fortei de decuplare, se disting doua tipuri: ambreiajul cu arc diafragma decuplabil prin comprimare, numit si ambreiaj de tip apasat si ambreiajul cu arc diafragma decuplabil prin tractiune, numit si ambreiaj de tip tras.
Constructia ambreiajului cu arc diafragma de tip apasat cuprinde în partea conducatoare: volantul 1 al motorului, carcasa ambreiajului 2, discul de presiune 3 si arcul diafragma 4, montat precomprimat în carcasa. Solidarizarea în rotatie dintre discul de presiune 3 si carcasa 2 se face prin intermediul lamelelor elastice multiple 5, care permit si translatiile relative dintre disc si carcasa necesare decuplarii si compensarii uzurilor.
Constructia ambreiajelor cu arc diafragma de tip tras difera prin modul de montare al arcului diafragma 1 precomprimat între carcasa 2 si discul de presiune 3 prin rezemarea de carcasa prin cercul bazei mari. Starea decuplata se obtine prin departarea mansonului de decuplare 4 de volantul motorului.
Aleg ambreiaj mecanic neautomat cu arc central diafragma de tip apasat.
6.2. Elemente de calcul ale ambreiajului
Calculul ambreiajului cuprinde determinarea dimensiunilor principale în raport cu valoarea maxima a momentului motor, în functie tipul si destinatia automobilului si de verificarea la rezistenta a principalelor piese componente.
6.2.1. Determinarea parametrilor de baza ai ambreiajului
Parametrii principali care caracterizeaza constructia ambreiajului se refera la coeficientul de siguranta (β), presiune specifica (ps) si cresterea de temperatura (Δt) în ambreiaj la pornirea din loc a automobilului.
6.2.2. Determinarea momentului de calcul
În timpul functionarii ambreiajelor, ca urmare a frecarilor normale din fazele de cuplare decuplare ale ambreiajului, suprafetele de frecare ale discului conduse sunt supuse uzurii. Fata de constructia mecanismului ambreiaj si modul de generare a fortelor de cuplare, uzarea garniturilor de frecare determina o detensionare a arcurilor si deci o modificare a fortei de apasare. Pentru ca ambreiajul sa fie capabil sa transmita momentul maxim al motorului si în cazul în care garniturile de frecare sunt uzate, la dimensionarea ambreiajului se adopta momentul capabil al ambreiajului mai mare decât momentul maxim al motorului.
În calculele de predimensionare acest lucru este luat în considerare prin coeficientul de siguranta al ambreiajului, notat b si definit ca valoare a raportului dintre momentul de calcul al ambreiajului(MM) si momentul maxim al motorului (MM)
Momentul de calcul se determina cu formula:
Ma=β∙Mmax
Alegerea valorii coeficientului de siguranta al ambreiajului în vederea determinarii momentului necesar al ambreiajului se face tinându-se seama de tipul si destinatia automobilului, precum si de particularitatile ambreiajului.
Pentru valori mari ale coeficientului de siguranta b se reduce intensitatea patinarii ambreiajului la uzarea garniturilor de frecare, se reduce lucrul mecanic de patinare si, prin aceasta, se sporeste durata de functionare a ambreiajului si se reduce timpul de ambreiere, îmbunatatindu-se dinamicitatea automobilului.
Marirea exagerata a coeficientului de siguranta contribuie la aparitia unor suprasarcini în transmisie, în special la frânarea brusca a automobilului, prin diminuarea capacitatii de protectie prin patinare. În plus, cu cât b are valori mai ridicate, cu atât si forta necesara pentru cuplarea ambreiajului devine mai mare.
Ambreiajul la care coeficientul de siguranta are valori reduse protejeaza bine transmisia de suprasarcini, deoarece patinarea ambreiajului are loc la valori mai mici ale momentului de torsiune, deci mai usor si mai frecvent în timpul deplasarii automobilului. Aceasta situatie poate deveni dezavantajoasa, deoarece alunecarile frecvente provoaca uzura prematura a discurilor.
De-a lungul duratei de utilizare a automobilului, prin uzarea garniturilor de frecare ale ambreiajului valoarea coeficientului de siguranta se modifica dupa caracteristica elastica a arcurilor utilizate. Corespunzator reducerii fortelor de apasare a arcurilor datorita uzarii ambreiajului scade si valoarea momentului capabil al ambreiajului. Îndeplinirea cerintei de transmitere integrala a momentului maxim al motorului limiteaza scaderea coeficientului de siguranta al ambreiajului uzat pâna la limita: bu
Ţinând seama de precizarile de mai înainte, pentru valorile coeficientului de siguranta al ambreiajului, în concordanta cu valorile întâlnite la automobile similare, se recomanda b=1,4.1,7 pentru autoturisme cu capacitate normala de trecere, b=2,0.2,5 pentru autoturisme cu capacitate marita de trecere; b=3.4 pentru autoturisme de competitii sportive. Valorile spre limita superioara se recomanda în cazul ambreiajelor cu arcuri elicoidale la care reducerea fortei elastice este direct proportionala cu uzura garniturilor, iar valorile spre limita inferioara se recomanda în cazul arcurilor centrale diafragma, la care forta capabila a arcurilor este putin influentata de modificarea sagetii de precomprimare a arcului în limita uzurilor normale.
Pentru calcule de dimensionare a ambreiajului se alege b
Ma=1,5∙115,266
Ma=172,899 [Nm]
6.2.3. Presiunea specifica (ps)
Presiunea specifica dintre suprafetele de frecare ale ambreajului reprezinta raportul dintre forta dezvoltata de arcul presiune (F) si aria unei suprafete de frecare a ambreiajului(A), dupa relatia:
Valoarea maxima a presiunii specifice este limitata prin tensiunea admisibila de strivire a materialului constituent al garniturilor. Fata de aceasta limita fizica, în adoptarea valorii de predimensionare a ambreiajului sunt de considerat urmatoarele aspecte:
- valori spre limita tensiunii admisibile de strivire favorizeaza reducerea dimensiunilor constructive ale ambreiajului;
- valori mici ale presiunii specifice implica suprafete mari de frecare, care presupun dezvoltari radiale însemnate ale discurilor conduse si, de aici, cresterea gabaritelor, a maselor si a momentelor de inertie ale partii conduse a ambreiajului. În plus, prin cresterea razelor, se sporesc vitezele tangentiale de alunecare dintre suprafetele de contact la cuplarea ambreiajului, situatie în care creste uzura de alunecare a garniturilor.
Din considerente de uzura a suprafetelor de frecare, presiunea specifica a ambreiajului se admite în urmatoarele limite: ps=0,2.0,5 [Mpa] în cazul garniturilor din rasini sintetice impregnate cu fibra de kevlar sau fibra de sticla si ps=1,5.2 [MPa] pentru cele metaloceramice.
Pentru calcule de dimensionare a ambreiajului aleg ps=0,4 [MPa] pentru garniturile din rasini sintetice impregnate cu fibre de kevlar sau fibre de sticla.
6.2.4. Lucrul mecanic specific de patinare
Reprezinta raportul dintre lucrul mecanic de patinare L si suprafata de frecare a ambreiajului A:
Adopt: l=100 [N/cm
]
6.2.5. Cresterea temperaturii pieselor ambreiajului
La un parcurs urban de 10 Km, frecventa cuplarilor-decuplarilor ambreiajului este de circa 100.300 ori. Se stie ca în procesul cuplarii si decuplarii ambreiajului, o parte din lucrul mecanic al motorului se transforma, prin patinare, în caldura, ridicând temperatura pieselor metalice ale ambreiajului, din care cauza garniturile de frecare functioneaza la temperaturi ridicate. Având în vedere ca lucrul mecanic de patinare este mai mare la pornirea din loc a automobilului decât la schimbarea treptelor de viteza, în calcule se considera situatia cea mai dezavantajoasa, cea pornirii din loc. De asemenea, având în vedere durata procesului de cuplare (tc<1,0 s), schimbul de caldura cu exteriorul este redus, astfel ca se considera ca întreg lucrul mecanic de patinare se regaseste sub forma de caldura în discul de presiune si volant.
Având în vedere faptul ca lucrul mecanic de patinare cel mai mare se produce la plecarea din loc a automobilului, aprecierea si compararea ambreiajelor din punct de vedere al încalzirii se face pentru acest regim.
Verificarea la încalzire se face pentru discurile de presiune, aflate în contact direct cu planul de alunecare, cu relatia
unde to este cresterea de temperatura
- L- lucrul mecanic de patinare;
=0,5 - coieficient care exprima partea din lucru mecanic preluat de discul de presiune al ambreajului;
- mp este masa pieselor ce se încalzesc;
- c= 500 J/Kg
este caldura specifica a pieselor din fonta si
otel.
Ambreajul se
considera bun din punct de vedere al încalzirii daca
cresterea de temperatura la pornirea din loc este în limiteleΔt=8.15
.Pentru calcule de dimensionare a ambreajului adopt:
t=12 [
C]
6.2.6. Dimensionarea garniturilor de frecare ale ambreiajului
Garniturile de frecare sunt componente ale discului condus prin intermediul carora se stabileste, prin forte de frecare, legatura de cuplare a ambreiajului. Drept urmare suprafetele de frecare ale ambreiajului reprezinta caile de legatura dintre partile conducatoare ale ambreiajului.În aceste conditii momentul capabil al ambreajului este mometul fortelor de frecare, dat de relatia
unde: -i=2n-este numarul suprafetelor de frecare(al cailor de legatura
- dintre parte conducatoare si partea condusa);
- n-numarul discurilor conduse ale ambreajului;
-raza medie a suprafetei de frecare;
- Re,Ri- razele exterioare si interioare;
-coieficientul de frecare dintre suprafetele discurilor.
Pentru a putea transmite momentul motorului, ambreiajul are nevoie de o suprafata de frecare a carei marime se determina cu relatia:
A=π∙(R
∙R
i
unde: - Re - raza exterioara a suprafetei de frecare;
- Ri - raza interioara a suprafetei de frecare;
- i - numarul de suprafete de frecare.
Raza exterioara a suprafetei de frecare se determina cu relatia:
unde: - c=
=0,695
Referitor la coeficientul c, ia valori în intervalul (0,53.0,75), care influenteaza uniformitatea de uzare radiala a garniturilor, se fac urmatoarele precizari: valorile spre limita inferioara ale coeficientului c arata ca exista o diferenta mare între razele suprafetelor de frecare, deci latime mare, ceea ce are ca consecinta o uzarea neuniforma a garniturilor de frecare datorita diferentei mari dintre vitezele de alunecare. În scopul utilizarii uniforme, mai ales cazul automobilelor echipate cu motoare rapide, se recomanda folosirea de valori ale coeficientului c spre limita superioara.
Re=98,32 [mm]
Garniturile de frecare sunt piese de uzura ale ambreiajului, piese care de-a lungul duratei de utilizare sunt de mai multe ori înlocuite. Posibilitatea de înlocuire trebuie sa ofere interschimbabilitatea pieselor motiv pentru care garniturile sunt realizate într-o gama tipodimensionala limitata.
Aleg conform STAS 7793-83 pentru garniturile de frecare adopt dimensiunile:
De=200[mm] - diametrul exterior
Di=130[mm] - diametrul interior
g=3,5 [mm] - grosimea garniturii
Raza interioara se determina cu relatia:
Ri=c∙Re=0,695∙100=69,5
70[mm]
Raza medie a garniturilor de frecare este:
Rmed=85[mm]
Rezulta ca aria suprafetei de frecare este:
A=π∙(R
-R
)=π∙(100
-70
)∙2
A=32044,245[mm
]
6.3. Calculul partii conducatoare
Calculul partii conducatoare cuprinde calculul discului de presiune, calculul arcului diafragma si al elementelor de fixare ale discului de presiune de carcasa ambreiajului.
6.3.1. Calculul discului de presiune
- raza exterioara: red=Re+4
red=100+4
red=104 [mm]
- raza interioara: rid=Ri-4
rid=70 - 4
rid=66 [mm]
unde
[kg] - masa pieselor ce se
încalzesc;
- coeficientul care
exprima partea din lucrul mecanic preluat de discul de presiune al
ambreiajului;
- L =l∙A=3204424,5 [J] - lucrul mecanic de patinare.
h=14,826
15 [mm]
Grosimea determinata reprezinta valoarea minima; fata exterioara a discului este profilata în vederea cresterii rigiditatii, a generarii unui curent intens de aer pentru racire si pentru a permite legaturile cu elementele de care se cupleaza.
6.3.2. Calculul arcului diafragma
Elementele geometrice ale arcului sunt prezentate în (fig. 6.8)
Se
considera ca arcul diafragma reprezinta doua elemente
functionale reunite într-o singura piesa: partea tronconica
plina, care este de fapt un arc disc cu rolul de arc de presiune, si
lamelele, care sunt de fapt pârghii încastrate în pânza arcului disc cu rolul
de pârghii de debreiere.
Mentinerea starii cuplate a ambreiajului la limita momentului necesar al ambreiajului proiectat este posibila când pe suprafata de frecare se dezvolta forta normala:
3520 [N]
La ambreiajele cu arc central diafragma forta data de relatia de mai sus trebuie sa fie dezvoltata de arc în stare cuplata a ambreiajului. Elementele geometrice ale unui arc diafragma sunt prezentate în (fig. 6.8)
Fortele
care solicita arcul diafragma în cele doua situatii de
rezemare care apar în timpul functionarii ambreiajului sunt
prezentate în figura 6.9.a, pentru situatia ambreiat, si în figura
6.9.b, pentru situatia debreiat. Se considera ca arcul
diafragma prezinta doua elemente functionale reunite într-o
singura piesa: partea tronconica plina, care este de fapt
un arc disc cu rolul de arc de presiune, si lamele, care sunt de fapt
pârghii încastrate în pânza arcului disc cu rolul de pârghii de debreiere.
Modelul constructiv din figura 6.10 îndeplineste în ambreiaj acelasi rol functional ca si arcul diafragma utilizând principiul suprapunerii efectelor produse în cele doua elemente componente ale sale: arcul disc si pârghiile de debreiere.
Fig.6.10. Modelul constructiv
al arcului diafragma
Pentru calcule se folosesc urmatoarele notatii:
- d1, d2, d3, s, H, h - dimensiunile arcului diafragma;
- pozitia reazemelor;
- z - numarul de brate;
a - unghiul sectorului care revine unui brat (a=3600/z);
- F - forta de ambreiere;
- Q - forta de debreiere;
- F1, Q1 - fortele de ambreiere si debreiere ce revin unui sector al modelului (F1=F/z, Q1=Q/z)
Pentru simplificare se considera pârghiile rigide si sistemul deformat pâna în pozitia în care arcul disc este aplatizat.
Fortele F si Q determina în arcul disc momentul radial M1 si forta taietoare T1 si în pârghii momentul de încovoiere M2 si forta taietoare T2.
În figura 6.11 s-au trasat diagramele de momente si forte taietoare din arcul disc si din pârghiile modelului constructiv, precum si diagramele de momente si forte taietoare din arcul diafragma obtinute prin suprapunerea efectelor din elementele componente.
st si sr si eforturile de forfecare t. Deoarece eforturile unitare sr si t sunt neglijabile în comparatie cu eforturile tangentiale st, calculul de rezistenta al arcului se face pentru eforturile stmax folosind relatia:
unde
- E - modulul de elasticitate al materialului;
m - coeficientul lui Poisson;
- f - deformatia arcului în dreptul diametrului d2;
- s - grosimea discului;
- k1, k2, k3 - coeficienti.
;
;
Din calcule rezulta: k1=0,64; k2=1,113; k3=1,192
Experimental s-a constatat ca, în timpul deformarii, generatoarele arcului disc ramân practic rectilinii, iar lamelele de debreiere se încovoaie între circumferintele d2 si d3 comportându-se ca niste pârghii încastrate în arcul disc de aceea deformatiile în timpul debreierii se vor determina în doua etape: în prima etapa se calculeaza deformatia care provine din deformatia arcului disc în ipoteza ca bratele sunt rigide, iar în a doua etapa se însumeaza deformatia suplimentara de încovoiere a bratelor.
Deformatia arcului disc încarcat cu sarcina uniform distribuita pe circumferintele de diametre d1 si d2 se face cu relatia:
care reprezinta caracteristica de elasticitate arcului disc în timpul cuplarii.
Pentru calculul deformatiilor în timpul debreierii se foloseste modelul din (fig. 6.12), unde:
- q=q1+q2 cu
-
- ![]()
unde
- momentul de inertie al
sectiunii lamelei;
- b - baza mare a lamelei;
- b1 - baza mica a lamelei;
Y - coeficient de forma al lamelei.
Pentru forta Q, din conditia de echilibru a fortelor se obtine:
2070 [N]
Dimensiunile geometrice ale arcului diafragma
|
Nume |
Simbol |
Unitate de masura |
Dimensiunea |
|
Diametrul exterior al diafragmei |
d1 |
[mm] |
|
|
Diametrul de sprijin |
d2 |
[mm] |
|
|
Diametrul mansonului de presiune |
d3 |
[mm] |
|
|
Numarul de taieturi ale diafragmei |
z |
|
|
|
Latimea taieturii dintre lamele |
c |
[mm] |
|
|
Grosimea arcului diagragma |
s |
[mm] |
|
|
Sageata la platou |
h |
[mm] |
|
6.4. Calculul elementelor de legatura
Legaturile permanente ale discului de presiune sunt cu carcasa ambreiajului, de la care primeste momentul de torsiune al motorului. Aceasta legatura trebuie sa asigure, în afara rigidizarii în rotatie a pieselor, si mobilitati relative axiale necesare cuplarii, decuplarii si compensarii uzurii garniturilor.
La legatura prin bride, calculul cuprinde calculul niturilor de fixare a bridelor elastice de carcasa si respectiv de discul de presiune cu relatiile:
- pentru strivire:
45,20 [MPa]
- pentru forfecare:
41,36 [MPa]
unde
- d=5 [mm] - diametrul nitului;
- g=3 [mm] - grosimea bridei;
- z=3 - numarul de bride;
- Rmed=110 [mm] - raza medie de dispunere a bridelor.
6.5. Calculul partii conduse
Calculul partii conduse cuprinde calculul arborelui condus, calculul legaturii dintre arborele ambreiajului si butucul discului condus si calculul arcurilor elementului elastic suplimentar.
unde
tat 130 [N/mm2]- efortul unitar admisibil pentru solicitarea de torsiune.
Valoarea definitiva a diametrului se determina în functie de dimensiunile standardizate ale arborilor canelati, diametrul Di determinat, reprezinta diametrul de fund necesar canelurilor adoptate.
Adopt conform STAS 7346-85 arbore canelat cu caneluri dreptunghiulare clasa mijlocie, cu dimensiunile:
Dd
pd
z
Arbore
Butuc
de
di
b
r1
De
Di
g
r2
Calculul îmbinarii dintre arbore si butuc se face pentru strivire pe flancurile canelurilor cu relatia:
Unde:
- k=2 - coeficient de repartizare a sarcini pe caneluri;
Dd - diametrul mediu al canelurilor;
- h - înaltimea portanta a canelurii;
- z=12 - numarul de caneluri;
- L=25 [mm] - lungimea de îmbinare cu butucul discului condus.
6.5.2. Calculul arcurilor elementului elastic suplimentar
Prin introducerea în transmisia automobilului a unui element elastic suplimentar se reduc sarcinile dinamice care apar la cuplarea brusca a ambreiajului si se modifica caracteristica elastica a transmisiei înlaturându-se astfel posibilitatea aparitiei rezonantei de înalta frecventa. În figura 6.15 se reprezinta caracteristica elastica a transmisiei prevazuta cu element elastic suplimentar.
Pentru unghiuri de rasucire ale organelor transmisiei cuprinse între -j si j rigiditatea transmisiei este determinata de rigiditatea arcurilor elementului elastic. Dupa ce momentul de torsiune care se transmite depaseste valoarea M1, arcurile elementului elastic suplimentar sunt comprimate pâna la limita maxima admisa, iar pentru valori mai mari decât M, rigiditatea transmisiei este data de rigiditatea organelor ei. Pentru a obtine o caracteristica elastica neliniara a transmisiei si pentru unghiuri cuprinse între-j si j se utilizeaza discuri conduse la care arcurile elementului elastic suplimentar nu intra toate în actiune în acelasi timp. Acest lucru se realizeaza practic prin prevederea în flansa butucului si în discuri a unor ferestre de lungimi diferite si prin folosirea de arcuri cu caracteristici diferite.
Pentru calculul arcurilor ce formeaza elementul elastic suplimentar, momentul limita care le solicita si care limiteaza rigiditatea lor minima se considera a fi momentul capabil atingerii limitei de aderenta la rotile motoare ale automobilului dat de relatia:
unde
- Gad=15750 [N] - greutatea aderenta;
- rd=0,2976 [m] - raza dinamica a rotilor;
j - coeficientul de aderenta;
- icv1=3,82 - raportul de transmitere în prima treapta din cutia de viteza;
- i0=4,11 - raportul de transmitere al puntii motoare.
Daca Rmed este raza medie de dispunere arcurilor si daca se considera ca toate arcurile participa în mod egal la preluarea momentului de calcul, forta de calcul este :
Din conditia ca amplitudinea unghiulara pe acre trebuie sa o admita elementul elastic sa se situeze în intervalul q (7.10)0 se obtine pentru sageata arcului valoarea maxima:
Adoptând un
coeficient al arcului
, din relatia sagetii rezulta diametrul sârmei
arcului:
![]()
Fig.6.16. Parametrii constructive ai
elementului elastic suplimentar
Pentru dimensionarea ferestrelor se recomanda urmatoarele valori:
- lf=26 [mm];
- Re=48 [mm];
- a=1,5 [mm];
- înclinarea capetelor 1,20.
Taietura în butuc:
B=d+ r m=8+2+2=12[mm]
unde
- d=8 [mm] - diametrul limitatorului;
lr lm=2 - jocurile dintre limitatori si butuc.
6.6. Calculul si constructia mecanismului de actionare
6.6.1. Alegerea tipului constructiv
Calculul sistemelor de actionare se face în scopul determinarii parametrilor acestuia în conditiile în care forta de actionare exercitata de conducator asupra pedalei ambreiajului si cursa pedalei trebuie sa se situeze în limite ergonomice. Calculul se desfasoara în doua etape, prima etapa fiind cea de dimensionare cinematica a sistemelor de comanda. Urmatoarea etapa, dupa dimensionarea cinematica, cuprinde calculul de rezistenta, când în functie de marimile de intrare în sistem - forta la pedala si de caracteristicile cinematice ale sistemului, se determina fortele si momentele din elementele componente, se identifica solicitarile si se efectueaza calculele dupa metodele de calcul al organelor de masini.
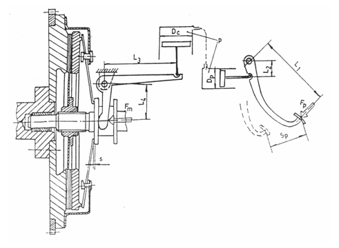
Aleg sistem de actionare hidraulica cu cilindrul receptor integrat mansonului de decuplare.
6.6.2. Calculul de dimensionare si verificareal mecanismului de
actionare

Fig.6.17. Sistemul de actionare cu comanda hidraulica
Forta necesara ce trebuie dezvoltata de tija pistonului din cilindrul receptor este data de relatia:
F2=Fm
unde:
- Fm=Q=2070 [N] :forta necesara la manson pentru realizarea starii de decuplare a ambreiajului.
Forta de apasare asupra pistonului din cilindrul pompei centrale este:
unde:
- L1=290 [mm]
- L2=45 [mm]
- Fp- forta de apasare asupra pedalei.
Datorita ca presiunea de lucru este redusa, iar conductele de legatura dintre cilindrii au lungime relativ mica, se poate neglija deformatia conductelor, iar volumul de lichid refulat din cilindrul pompei centrale se poate considera egal cu volumul generat de pistonul cilindrului receptor. În aceste ipoteze, de pierderi nule de presiune din sistemul hidraulic, conform principiului lui Pascal se poate scrie:
unde:
- ih=15 - raportul de transmitere al partii hidraulice;
- D1=39 [mm];
- D2=33 [mm].
Rezulta ca diametrul pompei este de:

Se obtine astfel:
Rezulta ca forta de apasare asupra pistonului din cilindrul pompei centrale este:
![]()
Cunoscând cursa mansonului de decuplare si considerând ca volumul refulat de pompa se regaseste în cilindrul receptor, se obtine pentru cursa pedalei relatia:
![]()
|