Tehnologia de montatre a arborilor cap la cap nu difera de cea a arborilor drepti. O atentie deosebita trebuie sa se acorde executarii imbinarii, inca la sfarsitul montajului arborele sa lucreze ca un arbore dintr-o singura bucata.
Imbinarea arboril 818b13i or compusi din mai multe bucati se poate realiza prin:
- cuplaj cu manson si arbore canelat
cuplaj cu manson cilindric, cu caneluri si cu stift
cuplaj conic cu stift
cu suruburi solicitate la forfecare
cu flanse stranse cu suruburi
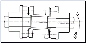
Montarea unui arbore compus cu ajutorul mansonului canelat se incepe prin asezarea si fixarea celor doua parti 1 si 2 ale arborelui, pe prisme – suport, astfel incat axele sa fie in prelungire. In acest scop se recomanda folosirea prismelor cu inaltime reglabila. Apoi se monteaza mansonul 3 pe unul din capetele canelate ale arborelui, iar capatul celuilalt arbore se introduce in celalalt capat al mansonului. Uneori se poate intampla, ca pentru pozitia respectiva a arborelui fata de manson, canelurile si plinurile din arbore si manson sa nu coincida, in acest caz, se vor distanta arborii intre ei si se va schimba pozitia mansonului 3, rotindu-l cu cateva caneluri, dupa care se va efectua din nou montarea.

Pentru montarea cuplajului – manson se folosesc adeseori ciocane cu cap moale. Pentru un ajustaj aderent pe diametrul de centrare al canelurilor, mansonul se va incalzi in ulei fiebinte inainte de montare.
Dupa montarea definitiva a mansonului se vor verifica dimensiunile l si lı care determina pozitia mansonului canelat fata de canelurile arborilor.
Pentru ca mansonul sa nu se deplaseze axial se fixeaza cu ajutorul unui surub de blocare 4.
Montarea arborilor de dimensiuni mari, cap la cap, printr-un cuplaj – manson, fara caneluri, cu ajutorul stifturilor, se realizeaza in aceeasi succesiuine ca si in cazul folosirii unui cuplaj, cu mansonul canelat.


Deoarece, la imbinarea cu arborii a cuplajului-manson, fara caneluri, se foloseste adeseori ajustaj blocat sau chiar presat usor, montarea se face in conditii mai bune prin incalzirea prealabila a mansonului. In cazul arborilor cu lungimi si diametre mai mici, montarea este mai simpla, si se face, de obicei, prin presarea mansonului la presa sau prin lovituri de ciocan.
Alezajele de arbori destinate pentru stifturi se executa corespunzator dimensiunilor din manson, dupa montarea definitiva a acestuia. Stifturile folosite la aceste imbinari sunt cilindrice, iar presarea lor se face cu presa manuala sau cu ciocanul.

a

Se regleaza calele din metal sau penele pana cand axul pompei si al actionarii sunt la acelasi nivel. Se verifica fetele cuplajelor si flansele de aspiratie si refulare ale pompei pentru pozitia orizontala sau verticala cu ajutorul nivelei cu bula de aer. Se corecteaza pozitiile, daca este necesar, regland calele sau penele sub placa de baza dupa necesitati. Fetele semicuplajelor vor fi distantate suficient astfel incat sa nu se poata atinge intre ele. Se va lasa toleranta necesara pentru uzura lagarelor axiale. De obicei, producatorul cuplajului specifica o distanta minima de separare intre semicuplaje si se vor consulta instructiunile acestuia pentru a verifica daca distanta este corecta.
Se verifica alinierea unghiulara introducand un spion conic sau o lera intre fetele cuplajului si comparand distanta dintre fete in patru puncte distantate la 90° pe circumferinta cuplajului. Pompa va fi aliniata unghiular cand masuratorile vor arata ca fetele cuplajului sunt la aceeasi distanta intre ele in toate punctele.
Alinierea paralela se verifica asezand un lineal de-a lungul ambelor semicuplaje sus, jos si in ambele parti. Pompa va fi aliniata paralel cand linealul este in contact uniform pe exteriorul semicuplajelor in toate pozitiile. Pot fi necesare tolerante pentru schimbarile de temperatura si pentru semicuplaje care nu au acelasi diametru. Se va avea grija ca linealul sa fie asezat paralel cu axele arborilor.
Corectarea alinierii unghiulare si a paralelismului se face regland adaosurile de sub pompa sau motor, sau prin repozitionarea unitatilor pe placa de baza. Dupa fiecare schimbare, este necesar sa se verifice alinierea semicuplajelor.
Reglarea pe o directie poate sa deranjeze reglarea efectuata anterior pe o alta directie. Cand alinierea este corecta, se strang suruburile de fundatie se strang uniform dar nu prea puternic.
In conformitate cu prevederile legale, cuplajele trebuie sa fie protejate prin aparatori, astfel incat accidentele cauzate de atingerea din intamplare a partilor rotitoare sa fie evitate.

|